賃貸マンション
川又マンションの賃貸物件情報(3LDK/3階)
| 家賃 | 管理費等 | 敷金 | 礼金 | 間取り | 専有面積 |
|---|---|---|---|---|---|
| 7.6万円 | 4,000円 | 7.6万円 | なし | 3LDK | 62.1m2 |
入居決定でお祝い金最大100,000円
- 保証金
- -
- 償却・敷引
- -
- 築年数
- 築38年
- 所在階
- 3階
- 向き
- -
Point
当物件は初期費用分割払い可(クレジットカード決済も可)/お客様のご希望に合わせた方法(店頭、オンライン等)で物件をご提案いたします。初期費用のお見積りや入居希望日のご相談もお気軽にお問い合わせください
提供:アエラス川口店 (株)アエラス.FR(SUUMO経由)

詳細情報 川又マンション
物件紹介
川又マンションはJR京浜東北線大宮駅から徒歩15分にあるマンションです。
このお部屋は2階以上に位置しているので、通行人や周囲の住人からの視線が気になりにくく、防犯面でも安心。インターホンにはTVモニタもついているため、相手の顔を確認してから来客対応することができます。
人気の角部屋。周囲の居住者の生活音も気になりにくい場所です。バス・トイレ別の仕様で、のんびりお風呂タイムも楽しめます。
通信設備面では、インターネット接続が可能です(別途工事、契約料が必要な場合あり)。
このお部屋は2階以上に位置しているので、通行人や周囲の住人からの視線が気になりにくく、防犯面でも安心。インターホンにはTVモニタもついているため、相手の顔を確認してから来客対応することができます。
人気の角部屋。周囲の居住者の生活音も気になりにくい場所です。バス・トイレ別の仕様で、のんびりお風呂タイムも楽しめます。
通信設備面では、インターネット接続が可能です(別途工事、契約料が必要な場合あり)。
お金・契約の情報
※「-」と表示されているものは、実際は料金が発生するものもございます。詳細はお問い合わせください。
| 家賃 | 7.6万円 | 管理費・共益費 | 4,000円 |
|---|---|---|---|
| 敷金 | 7.6万円 | 礼金 | なし |
| 入居決定でお祝い金最大100,000円 | |||
| 保証金 | - | 償却・敷引 | - |
| 住宅保険料 | - | 更新料 | - |
| 契約形態 | - | 契約期間 | - |
| 入居・引渡期間 | 相談 | 現況 | - |
| 契約備考 | さいたま市立桜木中学校まで946m/くまの子倶楽部保育室まで417m/保険等加入 加入要 / 火災保険 2年間/室内清掃費用借主負担 合計1.65万円(内訳:カギ交換費用16500円) 3LDK 二人入居可/子供可 普通借家2年 損保【要】 バストイレ別、バルコニー、ガスコンロ対応、TVインターホン、室内洗濯置、角住戸、駐輪場、光ファイバー、外壁タイル張り、礼金不要、最上階、敷金1ヶ月、二人入居相談、保証金不要、3駅以上利用可、3沿線以上利用可、都市ガス、玄関収納、高速ネット対応、初期費用カード決済可 | ||
部屋の情報
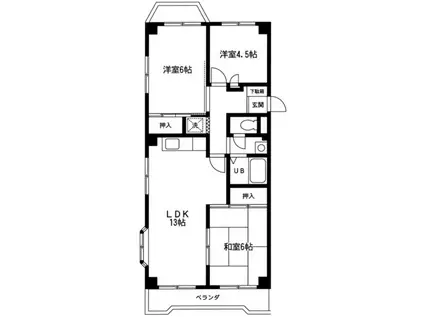
| 間取り | 3LDK | 専有面積 | 62.1m2 |
|---|---|---|---|
| 所在階 / 向き | 3階 / - | バルコニー面積 | - |
| 水道 / ガス | - | ||
| 設備 | バス・トイレ別、2階以上、テレビドアホン、インターネット対応、角部屋、バルコニー、コンロ:ガス、洗濯機:室内 | ||
| 当社物件ID | 5843007 | ||
建物の情報
| 建物名 | 川又マンション | ||
|---|---|---|---|
| 所在地 | 埼玉県さいたま市大宮区桜木町 | ||
| 交通 | JR京浜東北線 大宮駅(埼玉) 徒歩15分 JR埼京線 与野本町駅 徒歩33分 東武野田線 北大宮駅 徒歩40分 | ||
| 階数 | 3階建 | 総戸数 | - |
| 築年月 | 1988年08月 / 築38年 | エレベーター | - |
| 駐車場 | 近隣 555m19250円 | バイク置き場 | - |
| 駐輪場 | あり | 管理人/管理会社 | - |
| 周辺環境 | その他 ピッツェリア馬車道さいたま桜木店(飲食店)まで442m その他 ヤオコー大宮上小町店(スーパー)まで612m その他 セブン-イレブン 大宮桜木4丁目店(コンビニ)まで395m その他 フィット薬局 大宮店(ドラッグストア)まで659m その他 島忠ホームズさいたま中央店(ホームセンター)まで728m その他 日本赤十字看護大学さいたま看護学部(大学・短大)まで623m | ||
| 建物種別 | マンション | 建物構造 | 鉄骨造 |
この部屋の取扱い不動産会社
| 会社名 | アエラス川口店 (株)アエラス.FR(SUUMO経由) | ||
|---|---|---|---|
| 所在地 | 埼玉県川口市栄町3-8-4 イソベビル 2階 | 交通 | - |
| 営業時間 | 10:00~19:00(時間外対応出来る場合有り) | 定休日 | 年中無休(年末年始などを除く) |
| 免許番号 | 国土交通大臣10206 | 取引態様 | 仲介 |
| 不動産会社管理番号 | 100483340586 | 当社管理番号 | 89 |
| 所属団体 | (公社)全日本不動産協会埼玉県本部会員 | ||
| 公正取引協議会 | (公社)首都圏不動産公正取引協議会加盟 | ||
| 取扱い物件情報 | 物件詳細へ | ||
※各種情報と現状に差異がある場合は、現状優先となります。問い合わせをすることで、より詳しい条件、情報を確認する事ができます。
提供:アエラス川口店 (株)アエラス.FR(SUUMO経由)
この物件が気になったら掲載期限まであと10日
川又マンションに条件(家賃・エリア)が近い物件一覧
| 写真 | 家賃 管理費等 | 敷金 礼金 | 間取り 専有面積 | 築年数 | 最寄り駅 所在地 | キープ | 詳細 |
|---|---|---|---|---|---|---|---|
アパート ノーススターガーデン(2LDK/2階) | |||||||
![]() | 10.45万円 3,900円 | なし 10.45万円 | 2LDK 59.66m2 | 新築 | 西武鉄道新宿線 南大塚駅 徒歩23分 川越線 川越駅 徒歩39分 東武鉄道東上線 新河岸駅 徒歩43分 埼玉県川越市中台南1丁目 | 詳細を見る | |
マンション 笠幡グリーンパーク13号棟(2LDK/2階) | |||||||
![]() | 7万円 なし | 7万円 7万円 | 2LDK 54.37m2 | 築44年 | JR川越線 笠幡駅 徒歩7分 埼玉県川越市大字笠幡 | 詳細を見る | |
アパート KIRSCHE(1DK/1階) | |||||||
![]() | 7.2万円 6,000円 | なし 7.2万円 | 1DK 27.8m2 | 築3年 | 西武鉄道新宿線 南大塚駅 徒歩3分 埼玉県川越市南台2丁目 | 詳細を見る | |
アパート レフィナード(1LDK/1階) | |||||||
![]() | 7.2万円 6,000円 | なし 7.2万円 | 1LDK 42.11m2 | 築12年 | 川越線 的場駅 徒歩6分 東武鉄道東上線 霞ケ関駅(埼玉) 徒歩18分 川越線 笠幡駅 徒歩37分 埼玉県川越市 | 詳細を見る | |
アパート ドルチェテラス川越南大塚(1DK/1階) | |||||||
![]() | 6.2万円 3,000円 | なし 6.2万円 | 1DK 26.48m2 | 新築 | 西武鉄道新宿線 南大塚駅 徒歩4分 西武鉄道新宿線 新狭山駅 徒歩37分 東武鉄道東上線 川越駅 徒歩42分 埼玉県川越市 | 詳細を見る | |
アパート リッツ アグリス(1LDK/2階) | |||||||
![]() | 6.7万円 2,900円 | なし 6.7万円 | 1LDK 43.47m2 | 築10年 | 東武鉄道東上線 川越駅 徒歩27分 川越線 川越駅 徒歩28分 西武鉄道新宿線 南大塚駅 徒歩29分 埼玉県川越市豊田町1丁目 | 詳細を見る | |
マンション THE GARLANDS(1K/1階) | |||||||
![]() | 7.1万円 5,000円 | なし なし | 1K 21.99m2 | 築1年 | 京浜東北・根岸線 西川口駅 徒歩7分 京浜東北・根岸線 川口駅 徒歩22分 京浜東北・根岸線 蕨駅 徒歩32分 埼玉県川口市西川口4丁目 | 詳細を見る | |
アパート レスポワールⅢ(2LDK/2階) | |||||||
![]() | 7.6万円 7,000円 | なし 7.6万円 | 2LDK 62.1m2 | 築23年 | 川越線 的場駅 徒歩7分 川越線 笠幡駅 徒歩35分 西武鉄道新宿線 南大塚駅 徒歩50分 埼玉県川越市 | 詳細を見る | |









