賃貸マンション
ジェノヴィア世田谷砧IIの賃貸物件情報(2K/4階)
| 家賃 | 管理費等 | 敷金 | 礼金 | 間取り | 専有面積 |
|---|---|---|---|---|---|
| 14.05万円 | 1万円 | なし | なし | 2K | 25.81m2 |
入居決定でお祝い金最大100,000円
Point
祖師ヶ谷大蔵駅徒歩10分・バス停成育医療研究センター前徒歩3分2人入居可・ペット飼育可能
提供:(株)ランドクリエーション(SUUMO経由)

詳細情報 ジェノヴィア世田谷砧II
物件紹介
ジェノヴィア世田谷砧IIは小田急線祖師ケ谷大蔵駅から徒歩10分にあり、駅近で通勤通学に便利なマンションです。
このお部屋は2階以上に位置しているので、通行人や周囲の住人からの視線が気になりにくく、防犯面でも安心。建物のエントランスはオートロックがついており、インターホンにはTVモニタもついているため、相手の顔を確認してから来客対応することができます。
人気の角部屋で周囲の居住者の生活音も気になりにくく、また、フローリングのお部屋なのでお掃除もラクラク。キッチンはシステムキッチン仕様になっていますので、お料理好きの方にもぴったり。バス・トイレは別なので、のんびりお風呂タイムも楽しめるでしょう。また、雨の日でも浴室乾燥機を使えば、お洗濯も問題ありません。
通信設備面では、インターネットが無料で使えるので、月々の出費を抑えられるのも魅力です。また、BSアンテナ・CSアンテナもありますので、おうち時間も充実するでしょう(別途工事、BS・CSの契約料等が必要な場合あり)。
建物にはエレベーターがついているので、重い荷物があっても安心。共用部には宅配ボックスが設定されているので、不在の時にも荷物を受け取ることができます。また、ペット飼育の相談ができますので、あなたの大切な家族の一員も快適に暮らせるか、ぜひ確認してみてください。
このお部屋は2階以上に位置しているので、通行人や周囲の住人からの視線が気になりにくく、防犯面でも安心。建物のエントランスはオートロックがついており、インターホンにはTVモニタもついているため、相手の顔を確認してから来客対応することができます。
人気の角部屋で周囲の居住者の生活音も気になりにくく、また、フローリングのお部屋なのでお掃除もラクラク。キッチンはシステムキッチン仕様になっていますので、お料理好きの方にもぴったり。バス・トイレは別なので、のんびりお風呂タイムも楽しめるでしょう。また、雨の日でも浴室乾燥機を使えば、お洗濯も問題ありません。
通信設備面では、インターネットが無料で使えるので、月々の出費を抑えられるのも魅力です。また、BSアンテナ・CSアンテナもありますので、おうち時間も充実するでしょう(別途工事、BS・CSの契約料等が必要な場合あり)。
建物にはエレベーターがついているので、重い荷物があっても安心。共用部には宅配ボックスが設定されているので、不在の時にも荷物を受け取ることができます。また、ペット飼育の相談ができますので、あなたの大切な家族の一員も快適に暮らせるか、ぜひ確認してみてください。
お金・契約の情報
※「-」と表示されているものは、実際は料金が発生するものもございます。詳細はお問い合わせください。
| 家賃 | 14.05万円 | 管理費・共益費 | 1万円 |
|---|---|---|---|
| 敷金 | なし | 礼金 | なし |
| 入居決定でお祝い金最大100,000円 | |||
| 保証金 | - | 償却・敷引 | - |
| 住宅保険料 | - | 更新料 | - |
| 保証会社利用 | 必須 | 保証会社名 | - |
| 保証会社費用 | - | 保証会社備考 | 保証会社利用必 月額2700円 |
| 契約形態 | - | 契約期間 | - |
| 入居・引渡期間 | 相談 | 現況 | - |
| 入居可能条件 | ペット相談 | ||
| 契約備考 | 巡回管理 2K 二人入居可/ペット相談 バストイレ別、バルコニー、エアコン、クロゼット、フローリング、浴室乾燥機、オートロック、室内洗濯置、陽当り良好、シューズボックス、システムキッチン、角住戸、温水洗浄便座、エレベーター、洗面所独立、2口コンロ、駐輪場、宅配ボックス、閑静な住宅地、2面採光、BS・CS、防犯カメラ、ペット相談、二人入居相談、バイク置場、全居室フローリング、CS、ネット使用料不要、眺望良好、ルーフバルコニー、築2年以内、学生相談、浴室未使用、耐震構造、駅徒歩10分以内、バス停徒歩3分以内、制震構造、24時間ゴミ出し可、敷地内ごみ置き場、都市ガス、洗面所にドア、BS、年内入居可、通風良好 | ||
部屋の情報
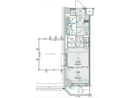
| 間取り | 2K | 専有面積 | 25.81m2 |
|---|---|---|---|
| 所在階 / 向き | 4階 / 西 | バルコニー面積 | - |
| 水道 / ガス | - | ||
| 設備 | バス・トイレ別、2階以上、オートロック、宅配ボックス、浴室乾燥機、インターネット対応、システムキッチン、エアコン、エレベーター、温水洗浄便座、角部屋、バルコニー、フローリング、洗髪洗面化粧台、2口コンロ、CSアンテナ、BSアンテナ、インターネット使用料無料、洗濯機:室内 | ||
| 当社物件ID | 160291135 | ||
建物の情報
| 建物名 | ジェノヴィア世田谷砧II | ||
|---|---|---|---|
| 所在地 | 東京都世田谷区砧 | ||
| 交通 | 小田急線 祖師ケ谷大蔵駅 徒歩10分 | ||
| 階数 | 5階建 | 総戸数 | - |
| 築年月 | 2025年10月 / 築1年 | エレベーター | あり |
| 駐車場 | なし | バイク置き場 | あり |
| 駐輪場 | あり | 管理人/管理会社 | - |
| 周辺環境 | その他 スーパーオオゼキ砧店(スーパー)まで586m その他 ローソン世田谷砧五丁目店(コンビニ)まで237m その他 ココカラファイン砧世田谷通り店(ドラッグストア)まで358m その他 国立成育医療研究センター病院(病院)まで924m その他 世田谷砧郵便局(郵便局)まで143m その他 みずほ銀行祖師谷支店(銀行)まで730m | ||
| 建物種別 | マンション | 建物構造 | RC(鉄筋コンクリート) |
この部屋の取扱い不動産会社
| 会社名 | (株)ランドクリエーション(SUUMO経由) | ||
|---|---|---|---|
| 所在地 | 東京都練馬区豊玉北3-12-10 富士蔵コーポ1階 | 交通 | - |
| 営業時間 | 10時から20時 | 定休日 | 年中無休 |
| 免許番号 | 東京都知事109632 | 取引態様 | 仲介 |
| 不動産会社管理番号 | 100485104900 | 当社管理番号 | 89 |
| 所属団体 | (公社)東京都宅地建物取引業協会会員 | ||
| 公正取引協議会 | (公社)首都圏不動産公正取引協議会加盟 | ||
| 取扱い物件情報 | 物件詳細へ | ||
※各種情報と現状に差異がある場合は、現状優先となります。問い合わせをすることで、より詳しい条件、情報を確認する事ができます。
提供:(株)ランドクリエーション(SUUMO経由)
この物件が気になったら掲載期限まであと10日
ジェノヴィア世田谷砧IIに条件(家賃・エリア)が近い物件一覧
| 写真 | 家賃 管理費等 | 敷金 礼金 | 間取り 専有面積 | 築年数 | 最寄り駅 所在地 | キープ | 詳細 |
|---|---|---|---|---|---|---|---|
タウンハウス 大田菜園長屋(2LDK) | |||||||
![]() | 15.4万円 5,000円 | 15.4万円 23.1万円 | 2LDK 52.17m2 | 築10年 | 京浜急行電鉄本線 雑色駅 徒歩8分 京浜急行電鉄本線 六郷土手駅 徒歩13分 東京都大田区東六郷3丁目 | 詳細を見る | |
マンション XEBEC池上Ⅱ(1K/4階) | |||||||
![]() | 9.4万円 8,000円 | なし 9.4万円 | 1K 25.65m2 | 築11年 | 東急池上線 池上駅 徒歩8分 東京都大田区池上3丁目 | 詳細を見る | |
マンション THE AIGRETTE MINAMI‐KAMATA(1K/3階) | |||||||
![]() | 13万円 1万円 | 13万円 13万円 | 1K 30.1m2 | 築3年 | 京急本線 京急蒲田駅 徒歩4分 京急本線 梅屋敷駅(東京) 徒歩11分 京急空港線 糀谷駅 徒歩11分 東京都大田区南蒲田 | 詳細を見る | |
アパート SEED SAVE PETIRASU Ⅲ(1LDK/1階) | |||||||
![]() | 10.4万円 1万円 | 20.8万円 10.4万円 | 1LDK 32.95m2 | 新築 | 東京モノレール羽田 昭和島駅 徒歩12分 京浜急行電鉄本線 大森町駅 徒歩18分 東京都大田区大森東5丁目 | 詳細を見る | |
マンション SEED JUST B-BASE Ⅱ(1LDK/3階) | |||||||
![]() | 9.9万円 1.5万円 | 9.9万円 9.9万円 | 1LDK 25.41m2 | 新築 | 東京モノレール羽田 昭和島駅 徒歩11分 京浜急行電鉄本線 梅屋敷駅(東京) 徒歩19分 東京都大田区大森南4丁目 | 詳細を見る | |
マンション ジェノヴィア蒲田3スカイガーデン(1K/4階) | |||||||
![]() | 12万円 1.5万円 | なし なし | 1K 25.41m2 | 築5年 | 京浜急行電鉄本線 京急蒲田駅 徒歩6分 京浜急行電鉄空港線 糀谷駅 徒歩10分 京浜東北・根岸線 蒲田駅 徒歩15分 東京都大田区南蒲田2丁目 | 詳細を見る | |
アパート VOX LILY(2LDK/1階) | |||||||
![]() | 19.6万円 4,000円 | 19.6万円 19.6万円 | 2LDK 56.47m2 | 築2年 | 京浜東北・根岸線 蒲田駅 徒歩13分 東急池上線 蓮沼駅 徒歩15分 東京都大田区西蒲田1丁目 | 詳細を見る | |
マンション ARCOBALENO UMEYASHIKI(1K/4階) | |||||||
![]() | 10.5万円 1.5万円 | なし 10.5万円 | 1K 25.57m2 | 築2年 | 京急本線 梅屋敷駅(東京) 徒歩11分 京急本線 大森町駅 徒歩15分 京急本線 京急蒲田駅 徒歩19分 東京都大田区北糀谷 | 詳細を見る | |









