賃貸マンション
プレサンス大手前ピリオドの賃貸物件情報(1K/9階)
| 家賃 | 管理費等 | 敷金 | 礼金 | 間取り | 専有面積 |
|---|---|---|---|---|---|
| 6.6万円 | 8,490円 | なし | 6.6万円 | 1K | 22.33m2 |
入居決定でお祝い金最大100,000円
- 保証金
- -
- 償却・敷引
- -
- 築年数
- 築6年
- 所在階
- 9階
- 向き
- 東
Point
仲介手数料手数料0円で契約可能(法人契約除く)他社様より少しでもお安く、初期費用の交渉させて頂きます♪弊社はネット掲載されている物件はエリア関係なくご契約可能です。
提供:ステイト建物管理(株)STATE本町店(SUUMO経由)

詳細情報 プレサンス大手前ピリオド
物件紹介
プレサンス大手前ピリオドは地下鉄谷町線天満橋駅から徒歩5分にあり、駅近で通勤通学に便利なマンションです。
このお部屋は2階以上に位置しているので、通行人や周囲の住人からの視線が気になりにくく、防犯面でも安心。建物のエントランスはオートロックがついており、インターホンにはTVモニタもついているため、相手の顔を確認してから来客対応することができます。
人気の南向きのお部屋。また、フローリングなのでお掃除もラクラク。キッチンはシステムキッチン仕様になっていますので、お料理好きの方にもぴったり。バス・トイレは別なので、のんびりお風呂タイムも楽しめるでしょう。また、雨の日でも浴室乾燥機を使えば、お洗濯も問題ありません。
通信設備面では、インターネットが無料で使えるので、月々の出費を抑えられるのも魅力です(別途工事等が必要な場合あり)。
建物にはエレベーターがついているので、重い荷物があっても安心。共用部には宅配ボックスが設定されているので、不在の時にも荷物を受け取ることができます。
このお部屋は2階以上に位置しているので、通行人や周囲の住人からの視線が気になりにくく、防犯面でも安心。建物のエントランスはオートロックがついており、インターホンにはTVモニタもついているため、相手の顔を確認してから来客対応することができます。
人気の南向きのお部屋。また、フローリングなのでお掃除もラクラク。キッチンはシステムキッチン仕様になっていますので、お料理好きの方にもぴったり。バス・トイレは別なので、のんびりお風呂タイムも楽しめるでしょう。また、雨の日でも浴室乾燥機を使えば、お洗濯も問題ありません。
通信設備面では、インターネットが無料で使えるので、月々の出費を抑えられるのも魅力です(別途工事等が必要な場合あり)。
建物にはエレベーターがついているので、重い荷物があっても安心。共用部には宅配ボックスが設定されているので、不在の時にも荷物を受け取ることができます。
お金・契約の情報
※「-」と表示されているものは、実際は料金が発生するものもございます。詳細はお問い合わせください。
| 家賃 | 6.6万円 | 管理費・共益費 | 8,490円 |
|---|---|---|---|
| 敷金 | なし | 礼金 | 6.6万円 |
| 入居決定でお祝い金最大100,000円 | |||
| 保証金 | - | 償却・敷引 | - |
| 住宅保険料 | - | 更新料 | - |
| 契約形態 | - | 契約期間 | - |
| 入居・引渡期間 | 即時 | 現況 | - |
| 契約備考 | OsakaMetro中央線堺筋本町駅徒歩12分 1K 普通借家1年 バストイレ別、バルコニー、エアコン、ガスコンロ対応、クロゼット、フローリング、シャワー付洗面台、TVインターホン、浴室乾燥機、オートロック、室内洗濯置、陽当り良好、シューズボックス、システムキッチン、温水洗浄便座、脱衣所、エレベーター、洗面所独立、洗面化粧台、2口コンロ、駐輪場、宅配ボックス、即入居可、敷金不要、防犯カメラ、照明付、全居室フローリング、ディンプルキー、駅まで平坦、ネット使用料不要、眺望良好、ダブルロックキー、24時間換気システム、外壁コンクリート、耐火構造、耐震構造、全室東南向き、3駅以上利用可、3沿線以上利用可、駅徒歩5分以内、耐風構造、24時間ゴミ出し可、敷地内ごみ置き場、全居室6畳以上、都市ガス、2WAY洗面所、礼金1ヶ月、IT重説対応物件、初期費用カード決済可、通風良好 | ||
部屋の情報
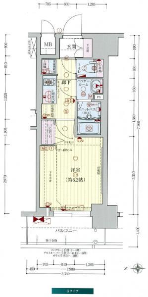
| 間取り | 1K | 専有面積 | 22.33m2 |
|---|---|---|---|
| 所在階 / 向き | 9階 / 東 | バルコニー面積 | - |
| 水道 / ガス | - | ||
| 設備 | バス・トイレ別、2階以上、オートロック、テレビドアホン、宅配ボックス、浴室乾燥機、インターネット対応、システムキッチン、エアコン、エレベーター、温水洗浄便座、南向き、バルコニー、フローリング、洗髪洗面化粧台、2口コンロ、コンロ:ガス、インターネット使用料無料、洗濯機:室内 | ||
| 当社物件ID | 36433574 | ||
建物の情報
| 建物名 | プレサンス大手前ピリオド | ||
|---|---|---|---|
| 所在地 | 大阪府大阪市中央区内淡路町 | ||
| 交通 | 地下鉄谷町線 天満橋駅 徒歩5分 京阪本線 天満橋駅 徒歩6分 地下鉄谷町線 谷町四丁目駅 徒歩7分 | ||
| 階数 | 15階建 | 総戸数 | - |
| 築年月 | 2020年03月 / 築6年 | エレベーター | あり |
| 駐車場 | 空有 24000円 | バイク置き場 | - |
| 駐輪場 | あり | 管理人/管理会社 | - |
| 周辺環境 | その他 ライフ天神橋店(スーパー)まで540m その他 コーヨー内本町店(スーパー)まで501m その他 セブンイレブン大阪大手通1丁目店(コンビニ)まで92m その他 ファミリーマート内平野町店(コンビニ)まで67m その他 ダイコクドラッグ谷町四丁目店(ドラッグストア)まで381m その他 スギ薬局谷町四丁目店(ドラッグストア)まで465m | ||
| 建物種別 | マンション | 建物構造 | RC(鉄筋コンクリート) |
この部屋の取扱い不動産会社
| 会社名 | ステイト建物管理(株)STATE本町店(SUUMO経由) | ||
|---|---|---|---|
| 所在地 | 大阪府大阪市西区西本町1-2-1 Axis本町ビル403 | 交通 | - |
| 営業時間 | 10:00~19:00 | 定休日 | なし |
| 免許番号 | 大阪府知事57148 | 取引態様 | 仲介 |
| 不動産会社管理番号 | 100473154197 | 当社管理番号 | 89 |
| 所属団体 | (公社)全日本不動産協会大阪府本部会員 | ||
| 公正取引協議会 | (公社)近畿地区不動産公正取引協議会加盟 | ||
| 取扱い物件情報 | 物件詳細へ | ||
※各種情報と現状に差異がある場合は、現状優先となります。問い合わせをすることで、より詳しい条件、情報を確認する事ができます。
提供:ステイト建物管理(株)STATE本町店(SUUMO経由)
この物件が気になったら掲載期限まであと10日
プレサンス大手前ピリオドに条件(家賃・エリア)が近い物件一覧
| 写真 | 家賃 管理費等 | 敷金 礼金 | 間取り 専有面積 | 築年数 | 最寄り駅 所在地 | キープ | 詳細 |
|---|---|---|---|---|---|---|---|
マンション レオパレスファーウッド(1K/3階) | |||||||
![]() | 5.2万円 7,000円 | なし 5.2万円 | 1K 19.8m2 | 築24年 | 阪和線 鳳駅 徒歩17分 阪和線 津久野駅 徒歩18分 南海電鉄南海本線 浜寺公園駅 徒歩18分 大阪府堺市西区鳳北町8丁 | 詳細を見る | |
マンション 南海電鉄泉北線 深井駅 徒歩15分 築32年(3DK/4階) | |||||||
![]() | 5.7万円 4,800円 | なし なし | 3DK 55.46m2 | 築32年 | 南海電鉄泉北線 深井駅 徒歩15分 阪和線 津久野駅 徒歩29分 阪和線 鳳駅 徒歩36分 大阪府堺市中区深井清水町 | 詳細を見る | |
アパート 阪和線 富木駅 徒歩13分 築9年(1K/1階) | |||||||
![]() | 4.9万円 3,000円 | なし なし | 1K 20.97m2 | 築9年 | 阪和線 富木駅 徒歩13分 南海電鉄南海本線 羽衣駅 徒歩14分 阪和線 鳳駅 徒歩16分 大阪府堺市西区鳳西町2丁 | 詳細を見る | |
マンション S-RESIDENCE堺浜寺AXIAL(1K/5階) | |||||||
![]() | 5.8万円 1万円 | なし なし | 1K 23.78m2 | 築1年 | 阪堺電気軌道阪堺線 石津北駅 徒歩5分 南海電鉄南海本線 石津川駅 徒歩6分 南海電鉄南海本線 湊駅 徒歩17分 大阪府堺市西区浜寺石津町中1丁 | 詳細を見る | |
マンション 南海電鉄南海本線 石津川駅 徒歩4分 築35年(1DK/2階) | |||||||
![]() | 4.1万円 6,000円 | なし なし | 1DK 24m2 | 築35年 | 南海電鉄南海本線 石津川駅 徒歩4分 南海電鉄南海本線 諏訪ノ森駅 徒歩11分 南海電鉄南海本線 浜寺公園駅 徒歩26分 大阪府堺市西区浜寺石津町西4丁 | 詳細を見る | |
一戸建て 阪和線 富木駅 徒歩20分 築53年(3LDK) | |||||||
![]() | 7.2万円 3,000円 | なし なし | 3LDK 67.06m2 | 築53年 | 阪和線 富木駅 徒歩20分 阪和線 鳳駅 徒歩26分 阪和線 北信太駅 徒歩30分 大阪府堺市西区草部 | 詳細を見る | |
アパート CASA CALMA菱木(2LDK/2階) | |||||||
![]() | 7.9万円 5,000円 | なし 7.9万円 | 2LDK 43.8m2 | 築1年 | 阪和線 富木駅 徒歩37分 阪和線 鳳駅 徒歩40分 南海電鉄泉北線 深井駅 徒歩48分 大阪府堺市西区菱木2丁 | 詳細を見る | |
アパート パークサイド津久野(2DK/1階) | |||||||
![]() | 5.2万円 なし | 5.2万円 5.2万円 | 2DK 39m2 | 築38年 | 阪和線 津久野駅 徒歩10分 阪和線 上野芝駅 徒歩20分 阪和線 鳳駅 徒歩26分 大阪府堺市西区家原寺町1丁 | 詳細を見る | |









