賃貸マンション
いぶき野3丁目7号棟の賃貸物件情報(4LDK/4階)
| 家賃 | 管理費等 | 敷金 | 礼金 | 間取り | 専有面積 |
|---|---|---|---|---|---|
| 9.99万円 | 4,300円 | 19.98万円 | なし | 4LDK | 86m2 |
入居決定でお祝い金最大100,000円
- 保証金
- -
- 償却・敷引
- -
- 築年数
- 築33年
- 所在階
- 4階
- 向き
- -
Point
収納はクロゼット・シューズボックスなどが備え付けられているので、衣類や日用品の収納に重宝します。化粧品や洗面道具といった小物もスッキリまとめて収納できる独立洗面台があります。駐輪場付きの物件です。
提供:関西不動産センター和泉府中駅前店(株)KFC(SUUMO経由)

詳細情報 いぶき野3丁目7号棟
物件紹介
いぶき野3丁目7号棟は南海泉北線和泉中央駅から徒歩12分にあるマンションです。
このお部屋は2階以上に位置しているので、通行人や周囲の住人からの視線が気になりにくく、防犯面でも安心。インターホンにはTVモニタもついているため、相手の顔を確認してから来客対応することができます。
こちらは楽器相談が可能な物件。楽器演奏をお考えの方はぜひ相談してみてください。人気の南向き・フローリングのお部屋。角部屋でもあるため、周囲の居住者の生活音も気になりにくい場所です。キッチンはシステムキッチン仕様になっていますので、お料理好きの方にもぴったり。また、バス・トイレは別で、のんびりお風呂タイムも楽しめるでしょう。
通信設備面では、インターネット接続が可能です。また、CATVにも対応しているので、おうち時間も充実するでしょう(別途工事、契約料が必要な場合あり)。
このお部屋は2階以上に位置しているので、通行人や周囲の住人からの視線が気になりにくく、防犯面でも安心。インターホンにはTVモニタもついているため、相手の顔を確認してから来客対応することができます。
こちらは楽器相談が可能な物件。楽器演奏をお考えの方はぜひ相談してみてください。人気の南向き・フローリングのお部屋。角部屋でもあるため、周囲の居住者の生活音も気になりにくい場所です。キッチンはシステムキッチン仕様になっていますので、お料理好きの方にもぴったり。また、バス・トイレは別で、のんびりお風呂タイムも楽しめるでしょう。
通信設備面では、インターネット接続が可能です。また、CATVにも対応しているので、おうち時間も充実するでしょう(別途工事、契約料が必要な場合あり)。
お金・契約の情報
※「-」と表示されているものは、実際は料金が発生するものもございます。詳細はお問い合わせください。
| 家賃 | 9.99万円 | 管理費・共益費 | 4,300円 |
|---|---|---|---|
| 敷金 | 19.98万円 | 礼金 | なし |
| 入居決定でお祝い金最大100,000円 | |||
| 保証金 | - | 償却・敷引 | - |
| 住宅保険料 | - | 更新料 | - |
| 契約形態 | - | 契約期間 | - |
| 入居・引渡期間 | 即時 | 現況 | - |
| 契約備考 | ラインでのお問い合わせも可能ですので、ご利用をご希望の際は以下公式ラインID追加→トーク入力くださいませ。【LINEでのトークはこちら】@613kigno 4LDK 二人入居可/子供可 普通借家1年 損保【要】 バストイレ別、バルコニー、ガスコンロ対応、クロゼット、フローリング、TVインターホン、室内洗濯置、シューズボックス、システムキッチン、追焚機能浴室、角住戸、洗面所独立、洗面化粧台、駐輪場、押入、CATV、即入居可、礼金不要、閑静な住宅地、3口以上コンロ、独立型キッチン、オートバス、グリル付、保証人不要、仲介手数料不要、敷金2ヶ月、緑豊かな住宅地、浴室に窓、3面バルコニー、一部フローリング、始発駅、専有面積25坪以上、平面駐車場、LDK12畳以上、和室、都市ガス | ||
部屋の情報
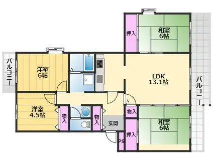
| 間取り | 4LDK | 専有面積 | 86m2 |
|---|---|---|---|
| 所在階 / 向き | 4階 / - | バルコニー面積 | - |
| 水道 / ガス | - | ||
| 設備 | バス・トイレ別、2階以上、テレビドアホン、追い焚き、システムキッチン、角部屋、バルコニー、フローリング、洗髪洗面化粧台、2口コンロ、コンロ:ガス、CATV、洗濯機:室内 | ||
| 当社物件ID | 141773333 | ||
建物の情報
| 建物名 | いぶき野3丁目7号棟 | ||
|---|---|---|---|
| 所在地 | 大阪府和泉市いぶき野 | ||
| 交通 | 南海泉北線 和泉中央駅 徒歩13分 南海泉北線 光明池駅 徒歩37分 JR阪和線 和泉府中駅 徒歩56分 | ||
| 階数 | 5階建 | 総戸数 | - |
| 築年月 | 1993年05月 / 築33年 | エレベーター | - |
| 駐車場 | 空有 8690円 | バイク置き場 | - |
| 駐輪場 | あり | 管理人/管理会社 | - |
| 周辺環境 | その他 和泉市立いぶき野小学校(小学校)まで190m その他 大阪いずみ市民生活協同組合 コープ和泉中央店(スーパー)まで673m その他 ディオ 和泉店(スーパー)まで813m その他 MEGAドン・キホーテ和泉中央店(その他)まで978m その他 ザ・ダイソー 和泉中央店(その他)まで616m その他 いぶきの病院(病院)まで698m | ||
| 建物種別 | マンション | 建物構造 | RC(鉄筋コンクリート) |
この部屋の取扱い不動産会社
| 会社名 | ホームメイトFC光明池店(株)モノリス(SUUMO経由) | ||
|---|---|---|---|
| 所在地 | 大阪府和泉市伏屋町3-7-9 ISビル101 | 交通 | - |
| 営業時間 | 10:00~18:30 | 定休日 | 年末年始 |
| 免許番号 | 大阪府知事62971 | 取引態様 | 仲介 |
| 不動産会社管理番号 | 100468812381 | 当社管理番号 | 89 |
| 所属団体 | (一社)大阪府宅地建物取引業協会会員 | ||
| 公正取引協議会 | (公社)近畿地区不動産公正取引協議会加盟 | ||
| 取扱い物件情報 | 物件詳細へ | ||
※各種情報と現状に差異がある場合は、現状優先となります。問い合わせをすることで、より詳しい条件、情報を確認する事ができます。
提供:ホームメイトFC光明池店(株)モノリス(SUUMO経由)
この物件が気になったら掲載期限まであと10日
いぶき野3丁目7号棟に条件(家賃・エリア)が近い物件一覧
| 写真 | 家賃 管理費等 | 敷金 礼金 | 間取り 専有面積 | 築年数 | 最寄り駅 所在地 | キープ | 詳細 |
|---|---|---|---|---|---|---|---|
マンション 南海電鉄南海本線 泉大津駅 徒歩7分 築36年(3DK/4階) | |||||||
![]() | 6.3万円 4,000円 | なし 10万円 | 3DK 62m2 | 築36年 | 南海電鉄南海本線 泉大津駅 徒歩7分 南海電鉄南海本線 松ノ浜駅 徒歩13分 阪和線 信太山駅 徒歩33分 大阪府泉大津市東雲町 | 詳細を見る | |
アパート ベル ハイネス(1LDK/2階) | |||||||
![]() | 8.65万円 3,900円 | なし 8.65万円 | 1LDK 42.59m2 | 築1年 | 阪和線 信太山駅 徒歩2分 阪和線 北信太駅 徒歩20分 阪和線 和泉府中駅 徒歩22分 大阪府和泉市池上町1丁目 | 詳細を見る | |
マンション 阪和線 鳳駅 徒歩3分 築1年(1K/7階) | |||||||
![]() | 7万円 2,000円 | なし 7万円 | 1K 25.65m2 | 築1年 | 阪和線 鳳駅 徒歩3分 阪和線 富木駅 徒歩20分 南海電鉄南海本線 羽衣駅 徒歩26分 大阪府堺市西区鳳東町4丁 | 詳細を見る | |
一戸建て 阪和線 和泉府中駅 徒歩7分 築29年(4LDK) | |||||||
![]() | 10万円 なし | 30万円 30万円 | 4LDK 84.44m2 | 築29年 | 阪和線 和泉府中駅 徒歩7分 阪和線 信太山駅 徒歩29分 南海電鉄南海本線 泉大津駅 徒歩39分 大阪府和泉市肥子町2丁目 | 詳細を見る | |
アパート カーサバウム(ワンルーム/1階) | |||||||
![]() | 6万円 なし | なし なし | ワンルーム 23.05m2 | 築25年 | 阪和線 鳳駅 徒歩8分 阪和線 津久野駅 徒歩16分 南海電鉄南海本線 浜寺公園駅 徒歩20分 大阪府堺市西区鳳北町2丁 | 詳細を見る | |
アパート メゾン ヴォロンテ Ⅰ(1LDK/1階) | |||||||
![]() | 7.6万円 3,900円 | なし 7.6万円 | 1LDK 46.5m2 | 築1年 | 阪和線 下松駅(大阪) 徒歩9分 阪和線 久米田駅 徒歩14分 南海電鉄南海本線 和泉大宮駅 徒歩22分 大阪府岸和田市額原町 | 詳細を見る | |
アパート 南海電鉄南海本線 泉大津駅 徒歩7分 築3年(1LDK/1階) | |||||||
![]() | 6.45万円 4,700円 | なし 8万円 | 1LDK 36m2 | 築3年 | 南海電鉄南海本線 泉大津駅 徒歩7分 南海電鉄南海本線 松ノ浜駅 徒歩14分 阪和線 和泉府中駅 徒歩29分 大阪府泉大津市東雲町 | 詳細を見る | |
アパート アクラス岸和田(1LDK/2階) | |||||||
![]() | 7.2万円 4,100円 | なし 7.2万円 | 1LDK 50m2 | 築6年 | 阪和線 久米田駅 徒歩24分 阪和線 下松駅(大阪) 徒歩26分 阪和線 東岸和田駅 徒歩43分 大阪府岸和田市岡山町 | 詳細を見る | |








