賃貸アパート
叡山電鉄 岩倉駅(京都) 徒歩7分 2階建 築49年の賃貸物件情報(2K/2階)
| 家賃 | 管理費等 | 敷金 | 礼金 | 間取り | 専有面積 |
|---|---|---|---|---|---|
| 3.6万円 | 3,000円 | なし | なし | 2K | 27m2 |
入居決定でお祝い金最大100,000円
Point
意外にきれいだった・・・ 叡山岩倉駅まで徒歩7分の2Kです。敷金、更新料ナシ。
提供:株式会社 京都ライフ 北大路店(賃貸スモッカ経由)

詳細情報 叡山電鉄 岩倉駅(京都) 徒歩7分 2階建 築49年
物件紹介
叡山電鉄岩倉駅から徒歩7分にあり、駅近で通勤通学に便利なアパートです。
このお部屋は2階以上に位置しているので、通行人や周囲の住人からの視線が気になりにくく、防犯面でも安心です。
バス・トイレ別の仕様で、のんびりお風呂タイムも楽しめます。
通信設備面では、インターネット接続が可能です(別途工事、契約料が必要な場合あり)。
このお部屋は2階以上に位置しているので、通行人や周囲の住人からの視線が気になりにくく、防犯面でも安心です。
バス・トイレ別の仕様で、のんびりお風呂タイムも楽しめます。
通信設備面では、インターネット接続が可能です(別途工事、契約料が必要な場合あり)。
お金・契約の情報
※「-」と表示されているものは、実際は料金が発生するものもございます。詳細はお問い合わせください。
| 家賃 | 3.6万円 | 管理費・共益費 | 3,000円 |
|---|---|---|---|
| 敷金 | なし | 礼金 | なし |
| 入居決定でお祝い金最大100,000円 | |||
| 保証金 | - | 償却・敷引 | - |
| 住宅保険料 | 住宅保険料あり | 更新料 | - |
| 契約形態 | - | 契約期間 | 2年 |
| 入居・引渡期間 | 即時 | 現況 | 空室 |
| 契約備考 | コンビニ、スーパーなど近くにあって便利ですよ。 更新料:無し 保証会社:利用必須 初回:月額賃料等の50%、更新時:1万円/1年(初回保証料:30000円) その他設備/条件:最上階の物件、即入居可 | ||
部屋の情報
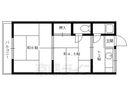
| 間取り | 2K | 専有面積 | 27m2 |
|---|---|---|---|
| 間取り詳細 | 和室(6帖)、和室(4.5帖)、K(2帖) | ||
| 所在階 / 向き | 2階 / 西 | バルコニー面積 | - |
| 水道 / ガス | ガス【都市】 | ||
| 設備 | バス・トイレ別、2階以上、インターネット対応、エアコン、バルコニー | ||
| 当社物件ID | 159557939 | ||
建物の情報
| 建物名 | 叡山電鉄 岩倉駅(京都) 徒歩7分 2階建 築49年 | ||
|---|---|---|---|
| 所在地 | 京都府京都市左京区岩倉中町 | ||
| 交通 | 叡山電鉄 岩倉駅(京都) 徒歩7分 叡山電鉄 八幡前駅(京都) 徒歩13分 | ||
| 階数 | 2階建 | 総戸数 | - |
| 築年月 | 1977年11月 / 築49年 | エレベーター | - |
| 駐車場 | - | バイク置き場 | - |
| 駐輪場 | あり | 管理人/管理会社 | - |
| 建物種別 | アパート | 建物構造 | 木造 |
この部屋の取扱い不動産会社
| 会社名 | 株式会社 京都ライフ 北大路店(賃貸スモッカ経由) | ||
|---|---|---|---|
| 所在地 | 京都市北区小山上総町11 | 交通 | - |
| 営業時間 | - | 定休日 | - |
| 免許番号 | 京都府知事(11)第6353号 | 取引態様 | 仲介 |
| 不動産会社管理番号 | kyotolife_27926-203-22 | 当社管理番号 | 463 |
| 所属団体 | 京都府宅地建物取引業協会\n公益社団法人近畿地区不動産公正取引協議会 | ||
| 公正取引協議会 | 全国宅地建物取引業保証協会 | ||
| 取扱い物件情報 | 物件詳細へ | ||
※各種情報と現状に差異がある場合は、現状優先となります。問い合わせをすることで、より詳しい条件、情報を確認する事ができます。
提供:株式会社 京都ライフ 北大路店(賃貸スモッカ経由)
この物件が気になったら掲載期限まであと6日
叡山電鉄 岩倉駅(京都) 徒歩7分 2階建 築49年に条件(家賃・エリア)が近い物件一覧
| 写真 | 家賃 管理費等 | 敷金 礼金 | 間取り 専有面積 | 築年数 | 最寄り駅 所在地 | キープ | 詳細 |
|---|---|---|---|---|---|---|---|
マンション 京都市烏丸線 松ケ崎駅(京都) 徒歩10分 築42年(1K/1階) | |||||||
![]() | 3.3万円 5,000円 | 5万円 なし | 1K 16.45m2 | 築42年 | 京都市烏丸線 松ケ崎駅(京都) 徒歩10分 叡山電鉄 茶山・京都芸術大学駅 徒歩13分 京都府京都市左京区松ケ崎桜木町 | 詳細を見る | |
マンション 近鉄京都線 向島駅 徒歩25分 築31年(1K/3階) | |||||||
![]() | 4万円 5,000円 | なし なし | 1K 22.58m2 | 築31年 | 近鉄京都線 向島駅 徒歩25分 近鉄京都線 小倉駅(京都) 徒歩27分 京都府宇治市槇島町 | 詳細を見る | |
マンション 叡山電鉄 一乗寺駅 徒歩8分 築38年(ワンルーム/2階) | |||||||
![]() | 3.5万円 5,000円 | 3.5万円 3.5万円 | ワンルーム 16m2 | 築38年 | 叡山電鉄 一乗寺駅 徒歩8分 京都市烏丸線 松ケ崎駅(京都) 徒歩25分 京都府京都市左京区一乗寺赤ノ宮町 | 詳細を見る | |
アパート 宮川ハウス(ワンルーム/1階) | |||||||
![]() | 3.4万円 なし | なし なし | ワンルーム 9.72m2 | 築53年 | 叡山電鉄叡山本線 元田中駅 徒歩7分 京都府京都市左京区北白川東平井町 | 詳細を見る | |
アパート 近鉄京都線 伊勢田駅 徒歩2分 築44年(1K/2階) | |||||||
![]() | 3.1万円 3,000円 | なし なし | 1K 23.41m2 | 築44年 | 近鉄京都線 伊勢田駅 徒歩2分 近鉄京都線 大久保駅(京都) 徒歩11分 京都府宇治市伊勢田町 | 詳細を見る | |
マンション 奈良線 JR小倉駅 徒歩8分 築53年(2DK/2階) | |||||||
![]() | 4.7万円 3,000円 | 5万円 10万円 | 2DK 43.74m2 | 築53年 | 奈良線 JR小倉駅 徒歩8分 近鉄京都線 小倉駅(京都) 徒歩18分 京都府宇治市宇治 | 詳細を見る | |
マンション 叡山電鉄 二軒茶屋駅(京都) 徒歩10分 築36年(1K/1階) | |||||||
![]() | 3.5万円 5,000円 | 5万円 なし | 1K 20.3m2 | 築36年 | 叡山電鉄 二軒茶屋駅(京都) 徒歩10分 叡山電鉄 京都精華大前駅 徒歩15分 京都府京都市左京区静市市原町 | 詳細を見る | |
アパート シャンクレール小桜(1DK/1階) | |||||||
![]() | 3.7万円 5,000円 | なし 5万円 | 1DK 29.34m2 | 築35年 | 山陰本線 園部駅 徒歩23分 山陰本線 吉富駅(京都) 徒歩47分 山陰本線 船岡駅(京都) 徒歩61分 京都府南丹市園部町小桜町2号 | 詳細を見る | |









