賃貸アパート
EDITION本蓮沼の賃貸物件情報(1LDK/1階)
| 家賃 | 管理費等 | 敷金 | 礼金 | 間取り | 専有面積 |
|---|---|---|---|---|---|
| 22万円 | 1万円 | 22万円 | 22万円 | 1LDK | 45.92m2 |
入居決定でお祝い金最大100,000円
Point
セキュリティ面は、TVインターホン・オートロックなど充実しているので安心して生活できます。
提供:ハウスコム東東京株式会社 成増店

詳細情報 EDITION本蓮沼
物件紹介
EDITION本蓮沼は東京都三田線本蓮沼駅から徒歩5分にあり、駅近で通勤通学に便利なアパートです。
建物のエントランスはオートロックがついており、インターホンにはTVモニタもついているため、相手の顔を確認してから来客対応することができます。
フローリングのお部屋なのでお掃除もラクラク。室内には人気のウォークインクローゼットがありますので、たくさんの荷物も効率的に収納ができます。キッチンはシステムキッチン仕様になっていますので、お料理好きの方にもぴったり。バス・トイレは別なので、のんびりお風呂タイムも楽しめるでしょう。また、雨の日でも浴室乾燥機を使えば、お洗濯も問題ありません。
通信設備面では、インターネットが無料で使えるので、月々の出費を抑えられるのも魅力です(別途工事等が必要な場合あり)。
建物にはエレベーターがついているので、重い荷物があっても安心。共用部には宅配ボックスが設定されているので、不在の時にも荷物を受け取ることができます。
コンビニまで徒歩7分の場所にあり、日用品や食料品のお買い物にも便利です。
建物のエントランスはオートロックがついており、インターホンにはTVモニタもついているため、相手の顔を確認してから来客対応することができます。
フローリングのお部屋なのでお掃除もラクラク。室内には人気のウォークインクローゼットがありますので、たくさんの荷物も効率的に収納ができます。キッチンはシステムキッチン仕様になっていますので、お料理好きの方にもぴったり。バス・トイレは別なので、のんびりお風呂タイムも楽しめるでしょう。また、雨の日でも浴室乾燥機を使えば、お洗濯も問題ありません。
通信設備面では、インターネットが無料で使えるので、月々の出費を抑えられるのも魅力です(別途工事等が必要な場合あり)。
建物にはエレベーターがついているので、重い荷物があっても安心。共用部には宅配ボックスが設定されているので、不在の時にも荷物を受け取ることができます。
コンビニまで徒歩7分の場所にあり、日用品や食料品のお買い物にも便利です。
お金・契約の情報
※「-」と表示されているものは、実際は料金が発生するものもございます。詳細はお問い合わせください。
| 家賃 | 22万円 | 管理費・共益費 | 1万円 |
|---|---|---|---|
| 敷金 | 22万円 | 礼金 | 22万円 |
| 入居決定でお祝い金最大100,000円 | |||
| 保証金 | - | 償却・敷引 | - |
| 住宅保険料 | 1円 | 更新料 | - |
| 保証会社利用 | 必須 | 保証会社名 | - |
| 保証会社費用 | - | 保証会社備考 | 初回50%+毎月月額総賃料の1% |
| 契約形態 | - | 契約期間 | 2年 |
| 入居・引渡期間 | 2026年02月下旬 | 現況 | - |
| 契約備考 | 月額(コンシェルジュ24 1100円 火災保険料 1000円) その他設備/条件:室内洗濯機置き場、ごみ出し24時間OK、独立洗面台、防犯カメラ、クローゼット、シューズボックス | ||
部屋の情報
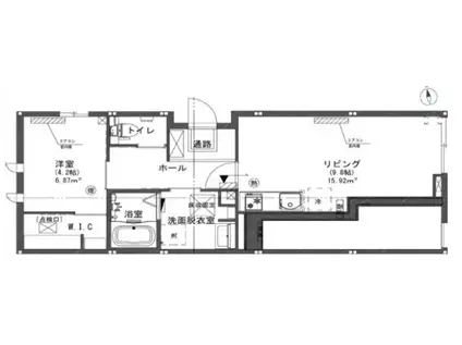
| 間取り | 1LDK | 専有面積 | 45.92m2 |
|---|---|---|---|
| 間取り詳細 | LDK(9.8帖)、洋室(4.2帖) | ||
| 所在階 / 向き | 1階 / - | バルコニー面積 | - |
| 水道 / ガス | 水道【公営】、ガス【都市】 | ||
| 設備 | バス・トイレ別、オートロック、テレビドアホン、宅配ボックス、浴室乾燥機、ウォークインクローゼット、インターネット対応、システムキッチン、エアコン、エレベーター、温水洗浄便座、バルコニー、フローリング、洗髪洗面化粧台、2口コンロ、コンロ:ガス、インターネット使用料無料、シャワー、給湯 | ||
| 当社物件ID | 160467535 | ||
建物の情報
| 建物名 | EDITION本蓮沼 | ||
|---|---|---|---|
| 所在地 | 東京都板橋区大原町 | ||
| 交通 | 東京都三田線 本蓮沼駅 徒歩5分 東京都三田線 志村坂上駅 徒歩15分 | ||
| 階数 | 3階建 | 総戸数 | - |
| 築年月 | 2026年02月 / 築1年 | エレベーター | あり |
| 駐車場 | - | バイク置き場 | あり |
| 駐輪場 | - | 管理人/管理会社 | - |
| 周辺環境 | コンビニ 徒歩7分(541m) 販売店 徒歩5分(386m) その他 ドラッグストア その他 公園 その他 銀行 その他 * | ||
| 建物種別 | アパート | 建物構造 | 軽量鉄骨造 |
この部屋の取扱い不動産会社
| 会社名 | ハウスコム埼玉株式会社 和光店 | ||
|---|---|---|---|
| 所在地 | 埼玉県和光市6-8大澤ビル1階 | 交通 | - |
| 営業時間 | 10:00~18:00 | 定休日 | 水曜定休 |
| 免許番号 | 埼玉県知事(1)第24888号 | 取引態様 | 仲介 |
| 不動産会社管理番号 | HC2-5397979-101-0104 | 当社管理番号 | 468 |
| 所属団体 | 、 | ||
| 取扱い物件情報 | 物件詳細へ | ||
※各種情報と現状に差異がある場合は、現状優先となります。問い合わせをすることで、より詳しい条件、情報を確認する事ができます。
提供:ハウスコム埼玉株式会社 和光店
この物件が気になったら掲載期限まであと5日
EDITION本蓮沼に条件(家賃・エリア)が近い物件一覧
| 写真 | 家賃 管理費等 | 敷金 礼金 | 間取り 専有面積 | 築年数 | 最寄り駅 所在地 | キープ | 詳細 |
|---|---|---|---|---|---|---|---|
マンション グランドゥール南長崎(2DK/4階) | |||||||
![]() | 14.2万円 5,000円 | 14.2万円 14.2万円 | 2DK 44.38m2 | 築31年 | 東京都大江戸線 落合南長崎駅 徒歩4分 東京都豊島区南長崎4丁目 | 詳細を見る | |
マンション ルーブル上板橋(2DK/2階) | |||||||
![]() | 15.5万円 1.3万円 | なし なし | 2DK 40.23m2 | 築1年 | 東武東上線 上板橋駅 徒歩10分 都営三田線 志村三丁目駅 徒歩17分 東武東上線 東武練馬駅 徒歩23分 東京都板橋区中台 | 詳細を見る | |
マンション ザ・パークハビオ目白タワー(1K/7階) | |||||||
![]() | 13.3万円 1.5万円 | 13.3万円 なし | 1K 25.97m2 | 築2年 | 西武池袋線 椎名町駅 徒歩4分 東京メトロ副都心線 要町駅 徒歩14分 JR山手線 目白駅 徒歩17分 東京都豊島区目白 | 詳細を見る | |
マンション アジールコート練馬中村橋(2SLDK/1階) | |||||||
![]() | 22.8万円 2万円 | なし なし | 2SLDK 61.18m2 | 築1年 | 西武池袋・豊島線 中村橋駅 徒歩7分 東京都練馬区中村3丁目 | 詳細を見る | |
アパート CLAIRE MUSASHI(2SLDK/2階) | |||||||
![]() | 22万円 なし | 22万円 22万円 | 2SLDK 77.85m2 | 築1年 | 西武新宿線 武蔵関駅 徒歩4分 西武新宿線 東伏見駅 徒歩18分 JR中央線 吉祥寺駅 徒歩39分 東京都練馬区関町北 | 詳細を見る | |
アパート ヴィラロイヤル滝野川(2DK/1階) | |||||||
![]() | 14万円 5,000円 | 14万円 14万円 | 2DK 46.54m2 | 築13年 | 都電荒川線 滝野川一丁目駅 徒歩3分 都営三田線 西巣鴨駅 徒歩10分 JR京浜東北線 王子駅 徒歩14分 東京都北区滝野川 | 詳細を見る | |
マンション リトルズトーンラシクラス平和公園(2LDK/3階) | |||||||
![]() | 20万円 8,000円 | なし なし | 2LDK 56.47m2 | 築9年 | 東武鉄道東上線 上板橋駅 徒歩5分 東京都板橋区常盤台4丁目 | 詳細を見る | |


/105x80-f1-q70-wp1)


/105x80-f1-q70-wp1)


