賃貸マンション
ビレッジハウス双葉1号棟の賃貸物件情報(2LDK/4階)
| 家賃 | 管理費等 | 敷金 | 礼金 | 間取り | 専有面積 |
|---|---|---|---|---|---|
| 3.41万円 | なし | なし | なし | 2LDK | 55.99m2 |
入居決定でお祝い金最大100,000円
- 保証金
- -
- 償却・敷引
- -
- 築年数
- 築43年
- 所在階
- 4階
- 向き
- 南
Point
まずはお問い合わせ!
不動産会社は街のプロ、あなたに合った物件がきっと見つかります。
提供:ビレッジハウス住まい相談センター

詳細情報 ビレッジハウス双葉1号棟
物件紹介
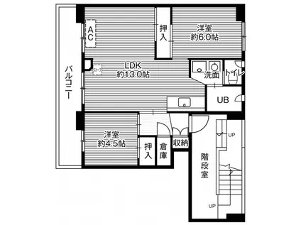
このお部屋は2階以上に位置しているので、通行人や周囲の住人からの視線が気になりにくく、防犯面でも安心です。
人気の南向きのお部屋。角部屋でもあるため、周囲の居住者の生活音も気になりにくい場所です。バス・トイレ別の仕様で、のんびりお風呂タイムも楽しめます。
通信設備面では、インターネット接続が可能です(別途工事、契約料が必要な場合あり)。
人気の南向きのお部屋。角部屋でもあるため、周囲の居住者の生活音も気になりにくい場所です。バス・トイレ別の仕様で、のんびりお風呂タイムも楽しめます。
通信設備面では、インターネット接続が可能です(別途工事、契約料が必要な場合あり)。
お金・契約の情報
※「-」と表示されているものは、実際は料金が発生するものもございます。詳細はお問い合わせください。
| 家賃 | 3.41万円 | 管理費・共益費 | なし |
|---|---|---|---|
| 敷金 | なし | 礼金 | なし |
| フリーレント | 0ヶ月 | ||
| 入居決定でお祝い金最大100,000円 | |||
| 保証金 | - | 償却・敷引 | - |
| 住宅保険料 | 1万円(2年) | 更新料 | - |
| 保証会社利用 | - | 保証会社名 | - |
| 保証会社費用 | - | 保証会社備考 | - |
| 契約形態 | - | 契約期間 | - |
| 入居・引渡期間 | - | 現況 | 空室 |
| 入居可能条件 | 2人入居可、高齢者相談、学生可 | ||
| 契約備考 | 契約種類:普通契約、24時間緊急対応、洗面台 | ||
部屋の情報
| 間取り | 2LDK | 専有面積 | 55.99m2 |
|---|---|---|---|
| 所在階 / 向き | 4階 / 南 | バルコニー面積 | - |
| 水道 / ガス | - | ||
| 設備 | バス・トイレ別、追い焚き、光ファイバー対応、角部屋、バルコニー、トランクルーム、給湯、洗濯機:室内 | ||
| 当社物件ID | 102660776 | ||
建物の情報
| 建物名 | ビレッジハウス双葉1号棟 | ||
|---|---|---|---|
| 所在地 | 北海道北見市双葉町4丁目1-5 | ||
| 交通 | 石北本線 東相内駅 バス乗車時間:10分 三輪バス停で下車 徒歩20分 石北本線 西北見駅 バス乗車時間:10分 最寄りバス停で下車 徒歩52分 石北本線 北見駅 バス乗車時間:20分 松原医院バス停で下車 徒歩61分 | ||
| 階数 | 5階建 | 総戸数 | - |
| 築年月 | 1983年11月 / 築43年 | エレベーター | - |
| 駐車場 | 空有 円 | バイク置き場 | - |
| 駐輪場 | - | 管理人/管理会社 | 日勤 |
| 建物種別 | マンション | 建物構造 | RC(鉄筋コンクリート) |
この部屋の取扱い不動産会社
| 会社名 | ビレッジハウス住まい相談センター | ||
|---|---|---|---|
| 所在地 | 愛知県名古屋市中区大須4-10-32 上前津KDビル5階 | 交通 | 名城線「上前津駅」徒歩3分 |
| 営業時間 | 平日:9:00-18:30/土日祝:9:00-18:00 | 定休日 | 年末年始休業:2025年12月27日~2026年1月4日 |
| 免許番号 | 東京都知事(2)第100758号 | 取引態様 | 貸主 |
| 不動産会社管理番号 | 00013436665 | 当社管理番号 | 459 |
| 所属団体 | 公益社団法人東京都宅地建物取引業協会会員 日本賃貸住宅管理協会会員 | ||
| 取扱い物件情報 | 物件詳細へ | ||
※各種情報と現状に差異がある場合は、現状優先となります。問い合わせをすることで、より詳しい条件、情報を確認する事ができます。
提供:ビレッジハウス住まい相談センター
この物件が気になったら掲載期限まであと12日
ビレッジハウス双葉1号棟に条件(家賃・エリア)が近い物件一覧
| 写真 | 家賃 管理費等 | 敷金 礼金 | 間取り 専有面積 | 築年数 | 最寄り駅 所在地 | キープ | 詳細 |
|---|---|---|---|---|---|---|---|
アパート フィールドハウスⅡ(1DK/1階) | |||||||
![]() | 3.95万円 500円 | なし なし | 1DK 29.81m2 | 築30年 | JR石北本線 北見駅 徒歩22分 JR石北本線 柏陽駅 徒歩56分 JR石北本線 西北見駅 徒歩58分 北海道北見市常盤町 | 詳細を見る | |
アパート コーポときわ(1DK/2階) | |||||||
![]() | 3.4万円 2,200円 | なし なし | 1DK 27.13m2 | 築36年 | JR石北本線 北見駅 徒歩15分 JR石北本線 柏陽駅 徒歩50分 JR石北本線 西北見駅 徒歩54分 北海道北見市常盤町 | 詳細を見る | |
アパート アパートメントS(1K/2階) | |||||||
![]() | 3.7万円 1,000円 | なし なし | 1K 29m2 | 築32年 | JR石北本線 北見駅 徒歩31分 JR石北本線 西北見駅 徒歩37分 JR石北本線 柏陽駅 徒歩65分 北海道北見市栄町 | 詳細を見る | |
アパート アンビエンテ大内(1LDK/1階) | |||||||
![]() | 5万円 なし | 5万円 なし | 1LDK 43.33m2 | 築26年 | JR石北本線 北見駅 徒歩30分 JR石北本線 西北見駅 徒歩38分 北海道北見市北進町 | 詳細を見る | |
アパート 加納マンションB(1DK/1階) | |||||||
![]() | 2.8万円 なし | 2.8万円 なし | 1DK 26.46m2 | 築41年 | 北海道北見市美芳町9丁目 | 詳細を見る | |
アパート メゾン・ド 愛(1DK/2階) | |||||||
![]() | 2.1万円 1,100円 | 2.1万円 なし | 1DK 22.68m2 | 築42年 | 北海道北見市北進町6丁目 | 詳細を見る | |
アパート カレッジタウン10(ワンルーム/2階) | |||||||
![]() | 4.4万円 2,000円 | なし なし | ワンルーム 25.54m2 | 築8年 | 北海道北見市柏陽町 | 詳細を見る | |
アパート アーバンライフII(ワンルーム/1階) | |||||||
![]() | 3.7万円 なし | 3.7万円 なし | ワンルーム 26.5m2 | 築29年 | JR石北本線 北見駅 徒歩13分 JR石北本線 柏陽駅 徒歩47分 JR石北本線 西北見駅 徒歩52分 北海道北見市北六条西 | 詳細を見る | |






/105x80-f1-q70-wp1)
/105x80-f1-q70-wp1)
/105x80-f1-q70-wp1)
