賃貸マンション
ホーユウパレス加古川の賃貸物件情報(4LDK/8階)
| 家賃 | 管理費等 | 敷金 | 礼金 | 間取り | 専有面積 |
|---|---|---|---|---|---|
| 8万円 | なし | なし | 16万円 | 4LDK | 77.46m2 |
入居決定でお祝い金最大100,000円
- 保証金
- 8.0万円
- 償却・敷引
- -
- 築年数
- 築38年
- 所在階
- 8階
- 向き
- -
Point
初期費用がない!入居審査が不安!等も当社スタッフが様々なお悩みに対応します♪
提供:(株)SMILEXIA(SUUMO経由)

詳細情報 ホーユウパレス加古川
物件紹介
ホーユウパレス加古川は山陽電鉄本線別府駅から徒歩11分にあるマンションです。
このお部屋は2階以上に位置しているので、通行人や周囲の住人からの視線が気になりにくく、防犯面でも安心。インターホンにはTVモニタもついているため、相手の顔を確認してから来客対応することができます。
人気の南向き・フローリングのお部屋。角部屋でもあるため、周囲の居住者の生活音も気になりにくい場所です。キッチンはシステムキッチン仕様になっていますので、お料理好きの方にもぴったり。また、バス・トイレは別で、のんびりお風呂タイムも楽しめるでしょう。
建物にはエレベーターがついているので、重い荷物があっても安心。
このお部屋は2階以上に位置しているので、通行人や周囲の住人からの視線が気になりにくく、防犯面でも安心。インターホンにはTVモニタもついているため、相手の顔を確認してから来客対応することができます。
人気の南向き・フローリングのお部屋。角部屋でもあるため、周囲の居住者の生活音も気になりにくい場所です。キッチンはシステムキッチン仕様になっていますので、お料理好きの方にもぴったり。また、バス・トイレは別で、のんびりお風呂タイムも楽しめるでしょう。
建物にはエレベーターがついているので、重い荷物があっても安心。
お金・契約の情報
※「-」と表示されているものは、実際は料金が発生するものもございます。詳細はお問い合わせください。
| 家賃 | 8万円 | 管理費・共益費 | なし |
|---|---|---|---|
| 敷金 | なし | 礼金 | 16万円 |
| 入居決定でお祝い金最大100,000円 | |||
| 保証金 | 8.0万円 | 償却・敷引 | - |
| 住宅保険料 | - | 更新料 | - |
| 契約形態 | - | 契約期間 | - |
| 入居・引渡期間 | - | 現況 | - |
| 契約備考 | 合計1.1万円(内訳:鍵交換費11000円) 4LDK 二人入居可 損保【要】 バストイレ別、バルコニー、ガスコンロ対応、フローリング、シャワー付洗面台、室内洗濯置、シューズボックス、角住戸、温水洗浄便座、洗面所独立、閑静な住宅地、対面式キッチン、分譲賃貸、二人入居相談、2駅利用可、3駅以上利用可、都市ガス、IT重説対応物件、高齢者歓迎、初期費用カード決済可 入居日:'26年3月上旬 | ||
部屋の情報
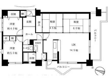
| 間取り | 4LDK | 専有面積 | 77.46m2 |
|---|---|---|---|
| 所在階 / 向き | 8階 / - | バルコニー面積 | - |
| 水道 / ガス | - | ||
| 設備 | バス・トイレ別、2階以上、温水洗浄便座、角部屋、バルコニー、フローリング、洗髪洗面化粧台、コンロ:ガス、洗濯機:室内 | ||
| 当社物件ID | 2844952 | ||
建物の情報
| 建物名 | ホーユウパレス加古川 | ||
|---|---|---|---|
| 所在地 | 兵庫県加古川市別府町東町 | ||
| 交通 | 山陽電鉄本線 別府駅(兵庫) 徒歩11分 山陽電鉄本線 浜の宮駅 徒歩29分 山陽電鉄本線 播磨町駅 徒歩34分 | ||
| 階数 | 9階建 | 総戸数 | - |
| 築年月 | 1988年03月 / 築38年 | エレベーター | - |
| 駐車場 | なし | バイク置き場 | - |
| 駐輪場 | - | 管理人/管理会社 | - |
| 周辺環境 | その他 加古川市立別府小学校(小学校)まで305m その他 加古川市立別府中学校(中学校)まで1557m | ||
| 建物種別 | マンション | 建物構造 | RC(鉄筋コンクリート) |
この部屋の取扱い不動産会社
| 会社名 | (株)Library Homes(SUUMO経由) | ||
|---|---|---|---|
| 所在地 | 兵庫県姫路市南畝町2-97 | 交通 | - |
| 営業時間 | 10:00~19:00 | 定休日 | (年中無休) |
| 免許番号 | 兵庫県知事451441 | 取引態様 | 仲介 |
| 不動産会社管理番号 | 100485315808 | 当社管理番号 | 89 |
| 所属団体 | (公社)全日本不動産協会兵庫県本部会員 | ||
| 公正取引協議会 | (公社)近畿地区不動産公正取引協議会加盟 | ||
| 取扱い物件情報 | 物件詳細へ | ||
※各種情報と現状に差異がある場合は、現状優先となります。問い合わせをすることで、より詳しい条件、情報を確認する事ができます。
提供:(株)Library Homes(SUUMO経由)
この物件が気になったら掲載期限まであと10日
ホーユウパレス加古川に条件(家賃・エリア)が近い物件一覧
| 写真 | 家賃 管理費等 | 敷金 礼金 | 間取り 専有面積 | 築年数 | 最寄り駅 所在地 | キープ | 詳細 |
|---|---|---|---|---|---|---|---|
アパート パジェール・アン(1SK/1階) | |||||||
![]() | 4.9万円 3,500円 | なし 5.9万円 | 1SK 31.65m2 | 築12年 | 山陽電鉄網干線 夢前川駅 徒歩13分 JR山陽本線 英賀保駅 徒歩14分 山陽電鉄網干線 西飾磨駅 徒歩14分 兵庫県姫路市飾磨区英賀宮町 | 詳細を見る | |
一戸建て 兵庫県姫路市 築55年(4K) | |||||||
![]() | 5万円 なし | 5万円 5万円 | 4K 56.3m2 | 築55年 | 兵庫県姫路市書写1716-1 | 詳細を見る | |
アパート グランドールⅡ(1LDK/1階) | |||||||
![]() | 7.5万円 3,000円 | なし 7.5万円 | 1LDK 44.2m2 | 新築 | 神戸電鉄粟生線 広野ゴルフ場前駅 徒歩10分 神戸電鉄粟生線 志染駅 徒歩19分 兵庫県三木市志染町東自由が丘1丁目 | 詳細を見る | |
アパート メゾン グレーヌ王子町Ⅰ(1K/1階) | |||||||
![]() | 5.4万円 3,300円 | なし なし | 1K 32.25m2 | 築1年 | 神戸電鉄粟生線 葉多駅 徒歩16分 神戸電鉄粟生線 小野駅(兵庫) 徒歩19分 加古川線 粟生駅 徒歩34分 兵庫県小野市 | 詳細を見る | |
アパート 高浜BLD2(2LDK/3階) | |||||||
![]() | 5.3万円 なし | なし 5.3万円 | 2LDK 54m2 | 築22年 | 山陽電気鉄道網干線 広畑駅 徒歩6分 兵庫県姫路市広畑区高浜町3丁目 | 詳細を見る | |
アパート レトア網干Ⅰ(3DK/1階) | |||||||
![]() | 6万円 1,000円 | なし 12万円 | 3DK 50.08m2 | 築32年 | 山陽本線 網干駅 徒歩9分 山陽電気鉄道網干線 山陽網干駅 徒歩32分 山陽電気鉄道網干線 平松駅 徒歩41分 兵庫県姫路市網干区和久 | 詳細を見る | |
アパート メゾンドコンフォート(1LDK/2階) | |||||||
![]() | 6.1万円 5,000円 | なし 6.1万円 | 1LDK 40.07m2 | 築15年 | 山陽電鉄本線 妻鹿駅 徒歩13分 山陽電鉄網干線 飾磨駅 徒歩18分 山陽電鉄本線 手柄駅 徒歩46分 兵庫県姫路市飾磨区中島 | 詳細を見る | |
マンション エスペレール2(3LDK/1階) | |||||||
![]() | 4.8万円 3,000円 | なし なし | 3LDK 60.88m2 | 築29年 | 山陽電気鉄道網干線 西飾磨駅 徒歩4分 山陽本線 英賀保駅 徒歩16分 山陽電気鉄道網干線 夢前川駅 徒歩23分 兵庫県姫路市飾磨区今在家4丁目 | 詳細を見る | |









