賃貸マンション
FLOWERGARDEN暮の賃貸物件情報(1K/3階)
| 家賃 | 管理費等 | 敷金 | 礼金 | 間取り | 専有面積 |
|---|---|---|---|---|---|
| 9.7万円 | 8,000円 | なし | 9.7万円 | 1K | 18m2 |
入居決定でお祝い金最大100,000円
- 保証金
- -
- 償却・敷引
- -
- 築年数
- 築1年
- 所在階
- 3階
- 向き
- 南
Point
当物件は初期費用分割払い可(クレジットカード決済も可)/お客様のご希望に合わせた方法(店頭、オンライン等)で物件をご提案いたします。初期費用のお見積りや入居希望日のご相談もお気軽にお問い合わせください
提供:アエラス駒込店 (株)アエラス.FR(SUUMO経由)

詳細情報 FLOWERGARDEN暮
物件紹介
FLOWERGARDEN暮はJR山手線日暮里駅から徒歩6分にあり、駅近で通勤通学に便利なマンションです。
このお部屋は2階以上に位置しているので、通行人や周囲の住人からの視線が気になりにくく、防犯面でも安心。建物のエントランスはオートロックがついており、インターホンにはTVモニタもついているため、相手の顔を確認してから来客対応することができます。
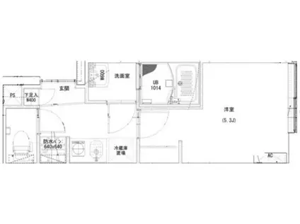
人気の南向きのお部屋。キッチンはシステムキッチン仕様になっていますので、お料理好きの方にもぴったり。バス・トイレは別なので、のんびりお風呂タイムも楽しめるでしょう。また、雨の日でも浴室乾燥機を使えば、お洗濯も問題ありません。
通信設備面では、インターネットが無料で使えるので、月々の出費を抑えられるのも魅力です(別途工事等が必要な場合あり)。
共用部には宅配ボックスが設定されているので、不在の時にも荷物を受け取ることができます。また、ペット飼育の相談ができますので、あなたの大切な家族の一員も快適に暮らせるか、ぜひ確認してみてください。
このお部屋は2階以上に位置しているので、通行人や周囲の住人からの視線が気になりにくく、防犯面でも安心。建物のエントランスはオートロックがついており、インターホンにはTVモニタもついているため、相手の顔を確認してから来客対応することができます。
人気の南向きのお部屋。キッチンはシステムキッチン仕様になっていますので、お料理好きの方にもぴったり。バス・トイレは別なので、のんびりお風呂タイムも楽しめるでしょう。また、雨の日でも浴室乾燥機を使えば、お洗濯も問題ありません。
通信設備面では、インターネットが無料で使えるので、月々の出費を抑えられるのも魅力です(別途工事等が必要な場合あり)。
共用部には宅配ボックスが設定されているので、不在の時にも荷物を受け取ることができます。また、ペット飼育の相談ができますので、あなたの大切な家族の一員も快適に暮らせるか、ぜひ確認してみてください。
お金・契約の情報
※「-」と表示されているものは、実際は料金が発生するものもございます。詳細はお問い合わせください。
| 家賃 | 9.7万円 | 管理費・共益費 | 8,000円 |
|---|---|---|---|
| 敷金 | なし | 礼金 | 9.7万円 |
| 入居決定でお祝い金最大100,000円 | |||
| 保証金 | - | 償却・敷引 | - |
| 住宅保険料 | - | 更新料 | - |
| 保証会社利用 | 必須 | 保証会社名 | - |
| 保証会社費用 | - | 保証会社備考 | 保証会社利用必 初回:賃料等の50%、月額:賃料等の1.2%、引落手数料:440円 |
| 契約形態 | - | 契約期間 | - |
| 入居・引渡期間 | 即時 | 現況 | - |
| 入居可能条件 | ペット相談 | ||
| 契約備考 | 南公園クリニックまで145m/台東根岸二郵便局まで425m/更新事務手数料 11000円/短期解約違約2年未満に解約の場合は解約時に賃料等2ヵ月分の違約あり/安心サポート 16500円/退去時清掃費¥55000 合計4.95万円(内訳:カギ交換費用33000円/安心サポート16500円) 1K ペット相談 普通借家2年 損保【要】 バストイレ別、エアコン、TVインターホン、浴室乾燥機、オートロック、室内洗濯置、システムキッチン、南向き、洗面所独立、洗面化粧台、宅配ボックス、光ファイバー、外壁タイル張り、即入居可、敷金不要、防犯カメラ、IHクッキングヒーター、2沿線利用可、ネット使用料不要、保証金不要、外壁コンクリート、3駅以上利用可、駅徒歩10分以内、敷地内ごみ置き場、都市ガス、玄関収納、高速ネット対応、礼金1ヶ月、初期費用カード決済可 | ||
部屋の情報
| 間取り | 1K | 専有面積 | 18m2 |
|---|---|---|---|
| 所在階 / 向き | 3階 / 南 | バルコニー面積 | - |
| 水道 / ガス | - | ||
| 設備 | バス・トイレ別、2階以上、オートロック、テレビドアホン、宅配ボックス、浴室乾燥機、インターネット対応、システムキッチン、エアコン、南向き、洗髪洗面化粧台、コンロ:IH、インターネット使用料無料、洗濯機:室内 | ||
| 当社物件ID | 160504806 | ||
建物の情報
| 建物名 | FLOWERGARDEN暮 | ||
|---|---|---|---|
| 所在地 | 東京都荒川区東日暮里 | ||
| 交通 | JR山手線 日暮里駅 徒歩6分 JR山手線 鶯谷駅 徒歩10分 JR常磐線 三河島駅 徒歩13分 | ||
| 階数 | 4階建 | 総戸数 | 12戸 |
| 築年月 | 2025年05月 / 築1年 | エレベーター | - |
| 駐車場 | 近隣 256m27500円 | バイク置き場 | - |
| 駐輪場 | - | 管理人/管理会社 | - |
| 周辺環境 | その他 ステーションガーデンタワー(ショッピングセンター)まで546m その他 マルエツプチ 東日暮里店(スーパー)まで234m その他 ファミリーマート根岸二丁目店(コンビニ)まで221m その他 どらっぐぱぱす 東日暮里リーデンスタワー店(ドラッグストア)まで204m その他 ゲオ鶯谷店(レンタルビデオ)まで1185m その他 日高屋 日暮里南口店(飲食店)まで425m | ||
| 建物種別 | マンション | 建物構造 | RC(鉄筋コンクリート) |
この部屋の取扱い不動産会社
| 会社名 | アエラス駒込店 (株)アエラス.FR(SUUMO経由) | ||
|---|---|---|---|
| 所在地 | 東京都豊島区駒込1-42-5 EK駒込ビル 1階・2階 | 交通 | - |
| 営業時間 | 10:00~19:00(時間外対応出来る場合有り) | 定休日 | 毎週水曜日 |
| 免許番号 | 国土交通大臣10206 | 取引態様 | 仲介 |
| 不動産会社管理番号 | 100491728167 | 当社管理番号 | 89 |
| 所属団体 | (公社)全日本不動産協会東京都本部会員 | ||
| 公正取引協議会 | (公社)首都圏不動産公正取引協議会加盟 | ||
| 取扱い物件情報 | 物件詳細へ | ||
※各種情報と現状に差異がある場合は、現状優先となります。問い合わせをすることで、より詳しい条件、情報を確認する事ができます。
提供:アエラス駒込店 (株)アエラス.FR(SUUMO経由)
この物件が気になったら掲載期限まであと10日
FLOWERGARDEN暮に条件(家賃・エリア)が近い物件一覧
| 写真 | 家賃 管理費等 | 敷金 礼金 | 間取り 専有面積 | 築年数 | 最寄り駅 所在地 | キープ | 詳細 |
|---|---|---|---|---|---|---|---|
アパート レオパレスアドヴァン(1K/1階) | |||||||
![]() | 7.5万円 5,500円 | なし 7.5万円 | 1K 19.87m2 | 築22年 | つくばエクスプレス 八潮駅 徒歩27分 東京メトロ千代田線 北綾瀬駅 徒歩30分 東京都足立区神明 | 詳細を見る | |
マンション HW.HILLS綾瀬(1LDK/5階) | |||||||
![]() | 15.6万円 1万円 | なし なし | 1LDK 40.05m2 | 築1年 | 東京メトロ千代田線 綾瀬駅 徒歩6分 JR常磐線 綾瀬駅 徒歩6分 つくばエクスプレス 青井駅 徒歩20分 東京都足立区東綾瀬 | 詳細を見る | |
マンション フリージア梅島(1LDK/5階) | |||||||
![]() | 8.9万円 1.2万円 | 8.9万円 8.9万円 | 1LDK 29.28m2 | 築1年 | 東武伊勢崎線 梅島駅 徒歩10分 東武伊勢崎線 五反野駅 徒歩10分 東武伊勢崎線 小菅駅 徒歩22分 東京都足立区梅田 | 詳細を見る | |
マンション アクサス文京関口(1K/7階) | |||||||
![]() | 12万円 1.5万円 | なし なし | 1K 24.09m2 | 築18年 | 東京メトロ有楽町線 江戸川橋駅 徒歩2分 東京メトロ東西線 神楽坂駅 徒歩8分 都営大江戸線 牛込神楽坂駅 徒歩16分 東京都文京区関口 | 詳細を見る | |
マンション 親水令和(1LDK/2階) | |||||||
![]() | 11万円 1万円 | なし 11万円 | 1LDK 40.78m2 | 築7年 | 日暮里・舎人ライナー 見沼代親水公園駅 徒歩1分 日暮里・舎人ライナー 舎人駅 徒歩11分 日暮里・舎人ライナー 舎人公園駅 徒歩26分 東京都足立区舎人 | 詳細を見る | |
アパート 梅田六丁目8 DESIGNERS DIIRA(1DK/3階) | |||||||
![]() | 8.6万円 4,000円 | なし 8.6万円 | 1DK 27.12m2 | 築1年 | 東武伊勢崎線 梅島駅 徒歩10分 東武伊勢崎線 西新井駅 徒歩16分 東武伊勢崎線 五反野駅 徒歩20分 東京都足立区梅田 | 詳細を見る | |
マンション エスメラルダ日暮里(1K/2階) | |||||||
![]() | 10.5万円 5,000円 | なし 10.5万円 | 1K 20.04m2 | 築2年 | JR常磐線 三河島駅 徒歩7分 JR山手線 日暮里駅 徒歩10分 都電荒川線 荒川区役所前駅 徒歩16分 東京都荒川区東日暮里 | 詳細を見る | |
マンション J.GRAN COURT 浅草(1DK/9階) | |||||||
![]() | 13.9万円 1万円 | 13.9万円 なし | 1DK 26.26m2 | 築3年 | つくばエクスプレス 浅草駅(つくばEXP) 徒歩7分 東京メトロ銀座線 浅草駅(東武・都営・メトロ) 徒歩8分 都営浅草線 浅草駅(東武・都営・メトロ) 徒歩8分 東京都台東区浅草 | 詳細を見る | |









