賃貸一戸建て
姫新線 余部駅 徒歩34分 3階建 築23年の賃貸物件情報(8LDK)
| 家賃 | 管理費等 | 敷金 | 礼金 | 間取り | 専有面積 |
|---|---|---|---|---|---|
| 22万円 | 3,000円 | なし | 22万円 | 8LDK | 143.85m2 |
入居決定でお祝い金最大100,000円
Point
全室鍵付き個室・多人数の入居相談可能!
提供:株式会社Classpia(賃貸スモッカ経由)

詳細情報 姫新線 余部駅 徒歩34分 3階建 築23年
物件紹介
姫新線余部駅から徒歩34分にある一戸建てです。
人気の角部屋で周囲の居住者の生活音も気になりにくく、また、フローリングのお部屋なのでお掃除もラクラク。キッチンはシステムキッチン仕様になっていますので、お料理好きの方にもぴったり。また、バス・トイレは別で、のんびりお風呂タイムも楽しめるでしょう。
通信設備面では、インターネット接続が可能です(別途工事、契約料が必要な場合あり)。
コンビニまで徒歩15分の場所にあり、日用品や食料品のお買い物にも便利です。
人気の角部屋で周囲の居住者の生活音も気になりにくく、また、フローリングのお部屋なのでお掃除もラクラク。キッチンはシステムキッチン仕様になっていますので、お料理好きの方にもぴったり。また、バス・トイレは別で、のんびりお風呂タイムも楽しめるでしょう。
通信設備面では、インターネット接続が可能です(別途工事、契約料が必要な場合あり)。
コンビニまで徒歩15分の場所にあり、日用品や食料品のお買い物にも便利です。
お金・契約の情報
※「-」と表示されているものは、実際は料金が発生するものもございます。詳細はお問い合わせください。
| 家賃 | 22万円 | 管理費・共益費 | 3,000円 |
|---|---|---|---|
| 敷金 | なし | 礼金 | 22万円 |
| 入居決定でお祝い金最大100,000円 | |||
| 保証金 | - | 償却・敷引 | - |
| 住宅保険料 | 住宅保険料あり | 更新料 | - |
| 契約形態 | - | 契約期間 | 2年 |
| 入居・引渡期間 | 即時 | 現況 | 空室 |
| 契約備考 | 家賃保証会社利用必須 初回保証料 月額家賃の50% 更新料 10000円/年 初期費用の分割可能!クレジットカード決済可(分割最大24回払いOK)クリーニング代5.5万円 全室鍵付き個室・多人数の入居相談可能! 更新料:無し その他設備/条件:メゾネット、コンロ2口以上、独立洗面台、即入居可 | ||
部屋の情報
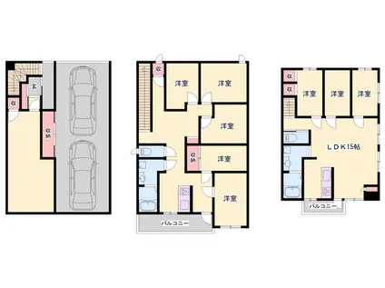
| 間取り | 8LDK | 専有面積 | 143.85m2 |
|---|---|---|---|
| 間取り詳細 | LDK(15帖) | ||
| 所在階 / 向き | 1階 / 南東 | バルコニー面積 | - |
| 水道 / ガス | - | ||
| 設備 | バス・トイレ別、インターネット対応、システムキッチン、カウンターキッチン、エアコン、温水洗浄便座、角部屋、バルコニー、フローリング、オール電化、コンロ:IH、洗濯機:室内 | ||
| 当社物件ID | 159632824 | ||
建物の情報
| 建物名 | 姫新線 余部駅 徒歩34分 3階建 築23年 | ||
|---|---|---|---|
| 所在地 | 兵庫県姫路市御立西1 | ||
| 交通 | 姫新線 余部駅 徒歩34分 山陽電気鉄道本線 山陽姫路駅 徒歩62分 | ||
| 階数 | 3階建 | 総戸数 | - |
| 築年月 | 2003年10月 / 築23年 | エレベーター | - |
| 駐車場 | 空有 | バイク置き場 | あり |
| 駐輪場 | あり | 管理人/管理会社 | - |
| 建物種別 | 一戸建て | 建物構造 | 鉄骨造 |
この部屋の取扱い不動産会社
| 会社名 | 株式会社Roomos(賃貸スモッカ経由) | ||
|---|---|---|---|
| 所在地 | 兵庫県姫路市北条1丁目48番地8 | 交通 | - |
| 営業時間 | - | 定休日 | - |
| 免許番号 | 兵庫県知事免許(2)第451577号 | 取引態様 | 仲介 |
| 不動産会社管理番号 | roomos_1055491848 | 当社管理番号 | 463 |
| 所属団体 | (公社)全日本不動産協会\n公益社団法人近畿地区不動産公正取引協議会 | ||
| 公正取引協議会 | (公社)不動産保証協会 | ||
| 取扱い物件情報 | 物件詳細へ | ||
※各種情報と現状に差異がある場合は、現状優先となります。問い合わせをすることで、より詳しい条件、情報を確認する事ができます。
提供:株式会社Roomos(賃貸スモッカ経由)
この物件が気になったら掲載期限まであと5日
姫新線 余部駅 徒歩34分 3階建 築23年に条件(家賃・エリア)が近い物件一覧
| 写真 | 家賃 管理費等 | 敷金 礼金 | 間取り 専有面積 | 築年数 | 最寄り駅 所在地 | キープ | 詳細 |
|---|---|---|---|---|---|---|---|
一戸建て 姫新線 余部駅 徒歩43分 築28年(4SLDK) | |||||||
![]() | 15万円 なし | 15万円 30万円 | 4SLDK 182.1m2 | 築28年 | 姫新線 余部駅 徒歩43分 姫新線 播磨高岡駅 徒歩48分 兵庫県姫路市書写 | 詳細を見る | |
一戸建て 山陽本線 加古川駅 徒歩18分 築1年(4LDK) | |||||||
![]() | 13.8万円 なし | なし 27.6万円 | 4LDK 95.98m2 | 築1年 | 山陽本線 加古川駅 徒歩18分 加古川線 日岡駅 徒歩19分 兵庫県加古川市加古川町中津 | 詳細を見る | |
一戸建て 山陽電気鉄道本線 山陽姫路駅 徒歩26分 築13年(2SLDK) | |||||||
![]() | 14万円 なし | 18万円 36万円 | 2SLDK 102m2 | 築13年 | 山陽電気鉄道本線 山陽姫路駅 徒歩26分 東海道・山陽新幹線 姫路駅 徒歩29分 山陽本線 姫路駅 徒歩29分 兵庫県姫路市岩端町 | 詳細を見る | |
マンション エスリード姫路(2LDK/3階) | |||||||
![]() | 16万円 なし | なし 32万円 | 2LDK 62.93m2 | 築11年 | 山陽本線 姫路駅 徒歩5分 兵庫県姫路市東駅前町 | 詳細を見る | |
一戸建て 山陽電気鉄道本線 手柄駅 徒歩12分 築13年(3LDK) | |||||||
![]() | 13.5万円 なし | 13.5万円 27万円 | 3LDK 76.56m2 | 築13年 | 山陽電気鉄道本線 手柄駅 徒歩12分 山陽本線 姫路駅 徒歩18分 山陽電気鉄道本線 山陽姫路駅 徒歩19分 兵庫県姫路市三左衛門堀東の町 | 詳細を見る | |
一戸建て 山陽電気鉄道本線 高砂駅(兵庫) 徒歩8分 築48年(5LDK) | |||||||
![]() | 18.7万円 なし | 18.7万円 37.4万円 | 5LDK 119.42m2 | 築48年 | 山陽電気鉄道本線 高砂駅(兵庫) 徒歩8分 山陽電気鉄道本線 荒井駅(兵庫) 徒歩10分 山陽電気鉄道本線 伊保駅 徒歩28分 兵庫県高砂市高砂町朝日町2丁目 | 詳細を見る | |
マンション アルファステイツ神屋町(3LDK/7階) | |||||||
![]() | 16万円 2万円 | 10万円 20万円 | 3LDK 81.82m2 | 築13年 | JR播但線 京口駅 徒歩12分 JR山陽本線 東姫路駅 徒歩14分 JR播但線 姫路駅 徒歩18分 兵庫県姫路市神屋町 | 詳細を見る | |
一戸建て 山陽電気鉄道本線 山陽姫路駅 徒歩26分 築9年(3LDK) | |||||||
![]() | 17万円 なし | なし 34万円 | 3LDK 96.04m2 | 築9年 | 山陽電気鉄道本線 山陽姫路駅 徒歩26分 山陽本線 姫路駅 徒歩27分 播但線 京口駅 徒歩28分 兵庫県姫路市八代本町1 | 詳細を見る | |








