賃貸マンション
天神プレイスウエストの賃貸物件情報(1LDK/13階)
| 家賃 | 管理費等 | 敷金 | 礼金 | 間取り | 専有面積 |
|---|---|---|---|---|---|
| 11.8万円 | 5,000円 | なし | 23.6万円 | 1LDK | 45.58m2 |
入居決定でお祝い金最大100,000円
- 保証金
- -
- 償却・敷引
- -
- 築年数
- 築18年
- 所在階
- 13階
- 向き
- -
Point
☆大牟田線薬院駅・七隈線天神駅まで徒歩8分圏内!!24時間警備員が常駐しているので安心して生活していただけます!設備も充実しているところがうれしいですね♪お問い合わせはメイクコーポレーションまで☆
提供:(株)メイク・コーポレーション天神店(SUUMO経由)

詳細情報 天神プレイスウエスト
物件紹介
天神プレイスウエストは地下鉄七隈線薬院駅から徒歩7分にあり、駅近で通勤通学に便利なマンションです。
このお部屋は2階以上に位置しているので、通行人や周囲の住人からの視線が気になりにくく、防犯面でも安心。建物のエントランスはオートロックがついており、インターホンにはTVモニタもついているため、相手の顔を確認してから来客対応することができます。
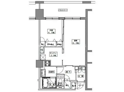
おしゃれなデザイナーズ物件!人気の南向きのお部屋。また、フローリングなのでお掃除もラクラク。キッチンはシステムキッチン仕様になっていますので、お料理好きの方にもぴったり。バス・トイレは別なので、のんびりお風呂タイムも楽しめるでしょう。また、雨の日でも浴室乾燥機を使えば、お洗濯も問題ありません。
通信設備面では、インターネット接続が可能です。また、BSアンテナ・CSアンテナがありCATVにも対応しているので、おうち時間も充実するでしょう(別途工事、契約料が必要な場合あり)。
建物にはエレベーターがついているので、重い荷物があっても安心。共用部には宅配ボックスが設定されているので、不在の時にも荷物を受け取ることができます。
このお部屋は2階以上に位置しているので、通行人や周囲の住人からの視線が気になりにくく、防犯面でも安心。建物のエントランスはオートロックがついており、インターホンにはTVモニタもついているため、相手の顔を確認してから来客対応することができます。
おしゃれなデザイナーズ物件!人気の南向きのお部屋。また、フローリングなのでお掃除もラクラク。キッチンはシステムキッチン仕様になっていますので、お料理好きの方にもぴったり。バス・トイレは別なので、のんびりお風呂タイムも楽しめるでしょう。また、雨の日でも浴室乾燥機を使えば、お洗濯も問題ありません。
通信設備面では、インターネット接続が可能です。また、BSアンテナ・CSアンテナがありCATVにも対応しているので、おうち時間も充実するでしょう(別途工事、契約料が必要な場合あり)。
建物にはエレベーターがついているので、重い荷物があっても安心。共用部には宅配ボックスが設定されているので、不在の時にも荷物を受け取ることができます。
お金・契約の情報
※「-」と表示されているものは、実際は料金が発生するものもございます。詳細はお問い合わせください。
| 家賃 | 11.8万円 | 管理費・共益費 | 5,000円 |
|---|---|---|---|
| 敷金 | なし | 礼金 | 23.6万円 |
| 入居決定でお祝い金最大100,000円 | |||
| 保証金 | - | 償却・敷引 | - |
| 住宅保険料 | - | 更新料 | - |
| 保証会社利用 | 必須 | 保証会社名 | - |
| 保証会社費用 | - | 保証会社備考 | 保証会社利用必 50% |
| 契約形態 | 定期借家 | 契約期間 | 2年 |
| 入居・引渡期間 | - | 現況 | - |
| 契約備考 | 合計2.2万円(内訳:鍵交換代22000円) 町費300円/月 1LDK 単身者可/事務所利用不可 定期借家2年 損保【2万円2年】 バストイレ別、エアコン、ガスコンロ対応、クロゼット、フローリング、シャワー付洗面台、TVインターホン、浴室乾燥機、オートロック、室内洗濯置、陽当り良好、シューズボックス、システムキッチン、追焚機能浴室、温水洗浄便座、脱衣所、エレベーター、洗面所独立、洗面化粧台、駐輪場、宅配ボックス、2面採光、BS・CS、敷金不要、3口以上コンロ、防犯カメラ、IHクッキングヒーター、24時間有人管理、オートバス、24時間緊急通報システム、オール電化、全居室フローリング、デザイナーズ、2沿線利用可、エアコン2台、ディンプルキー、ネット専用回線、駅まで平坦、コインランドリー、24時間換気システム、平坦地、免震構造、ペット専用設備、エレベーター2基、可動間仕切り、2駅利用可、駅徒歩10分以内、AED付、敷地内ごみ置き場、自走式駐車場、LDK12畳以上、洗面所にドア、三面鏡付洗面化粧台、間接照明、礼金2ヶ月、IT重説対応物件、初期費用カード決済可、通風良好 入居日:'26年3月中旬 | ||
部屋の情報
| 間取り | 1LDK | 専有面積 | 45.58m2 |
|---|---|---|---|
| 所在階 / 向き | 13階 / - | バルコニー面積 | - |
| 水道 / ガス | - | ||
| 設備 | バス・トイレ別、2階以上、オートロック、テレビドアホン、宅配ボックス、浴室乾燥機、追い焚き、インターネット対応、システムキッチン、エアコン、エレベーター、温水洗浄便座、フローリング、洗髪洗面化粧台、オール電化、2口コンロ、コンロ:IH、デザイナーズ、CSアンテナ、BSアンテナ、洗濯機:室内 | ||
| 当社物件ID | 18199330 | ||
建物の情報
| 建物名 | 天神プレイスウエスト | ||
|---|---|---|---|
| 所在地 | 福岡県福岡市中央区今泉 | ||
| 交通 | 地下鉄七隈線 薬院駅 徒歩7分 西鉄天神大牟田線 薬院駅 徒歩7分 地下鉄七隈線 天神南駅 徒歩8分 | ||
| 階数 | 17階建 | 総戸数 | - |
| 築年月 | 2008年04月 / 築18年 | エレベーター | あり |
| 駐車場 | 空有 33000円 | バイク置き場 | - |
| 駐輪場 | あり | 管理人/管理会社 | - |
| 周辺環境 | その他 にしてつストアReganetMarche(レガネットマルシェ(スーパー)まで529m その他 株式会社たべごろ百旬館ふくや(スーパー)まで728m その他 福岡渡辺通郵便局(郵便局)まで394m その他 西日本シティ銀行 西鉄薬院駅(銀行)まで491m その他 福岡銀行渡辺通支店(銀行)まで721m その他 福岡三越(ショッピングセンター)まで450m | ||
| 建物種別 | マンション | 建物構造 | RC(鉄筋コンクリート) |
この部屋の取扱い不動産会社
| 会社名 | (株)メイク・コーポレーション天神店(SUUMO経由) | ||
|---|---|---|---|
| 所在地 | 福岡県福岡市中央区天神3-4-13 | 交通 | - |
| 営業時間 | 10:00~19:00 | 定休日 | 無休 |
| 免許番号 | 福岡県知事14769 | 取引態様 | 仲介 |
| 不動産会社管理番号 | 100477719238 | 当社管理番号 | 89 |
| 所属団体 | (公社)福岡県宅地建物取引業協会会員 | ||
| 公正取引協議会 | (一社)九州不動産公正取引協議会加盟 | ||
| 取扱い物件情報 | 物件詳細へ | ||
※各種情報と現状に差異がある場合は、現状優先となります。問い合わせをすることで、より詳しい条件、情報を確認する事ができます。
提供:(株)メイク・コーポレーション天神店(SUUMO経由)
この物件が気になったら掲載期限まであと11日
天神プレイスウエストに条件(家賃・エリア)が近い物件一覧
| 写真 | 家賃 管理費等 | 敷金 礼金 | 間取り 専有面積 | 築年数 | 最寄り駅 所在地 | キープ | 詳細 |
|---|---|---|---|---|---|---|---|
タウンハウス 春日市伯玄町ヘーベルメゾン(2LDK) | |||||||
![]() | 10.5万円 なし | なし 21万円 | 2LDK 55.09m2 | 築1年 | 鹿児島本線 南福岡駅 徒歩17分 鹿児島本線 春日駅(福岡) 徒歩18分 西鉄天神大牟田線 桜並木駅 徒歩23分 福岡県春日市伯玄町2丁目 | 詳細を見る | |
アパート メゾンドY(2LDK/2階) | |||||||
![]() | 7.1万円 なし | なし 14.2万円 | 2LDK 62.8m2 | 築22年 | 鹿児島本線 南福岡駅 徒歩10分 鹿児島本線 春日駅(福岡) 徒歩15分 西鉄天神大牟田線 雑餉隈駅 徒歩18分 福岡県春日市大和町2丁目 | 詳細を見る | |
マンション メゾン・ド・ファミーユ(2LDK/1階) | |||||||
![]() | 7.5万円 3,000円 | なし 7.5万円 | 2LDK 50m2 | 築27年 | 鹿児島本線 春日駅(福岡) 徒歩11分 鹿児島本線 南福岡駅 徒歩13分 西鉄天神大牟田線 春日原駅 徒歩18分 福岡県春日市宝町2丁目 | 詳細を見る | |
アパート プロスペール春日Ⅲ(1LDK/1階) | |||||||
![]() | 7.2万円 2,900円 | なし 9.2万円 | 1LDK 52.38m2 | 築6年 | 西鉄天神大牟田線 白木原駅 徒歩33分 西鉄天神大牟田線 下大利駅 徒歩34分 福岡県春日市惣利1丁目 | 詳細を見る | |
マンション アンピール天神東(2LDK/8階) | |||||||
| 18万円 なし | 18万円 36万円 | 2LDK 59.97m2 | 築22年 | 福岡市七隈線 天神南駅 徒歩8分 福岡市七隈線 渡辺通駅 徒歩9分 福岡市箱崎線 中洲川端駅 徒歩13分 福岡県福岡市中央区春吉2丁目 | 詳細を見る | ||
マンション クレアールガーデンズ春日(3LDK/2階) | |||||||
![]() | 12万円 なし | 12万円 24万円 | 3LDK 85.39m2 | 築26年 | JR博多南線 博多南駅 徒歩28分 JR鹿児島本線 春日駅(福岡) 徒歩33分 JR鹿児島本線 南福岡駅 徒歩39分 福岡県春日市昇町 | 詳細を見る | |
マンション アリビオ春日野(2LDK/3階) | |||||||
![]() | 10.7万円 6,000円 | なし 21.4万円 | 2LDK 67.05m2 | 築1年 | 西鉄天神大牟田線 白木原駅 徒歩21分 鹿児島本線 大野城駅 徒歩22分 西鉄天神大牟田線 下大利駅 徒歩33分 福岡県春日市 | 詳細を見る | |
アパート S・KハウスA棟(2DK/1階) | |||||||
![]() | 7.5万円 5,000円 | なし 15万円 | 2DK 50.12m2 | 築24年 | 鹿児島本線 大野城駅 徒歩4分 福岡県大野城市 | 詳細を見る | |








