賃貸マンション
ベルエールまるしん5の賃貸物件情報(ワンルーム/4階)
| 家賃 | 管理費等 | 敷金 | 礼金 | 間取り | 専有面積 |
|---|---|---|---|---|---|
| 1.5万円 | なし | なし | なし | ワンルーム | 21m2 |
入居決定でお祝い金最大100,000円
Point
バス・トイレセパレート(温水洗浄便座付き)、入居者用インターネット無料
提供:(有)スマイルホーム(SUUMO経由)

詳細情報 ベルエールまるしん5
物件紹介
ベルエールまるしん5はJR高徳線志度駅から徒歩32分にあるマンションです。
このお部屋は2階以上に位置しているので、通行人や周囲の住人からの視線が気になりにくく、防犯面でも安心。インターホンにはTVモニタもついているため、相手の顔を確認してから来客対応することができます。
人気の南向きのお部屋。バス・トイレ別の仕様で、のんびりお風呂タイムも楽しめます。
通信設備面では、インターネットが無料で使えるので、月々の出費を抑えられるのも魅力です(別途工事等が必要な場合あり)。
このお部屋は2階以上に位置しているので、通行人や周囲の住人からの視線が気になりにくく、防犯面でも安心。インターホンにはTVモニタもついているため、相手の顔を確認してから来客対応することができます。
人気の南向きのお部屋。バス・トイレ別の仕様で、のんびりお風呂タイムも楽しめます。
通信設備面では、インターネットが無料で使えるので、月々の出費を抑えられるのも魅力です(別途工事等が必要な場合あり)。
お金・契約の情報
※「-」と表示されているものは、実際は料金が発生するものもございます。詳細はお問い合わせください。
| 家賃 | 1.5万円 | 管理費・共益費 | なし |
|---|---|---|---|
| 敷金 | なし | 礼金 | なし |
| 入居決定でお祝い金最大100,000円 | |||
| 保証金 | - | 償却・敷引 | - |
| 住宅保険料 | - | 更新料 | - |
| 保証会社利用 | 必須 | 保証会社名 | 日本賃貸保証 |
| 保証会社費用 | - | 保証会社備考 | 日本賃貸保証利用必 12000円 |
| 契約形態 | 定期借家 | 契約期間 | 2年 |
| 入居・引渡期間 | 即時 | 現況 | - |
| 契約備考 | 巡回管理 口座振替費用220円、退去時クリーニング費25000円。 ワンルーム 単身者限定 定期借家2年 損保【1.5万円2年】 バストイレ別、バルコニー、エアコン、TVインターホン、温水洗浄便座、即入居可、最上階、IHクッキングヒーター、照明付、クッションフロア、ネット使用料不要、初期費用10万円以下、外壁コンクリート、高台に立地、南西向き、当社管理物件、プロパンガス、通風良好 | ||
部屋の情報
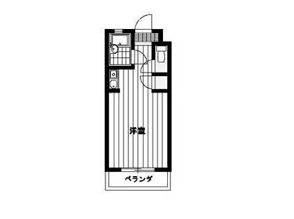
| 間取り | ワンルーム | 専有面積 | 21m2 |
|---|---|---|---|
| 所在階 / 向き | 4階 / 南西 | バルコニー面積 | - |
| 水道 / ガス | - | ||
| 設備 | バス・トイレ別、2階以上、テレビドアホン、インターネット対応、エアコン、温水洗浄便座、南向き、バルコニー、コンロ:IH、インターネット使用料無料 | ||
| 当社物件ID | 22980038 | ||
建物の情報
| 建物名 | ベルエールまるしん5 | ||
|---|---|---|---|
| 所在地 | 香川県さぬき市鴨庄 | ||
| 交通 | JR高徳線 志度駅 徒歩32分 高松琴平電鉄志度線 琴電志度駅 徒歩32分 | ||
| 階数 | 4階建 | 総戸数 | - |
| 築年月 | 1993年03月 / 築33年 | エレベーター | - |
| 駐車場 | 空有 3000円 | バイク置き場 | - |
| 駐輪場 | - | 管理人/管理会社 | - |
| 周辺環境 | その他 医療法人日昭会岡病院(病院)まで467m その他 ほっともっと志度店(飲食店)まで1237m その他 ファッションセンターしまむら志度店(ショッピングセンター)まで1298m その他 マルナカ志度店(スーパー)まで1383m その他 百十四銀行志度支店(銀行)まで1541m その他 くすりのレデイ志度店(ドラッグストア)まで1688m | ||
| 建物種別 | マンション | 建物構造 | RC(鉄筋コンクリート) |
この部屋の取扱い不動産会社
| 会社名 | (有)スマイルホーム(SUUMO経由) | ||
|---|---|---|---|
| 所在地 | 香川県さぬき市志度 912-12 | 交通 | - |
| 営業時間 | 10:00~18:00 | 定休日 | 木曜日 |
| 免許番号 | 香川県知事3715 | 取引態様 | 貸主 |
| 不動産会社管理番号 | 100077408601 | 当社管理番号 | 89 |
| 所属団体 | (公社)香川県宅地建物取引業協会会員 | ||
| 公正取引協議会 | 四国地区不動産公正取引協議会加盟 | ||
| 取扱い物件情報 | 物件詳細へ | ||
※各種情報と現状に差異がある場合は、現状優先となります。問い合わせをすることで、より詳しい条件、情報を確認する事ができます。
提供:(有)スマイルホーム(SUUMO経由)
この物件が気になったら掲載期限まであと3日
ベルエールまるしん5に条件(家賃・エリア)が近い物件一覧
| 写真 | 家賃 管理費等 | 敷金 礼金 | 間取り 専有面積 | 築年数 | 最寄り駅 所在地 | キープ | 詳細 |
|---|---|---|---|---|---|---|---|
マンション メゾンイトセII(ワンルーム/4階) | |||||||
![]() | 1.9万円 3,000円 | なし なし | ワンルーム 20.25m2 | 築30年 | JR高徳線 栗林公園北口駅 徒歩11分 JR高徳線 昭和町駅(香川) 徒歩14分 高松琴平電鉄琴平線 瓦町駅 徒歩26分 香川県高松市宮脇町 | 詳細を見る | |
マンション シャトレルセイント(1K/3階) | |||||||
![]() | 1.9万円 3,000円 | なし なし | 1K 19.44m2 | 築34年 | 高松琴平電鉄琴平線 三条駅(高松) 徒歩19分 JR高徳線 栗林公園北口駅 徒歩30分 香川県高松市紙町 | 詳細を見る | |
マンション メゾンイトセⅡ(ワンルーム/1階) | |||||||
![]() | 1.9万円 3,000円 | なし なし | ワンルーム 20.25m2 | 築30年 | 高徳線 栗林公園北口駅 徒歩11分 香川県高松市宮脇町2丁目 | 詳細を見る | |
アパート ローランドミューズ(ワンルーム/2階) | |||||||
![]() | 2.4万円 3,000円 | なし なし | ワンルーム 18.81m2 | 築49年 | 高松琴平電鉄長尾線 花園駅(高松) 徒歩1分 香川県高松市花園町2丁目 | 詳細を見る | |
マンション マリオン志度 207(1K/2階) | |||||||
![]() | 1万円 8,800円 | なし なし | 1K 16.98m2 | 築38年 | 高松琴平電鉄志度線 琴電志度駅 徒歩20分 香川県さぬき市志度 | 詳細を見る | |
マンション コンコート志度(1K/5階) | |||||||
![]() | 2.4万円 4,000円 | なし なし | 1K 22.8m2 | 築32年 | 高松琴平電鉄志度線 琴電志度駅 徒歩7分 JR高徳線 志度駅 徒歩8分 高松琴平電鉄志度線 原駅(高松) 徒歩19分 香川県さぬき市志度 | 詳細を見る | |
アパート 三木メゾンI(1K/1階) | |||||||
![]() | 1.7万円 3,000円 | なし なし | 1K 20.67m2 | 築40年 | 高松琴平電鉄長尾線 平木駅 徒歩9分 高松琴平電鉄長尾線 農学部前駅 徒歩12分 高松琴平電鉄長尾線 学園通り駅 徒歩15分 香川県木田郡三木町大字平木 | 詳細を見る | |
マンション アルファ藤塚町(ワンルーム/4階) | |||||||
![]() | 2万円 3,000円 | なし なし | ワンルーム 19.8m2 | 築38年 | JR高徳線 栗林駅 徒歩5分 高松琴平電鉄琴平線 瓦町駅 徒歩9分 高松琴平電鉄琴平線 栗林公園駅 徒歩9分 香川県高松市藤塚町 | 詳細を見る | |




/105x80-f1-q70-wp1)
/105x80-f1-q70-wp1)
/105x80-f1-q70-wp1)


