賃貸マンション
GROWS NISHI YOKOHAMAIIの賃貸物件情報(1K/7階)
| 家賃 | 管理費等 | 敷金 | 礼金 | 間取り | 専有面積 |
|---|---|---|---|---|---|
| 7.4万円 | 1万円 | なし | なし | 1K | 22.04m2 |
入居決定でお祝い金最大100,000円
- 保証金
- -
- 償却・敷引
- -
- 築年数
- 築11年
- 所在階
- 7階
- 向き
- -
Point
まずはお問い合わせ!
不動産会社は街のプロ、あなたに合った物件がきっと見つかります。
提供:(株)GOIng(SUUMO経由)

詳細情報 GROWS NISHI YOKOHAMAII
物件紹介
GROWS NISHI YOKOHAMAIIは相鉄本線西横浜駅から徒歩8分にあり、駅近で通勤通学に便利なマンションです。
このお部屋は2階以上に位置しているので、通行人や周囲の住人からの視線が気になりにくく、防犯面でも安心。建物のエントランスはオートロックがついており、インターホンにはTVモニタもついているため、相手の顔を確認してから来客対応することができます。
おしゃれなデザイナーズ物件!フローリングのお部屋なのでお掃除もラクラク。キッチンはシステムキッチン仕様になっていますので、お料理好きの方にもぴったり。バス・トイレは別なので、のんびりお風呂タイムも楽しめるでしょう。また、雨の日でも浴室乾燥機を使えば、お洗濯も問題ありません。
通信設備面では、インターネット接続が可能です。また、BSアンテナ・CSアンテナもありますので、おうち時間も充実するでしょう(別途工事、契約料が必要な場合あり)。
建物にはエレベーターがついているので、重い荷物があっても安心。共用部には宅配ボックスが設定されているので、不在の時にも荷物を受け取ることができます。
このお部屋は2階以上に位置しているので、通行人や周囲の住人からの視線が気になりにくく、防犯面でも安心。建物のエントランスはオートロックがついており、インターホンにはTVモニタもついているため、相手の顔を確認してから来客対応することができます。
おしゃれなデザイナーズ物件!フローリングのお部屋なのでお掃除もラクラク。キッチンはシステムキッチン仕様になっていますので、お料理好きの方にもぴったり。バス・トイレは別なので、のんびりお風呂タイムも楽しめるでしょう。また、雨の日でも浴室乾燥機を使えば、お洗濯も問題ありません。
通信設備面では、インターネット接続が可能です。また、BSアンテナ・CSアンテナもありますので、おうち時間も充実するでしょう(別途工事、契約料が必要な場合あり)。
建物にはエレベーターがついているので、重い荷物があっても安心。共用部には宅配ボックスが設定されているので、不在の時にも荷物を受け取ることができます。
お金・契約の情報
※「-」と表示されているものは、実際は料金が発生するものもございます。詳細はお問い合わせください。
| 家賃 | 7.4万円 | 管理費・共益費 | 1万円 |
|---|---|---|---|
| 敷金 | なし | 礼金 | なし |
| 入居決定でお祝い金最大100,000円 | |||
| 保証金 | - | 償却・敷引 | - |
| 住宅保険料 | - | 更新料 | - |
| 保証会社利用 | 利用可 | 保証会社名 | - |
| 保証会社費用 | - | 保証会社備考 | 保証会社利用可 保証会社加入 |
| 契約形態 | - | 契約期間 | - |
| 入居・引渡期間 | 相談 | 現況 | - |
| 契約備考 | 合計4.4万円(内訳:鍵交換代4.4万円) 更新料 新賃料1.00ヶ月分 1K 普通借家2年 損保【要】 礼金不要、最上階、敷金不要、2沿線利用可、保証金不要、耐火構造、2駅利用可、3駅以上利用可、駅徒歩10分以内、敷金・礼金不要、保証会社利用可 | ||
部屋の情報
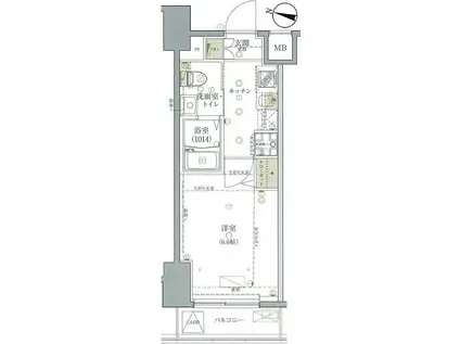
| 間取り | 1K | 専有面積 | 22.04m2 |
|---|---|---|---|
| 所在階 / 向き | 7階 / - | バルコニー面積 | - |
| 水道 / ガス | - | ||
| 設備 | 2階以上 | ||
| 当社物件ID | 160521813 | ||
建物の情報
| 建物名 | GROWS NISHI YOKOHAMAII | ||
|---|---|---|---|
| 所在地 | 神奈川県横浜市西区藤棚町 | ||
| 交通 | 相鉄本線 西横浜駅 徒歩8分 相鉄本線 天王町駅 徒歩14分 京急本線 戸部駅 徒歩18分 | ||
| 階数 | 7階建 | 総戸数 | - |
| 築年月 | 2016年02月 / 築11年 | エレベーター | - |
| 駐車場 | なし | バイク置き場 | - |
| 駐輪場 | - | 管理人/管理会社 | - |
| 周辺環境 | その他 まいばすけっと 西横浜駅東店(スーパー)まで763m その他 スーパーマルヤマ三春台店(スーパー)まで951m その他 まいばすけっと 洪福寺前店(スーパー)まで1311m その他 セブンイレブン 横浜中央2丁目店(コンビニ)まで591m その他 ローソン 横浜戸部町三丁目店(コンビニ)まで1529m その他 セブンイレブン 横浜戸部店(コンビニ)まで1753m | ||
| 建物種別 | マンション | 建物構造 | RC(鉄筋コンクリート) |
この部屋の取扱い不動産会社
| 会社名 | (株)リーベルホーム(SUUMO経由) | ||
|---|---|---|---|
| 所在地 | 神奈川県横須賀市日の出町1-8-25 H.Kビル3階 | 交通 | - |
| 営業時間 | 9時~20時 | 定休日 | 無し |
| 免許番号 | 神奈川県知事32206 | 取引態様 | 仲介 |
| 不動産会社管理番号 | 100492284186 | 当社管理番号 | 89 |
| 所属団体 | (公社)全日本不動産協会神奈川県本部会員 | ||
| 公正取引協議会 | (公社)首都圏不動産公正取引協議会加盟 | ||
| 取扱い物件情報 | 物件詳細へ | ||
※各種情報と現状に差異がある場合は、現状優先となります。問い合わせをすることで、より詳しい条件、情報を確認する事ができます。
提供:(株)リーベルホーム(SUUMO経由)
この物件が気になったら掲載期限まであと11日
GROWS NISHI YOKOHAMAIIに条件(家賃・エリア)が近い物件一覧
| 写真 | 家賃 管理費等 | 敷金 礼金 | 間取り 専有面積 | 築年数 | 最寄り駅 所在地 | キープ | 詳細 |
|---|---|---|---|---|---|---|---|
マンション コートブランシェ(1K/6階) | |||||||
![]() | 9万円 1.5万円 | なし なし | 1K 20.55m2 | 築9年 | JR南武線 武蔵新城駅 徒歩7分 JR南武線 武蔵中原駅 徒歩10分 神奈川県川崎市中原区上小田中 | 詳細を見る | |
マンション ペルシモン西海岸(2LDK/2階) | |||||||
![]() | 10.5万円 5,000円 | 10.5万円 10.5万円 | 2LDK 60m2 | 築28年 | JR東海道本線 辻堂駅 徒歩20分 神奈川県藤沢市辻堂西海岸 | 詳細を見る | |
アパート メープルリーフ(ワンルーム/1階) | |||||||
![]() | 5.9万円 3,000円 | なし 5.9万円 | ワンルーム 20.49m2 | 築9年 | 京急本線 追浜駅 徒歩5分 京急逗子線 六浦駅 徒歩23分 シーサイドライン 金沢八景駅 徒歩25分 神奈川県横須賀市鷹取 | 詳細を見る | |
アパート リーヴェルポート横浜保土ヶ谷II(1K/2階) | |||||||
![]() | 6.1万円 3,000円 | なし なし | 1K 18.43m2 | 築13年 | JR横須賀線 保土ケ谷駅 徒歩10分 京急本線 井土ケ谷駅 徒歩15分 相鉄本線 天王町駅 徒歩24分 神奈川県横浜市保土ケ谷区岩井町 | 詳細を見る | |
マンション コスモグラシア川崎(ワンルーム/8階) | |||||||
![]() | 10.4万円 2.3万円 | なし 5.2万円 | ワンルーム 14.4m2 | 築5年 | JR京浜東北線 川崎駅 徒歩4分 京急本線 京急川崎駅 徒歩10分 JR南武線 尻手駅 徒歩11分 神奈川県川崎市幸区中幸町 | 詳細を見る | |
マンション グランドボナール桜木町(2DK/3階) | |||||||
![]() | 9万円 1万円 | 9万円 9万円 | 2DK 39.1m2 | 築35年 | 京急本線 戸部駅 徒歩9分 みなとみらい線 みなとみらい駅 徒歩11分 JR京浜東北線 桜木町駅 徒歩12分 神奈川県横浜市西区戸部町 | 詳細を見る | |
アパート コーポ中沢(2K/2階) | |||||||
![]() | 5.2万円 なし | 5.2万円 なし | 2K 29.16m2 | 築43年 | 京急本線 京急大津駅 徒歩3分 京急本線 堀ノ内駅 徒歩11分 京急本線 馬堀海岸駅 徒歩17分 神奈川県横須賀市大津町 | 詳細を見る | |
マンション ロックス新百合ヶ丘(1K/2階) | |||||||
![]() | 8.3万円 1万円 | 8.3万円 8.3万円 | 1K 25.04m2 | 築6年 | 小田急線 新百合ケ丘駅 徒歩13分 小田急多摩線 新百合ケ丘駅 徒歩13分 小田急多摩線 五月台駅 徒歩16分 神奈川県川崎市麻生区上麻生 | 詳細を見る | |








