賃貸アパート
アン ルミエール IIの賃貸物件情報(1LDK/1階)
| 家賃 | 管理費等 | 敷金 | 礼金 | 間取り | 専有面積 |
|---|---|---|---|---|---|
| 6.95万円 | 2,300円 | なし | 6.95万円 | 1LDK | 51.73m2 |
入居決定でお祝い金最大100,000円
- 保証金
- -
- 償却・敷引
- -
- 築年数
- 築11年
- 所在階
- 1階
- 向き
- 南
- 交通
- つくばエクスプレス 万博記念公園駅(茨城) 徒歩10分
- 所在地
- 茨城県つくば市
アン ルミエール II
[地図を表示]
Point
インターネット無料!防犯カメラなど設備充実の1LDK!LDK16帖でゆったり使えます。つくばエクスプレス「万博記念公園」駅まで徒歩10分です
提供:香陵住販(株)つくば研究学園支店(SUUMO経由)

詳細情報 アン ルミエール II
物件紹介
アン ルミエール IIはつくばエクスプレス万博記念公園駅から徒歩10分にあり、駅近で通勤通学に便利なアパートです。
このお部屋のインターホンにはTVモニタがついているため、相手の顔を確認してから来客対応することができます。
人気の南向き・フローリングのお部屋。角部屋でもあるため、周囲の居住者の生活音も気になりにくい場所です。バス・トイレ別の仕様で、のんびりお風呂タイムも楽しめます。また、浴室乾燥機を使えば、雨の日でもお洗濯は問題ありません。
通信設備面では、インターネットが無料で使えるので、月々の出費を抑えられるのも魅力です。また、BSアンテナがありCATVにも対応しているので、おうち時間も充実するでしょう(別途工事、BS・CATVの契約料等が必要な場合あり)。
このお部屋のインターホンにはTVモニタがついているため、相手の顔を確認してから来客対応することができます。
人気の南向き・フローリングのお部屋。角部屋でもあるため、周囲の居住者の生活音も気になりにくい場所です。バス・トイレ別の仕様で、のんびりお風呂タイムも楽しめます。また、浴室乾燥機を使えば、雨の日でもお洗濯は問題ありません。
通信設備面では、インターネットが無料で使えるので、月々の出費を抑えられるのも魅力です。また、BSアンテナがありCATVにも対応しているので、おうち時間も充実するでしょう(別途工事、BS・CATVの契約料等が必要な場合あり)。
お金・契約の情報
※「-」と表示されているものは、実際は料金が発生するものもございます。詳細はお問い合わせください。
| 家賃 | 6.95万円 | 管理費・共益費 | 2,300円 |
|---|---|---|---|
| 敷金 | なし | 礼金 | 6.95万円 |
| 入居決定でお祝い金最大100,000円 | |||
| 保証金 | - | 償却・敷引 | - |
| 住宅保険料 | - | 更新料 | - |
| 契約形態 | - | 契約期間 | - |
| 入居・引渡期間 | - | 現況 | - |
| 契約備考 | ウエルシアつくば万博記念公園店まで1100m/ダイソーピアシティ万博記念公まで1200m/定額クリーニング費負担あり 保証会社原則加入(契約時保証委託料:22,000円 月額保証委託料:賃料総額の2.2%又は5.5%) 収納手数料170円/月(口座引落またはクレカ支払の場合) 24時間サポート:330円/月 鍵セット費:3,300円 合計6万円(内訳:定額クリーニング費:6万円) 24時間サポート費用:330円 1LDK 事務所利用不可 損保【2万円2年】 バストイレ別、バルコニー、ガスコンロ対応、クロゼット、フローリング、シャワー付洗面台、TVインターホン、浴室乾燥機、室内洗濯置、シューズボックス、南向き、追焚機能浴室、角住戸、温水洗浄便座、洗面所独立、洗面化粧台、駐輪場、CATV、敷金不要、防犯カメラ、エアコン2台、ネット使用料不要、床下収納、駅徒歩10分以内、敷地内ごみ置き場、全居室6畳以上、プロパンガス、シャッター、BS、年度内入居可 入居日:'26年1月中旬 | ||
部屋の情報
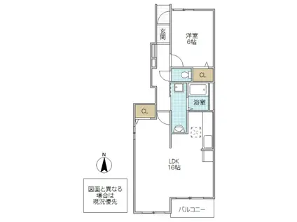
| 間取り | 1LDK | 専有面積 | 51.73m2 |
|---|---|---|---|
| 所在階 / 向き | 1階 / 南 | バルコニー面積 | - |
| 水道 / ガス | - | ||
| 設備 | バス・トイレ別、テレビドアホン、浴室乾燥機、追い焚き、インターネット対応、エアコン、温水洗浄便座、南向き、角部屋、バルコニー、フローリング、床下収納、洗髪洗面化粧台、コンロ:ガス、CATV、BSアンテナ、インターネット使用料無料、洗濯機:室内 | ||
| 当社物件ID | 130983345 | ||
建物の情報
| 建物名 | アン ルミエール II | ||
|---|---|---|---|
| 所在地 | 茨城県つくば市 | ||
| 交通 | つくばエクスプレス 万博記念公園駅(茨城) 徒歩10分 | ||
| 階数 | 2階建 | 総戸数 | 6戸 |
| 築年月 | 2015年05月 / 築11年 | エレベーター | - |
| 駐車場 | 空有 3300円 | バイク置き場 | - |
| 駐輪場 | あり | 管理人/管理会社 | - |
| 周辺環境 | その他 セブン-イレブン つくば万博記念公園駅西店(コンビニ)まで1200m その他 カスミ 万博記念公園駅前店(スーパー)まで1100m その他 筑波メディカルセンター病院(病院)まで7400m その他 ウエルシアつくば万博記念公園店(その他)まで1100m その他 ダイソー ピアシティ万博記念公園駅前店(その他)まで1200m その他 イーアスつくば(その他)まで5200m | ||
| 建物種別 | アパート | 建物構造 | 木造 |
この部屋の取扱い不動産会社
| 会社名 | 香陵住販(株)つくば天久保支店(SUUMO経由) | ||
|---|---|---|---|
| 所在地 | 茨城県つくば市天久保3-9-1 | 交通 | - |
| 営業時間 | 9:30~18:00 | 定休日 | 水曜日 |
| 免許番号 | 国土交通大臣7026 | 取引態様 | 仲介 |
| 不動産会社管理番号 | 100478798130 | 当社管理番号 | 89 |
| 所属団体 | (公社)茨城県宅地建物取引業協会会員 | ||
| 公正取引協議会 | (公社)首都圏不動産公正取引協議会加盟 | ||
| 取扱い物件情報 | 物件詳細へ | ||
※各種情報と現状に差異がある場合は、現状優先となります。問い合わせをすることで、より詳しい条件、情報を確認する事ができます。
提供:香陵住販(株)つくば天久保支店(SUUMO経由)
この物件が気になったら掲載期限まであと11日
アン ルミエール IIに条件(家賃・エリア)が近い物件一覧
| 写真 | 家賃 管理費等 | 敷金 礼金 | 間取り 専有面積 | 築年数 | 最寄り駅 所在地 | キープ | 詳細 |
|---|---|---|---|---|---|---|---|
マンション MOON STONE(1LDK/1階) | |||||||
![]() | 7.2万円 4,000円 | 7.2万円 なし | 1LDK 40.88m2 | 築1年 | つくばエクスプレス 万博記念公園駅(茨城) 徒歩40分 つくばエクスプレス 研究学園駅 徒歩55分 つくばエクスプレス みどりの駅 徒歩73分 茨城県つくば市 | 詳細を見る | |
アパート アイランドヒルズ右籾 I(1LDK/1階) | |||||||
![]() | 5.75万円 2,800円 | なし 5.75万円 | 1LDK 50.05m2 | 築1年 | 茨城県土浦市右籾 | 詳細を見る | |
アパート レオパレスプロシード(1K/1階) | |||||||
![]() | 5万円 4,500円 | なし 5万円 | 1K 23.18m2 | 築21年 | JR常磐線 ひたち野うしく駅 徒歩11分 JR常磐線 荒川沖駅 徒歩39分 JR常磐線 牛久駅 徒歩59分 茨城県牛久市ひたち野西 | 詳細を見る | |
マンション ロブステッラ ヴィータ(1LDK/1階) | |||||||
![]() | 8.1万円 5,000円 | なし 16.2万円 | 1LDK 48.02m2 | 築8年 | つくばエクスプレス 研究学園駅 徒歩26分 つくばエクスプレス つくば駅 徒歩58分 つくばエクスプレス 万博記念公園駅(茨城) 徒歩61分 茨城県つくば市 | 詳細を見る | |
アパート 土浦市中村南アパート(1LDK/1階) | |||||||
![]() | 6.6万円 4,000円 | 6.6万円 なし | 1LDK 43.24m2 | 新築 | 常磐線 荒川沖駅 徒歩33分 茨城県土浦市中村南2丁目 | 詳細を見る | |
アパート ALLURE JIMBA(1LDK/3階) | |||||||
![]() | 7.9万円 5,000円 | 7.9万円 7.9万円 | 1LDK 38.6m2 | 新築 | 茨城県つくば市谷田部 | 詳細を見る | |
アパート ツインヒルA(1LDK/1階) | |||||||
![]() | 5万円 4,500円 | なし なし | 1LDK 41.8m2 | 築22年 | JR常磐線 神立駅 徒歩68分 茨城県土浦市真鍋 | 詳細を見る | |
マンション コンフォートレジデンスⅡ(2LDK/2階) | |||||||
![]() | 8万円 4,000円 | 8万円 8万円 | 2LDK 58.5m2 | 築9年 | つくばエクスプレス みどりの駅 徒歩38分 茨城県つくば市 | 詳細を見る | |








