賃貸マンション
エスポワール豊福の賃貸物件情報(3LDK/3階)
| 家賃 | 管理費等 | 敷金 | 礼金 | 間取り | 専有面積 |
|---|---|---|---|---|---|
| 6.5万円 | 5,500円 | なし | なし | 3LDK | 70.72m2 |
入居決定でお祝い金最大100,000円
- 保証金
- -
- 償却・敷引
- -
- 築年数
- 築30年
- 所在階
- 3階
- 向き
- 南
Point
一度ご見学してみませんか?お問い合わせは駅前不動産へ!!
提供:(株)駅前不動産久留米インター店(SUUMO経由)

詳細情報 エスポワール豊福
物件紹介
エスポワール豊福はJR久大本線御井駅から徒歩5分にあり、駅近で通勤通学に便利なマンションです。
このお部屋は2階以上に位置しているので、通行人や周囲の住人からの視線が気になりにくく、防犯面でも安心。建物のエントランスはオートロックがついており、インターホンにはTVモニタもついているため、相手の顔を確認してから来客対応することができます。
おしゃれなデザイナーズ物件!人気の南向きのお部屋。また、フローリングなのでお掃除もラクラク。キッチンはシステムキッチン仕様になっていますので、お料理好きの方にもぴったり。また、バス・トイレは別で、のんびりお風呂タイムも楽しめるでしょう。
通信設備面では、インターネット接続が可能です(別途工事、契約料が必要な場合あり)。
このお部屋は2階以上に位置しているので、通行人や周囲の住人からの視線が気になりにくく、防犯面でも安心。建物のエントランスはオートロックがついており、インターホンにはTVモニタもついているため、相手の顔を確認してから来客対応することができます。
おしゃれなデザイナーズ物件!人気の南向きのお部屋。また、フローリングなのでお掃除もラクラク。キッチンはシステムキッチン仕様になっていますので、お料理好きの方にもぴったり。また、バス・トイレは別で、のんびりお風呂タイムも楽しめるでしょう。
通信設備面では、インターネット接続が可能です(別途工事、契約料が必要な場合あり)。
お金・契約の情報
※「-」と表示されているものは、実際は料金が発生するものもございます。詳細はお問い合わせください。
| 家賃 | 6.5万円 | 管理費・共益費 | 5,500円 |
|---|---|---|---|
| 敷金 | なし | 礼金 | なし |
| 入居決定でお祝い金最大100,000円 | |||
| 保証金 | - | 償却・敷引 | - |
| 住宅保険料 | - | 更新料 | - |
| 保証会社利用 | 必須 | 保証会社名 | - |
| 保証会社費用 | - | 保証会社備考 | 保証会社利用必 要確認 |
| 契約形態 | - | 契約期間 | - |
| 入居・引渡期間 | - | 現況 | - |
| 契約備考 | 合計12.86万円(内訳:駆付安心サポート期間毎月13200円/退去時補修分担金77000円/町費1000円/鍵交換37400円) 3LDK 損保【2.3万円2年】 バストイレ別、バルコニー、エアコン、フローリング、TVインターホン、オートロック、室内洗濯置、システムキッチン、南向き、温水洗浄便座、洗面所独立、2口コンロ、駐輪場、全居室洋室、保証人不要、全居室フローリング、2沿線利用可、3駅以上利用可、駅徒歩5分以内、平面駐車場、LDK12畳以上、全居室6畳以上、南面バルコニー、年内入居可、敷金・礼金不要、IT重説対応物件、初期費用カード決済可 入居日:'26年4月下旬 | ||
部屋の情報
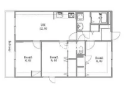
| 間取り | 3LDK | 専有面積 | 70.72m2 |
|---|---|---|---|
| 所在階 / 向き | 3階 / 南 | バルコニー面積 | - |
| 水道 / ガス | - | ||
| 設備 | バス・トイレ別、2階以上、オートロック、テレビドアホン、システムキッチン、エアコン、温水洗浄便座、南向き、バルコニー、フローリング、洗髪洗面化粧台、2口コンロ、洗濯機:室内 | ||
| 当社物件ID | 578296 | ||
建物の情報
| 建物名 | エスポワール豊福 | ||
|---|---|---|---|
| 所在地 | 福岡県久留米市山川追分 | ||
| 交通 | JR久大本線 御井駅 徒歩5分 JR久大本線 久留米大学前駅 徒歩26分 西鉄甘木線 学校前駅 徒歩44分 | ||
| 階数 | 4階建 | 総戸数 | 12戸 |
| 築年月 | 1997年02月 / 築30年 | エレベーター | - |
| 駐車場 | 空有 4400円 | バイク置き場 | - |
| 駐輪場 | あり | 管理人/管理会社 | - |
| 周辺環境 | その他 ミニストップ 久留米御井店(コンビニ)まで400m その他 トライアル久留米店(スーパー)まで500m その他 山川小学校(小学校)まで400m その他 赤司内科(病院)まで200m その他 久留米純心幼稚園(幼稚園・保育園)まで200m その他 トライアル久留米店(その他)まで500m | ||
| 建物種別 | マンション | 建物構造 | RC(鉄筋コンクリート) |
この部屋の取扱い不動産会社
| 会社名 | (株)駅前不動産西鉄津福店(SUUMO経由) | ||
|---|---|---|---|
| 所在地 | 福岡県久留米市津福本町 1570 | 交通 | - |
| 営業時間 | 10:00~18:00 | 定休日 | なし |
| 免許番号 | 国土交通大臣7725 | 取引態様 | 仲介 |
| 不動産会社管理番号 | 100486961231 | 当社管理番号 | 89 |
| 所属団体 | (公社)福岡県宅地建物取引業協会会員 | ||
| 公正取引協議会 | (一社)九州不動産公正取引協議会加盟 | ||
| 取扱い物件情報 | 物件詳細へ | ||
※各種情報と現状に差異がある場合は、現状優先となります。問い合わせをすることで、より詳しい条件、情報を確認する事ができます。
提供:(株)駅前不動産西鉄津福店(SUUMO経由)
この物件が気になったら掲載期限まであと11日
エスポワール豊福に条件(家賃・エリア)が近い物件一覧
| 写真 | 家賃 管理費等 | 敷金 礼金 | 間取り 専有面積 | 築年数 | 最寄り駅 所在地 | キープ | 詳細 |
|---|---|---|---|---|---|---|---|
アパート JR鹿児島本線 羽犬塚駅 徒歩72分 築10年(2LDK/1階) | |||||||
![]() | 5.2万円 3,000円 | なし なし | 2LDK 57.14m2 | 築10年 | JR鹿児島本線 羽犬塚駅 徒歩72分 JR鹿児島本線 筑後船小屋駅 徒歩87分 九州新幹線 筑後船小屋駅 徒歩87分 福岡県八女市国武 | 詳細を見る | |
一戸建て 西鉄天神大牟田線 八丁牟田駅 徒歩80分 築8年(3LDK) | |||||||
![]() | 8万円 なし | なし 16万円 | 3LDK 87.76m2 | 築8年 | 西鉄天神大牟田線 八丁牟田駅 徒歩80分 西鉄天神大牟田線 大溝駅 徒歩83分 福岡県久留米市城島町青木島 | 詳細を見る | |
アパート アベニール21 E棟(3DK/2階) | |||||||
![]() | 5.1万円 2,000円 | なし なし | 3DK 70.4m2 | 築27年 | 鹿児島本線 羽犬塚駅 徒歩35分 鹿児島本線 筑後船小屋駅 徒歩62分 福岡県筑後市大字長浜 | 詳細を見る | |
アパート COLLET Ⅱ(1LDK/1階) | |||||||
![]() | 4.6万円 2,000円 | なし 4.6万円 | 1LDK 40.99m2 | 築3年 | 鹿児島本線 西牟田駅 徒歩24分 福岡県八女郡広川町大字一條 | 詳細を見る | |
アパート グランデール(2SLDK/2階) | |||||||
![]() | 4.2万円 3,000円 | なし なし | 2SLDK 58.24m2 | 築21年 | 西鉄天神大牟田線 犬塚駅 徒歩43分 西鉄天神大牟田線 大溝駅 徒歩46分 福岡県久留米市城島町六町原 | 詳細を見る | |
アパート 西鉄天神大牟田線 蒲池駅(福岡) 徒歩46分 築20年(1LDK/1階) | |||||||
![]() | 3.9万円 1,200円 | なし なし | 1LDK 45.72m2 | 築20年 | 西鉄天神大牟田線 蒲池駅(福岡) 徒歩46分 西鉄天神大牟田線 八丁牟田駅 徒歩58分 福岡県大川市大字本木室 | 詳細を見る | |
アパート 西鉄天神大牟田線 大溝駅 徒歩8分 築17年(1LDK/1階) | |||||||
![]() | 4万円 なし | なし なし | 1LDK 49.68m2 | 築17年 | 西鉄天神大牟田線 大溝駅 徒歩8分 西鉄天神大牟田線 八丁牟田駅 徒歩25分 福岡県三潴郡大木町大字大角 | 詳細を見る | |
アパート メゾン・フェリシテ Ⅰ(2LDK/2階) | |||||||
![]() | 5.5万円 3,300円 | なし 5.5万円 | 2LDK 56.81m2 | 築9年 | 鹿児島本線 羽犬塚駅 徒歩7分 鹿児島本線 筑後船小屋駅 徒歩43分 福岡県筑後市大字和泉 | 詳細を見る | |









