賃貸アパート
リーヴェルポート大森本町PHILIAの賃貸物件情報(1K/3階)
| 家賃 | 管理費等 | 敷金 | 礼金 | 間取り | 専有面積 |
|---|---|---|---|---|---|
| 8.7万円 | 3,000円 | 8.7万円 | 8.7万円 | 1K | 18.51m2 |
入居決定でお祝い金最大100,000円
- 保証金
- -
- 償却・敷引
- -
- 築年数
- 築8年
- 所在階
- 3階
- 向き
- 東
Point
《創業30年・東急沿線中心に10店舗・宅建保有率80%超》経験×エリア×スキルが強みの不動産会社です!【未公開情報多数】【初期費用分割払い可能】様々な角度からご提案致します※掲載情報は画像含め現況優先
提供:Balleggs (株)バレッグス品川駅前支店(SUUMO経由)

詳細情報 リーヴェルポート大森本町PHILIA
物件紹介
リーヴェルポート大森本町PHILIAは京急本線平和島駅から徒歩6分にあり、駅近で通勤通学に便利なアパートです。
このお部屋は2階以上に位置しているので、通行人や周囲の住人からの視線が気になりにくく、防犯面でも安心。建物のエントランスはオートロックがついており、インターホンにはTVモニタもついているため、相手の顔を確認してから来客対応することができます。
人気の角部屋で周囲の居住者の生活音も気になりにくく、また、フローリングのお部屋なのでお掃除もラクラク。室内にはウォークインクローゼットがありますので、たくさんの荷物も効率的に収納ができます。キッチンはシステムキッチン仕様になっていますので、お料理好きの方にもぴったり。バス・トイレは別なので、のんびりお風呂タイムも楽しめるでしょう。また、雨の日でも浴室乾燥機を使えば、お洗濯も問題ありません。
通信設備面では、インターネットが無料で使えるので、月々の出費を抑えられるのも魅力です。また、CATVにも対応しているので、おうち時間も充実するでしょう(別途工事、CATVの契約料等が必要な場合あり)。
建物にはエレベーターがついているので、重い荷物があっても安心。共用部には宅配ボックスが設定されているので、不在の時にも荷物を受け取ることができます。
このお部屋は2階以上に位置しているので、通行人や周囲の住人からの視線が気になりにくく、防犯面でも安心。建物のエントランスはオートロックがついており、インターホンにはTVモニタもついているため、相手の顔を確認してから来客対応することができます。
人気の角部屋で周囲の居住者の生活音も気になりにくく、また、フローリングのお部屋なのでお掃除もラクラク。室内にはウォークインクローゼットがありますので、たくさんの荷物も効率的に収納ができます。キッチンはシステムキッチン仕様になっていますので、お料理好きの方にもぴったり。バス・トイレは別なので、のんびりお風呂タイムも楽しめるでしょう。また、雨の日でも浴室乾燥機を使えば、お洗濯も問題ありません。
通信設備面では、インターネットが無料で使えるので、月々の出費を抑えられるのも魅力です。また、CATVにも対応しているので、おうち時間も充実するでしょう(別途工事、CATVの契約料等が必要な場合あり)。
建物にはエレベーターがついているので、重い荷物があっても安心。共用部には宅配ボックスが設定されているので、不在の時にも荷物を受け取ることができます。
お金・契約の情報
※「-」と表示されているものは、実際は料金が発生するものもございます。詳細はお問い合わせください。
| 家賃 | 8.7万円 | 管理費・共益費 | 3,000円 |
|---|---|---|---|
| 敷金 | 8.7万円 | 礼金 | 8.7万円 |
| 入居決定でお祝い金最大100,000円 | |||
| 保証金 | - | 償却・敷引 | - |
| 住宅保険料 | - | 更新料 | - |
| 保証会社利用 | 必須 | 保証会社名 | - |
| 保証会社費用 | - | 保証会社備考 | 保証会社利用必 エポスウェルスター保証/初回総賃料の50%、毎月総賃料の1.3% |
| 契約形態 | - | 契約期間 | - |
| 入居・引渡期間 | 相談 | 現況 | - |
| 契約備考 | 合計4.18万円(内訳:鍵交換代等22000円/リーヴェルポート24 2年間・途中解約返19800円) 【一時金】解約時クリーニング費用:借主負担/税込:44,000円、解約時エアコンクリーニング費用:税込/1台当たり:13,200円、更新事務手数料:税込:5,500円 1K 事務所利用不可 普通借家2年 バストイレ別、バルコニー、エアコン、クロゼット、フローリング、TVインターホン、浴室乾燥機、オートロック、室内洗濯置、シューズボックス、温水洗浄便座、洗面所独立、洗面化粧台、宅配ボックス、CATV、最上階、IHクッキングヒーター、照明付、ロフト、敷金1ヶ月、2沿線利用可、ネット使用料不要、保証金不要、3駅以上利用可、駅徒歩10分以内、都市ガス、礼金1ヶ月、IT重説対応物件 | ||
部屋の情報
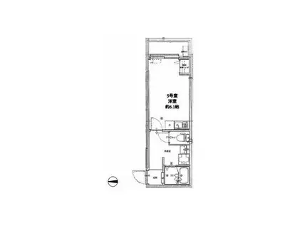
| 間取り | 1K | 専有面積 | 18.51m2 |
|---|---|---|---|
| 所在階 / 向き | 3階 / 東 | バルコニー面積 | - |
| 水道 / ガス | - | ||
| 設備 | バス・トイレ別、2階以上、オートロック、テレビドアホン、宅配ボックス、浴室乾燥機、インターネット対応、エアコン、温水洗浄便座、バルコニー、フローリング、ロフトあり、洗髪洗面化粧台、コンロ:IH、CATV、インターネット使用料無料、洗濯機:室内 | ||
| 当社物件ID | 29701516 | ||
建物の情報
| 建物名 | リーヴェルポート大森本町PHILIA | ||
|---|---|---|---|
| 所在地 | 東京都大田区大森本町 | ||
| 交通 | 京急本線 平和島駅 徒歩6分 京急本線 大森町駅 徒歩10分 JR京浜東北線 大森駅(東京) 徒歩25分 | ||
| 階数 | 3階建 | 総戸数 | - |
| 築年月 | 2019年01月 / 築8年 | エレベーター | - |
| 駐車場 | なし | バイク置き場 | - |
| 駐輪場 | - | 管理人/管理会社 | - |
| 周辺環境 | その他 平和島駅(その他)まで545m | ||
| 建物種別 | アパート | 建物構造 | 木造 |
この部屋の取扱い不動産会社
| 会社名 | Balleggs (株)バレッグス品川駅前支店(SUUMO経由) | ||
|---|---|---|---|
| 所在地 | 東京都港区高輪3-23-17 品川センタービルディング1階 | 交通 | - |
| 営業時間 | 10時~18時(電話受付は12時~13時以外) | 定休日 | 毎週火・水曜日 |
| 免許番号 | 東京都知事62730 | 取引態様 | 仲介 |
| 不動産会社管理番号 | 100488384160 | 当社管理番号 | 89 |
| 所属団体 | (公社)東京都宅地建物取引業協会会員 | ||
| 公正取引協議会 | (公社)首都圏不動産公正取引協議会加盟 | ||
| 取扱い物件情報 | 物件詳細へ | ||
※各種情報と現状に差異がある場合は、現状優先となります。問い合わせをすることで、より詳しい条件、情報を確認する事ができます。
提供:Balleggs (株)バレッグス品川駅前支店(SUUMO経由)
この物件が気になったら掲載期限まであと11日
リーヴェルポート大森本町PHILIAに条件(家賃・エリア)が近い物件一覧
| 写真 | 家賃 管理費等 | 敷金 礼金 | 間取り 専有面積 | 築年数 | 最寄り駅 所在地 | キープ | 詳細 |
|---|---|---|---|---|---|---|---|
マンション ルーブル亀戸天神前(1K/7階) | |||||||
![]() | 11万円 2,000円 | なし 11万円 | 1K 25.48m2 | 築12年 | 東京メトロ半蔵門線 錦糸町駅 徒歩11分 JR総武線 錦糸町駅 徒歩15分 JR総武線 亀戸駅 徒歩17分 東京都江東区亀戸 | 詳細を見る | |
アパート タカマルハイム(1LDK/1階) | |||||||
![]() | 11.5万円 3,000円 | 11.5万円 11.5万円 | 1LDK 34m2 | 築11年 | 東急多摩川線 武蔵新田駅 徒歩8分 東急多摩川線 下丸子駅 徒歩9分 東京都大田区下丸子2丁目 | 詳細を見る | |
アパート スズキコーポ(ワンルーム/1階) | |||||||
![]() | 5.6万円 3,000円 | 5.6万円 5.6万円 | ワンルーム 17.3m2 | 築53年 | 東急多摩川線 鵜の木駅 徒歩5分 東急多摩川線 下丸子駅 徒歩7分 東急池上線 千鳥町駅 徒歩12分 東京都大田区鵜の木 | 詳細を見る | |
マンション AQUA MARINE(1K/2階) | |||||||
![]() | 10万円 4,100円 | 10万円 5万円 | 1K 30.3m2 | 築13年 | 京浜急行電鉄本線 立会川駅 徒歩3分 京浜急行電鉄本線 鮫洲駅 徒歩12分 東京都品川区東大井2丁目 | 詳細を見る | |
マンション プライマル南砂(1K/9階) | |||||||
![]() | 12万円 8,000円 | 12万円 なし | 1K 25.53m2 | 築5年 | 東京メトロ東西線 南砂町駅 徒歩9分 東京メトロ東西線 東陽町駅 徒歩26分 東京メトロ東西線 西葛西駅 徒歩33分 東京都江東区南砂 | 詳細を見る | |
マンション マレオドゥール(2K/5階) | |||||||
![]() | 7万円 2,000円 | なし なし | 2K 29.16m2 | 築40年 | 京葉線 潮見駅 徒歩8分 東京地下鉄東西線 木場駅 徒歩24分 東京地下鉄有楽町線 辰巳駅 徒歩24分 東京都江東区潮見1丁目 | 詳細を見る | |
マンション メイクスデザイン住吉IV(1K/6階) | |||||||
![]() | 10.6万円 1.1万円 | なし 10.6万円 | 1K 22.53m2 | 築13年 | 東京地下鉄半蔵門線 住吉駅(東京) 徒歩10分 東京都新宿線 住吉駅(東京) 徒歩12分 東京都新宿線 西大島駅 徒歩13分 東京都江東区扇橋3丁目 | 詳細を見る | |
マンション SEED JUST B-BASE Ⅱ(1LDK/2階) | |||||||
![]() | 10.1万円 1.5万円 | 10.1万円 10.1万円 | 1LDK 27.92m2 | 築1年 | 東京モノレール羽田 昭和島駅 徒歩11分 京浜急行電鉄本線 梅屋敷駅(東京) 徒歩19分 東京都大田区大森南4丁目 | 詳細を見る | |








