賃貸マンション
ガリシア森下Vの賃貸物件情報(1K/3階)
| 家賃 | 管理費等 | 敷金 | 礼金 | 間取り | 専有面積 |
|---|---|---|---|---|---|
| 12.4万円 | 1万円 | なし | なし | 1K | 25.64m2 |
入居決定でお祝い金最大100,000円
- 保証金
- -
- 償却・敷引
- -
- 築年数
- 築5年
- 所在階
- 3階
- 向き
- 東
Point
オートロック・モニタ付きインターホン完備でセキュリティ万全★買い物に便利なコンビニ・スーパー徒歩圏内にございます♪お部屋探しはピタットハウス清澄白河店へ!!
提供:ピタットハウス清澄白河店(株)東京PM不動産(SUUMO経由)

詳細情報 ガリシア森下V
物件紹介
ガリシア森下Vは都営新宿線森下駅から徒歩4分にあり、駅近で通勤通学に便利なマンションです。
このお部屋は2階以上に位置しているので、通行人や周囲の住人からの視線が気になりにくく、防犯面でも安心。建物のエントランスはオートロックがついており、インターホンにはTVモニタもついているため、相手の顔を確認してから来客対応することができます。
フローリングのお部屋なのでお掃除もラクラク。キッチンはシステムキッチン仕様になっていますので、お料理好きの方にもぴったり。また、バス・トイレは別で、のんびりお風呂タイムも楽しめるでしょう。
通信設備面では、インターネットが無料で使えるので、月々の出費を抑えられるのも魅力です(別途工事等が必要な場合あり)。
建物にはエレベーターがついているので、重い荷物があっても安心。共用部には宅配ボックスが設定されているので、不在の時にも荷物を受け取ることができます。
このお部屋は2階以上に位置しているので、通行人や周囲の住人からの視線が気になりにくく、防犯面でも安心。建物のエントランスはオートロックがついており、インターホンにはTVモニタもついているため、相手の顔を確認してから来客対応することができます。
フローリングのお部屋なのでお掃除もラクラク。キッチンはシステムキッチン仕様になっていますので、お料理好きの方にもぴったり。また、バス・トイレは別で、のんびりお風呂タイムも楽しめるでしょう。
通信設備面では、インターネットが無料で使えるので、月々の出費を抑えられるのも魅力です(別途工事等が必要な場合あり)。
建物にはエレベーターがついているので、重い荷物があっても安心。共用部には宅配ボックスが設定されているので、不在の時にも荷物を受け取ることができます。
お金・契約の情報
※「-」と表示されているものは、実際は料金が発生するものもございます。詳細はお問い合わせください。
| 家賃 | 12.4万円 | 管理費・共益費 | 1万円 |
|---|---|---|---|
| 敷金 | なし | 礼金 | なし |
| 入居決定でお祝い金最大100,000円 | |||
| 保証金 | - | 償却・敷引 | - |
| 住宅保険料 | - | 更新料 | - |
| 保証会社利用 | 必須 | 保証会社名 | - |
| 保証会社費用 | - | 保証会社備考 | 保証会社利用必 その他 詳細はお問い合わせください。 |
| 契約形態 | - | 契約期間 | - |
| 入居・引渡期間 | 即時 | 現況 | - |
| 契約備考 | 合計3.85万円(内訳:鍵交換費用2.42万円/Goodプレミアムα1.21万円/Goodプレミアムα登録料0.22万円) 1K 損保【2.2万円2年】 バストイレ別、バルコニー、エアコン、クロゼット、フローリング、TVインターホン、オートロック、室内洗濯置、シューズボックス、システムキッチン、温水洗浄便座、脱衣所、エレベーター、洗面所独立、2口コンロ、宅配ボックス、外壁タイル張り、即入居可、礼金不要、敷金不要、防犯カメラ、全居室洋室、全居室フローリング、ネット使用料不要、3沿線以上利用可、駅徒歩5分以内、駅徒歩10分以内、敷地内ごみ置き場、築5年以内、洗面所にドア、2WAYバルコニー、室内物干機、敷金・礼金不要 | ||
部屋の情報
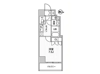
| 間取り | 1K | 専有面積 | 25.64m2 |
|---|---|---|---|
| 所在階 / 向き | 3階 / 東 | バルコニー面積 | - |
| 水道 / ガス | - | ||
| 設備 | バス・トイレ別、2階以上、オートロック、テレビドアホン、宅配ボックス、インターネット対応、システムキッチン、エアコン、エレベーター、温水洗浄便座、バルコニー、フローリング、洗髪洗面化粧台、2口コンロ、インターネット使用料無料、洗濯機:室内 | ||
| 当社物件ID | 159051431 | ||
建物の情報
| 建物名 | ガリシア森下V | ||
|---|---|---|---|
| 所在地 | 東京都墨田区千歳 | ||
| 交通 | 都営新宿線 森下駅(東京) 徒歩4分 都営大江戸線 両国駅 徒歩8分 東京メトロ半蔵門線 清澄白河駅 徒歩13分 | ||
| 階数 | 12階建 | 総戸数 | 48戸 |
| 築年月 | 2021年12月 / 築5年 | エレベーター | あり |
| 駐車場 | なし | バイク置き場 | - |
| 駐輪場 | - | 管理人/管理会社 | - |
| 周辺環境 | その他 墨田区立両国小学校(小学校)まで570m その他 ローソン墨田千歳三丁目店(コンビニ)まで168m その他 丸井錦糸町店(ショッピングセンター)まで1877m その他 墨田区役所(役所)まで2425m その他 マルエツプチ両国緑一丁目店(スーパー)まで458m その他 くすりの福太郎森下駅前店(ドラッグストア)まで406m | ||
| 建物種別 | マンション | 建物構造 | RC(鉄筋コンクリート) |
この部屋の取扱い不動産会社
| 会社名 | ピタットハウス清澄白河店(株)東京PM不動産(SUUMO経由) | ||
|---|---|---|---|
| 所在地 | 東京都江東区三好2-17-11 | 交通 | - |
| 営業時間 | 10時~18時 | 定休日 | 毎週水曜日 |
| 免許番号 | 東京都知事96076 | 取引態様 | 仲介 |
| 不動産会社管理番号 | 100444988378 | 当社管理番号 | 89 |
| 所属団体 | (公社)全日本不動産協会東京都本部会員 | ||
| 公正取引協議会 | (公社)首都圏不動産公正取引協議会加盟 | ||
| 取扱い物件情報 | 物件詳細へ | ||
※各種情報と現状に差異がある場合は、現状優先となります。問い合わせをすることで、より詳しい条件、情報を確認する事ができます。
提供:ピタットハウス清澄白河店(株)東京PM不動産(SUUMO経由)
この物件が気になったら掲載期限まであと10日
ガリシア森下Vに条件(家賃・エリア)が近い物件一覧
| 写真 | 家賃 管理費等 | 敷金 礼金 | 間取り 専有面積 | 築年数 | 最寄り駅 所在地 | キープ | 詳細 |
|---|---|---|---|---|---|---|---|
マンション レジーナ浅草橋(1LDK/7階) | |||||||
![]() | 13.5万円 1.2万円 | なし 13.5万円 | 1LDK 35.33m2 | 築20年 | JR総武線 浅草橋駅 徒歩6分 都営浅草線 蔵前駅 徒歩8分 都営大江戸線 新御徒町駅 徒歩10分 東京都台東区浅草橋 | 詳細を見る | |
マンション プレール・ドゥーク東京イースト Ⅳ RIVER SIDE(1K/9階) | |||||||
![]() | 7.5万円 1万円 | なし 7.5万円 | 1K 21.73m2 | 築18年 | 東京地下鉄日比谷線 南千住駅 徒歩10分 つくばエクスプレス 南千住駅 徒歩10分 常磐線 南千住駅 徒歩10分 東京都荒川区南千住7丁目 | 詳細を見る | |
マンション AZEST浅草(1LDK/7階) | |||||||
![]() | 17.5万円 1.5万円 | なし なし | 1LDK 40.7m2 | 築4年 | 東武伊勢崎・大師線 浅草駅(東武・都営・メトロ) 徒歩10分 東京都台東区浅草6丁目 | 詳細を見る | |
マンション ラティエラ上野入谷(1DK/6階) | |||||||
![]() | 11.5万円 1万円 | 11.5万円 なし | 1DK 25.11m2 | 築3年 | 東京地下鉄日比谷線 入谷駅(東京) 徒歩4分 山手線 上野駅 徒歩16分 東京都台東区下谷2丁目 | 詳細を見る | |
マンション エスタート三ノ輪(1LDK/8階) | |||||||
![]() | 16.8万円 1.5万円 | 16.8万円 なし | 1LDK 41.49m2 | 築5年 | 東京地下鉄日比谷線 三ノ輪駅 徒歩6分 東京都台東区竜泉3丁目 | 詳細を見る | |
マンション レジディア浅草吾妻橋(1K/3階) | |||||||
![]() | 10.3万円 1万円 | なし なし | 1K 21.48m2 | 築19年 | 東京都浅草線 本所吾妻橋駅 徒歩3分 東京地下鉄銀座線 浅草駅(東武・都営・メトロ) 徒歩5分 東京都墨田区吾妻橋1丁目 | 詳細を見る | |
マンション グラウンデュークス西大島(ワンルーム/1階) | |||||||
![]() | 10.4万円 1.5万円 | なし なし | ワンルーム 21.64m2 | 築6年 | 都営新宿線 西大島駅 徒歩6分 東京メトロ半蔵門線 住吉駅(東京) 徒歩12分 都営新宿線 住吉駅(東京) 徒歩12分 東京都江東区大島 | 詳細を見る | |
マンション LUMINOUS浅草橋駅前(1K/4階) | |||||||
![]() | 12.4万円 1万円 | なし なし | 1K 25.92m2 | 築22年 | 東京都浅草線 浅草橋駅 徒歩3分 東京都台東区柳橋1丁目 | 詳細を見る | |









