賃貸マンション
クロスレジデンス東十条の賃貸物件情報(ワンルーム/4階)
| 家賃 | 管理費等 | 敷金 | 礼金 | 間取り | 専有面積 |
|---|---|---|---|---|---|
| 11.3万円 | 1万円 | 11.3万円 | 11.3万円 | ワンルーム | 31.62m2 |
入居決定でお祝い金最大100,000円
- 保証金
- -
- 償却・敷引
- -
- 築年数
- 築19年
- 所在階
- 4階
- 向き
- 西
Point
来客時にはTVインターホンを使用して訪問者の顔を確認することができます。収納はシューズボックス・クロゼットなどが備え付けられているので、衣類や日用品の収納に重宝します。
提供:ハウス・トゥ・ハウス・ネットサービス(株)十条店(SUUMO経由)

詳細情報 クロスレジデンス東十条
物件紹介
クロスレジデンス東十条はJR京浜東北線東十条駅から徒歩3分にあり、駅近で通勤通学に便利なマンションです。
このお部屋は2階以上に位置しているので、通行人や周囲の住人からの視線が気になりにくく、防犯面でも安心。建物のエントランスはオートロックがついており、インターホンにはTVモニタもついているため、相手の顔を確認してから来客対応することができます。
フローリングのお部屋なのでお掃除もラクラク。キッチンはシステムキッチン仕様になっていますので、お料理好きの方にもぴったり。また、浴室乾燥機付きで、雨の日でもお洗濯は問題ありません。
通信設備面ではBSアンテナ・CSアンテナがあり、CATVにも対応しているので、おうち時間も充実するでしょう(別途工事、契約料が必要な場合あり)。
建物にはエレベーターがついているので、重い荷物があっても安心。共用部には宅配ボックスが設定されているので、不在の時にも荷物を受け取ることができます。また、ペット飼育の相談ができますので、あなたの大切な家族の一員も快適に暮らせるか、ぜひ確認してみてください。
このお部屋は2階以上に位置しているので、通行人や周囲の住人からの視線が気になりにくく、防犯面でも安心。建物のエントランスはオートロックがついており、インターホンにはTVモニタもついているため、相手の顔を確認してから来客対応することができます。
フローリングのお部屋なのでお掃除もラクラク。キッチンはシステムキッチン仕様になっていますので、お料理好きの方にもぴったり。また、浴室乾燥機付きで、雨の日でもお洗濯は問題ありません。
通信設備面ではBSアンテナ・CSアンテナがあり、CATVにも対応しているので、おうち時間も充実するでしょう(別途工事、契約料が必要な場合あり)。
建物にはエレベーターがついているので、重い荷物があっても安心。共用部には宅配ボックスが設定されているので、不在の時にも荷物を受け取ることができます。また、ペット飼育の相談ができますので、あなたの大切な家族の一員も快適に暮らせるか、ぜひ確認してみてください。
お金・契約の情報
※「-」と表示されているものは、実際は料金が発生するものもございます。詳細はお問い合わせください。
| 家賃 | 11.3万円 | 管理費・共益費 | 1万円 |
|---|---|---|---|
| 敷金 | 11.3万円 | 礼金 | 11.3万円 |
| 入居決定でお祝い金最大100,000円 | |||
| 保証金 | - | 償却・敷引 | - |
| 住宅保険料 | - | 更新料 | - |
| 保証会社利用 | 利用可 | 保証会社名 | - |
| 保証会社費用 | - | 保証会社備考 | 保証会社利用可 初回保証料:総賃料の50% 年間更新料:総賃料の25% 口座振替手数料:220円/月 |
| 契約形態 | - | 契約期間 | - |
| 入居・引渡期間 | - | 現況 | - |
| 入居可能条件 | ペット相談 | ||
| 契約備考 | ペット飼育時、敷金2ヶ月分申し受けます。ペット条件:犬・猫(小型1匹まで)インターネットは、全戸一括利用型のため、使用時の環境・状況により速度が低下する場合がございます。退去時清掃費用:39600円(20平米以上は1375円/平米追加で費用が生じます。) エアコン清掃費:16500円/台 合計1.65万円(内訳:鍵交換代1.65万円) 更新料 新賃料1.00ヶ月分 ワンルーム ペット相談 普通借家2年 損保【要】 バルコニー、エアコン、ガスコンロ対応、フローリング、TVインターホン、浴室乾燥機、オートロック、シューズボックス、システムキッチン、追焚機能浴室、温水洗浄便座、エレベーター、洗面化粧台、2口コンロ、宅配ボックス、CATV、防犯カメラ、ペット相談、CS、駅徒歩5分以内、駅徒歩10分以内、都市ガス、BS 敷金積み増し【ペット飼育の場合敷金3ヶ月(総額)】 入居日:'26年2月中旬 | ||
部屋の情報
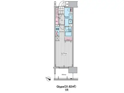
| 間取り | ワンルーム | 専有面積 | 31.62m2 |
|---|---|---|---|
| 所在階 / 向き | 4階 / 西 | バルコニー面積 | - |
| 水道 / ガス | - | ||
| 設備 | 2階以上、オートロック、テレビドアホン、宅配ボックス、浴室乾燥機、追い焚き、システムキッチン、エアコン、エレベーター、温水洗浄便座、バルコニー、フローリング、2口コンロ、コンロ:ガス、CATV、CSアンテナ、BSアンテナ | ||
| 当社物件ID | 154550877 | ||
建物の情報
| 建物名 | クロスレジデンス東十条 | ||
|---|---|---|---|
| 所在地 | 東京都北区東十条 | ||
| 交通 | JR京浜東北線 東十条駅 徒歩3分 JR埼京線 十条駅(東京) 徒歩11分 東京メトロ南北線 王子神谷駅 徒歩13分 | ||
| 階数 | 14階建 | 総戸数 | - |
| 築年月 | 2007年12月 / 築19年 | エレベーター | あり |
| 駐車場 | 空有 30800円 | バイク置き場 | - |
| 駐輪場 | - | 管理人/管理会社 | - |
| 周辺環境 | その他 セブンイレブン 北区東十条2丁目店(コンビニ)まで64m その他 共和堂医院(病院)まで117m その他 UR王子5丁目団地公園(公園)まで743m その他 スーパーみらべる東十条店(スーパー)まで340m その他 ユニクロ 王子神谷店(ショッピングセンター)まで984m その他 東十条商店街(その他)まで262m | ||
| 建物種別 | マンション | 建物構造 | RC(鉄筋コンクリート) |
この部屋の取扱い不動産会社
| 会社名 | ハウス・トゥ・ハウス・ネットサービス(株)十条店(SUUMO経由) | ||
|---|---|---|---|
| 所在地 | 東京都北区十条仲原1-2-4 1階 | 交通 | - |
| 営業時間 | 10:00~18:30(1月~3月は9:30~) | 定休日 | 水曜日 |
| 免許番号 | 国土交通大臣7400 | 取引態様 | 仲介 |
| 不動産会社管理番号 | 100480566284 | 当社管理番号 | 89 |
| 所属団体 | (公社)全日本不動産協会東京都本部会員 | ||
| 公正取引協議会 | (公社)首都圏不動産公正取引協議会加盟 | ||
| 取扱い物件情報 | 物件詳細へ | ||
※各種情報と現状に差異がある場合は、現状優先となります。問い合わせをすることで、より詳しい条件、情報を確認する事ができます。
提供:ハウス・トゥ・ハウス・ネットサービス(株)十条店(SUUMO経由)
この物件が気になったら掲載期限まであと11日
クロスレジデンス東十条に条件(家賃・エリア)が近い物件一覧
| 写真 | 家賃 管理費等 | 敷金 礼金 | 間取り 専有面積 | 築年数 | 最寄り駅 所在地 | キープ | 詳細 |
|---|---|---|---|---|---|---|---|
マンション コスモリード文京千駄木(1DK/5階) | |||||||
![]() | 13万円 1.5万円 | 13万円 なし | 1DK 36.2m2 | 築36年 | 東京地下鉄千代田線 千駄木駅 徒歩3分 東京地下鉄南北線 本駒込駅 徒歩10分 山手線 西日暮里駅 徒歩16分 東京都文京区千駄木1丁目 | 詳細を見る | |
マンション グリーチネ元町(1K/2階) | |||||||
![]() | 10万円 5,000円 | 10万円 10万円 | 1K 26.15m2 | 築21年 | 東京地下鉄丸ノ内線 本郷三丁目駅 徒歩7分 東京都文京区本郷2丁目 | 詳細を見る | |
マンション パークホームズ文京千石ステーションアリーナ(ワンルーム/7階) | |||||||
![]() | 9.9万円 1万円 | 9.9万円 なし | ワンルーム 21.49m2 | 築21年 | 東京都三田線 千石駅 徒歩1分 山手線 巣鴨駅 徒歩10分 東京地下鉄南北線 本駒込駅 徒歩16分 東京都文京区千石1丁目 | 詳細を見る | |
マンション サンフォレスタ文京大塚(ワンルーム/4階) | |||||||
![]() | 9万円 6,000円 | なし 9万円 | ワンルーム 21.6m2 | 築4年 | 東京地下鉄丸ノ内線 新大塚駅 徒歩7分 東京地下鉄丸ノ内線 茗荷谷駅 徒歩7分 東京地下鉄有楽町線 護国寺駅 徒歩9分 東京都文京区大塚4丁目 | 詳細を見る | |
アパート メゾン・ド・プレテ(1K/2階) | |||||||
![]() | 7.3万円 2,000円 | 7.3万円 7.3万円 | 1K 16m2 | 築62年 | 東京都荒川線 東池袋四丁目駅 徒歩6分 東京地下鉄有楽町線 東池袋駅 徒歩8分 東京都荒川線 都電雑司ケ谷駅 徒歩8分 東京都文京区大塚6丁目 | 詳細を見る | |
マンション チアーズ千駄木(1LDK/3階) | |||||||
![]() | 17万円 8,800円 | なし 21.2万円 | 1LDK 41.58m2 | 新築 | 東京地下鉄千代田線 千駄木駅 徒歩8分 山手線 西日暮里駅 徒歩9分 日暮里舎人ライナー 西日暮里駅 徒歩11分 東京都文京区千駄木4丁目 | 詳細を見る | |
マンション W723(1DK/4階) | |||||||
![]() | 9.5万円 7,000円 | 9.5万円 9.5万円 | 1DK 25m2 | 築12年 | 山手線 日暮里駅 徒歩5分 常磐線 日暮里駅 徒歩5分 京成電鉄本線 日暮里駅 徒歩5分 東京都荒川区東日暮里6丁目 | 詳細を見る | |
マンション KANTREE HOME(1LDK/4階) | |||||||
![]() | 11.5万円 5,800円 | なし 17.25万円 | 1LDK 45.21m2 | 築15年 | 東京地下鉄日比谷線 南千住駅 徒歩6分 常磐線 南千住駅 徒歩9分 東京地下鉄日比谷線 三ノ輪駅 徒歩12分 東京都荒川区南千住3丁目 | 詳細を見る | |








