賃貸マンション
ルーデンス常盤台Ⅲの賃貸物件情報(1K/3階)
| 家賃 | 管理費等 | 敷金 | 礼金 | 間取り | 専有面積 |
|---|---|---|---|---|---|
| 10.2万円 | 1.2万円 | 10.2万円 | 20.4万円 | 1K | 19.22m2 |
入居決定でお祝い金最大100,000円
Point
まずはお問い合わせ!
不動産会社は街のプロ、あなたに合った物件がきっと見つかります。
提供:ハウスコム東東京株式会社 高田馬場店

詳細情報 ルーデンス常盤台Ⅲ
物件紹介
ルーデンス常盤台Ⅲは東武鉄道東上線ときわ台駅から徒歩4分にあり、駅近で通勤通学に便利なマンションです。
このお部屋は2階以上に位置しているので通行人や周囲の住人からの視線が気になりにくく、建物のエントランスはオートロックがついているので防犯性が高くなっています。
フローリングのお部屋なのでお掃除もラクラク。キッチンはシステムキッチン仕様になっていますので、お料理好きの方にもぴったり。バス・トイレは別なので、のんびりお風呂タイムも楽しめるでしょう。また、雨の日でも浴室乾燥機を使えば、お洗濯も問題ありません。
通信設備面では、インターネットが無料で使えるので、月々の出費を抑えられるのも魅力です(別途工事等が必要な場合あり)。
共用部には宅配ボックスが設定されているので、不在の時にも荷物を受け取ることができます。
このお部屋は2階以上に位置しているので通行人や周囲の住人からの視線が気になりにくく、建物のエントランスはオートロックがついているので防犯性が高くなっています。
フローリングのお部屋なのでお掃除もラクラク。キッチンはシステムキッチン仕様になっていますので、お料理好きの方にもぴったり。バス・トイレは別なので、のんびりお風呂タイムも楽しめるでしょう。また、雨の日でも浴室乾燥機を使えば、お洗濯も問題ありません。
通信設備面では、インターネットが無料で使えるので、月々の出費を抑えられるのも魅力です(別途工事等が必要な場合あり)。
共用部には宅配ボックスが設定されているので、不在の時にも荷物を受け取ることができます。
お金・契約の情報
※「-」と表示されているものは、実際は料金が発生するものもございます。詳細はお問い合わせください。
| 家賃 | 10.2万円 | 管理費・共益費 | 1.2万円 |
|---|---|---|---|
| 敷金 | 10.2万円 | 礼金 | 20.4万円 |
| 入居決定でお祝い金最大100,000円 | |||
| 保証金 | - | 償却・敷引 | - |
| 住宅保険料 | 1円 | 更新料 | - |
| その他費用 | プレミアデスク2年(税込):2.2万円 | ||
| 保証会社利用 | 必須 | 保証会社名 | エポスカード |
| 保証会社費用 | - | 保証会社備考 | ※エポス ルームIDからの審査になります。 【ルームID】月額総賃料の70%/月次保証料、月額総賃料の1.5%/1年毎10,000円 【CASA】月額総賃料の70%(最低保証料20,000円)/月 |
| 契約形態 | - | 契約期間 | 2年 |
| 入居・引渡期間 | 相談 | 現況 | - |
| 入居可能条件 | 事務所不可、楽器不可、ペット不可 | ||
| 契約備考 | 鍵交換費用:38500 その他設備/条件:室内洗濯機置き場、独立洗面台、クローゼット | ||
部屋の情報
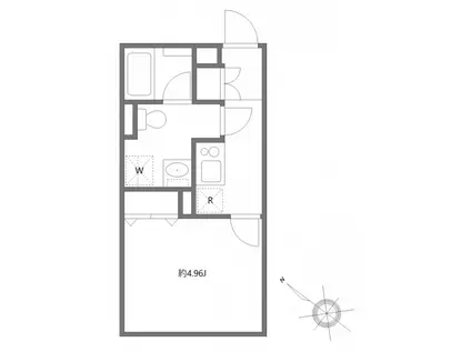
| 間取り | 1K | 専有面積 | 19.22m2 |
|---|---|---|---|
| 所在階 / 向き | 3階 / 南西 | バルコニー面積 | - |
| 水道 / ガス | 水道【公営】、ガス【都市】 | ||
| 設備 | バス・トイレ別、オートロック、宅配ボックス、浴室乾燥機、インターネット対応、システムキッチン、エアコン、温水洗浄便座、フローリング、2口コンロ、コンロ:IH、インターネット使用料無料、シャワー、給湯 | ||
| 当社物件ID | 156865040 | ||
建物の情報
| 建物名 | ルーデンス常盤台Ⅲ | ||
|---|---|---|---|
| 所在地 | 東京都板橋区南常盤台1丁目 | ||
| 交通 | 東武鉄道東上線 ときわ台駅(東京) 徒歩4分 東武鉄道東上線 中板橋駅 徒歩14分 | ||
| 階数 | 4階建 | 総戸数 | 15戸 |
| 築年月 | 2023年11月 / 築3年 | エレベーター | - |
| 駐車場 | ご確認ください | バイク置き場 | - |
| 駐輪場 | あり | 管理人/管理会社 | - |
| 周辺環境 | 販売店 徒歩13分(999m) その他 ドラッグストア その他 公園 その他 銀行 その他 * | ||
| 建物種別 | マンション | 建物構造 | RC(鉄筋コンクリート) |
この部屋の取扱い不動産会社
| 会社名 | ハウスコム東東京株式会社 成増店 | ||
|---|---|---|---|
| 所在地 | 東京都板橋区3-11成増アクト2 1階 | 交通 | - |
| 営業時間 | 10:00~18:00 | 定休日 | - |
| 免許番号 | 東京都知事(1)第108283号 | 取引態様 | 仲介 |
| 不動産会社管理番号 | HC5-4340072-0303-0109 | 当社管理番号 | 468 |
| 所属団体 | 、 | ||
| 取扱い物件情報 | 物件詳細へ | ||
※各種情報と現状に差異がある場合は、現状優先となります。問い合わせをすることで、より詳しい条件、情報を確認する事ができます。
提供:ハウスコム東東京株式会社 成増店
この物件が気になったら掲載期限まであと4日
ルーデンス常盤台Ⅲに条件(家賃・エリア)が近い物件一覧
| 写真 | 家賃 管理費等 | 敷金 礼金 | 間取り 専有面積 | 築年数 | 最寄り駅 所在地 | キープ | 詳細 |
|---|---|---|---|---|---|---|---|
マンション ALIVIS東十条(1DK/3階) | |||||||
![]() | 16.05万円 1万円 | なし 16.05万円 | 1DK 31.5m2 | 築1年 | JR京浜東北線 東十条駅 徒歩7分 JR埼京線 十条駅(東京) 徒歩10分 東京メトロ南北線 王子神谷駅 徒歩22分 東京都北区十条仲原 | 詳細を見る | |
アパート メルシー・パラン(1LDK/1階) | |||||||
![]() | 13.8万円 1.2万円 | 13.8万円 なし | 1LDK 38.51m2 | 築10年 | JR京浜東北線 東十条駅 徒歩7分 JR埼京線 十条駅(東京) 徒歩7分 東京メトロ南北線 王子神谷駅 徒歩17分 東京都北区中十条 | 詳細を見る | |
マンション メインステージ滝野川桜通(1K/9階) | |||||||
![]() | 11万円 1.5万円 | なし 11万円 | 1K 25.5m2 | 築19年 | JR埼京線 板橋駅 徒歩3分 東武東上線 北池袋駅 徒歩8分 都営三田線 新板橋駅 徒歩8分 東京都北区滝野川 | 詳細を見る | |
マンション AGLAIA要町(1LDK/2階) | |||||||
![]() | 15.4万円 1万円 | なし なし | 1LDK 30.38m2 | 築1年 | 東京メトロ有楽町線 要町駅 徒歩9分 JR山手線 池袋駅 徒歩15分 東京メトロ副都心線 千川駅 徒歩17分 東京都豊島区高松 | 詳細を見る | |
マンション ライトハウス大塚(1K/9階) | |||||||
![]() | 13.5万円 1万円 | なし なし | 1K 25.79m2 | 築7年 | 東京メトロ丸ノ内線 新大塚駅 徒歩5分 JR山手線 大塚駅(東京) 徒歩5分 JR山手線 巣鴨駅 徒歩13分 東京都豊島区南大塚 | 詳細を見る | |
マンション ジェノヴィア北池袋スカイガーデン(2K/3階) | |||||||
![]() | 16万円 1万円 | なし なし | 2K 31.51m2 | 築1年 | 埼京線 板橋駅 徒歩7分 東京都三田線 西巣鴨駅 徒歩10分 東京都北区滝野川7丁目 | 詳細を見る | |
マンション ラシクラス板橋本町(1K/1階) | |||||||
![]() | 11.8万円 1.2万円 | 11.8万円 11.8万円 | 1K 25.95m2 | 新築 | 都営三田線 板橋本町駅 徒歩5分 都営三田線 板橋区役所前駅 徒歩12分 東武東上線 中板橋駅 徒歩19分 東京都板橋区本町 | 詳細を見る | |
マンション イナリハイツK(2K/3階) | |||||||
![]() | 7.7万円 3,000円 | 7.7万円 7.7万円 | 2K 29.54m2 | 築37年 | JR埼京線 十条駅(東京) 徒歩9分 都営三田線 板橋本町駅 徒歩12分 JR京浜東北線 東十条駅 徒歩17分 東京都板橋区稲荷台 | 詳細を見る | |








