賃貸マンション
プライムメゾン大塚の賃貸物件情報(ワンルーム/6階)
| 家賃 | 管理費等 | 敷金 | 礼金 | 間取り | 専有面積 |
|---|---|---|---|---|---|
| 12.1万円 | 1万円 | 12.1万円 | なし | ワンルーム | 23.63m2 |
入居決定でお祝い金最大100,000円
- 保証金
- -
- 償却・敷引
- -
- 築年数
- 築10年
- 所在階
- 6階
- 向き
- 西
Point
エントランス、エレベータ前、玄関前の3重ガードでセキュリティを保ちます。山手線、荒川線、丸ノ内線の3路線を徒歩10分圏内のアクセスも魅力な積水ハウスの賃貸住宅プライムメゾンシリーズ。
提供:シャーメゾンショップ (株)イチイ高田馬場店(SUUMO経由)

詳細情報 プライムメゾン大塚
物件紹介
プライムメゾン大塚はJR山手線大塚駅から徒歩3分にあり、駅近で通勤通学に便利なマンションです。
このお部屋は2階以上に位置しているので、通行人や周囲の住人からの視線が気になりにくく、防犯面でも安心。建物のエントランスはオートロックがついており、インターホンにはTVモニタもついているため、相手の顔を確認してから来客対応することができます。
フローリングのお部屋なのでお掃除もラクラク。キッチンはシステムキッチン仕様になっていますので、お料理好きの方にもぴったり。バス・トイレは別なので、のんびりお風呂タイムも楽しめるでしょう。また、雨の日でも浴室乾燥機を使えば、お洗濯も問題ありません。
通信設備面では、インターネットが無料で使えるので、月々の出費を抑えられるのも魅力です(別途工事等が必要な場合あり)。
建物にはエレベーターがついているので、重い荷物があっても安心。共用部には宅配ボックスが設定されているので、不在の時にも荷物を受け取ることができます。
このお部屋は2階以上に位置しているので、通行人や周囲の住人からの視線が気になりにくく、防犯面でも安心。建物のエントランスはオートロックがついており、インターホンにはTVモニタもついているため、相手の顔を確認してから来客対応することができます。
フローリングのお部屋なのでお掃除もラクラク。キッチンはシステムキッチン仕様になっていますので、お料理好きの方にもぴったり。バス・トイレは別なので、のんびりお風呂タイムも楽しめるでしょう。また、雨の日でも浴室乾燥機を使えば、お洗濯も問題ありません。
通信設備面では、インターネットが無料で使えるので、月々の出費を抑えられるのも魅力です(別途工事等が必要な場合あり)。
建物にはエレベーターがついているので、重い荷物があっても安心。共用部には宅配ボックスが設定されているので、不在の時にも荷物を受け取ることができます。
お金・契約の情報
※「-」と表示されているものは、実際は料金が発生するものもございます。詳細はお問い合わせください。
| 家賃 | 12.1万円 | 管理費・共益費 | 1万円 |
|---|---|---|---|
| 敷金 | 12.1万円 | 礼金 | なし |
| 入居決定でお祝い金最大100,000円 | |||
| 保証金 | - | 償却・敷引 | - |
| 住宅保険料 | - | 更新料 | - |
| 保証会社利用 | 必須 | 保証会社名 | - |
| 保証会社費用 | - | 保証会社備考 | 保証会社利用必 【らくらくパートナー(オリコフォレント)】 初回家賃引落時契約事務手数料:33000円 月額保証料:総家賃等の2% |
| 契約形態 | - | 契約期間 | - |
| 入居・引渡期間 | 相談 | 現況 | - |
| 契約備考 | 巣鴨警察署まで144m/1Fドミノピザ大塚店/通勤管理/■バイク置場月額5500円税込(契約時に敷金1ヶ月、仲介手数料1.1ヶ月分)※空き要確認■駐輪場6600円税込(2年一括払い、途中返金なし)※空き要確認■インターネットは(株)つなぐネットコミュニケーションズの回線のみご利用可能(無料)■退室時にハウスクリーニング代がかかります。■解約2ヶ月前通知。■短期解約違約金有。※契開始日より1年未満での解約の場合:1ヶ月分。 合計2.75万円(内訳:鍵交換代27500円(税込)) ●シャーメゾンライフSUPPORT24必須加入(月額1320円税込。)●退室時、借主様にハウスクリーニング代として55000円(税込)をご負担いただきます。●更新時(2年毎)には、更新料として新賃料の1ヶ月分がかかります。●短期解約違約金設定有り(1年未満で解約の場合、賃料の1ヶ月分)。 ワンルーム 単身者可/子供不可/事務所利用不可/ルームシェア不可 損保【要】 バストイレ別、バルコニー、エアコン、クロゼット、フローリング、TVインターホン、浴室乾燥機、オートロック、室内洗濯置、シューズボックス、システムキッチン、温水洗浄便座、エレベーター、洗面化粧台、2口コンロ、駐輪場、宅配ボックス、礼金不要、防犯カメラ、全居室洋室、保証人不要、単身者相談、仲介手数料不要、敷金1ヶ月、バイク置場、全居室フローリング、ディンプルキー、駅まで平坦、ネット使用料不要、ダブルロックキー、24時間換気システム、3駅以上利用可、3沿線以上利用可、駅徒歩5分以内、24時間ゴミ出し可、敷地内ごみ置き場、日勤管理、当社管理物件、寝室8畳以上、全居室8畳以上、都市ガス、玄関収納、保証会社利用可、IT重説対応物件、初期費用カード決済可 | ||
部屋の情報
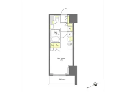
| 間取り | ワンルーム | 専有面積 | 23.63m2 |
|---|---|---|---|
| 所在階 / 向き | 6階 / 西 | バルコニー面積 | - |
| 水道 / ガス | - | ||
| 設備 | バス・トイレ別、2階以上、オートロック、テレビドアホン、宅配ボックス、浴室乾燥機、インターネット対応、システムキッチン、エアコン、エレベーター、温水洗浄便座、バルコニー、フローリング、2口コンロ、インターネット使用料無料、洗濯機:室内 | ||
| 当社物件ID | 22837287 | ||
建物の情報
| 建物名 | プライムメゾン大塚 | ||
|---|---|---|---|
| 所在地 | 東京都豊島区北大塚 | ||
| 交通 | JR山手線 大塚駅(東京) 徒歩3分 都電荒川線 大塚駅前駅 徒歩3分 東京メトロ丸ノ内線 新大塚駅 徒歩9分 | ||
| 階数 | 19階建 | 総戸数 | 144戸 |
| 築年月 | 2017年01月 / 築10年 | エレベーター | あり |
| 駐車場 | 空有 33000円/機械式駐 | バイク置き場 | あり |
| 駐輪場 | あり | 管理人/管理会社 | - |
| 周辺環境 | その他 まいばすけっと北大塚1丁目店(スーパー)まで167m その他 デニーズ大塚駅前店(飲食店)まで145m その他 アトレヴィ大塚(ショッピングセンター)まで250m その他 セブンイレブン豊島南大塚1丁目店(コンビニ)まで88m その他 ファミリーマート大塚駅前店(コンビニ)まで96m その他 くすりの福太郎大塚駅前店(ドラッグストア)まで145m | ||
| 建物種別 | マンション | 建物構造 | RC(鉄筋コンクリート) |
この部屋の取扱い不動産会社
| 会社名 | シャーメゾンショップ (株)イチイ高田馬場店(SUUMO経由) | ||
|---|---|---|---|
| 所在地 | 東京都新宿区高田馬場1-17-15 羽深ビル4階 | 交通 | - |
| 営業時間 | 10:00~18:30 | 定休日 | 水曜日、第1~第3火曜日 |
| 免許番号 | 東京都知事39368 | 取引態様 | 仲介 |
| 不動産会社管理番号 | 100292758610 | 当社管理番号 | 89 |
| 所属団体 | (公社)全日本不動産協会東京都本部会員 | ||
| 公正取引協議会 | (公社)首都圏不動産公正取引協議会加盟 | ||
| 取扱い物件情報 | 物件詳細へ | ||
※各種情報と現状に差異がある場合は、現状優先となります。問い合わせをすることで、より詳しい条件、情報を確認する事ができます。
提供:シャーメゾンショップ (株)イチイ高田馬場店(SUUMO経由)
この物件が気になったら掲載期限まであと11日
プライムメゾン大塚に条件(家賃・エリア)が近い物件一覧
| 写真 | 家賃 管理費等 | 敷金 礼金 | 間取り 専有面積 | 築年数 | 最寄り駅 所在地 | キープ | 詳細 |
|---|---|---|---|---|---|---|---|
マンション レオパレスオリーブハウスⅤ(1K/2階) | |||||||
![]() | 8.5万円 5,500円 | なし 8.5万円 | 1K 20.81m2 | 築14年 | 西武池袋・豊島線 石神井公園駅 徒歩17分 東京都練馬区石神井台3丁目 | 詳細を見る | |
マンション プライムメゾン早稲田通(ワンルーム/9階) | |||||||
![]() | 15.5万円 1万円 | 15.5万円 なし | ワンルーム 25m2 | 築6年 | 東京メトロ東西線 早稲田駅(メトロ) 徒歩3分 東京メトロ東西線 神楽坂駅 徒歩11分 東京メトロ有楽町線 江戸川橋駅 徒歩13分 東京都新宿区早稲田町 | 詳細を見る | |
アパート セレスティア中野上高田(1LDK/2階) | |||||||
![]() | 16万円 1.4万円 | なし 32万円 | 1LDK 39.49m2 | 築1年 | 東京都大江戸線 落合南長崎駅 徒歩12分 東京都中野区上高田5丁目 | 詳細を見る | |
アパート リブリ・GRANDE VII(1LDK/1階) | |||||||
![]() | 12.4万円 3,000円 | なし 12.4万円 | 1LDK 39.71m2 | 築1年 | 都営三田線 西台駅 徒歩9分 都営三田線 高島平駅 徒歩12分 都営三田線 蓮根駅 徒歩15分 東京都板橋区高島平 | 詳細を見る | |
マンション ピアコートTM上石神井 弐番館(1K/2階) | |||||||
![]() | 9.1万円 6,000円 | なし なし | 1K 20.88m2 | 築3年 | 西武鉄道新宿線 上石神井駅 徒歩5分 東京都練馬区上石神井1丁目 | 詳細を見る | |
マンション STADT NERIMA-KASUGACHO(2LDK/1階) | |||||||
![]() | 17.9万円 1.15万円 | なし 17.9万円 | 2LDK 65.97m2 | 築1年 | 都営大江戸線 練馬春日町駅 徒歩8分 西武池袋線 中村橋駅 徒歩20分 都営大江戸線 光が丘駅 徒歩21分 東京都練馬区高松 | 詳細を見る | |
マンション ディアレイシャス市谷薬王寺(1K/3階) | |||||||
![]() | 14.4万円 1.1万円 | なし 14.4万円 | 1K 25.62m2 | 築7年 | 都営大江戸線 牛込柳町駅 徒歩3分 都営新宿線 曙橋駅 徒歩9分 東京メトロ東西線 早稲田駅(メトロ) 徒歩15分 東京都新宿区市谷薬王寺町 | 詳細を見る | |
マンション ガーラ・グランディ池袋II(1K/13階) | |||||||
![]() | 9.45万円 9,000円 | 9.45万円 18.9万円 | 1K 20.37m2 | 築11年 | JR山手線 池袋駅 徒歩10分 東京メトロ有楽町線 東池袋駅 徒歩10分 JR山手線 大塚駅(東京) 徒歩12分 東京都豊島区東池袋 | 詳細を見る | |

/105x80-f1-q70-wp1)

/105x80-f1-q70-wp1)

/105x80-f1-q70-wp1)

