賃貸マンション
プレミアムキューブ代々木上原の賃貸物件情報(ワンルーム/3階)
| 家賃 | 管理費等 | 敷金 | 礼金 | 間取り | 専有面積 |
|---|---|---|---|---|---|
| 13.85万円 | 1.5万円 | 13.85万円 | 13.85万円 | ワンルーム | 23.27m2 |
入居決定でお祝い金最大100,000円
- 保証金
- -
- 償却・敷引
- 13.85万円
- 築年数
- 築7年
- 所在階
- 3階
- 向き
- 北
Point
まずはお問い合わせ!
不動産会社は街のプロ、あなたに合った物件がきっと見つかります。
提供:トレント飯田橋支店(株)クルーズカンパニー(SUUMO経由)

詳細情報 プレミアムキューブ代々木上原
物件紹介
プレミアムキューブ代々木上原は東京メトロ千代田線代々木上原駅から徒歩3分にあり、駅近で通勤通学に便利なマンションです。
このお部屋は2階以上に位置しているので、通行人や周囲の住人からの視線が気になりにくく、防犯面でも安心。建物のエントランスはオートロックがついており、インターホンにはTVモニタもついているため、相手の顔を確認してから来客対応することができます。
人気の角部屋で周囲の居住者の生活音も気になりにくく、また、フローリングのお部屋なのでお掃除もラクラク。キッチンはシステムキッチン仕様になっていますので、お料理好きの方にもぴったり。バス・トイレは別なので、のんびりお風呂タイムも楽しめるでしょう。また、雨の日でも浴室乾燥機を使えば、お洗濯も問題ありません。
通信設備面では、インターネットが無料で使えるので、月々の出費を抑えられるのも魅力です。また、CSアンテナもありますので、おうち時間も充実するでしょう(別途工事、CSの契約料等が必要な場合あり)。
建物にはエレベーターがついているので、重い荷物があっても安心。共用部には宅配ボックスが設定されているので、不在の時にも荷物を受け取ることができます。
このお部屋は2階以上に位置しているので、通行人や周囲の住人からの視線が気になりにくく、防犯面でも安心。建物のエントランスはオートロックがついており、インターホンにはTVモニタもついているため、相手の顔を確認してから来客対応することができます。
人気の角部屋で周囲の居住者の生活音も気になりにくく、また、フローリングのお部屋なのでお掃除もラクラク。キッチンはシステムキッチン仕様になっていますので、お料理好きの方にもぴったり。バス・トイレは別なので、のんびりお風呂タイムも楽しめるでしょう。また、雨の日でも浴室乾燥機を使えば、お洗濯も問題ありません。
通信設備面では、インターネットが無料で使えるので、月々の出費を抑えられるのも魅力です。また、CSアンテナもありますので、おうち時間も充実するでしょう(別途工事、CSの契約料等が必要な場合あり)。
建物にはエレベーターがついているので、重い荷物があっても安心。共用部には宅配ボックスが設定されているので、不在の時にも荷物を受け取ることができます。
お金・契約の情報
※「-」と表示されているものは、実際は料金が発生するものもございます。詳細はお問い合わせください。
| 家賃 | 13.85万円 | 管理費・共益費 | 1.5万円 |
|---|---|---|---|
| 敷金 | 13.85万円 | 礼金 | 13.85万円 |
| 入居決定でお祝い金最大100,000円 | |||
| 保証金 | - | 償却・敷引 | 13.85万円 |
| 住宅保険料 | - | 更新料 | - |
| 保証会社利用 | 必須 | 保証会社名 | - |
| 保証会社費用 | - | 保証会社備考 | 保証会社利用必 初回保証料/月額総賃料等の50パーセント |
| 契約形態 | - | 契約期間 | - |
| 入居・引渡期間 | - | 現況 | - |
| 契約備考 | ■退去時:室内清掃(クリーニング)費用は借主様負担となります。■1年未満の解約時、総賃料の2ヶ月分■1匹の場合共益費+3500円追加、2匹の場合共益費+3500円追加及び敷金1ヶ月追加(償却)※犬・猫2匹まで可■賃料/更新2回まで賃料5パーセント増額、更新料は1回目のみ 合計7.21万円(内訳:鍵交換費用:2.2万円、24時間サポート:2.145万円、抗菌代:1.76万円、契約事務手数料:1.1万円) 更新料:新賃料1.0ヵ月、更新手数料:1.1万円 ワンルーム 普通借家1年 損保【要】 バストイレ別、バルコニー、エアコン、ガスコンロ対応、クロゼット、フローリング、TVインターホン、浴室乾燥機、オートロック、室内洗濯置、シューズボックス、システムキッチン、角住戸、温水洗浄便座、脱衣所、エレベーター、洗面所独立、洗面化粧台、2口コンロ、宅配ボックス、光ファイバー、2面採光、保証人不要、敷金1ヶ月、全居室フローリング、2沿線利用可、CS、ネット使用料不要、人感照明センサー、全室2面採光、2駅利用可、24時間ゴミ出し可、敷地内ごみ置き場、都市ガス、礼金1ヶ月、保証会社利用可、IT重説対応物件、初期費用カード決済可 入居日:'26年1月下旬 | ||
部屋の情報
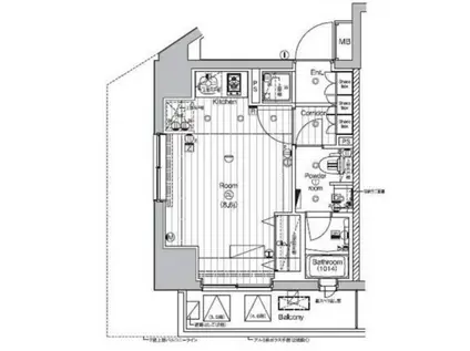
| 間取り | ワンルーム | 専有面積 | 23.27m2 |
|---|---|---|---|
| 所在階 / 向き | 3階 / 北 | バルコニー面積 | - |
| 水道 / ガス | - | ||
| 設備 | バス・トイレ別、2階以上、オートロック、テレビドアホン、宅配ボックス、浴室乾燥機、インターネット対応、システムキッチン、エアコン、エレベーター、温水洗浄便座、角部屋、バルコニー、フローリング、洗髪洗面化粧台、2口コンロ、コンロ:ガス、CSアンテナ、インターネット使用料無料、洗濯機:室内 | ||
| 当社物件ID | 130582336 | ||
建物の情報
| 建物名 | プレミアムキューブ代々木上原 | ||
|---|---|---|---|
| 所在地 | 東京都渋谷区大山町 | ||
| 交通 | 東京メトロ千代田線 代々木上原駅 徒歩3分 小田急線 東北沢駅 徒歩10分 京王井の頭線 池ノ上駅 徒歩17分 | ||
| 階数 | 8階建 | 総戸数 | - |
| 築年月 | 2020年01月 / 築7年 | エレベーター | あり |
| 駐車場 | なし | バイク置き場 | - |
| 駐輪場 | - | 管理人/管理会社 | - |
| 周辺環境 | その他 上原児童公園(公園)まで990m その他 東急百貨店本店(その他)まで820m | ||
| 建物種別 | マンション | 建物構造 | RC(鉄筋コンクリート) |
この部屋の取扱い不動産会社
| 会社名 | トレント 新宿本店(株)クルーズカンパニー(SUUMO経由) | ||
|---|---|---|---|
| 所在地 | 東京都新宿区西新宿1-14-15 | 交通 | - |
| 営業時間 | 10:00-19:00 | 定休日 | - |
| 免許番号 | 東京都知事93971 | 取引態様 | 仲介 |
| 不動産会社管理番号 | 100469494272 | 当社管理番号 | 89 |
| 所属団体 | (公社)全日本不動産協会東京都本部会員 | ||
| 公正取引協議会 | (公社)首都圏不動産公正取引協議会加盟 | ||
| 取扱い物件情報 | 物件詳細へ | ||
※各種情報と現状に差異がある場合は、現状優先となります。問い合わせをすることで、より詳しい条件、情報を確認する事ができます。
提供:トレント 新宿本店(株)クルーズカンパニー(SUUMO経由)
この物件が気になったら掲載期限まであと10日
プレミアムキューブ代々木上原に条件(家賃・エリア)が近い物件一覧
| 写真 | 家賃 管理費等 | 敷金 礼金 | 間取り 専有面積 | 築年数 | 最寄り駅 所在地 | キープ | 詳細 |
|---|---|---|---|---|---|---|---|
アパート フォレスタ世田谷(2LDK/2階) | |||||||
![]() | 18万円 1,000円 | 18万円 なし | 2LDK 47.7m2 | 築55年 | 東急池上線 雪が谷大塚駅 徒歩6分 東急東横線 田園調布駅 徒歩16分 東急目黒線 多摩川駅 徒歩16分 東京都世田谷区東玉川 | 詳細を見る | |
マンション YELLOW PARROT(1LDK/1階) | |||||||
![]() | 16.5万円 9,000円 | 16.5万円 33万円 | 1LDK 39.21m2 | 築7年 | 東急池上線 大崎広小路駅 徒歩6分 JR山手線 五反田駅 徒歩8分 東急目黒線 不動前駅 徒歩10分 東京都品川区西五反田 | 詳細を見る | |
マンション デコート代々木上原(1K/1階) | |||||||
![]() | 12.5万円 5,000円 | 6.25万円 25万円 | 1K 30.88m2 | 築20年 | 東京メトロ千代田線 代々木上原駅 徒歩5分 小田急線 東北沢駅 徒歩12分 小田急線 代々木八幡駅 徒歩13分 東京都渋谷区上原 | 詳細を見る | |
マンション レジディア南品川Ⅱ(2DK/8階) | |||||||
![]() | 21.8万円 2万円 | 21.8万円 21.8万円 | 2DK 41.9m2 | 築11年 | 京浜急行電鉄本線 新馬場駅 徒歩6分 東京都品川区南品川2丁目 | 詳細を見る | |
マンション PISO ARCE SHINAGAWA(1LDK/3階) | |||||||
![]() | 22万円 5,000円 | 22万円 なし | 1LDK 41m2 | 築11年 | JR京浜東北線 大井町駅 徒歩7分 京急本線 青物横丁駅 徒歩10分 京急本線 鮫洲駅 徒歩13分 東京都品川区南品川 | 詳細を見る | |
マンション パークフロント代々木(1LDK/2階) | |||||||
![]() | 20.8万円 7,000円 | 20.8万円 31.2万円 | 1LDK 42.66m2 | 築7年 | 小田急線 代々木八幡駅 徒歩4分 東京メトロ千代田線 代々木公園駅 徒歩4分 東京都渋谷区代々木 | 詳細を見る | |
マンション GRAN PASEO大森Ⅲ(2LDK/1階) | |||||||
![]() | 22万円 1.2万円 | なし なし | 2LDK 42.55m2 | 築2年 | 京浜急行電鉄本線 大森海岸駅 徒歩6分 東京都品川区南大井3丁目 | 詳細を見る | |








