賃貸アパート
KEIAI RESIDENCE 北小金IIの賃貸物件情報(1K/1階)
| 家賃 | 管理費等 | 敷金 | 礼金 | 間取り | 専有面積 |
|---|---|---|---|---|---|
| 6.5万円 | 3,500円 | なし | 6.5万円 | 1K | 23.03m2 |
入居決定でお祝い金最大100,000円
- 保証金
- -
- 償却・敷引
- -
- 築年数
- 築1年
- 所在階
- 1階
- 向き
- 北
Point
こちらのお部屋は建築中でご見学日まで少し時間があります。先行契約で募集しておりますので、契約希望の方はお電話にてお問合せください。申込フォームをお送りいたします!
提供:(株)INTER LIVING日暮里店(SUUMO経由)

詳細情報 KEIAI RESIDENCE 北小金II
物件紹介
KEIAI RESIDENCE 北小金IIはJR常磐線北小金駅から徒歩9分にあり、駅近で通勤通学に便利なアパートです。
建物のエントランスはオートロックがついており、防犯性が高くなっています。
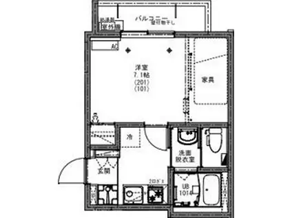
人気の角部屋で周囲の居住者の生活音も気になりにくく、また、フローリングのお部屋なのでお掃除もラクラク。室内にはウォークインクローゼットがありますので、たくさんの荷物も効率的に収納ができます。キッチンはシステムキッチン仕様になっていますので、お料理好きの方にもぴったり。バス・トイレは別なので、のんびりお風呂タイムも楽しめるでしょう。また、雨の日でも浴室乾燥機を使えば、お洗濯も問題ありません。
通信設備面では、インターネットが無料で使えるので、月々の出費を抑えられるのも魅力です。また、CATVにも対応しているので、おうち時間も充実するでしょう(別途工事、CATVの契約料等が必要な場合あり)。
共用部には宅配ボックスが設定されているので、不在の時にも荷物を受け取ることができます。
建物のエントランスはオートロックがついており、防犯性が高くなっています。
人気の角部屋で周囲の居住者の生活音も気になりにくく、また、フローリングのお部屋なのでお掃除もラクラク。室内にはウォークインクローゼットがありますので、たくさんの荷物も効率的に収納ができます。キッチンはシステムキッチン仕様になっていますので、お料理好きの方にもぴったり。バス・トイレは別なので、のんびりお風呂タイムも楽しめるでしょう。また、雨の日でも浴室乾燥機を使えば、お洗濯も問題ありません。
通信設備面では、インターネットが無料で使えるので、月々の出費を抑えられるのも魅力です。また、CATVにも対応しているので、おうち時間も充実するでしょう(別途工事、CATVの契約料等が必要な場合あり)。
共用部には宅配ボックスが設定されているので、不在の時にも荷物を受け取ることができます。
お金・契約の情報
※「-」と表示されているものは、実際は料金が発生するものもございます。詳細はお問い合わせください。
| 家賃 | 6.5万円 | 管理費・共益費 | 3,500円 |
|---|---|---|---|
| 敷金 | なし | 礼金 | 6.5万円 |
| 入居決定でお祝い金最大100,000円 | |||
| 保証金 | - | 償却・敷引 | - |
| 住宅保険料 | - | 更新料 | - |
| 保証会社利用 | 必須 | 保証会社名 | - |
| 保証会社費用 | - | 保証会社備考 | 保証会社利用必 初回保証料:家賃総額50% 月額保証料:900円/月 |
| 契約形態 | - | 契約期間 | - |
| 入居・引渡期間 | 即時 | 現況 | - |
| 契約備考 | サイトの閲覧、ありがとうございます!お電話でのお問い合わせならリアルタイムで募集状況をご確認頂けます!LINEでのご相談ご対応も可能です!お気軽にお問い合わせください(^^♪ 弊社Google口コミも是非一度ご覧ください!!※短期解約違約金あり 合計4.4万円(内訳:契約事務手数料1.65万円鍵交換代2.75万円) 更新料 新賃料1.00ヶ月分 室内清掃費用 55000円 KEIAICLUB 月額2750円 1K 普通借家2年 損保【要】 バストイレ別、バルコニー、エアコン、ガスコンロ対応、クロゼット、フローリング、シャワー付洗面台、浴室乾燥機、オートロック、室内洗濯置、シューズボックス、システムキッチン、角住戸、温水洗浄便座、脱衣所、洗面所独立、洗面化粧台、2口コンロ、宅配ボックス、CATV、即入居可、敷金不要、ロフト、全居室フローリング、ディンプルキー、ネット専用回線、ネット使用料不要、保証金不要、24時間換気システム、浴室未使用、3駅以上利用可、敷地内ごみ置き場、キッチン未使用、プロパンガス、洗面所にドア、室内物干機 | ||
部屋の情報
| 間取り | 1K | 専有面積 | 23.03m2 |
|---|---|---|---|
| 所在階 / 向き | 1階 / 北 | バルコニー面積 | - |
| 水道 / ガス | - | ||
| 設備 | バス・トイレ別、オートロック、宅配ボックス、浴室乾燥機、インターネット対応、システムキッチン、エアコン、温水洗浄便座、角部屋、バルコニー、フローリング、ロフトあり、洗髪洗面化粧台、2口コンロ、コンロ:ガス、CATV、インターネット使用料無料、洗濯機:室内 | ||
| 当社物件ID | 160119963 | ||
建物の情報
| 建物名 | KEIAI RESIDENCE 北小金II | ||
|---|---|---|---|
| 所在地 | 千葉県松戸市小金きよしケ丘 | ||
| 交通 | JR常磐線 北小金駅 徒歩9分 JR常磐線 新松戸駅 徒歩20分 流鉄流山線 幸谷駅 徒歩22分 | ||
| 階数 | 3階建 | 総戸数 | - |
| 築年月 | 2026年02月 / 築1年 | エレベーター | - |
| 駐車場 | なし | バイク置き場 | - |
| 駐輪場 | - | 管理人/管理会社 | - |
| 周辺環境 | その他 コモディイイダ 北小金店(スーパー)まで518m その他 イオン北小金店(スーパー)まで754m その他 ファミリーマート 松戸小金店(コンビニ)まで629m その他 ドラッグストアマツモトキヨシ 松戸小金店(ドラッグストア)まで518m | ||
| 建物種別 | アパート | 建物構造 | 木造 |
この部屋の取扱い不動産会社
| 会社名 | (株)INTER LIVING日暮里店(SUUMO経由) | ||
|---|---|---|---|
| 所在地 | 東京都荒川区東日暮里5-52-10 エスポワール日暮里1階 | 交通 | - |
| 営業時間 | AM10:00~PM20:00 | 定休日 | 毎週水曜日 |
| 免許番号 | 東京都知事93045 | 取引態様 | 仲介 |
| 不動産会社管理番号 | 100480232355 | 当社管理番号 | 89 |
| 所属団体 | (公社)東京都宅地建物取引業協会会員 | ||
| 公正取引協議会 | (公社)首都圏不動産公正取引協議会加盟 | ||
| 取扱い物件情報 | 物件詳細へ | ||
※各種情報と現状に差異がある場合は、現状優先となります。問い合わせをすることで、より詳しい条件、情報を確認する事ができます。
提供:(株)INTER LIVING日暮里店(SUUMO経由)
この物件が気になったら掲載期限まであと10日
KEIAI RESIDENCE 北小金IIに条件(家賃・エリア)が近い物件一覧
| 写真 | 家賃 管理費等 | 敷金 礼金 | 間取り 専有面積 | 築年数 | 最寄り駅 所在地 | キープ | 詳細 |
|---|---|---|---|---|---|---|---|
アパート FREAHEIM(1LDK/1階) | |||||||
![]() | 9.4万円 4,000円 | 9.4万円 9.4万円 | 1LDK 50.47m2 | 築14年 | つくばエクスプレス 柏たなか駅 徒歩3分 つくばエクスプレス 柏の葉キャンパス駅 徒歩27分 JR常磐線 北柏駅 徒歩65分 千葉県柏市小青田 | 詳細を見る | |
アパート オースティンハウスⅠ(2LDK/2階) | |||||||
![]() | 8.3万円 3,500円 | なし 12.3万円 | 2LDK 54.67m2 | 築14年 | つくばエクスプレス 柏たなか駅 徒歩8分 つくばエクスプレス 柏の葉キャンパス駅 徒歩21分 千葉県柏市大室 | 詳細を見る | |
マンション ハナミズキ宮園(3LDK/3階) | |||||||
![]() | 10.5万円 8,000円 | 10.5万円 なし | 3LDK 63m2 | 築29年 | 流鉄流山線 鰭ケ崎駅 徒歩3分 つくばエクスプレス 南流山駅 徒歩12分 つくばエクスプレス 流山セントラルパーク駅 徒歩22分 千葉県流山市宮園 | 詳細を見る | |
アパート ウィズ南行徳(2DK/1階) | |||||||
![]() | 8.3万円 2,000円 | 8.3万円 なし | 2DK 41.32m2 | 築39年 | 東京地下鉄東西線 南行徳駅 徒歩9分 東京地下鉄東西線 浦安駅(千葉) 徒歩14分 千葉県市川市新井3丁目 | 詳細を見る | |
マンション リーブル北小金(1K/2階) | |||||||
![]() | 4.9万円 5,000円 | なし なし | 1K 18.9m2 | 築34年 | JR常磐線 北小金駅 徒歩13分 JR武蔵野線 新松戸駅 徒歩15分 流鉄流山線 幸谷駅 徒歩18分 千葉県松戸市小金上総町 | 詳細を見る | |
マンション ニューパル皆川(2DK/1階) | |||||||
![]() | 5.8万円 2,000円 | 5.8万円 なし | 2DK 43.7m2 | 築41年 | JR武蔵野線 船橋法典駅 徒歩16分 京成本線 東中山駅 徒歩32分 京成本線 京成中山駅 徒歩33分 千葉県市川市北方町 | 詳細を見る | |
マンション ルフォンプログレ中野坂上(1LDK/4階) | |||||||
![]() | 24.3万円 1.8万円 | 24.3万円 24.3万円 | 1LDK 40.59m2 | 築4年 | 東京メトロ丸ノ内線 中野坂上駅 徒歩5分 都営大江戸線 西新宿五丁目駅 徒歩9分 東京メトロ丸ノ内線 西新宿駅 徒歩10分 東京都中野区本町 | 詳細を見る | |
アパート デイズガーデン(2LDK/4階) | |||||||
![]() | 7.9万円 5,000円 | なし なし | 2LDK 58m2 | 築39年 | JR常磐線 南柏駅 徒歩15分 東武野田線 新柏駅 徒歩22分 JR常磐線 柏駅 徒歩26分 千葉県柏市豊四季 | 詳細を見る | |









