賃貸マンション
スタイリオ桜新町の賃貸物件情報(2LDK/1階)
| 家賃 | 管理費等 | 敷金 | 礼金 | 間取り | 専有面積 |
|---|---|---|---|---|---|
| 30万円 | 1.5万円 | 30万円 | なし | 2LDK | 52.52m2 |
入居決定でお祝い金最大100,000円
Point
まずはお問い合わせ!
不動産会社は街のプロ、あなたに合った物件がきっと見つかります。
提供:東急リバブル(株)三軒茶屋センター(SUUMO経由)

詳細情報 スタイリオ桜新町
物件紹介
スタイリオ桜新町は東急田園都市線桜新町駅から徒歩6分にあり、駅近で通勤通学に便利なマンションです。
建物のエントランスはオートロックがついており、インターホンにはTVモニタもついているため、相手の顔を確認してから来客対応することができます。
人気の角部屋で周囲の居住者の生活音も気になりにくく、また、フローリングのお部屋なのでお掃除もラクラク。キッチンはシステムキッチン仕様になっていますので、お料理好きの方にもぴったり。バス・トイレは別なので、のんびりお風呂タイムも楽しめるでしょう。また、雨の日でも浴室乾燥機を使えば、お洗濯も問題ありません。
通信設備面では、インターネットが無料で使えるので、月々の出費を抑えられるのも魅力です。また、BSアンテナ・CSアンテナもありますので、おうち時間も充実するでしょう(別途工事、BS・CSの契約料等が必要な場合あり)。
建物にはエレベーターがついているので、重い荷物があっても安心。共用部には宅配ボックスが設定されているので、不在の時にも荷物を受け取ることができます。
建物のエントランスはオートロックがついており、インターホンにはTVモニタもついているため、相手の顔を確認してから来客対応することができます。
人気の角部屋で周囲の居住者の生活音も気になりにくく、また、フローリングのお部屋なのでお掃除もラクラク。キッチンはシステムキッチン仕様になっていますので、お料理好きの方にもぴったり。バス・トイレは別なので、のんびりお風呂タイムも楽しめるでしょう。また、雨の日でも浴室乾燥機を使えば、お洗濯も問題ありません。
通信設備面では、インターネットが無料で使えるので、月々の出費を抑えられるのも魅力です。また、BSアンテナ・CSアンテナもありますので、おうち時間も充実するでしょう(別途工事、BS・CSの契約料等が必要な場合あり)。
建物にはエレベーターがついているので、重い荷物があっても安心。共用部には宅配ボックスが設定されているので、不在の時にも荷物を受け取ることができます。
お金・契約の情報
※「-」と表示されているものは、実際は料金が発生するものもございます。詳細はお問い合わせください。
| 家賃 | 30万円 | 管理費・共益費 | 1.5万円 |
|---|---|---|---|
| 敷金 | 30万円 | 礼金 | なし |
| フリーレント | 1ヶ月 | ||
| 入居決定でお祝い金最大100,000円 | |||
| 保証金 | - | 償却・敷引 | - |
| 住宅保険料 | 1円 | 更新料 | - |
| 保証会社利用 | 必須 | 保証会社名 | - |
| 保証会社費用 | - | 保証会社備考 | あんしんQ−Rent 初回保証料:賃料等の50%(最低2万)、月次保証料:賃料等の1%、口座振替手数料借主負担 |
| 契約形態 | - | 契約期間 | 2年 |
| 入居・引渡期間 | 2026年03月下旬 | 現況 | - |
| 契約備考 | 清掃費:55880円(退去時請求).エアコン清掃費:33000円(退去時請求) フリーレント備考:賃料分 2年未満解約時賃料1ヶ月分違約金有 その他設備/条件:室内洗濯機置き場、防犯カメラ、シューズボックス | ||
部屋の情報
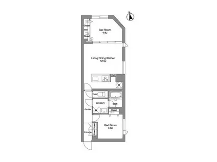
| 間取り | 2LDK | 専有面積 | 52.52m2 |
|---|---|---|---|
| 間取り詳細 | LDK(12.5帖)、洋室(4.8帖)、洋室(4.8帖) | ||
| 所在階 / 向き | 1階 / 東 | バルコニー面積 | - |
| 水道 / ガス | - | ||
| 設備 | バス・トイレ別、オートロック、テレビドアホン、宅配ボックス、浴室乾燥機、追い焚き、システムキッチン、エアコン、エレベーター、温水洗浄便座、角部屋、CSアンテナ、BSアンテナ、インターネット使用料無料 | ||
| 当社物件ID | 160406467 | ||
建物の情報
| 建物名 | スタイリオ桜新町 | ||
|---|---|---|---|
| 所在地 | 東京都世田谷区新町2丁目 | ||
| 交通 | 東急田園都市線 桜新町駅 徒歩6分 | ||
| 階数 | 9階建 | 総戸数 | 17戸 |
| 築年月 | 2026年02月 / 新築(築1年) | エレベーター | あり |
| 駐車場 | なし | バイク置き場 | - |
| 駐輪場 | - | 管理人/管理会社 | - |
| 周辺環境 | その他 ドラッグストア その他 公園 その他 銀行 その他 * | ||
| 建物種別 | マンション | 建物構造 | RC(鉄筋コンクリート) |
この部屋の取扱い不動産会社
| 会社名 | ハウスコム東神奈川株式会社 溝の口店 | ||
|---|---|---|---|
| 所在地 | 神奈川県川崎市高津区8-1溝ノ口丸広ビル1階 | 交通 | - |
| 営業時間 | 10:00~18:00 | 定休日 | - |
| 免許番号 | 神奈川県知事(1)第31769号 | 取引態様 | 仲介 |
| 不動産会社管理番号 | HC5-5381613-101-0073 | 当社管理番号 | 468 |
| 所属団体 | 、 | ||
| 取扱い物件情報 | 物件詳細へ | ||
※各種情報と現状に差異がある場合は、現状優先となります。問い合わせをすることで、より詳しい条件、情報を確認する事ができます。
提供:ハウスコム東神奈川株式会社 溝の口店
この物件が気になったら掲載期限まであと4日
スタイリオ桜新町に条件(家賃・エリア)が近い物件一覧
| 写真 | 家賃 管理費等 | 敷金 礼金 | 間取り 専有面積 | 築年数 | 最寄り駅 所在地 | キープ | 詳細 |
|---|---|---|---|---|---|---|---|
マンション シルエット元代々木 事務所SOHO可サロン等おすすめ(ワンルーム/2階) | |||||||
![]() | 23.1万円 7,000円 | 46.2万円 46.2万円 | ワンルーム 42m2 | 築23年 | 小田急線 代々木八幡駅 徒歩6分 東京メトロ千代田線 代々木上原駅 徒歩6分 東京都渋谷区元代々木町 | 詳細を見る | |
マンション カンタービレ荻窪(2LDK/3階) | |||||||
![]() | 35.8万円 1.2万円 | 35.8万円 35.8万円 | 2LDK 76.2m2 | 新築 | JR中央線 荻窪駅 徒歩7分 JR総武線 荻窪駅 徒歩7分 東京メトロ丸ノ内線 荻窪駅 徒歩8分 東京都杉並区天沼 | 詳細を見る | |
マンション GRANPASEO下北沢(ワンルーム/3階) | |||||||
![]() | 19.9万円 1.2万円 | なし なし | ワンルーム 43.12m2 | 築2年 | 京王井の頭線 池ノ上駅 徒歩2分 京王井の頭線 下北沢駅 徒歩8分 小田急線 東北沢駅 徒歩9分 東京都世田谷区北沢 | 詳細を見る | |
アパート ESTELL(2LDK/1階) | |||||||
![]() | 20万円 1万円 | 20万円 20万円 | 2LDK 48.75m2 | 新築 | 京王新線 幡ケ谷駅 徒歩6分 京王新線 初台駅 徒歩8分 都営大江戸線 西新宿五丁目駅 徒歩15分 東京都渋谷区本町 | 詳細を見る | |
マンション カーサスプレンディッド代官山(1K/1階) | |||||||
![]() | 18.5万円 1万円 | 18.5万円 なし | 1K 31.91m2 | 築11年 | 東急東横線 代官山駅 徒歩5分 JR山手線 恵比寿駅 徒歩7分 JR山手線 渋谷駅 徒歩14分 東京都渋谷区恵比寿西 | 詳細を見る | |
マンション AELL南荻窪(1LDK/7階) | |||||||
![]() | 18万円 2万円 | なし なし | 1LDK 41.69m2 | 築5年 | JR中央線 荻窪駅 徒歩15分 京王井の頭線 高井戸駅 徒歩17分 京王井の頭線 富士見ケ丘駅 徒歩25分 東京都杉並区南荻窪 | 詳細を見る | |
マンション LUMIEC UN YOGA(2LDK/1階) | |||||||
![]() | 23.9万円 2万円 | なし なし | 2LDK 47.1m2 | 築2年 | 東急田園都市線 用賀駅 徒歩7分 東急大井町線 二子玉川駅 徒歩19分 東急大井町線 上野毛駅 徒歩21分 東京都世田谷区玉川台 | 詳細を見る | |








