賃貸マンション
PARK AXIS 辰巳STAGEの賃貸物件情報(3LDK/11階)
| 家賃 | 管理費等 | 敷金 | 礼金 | 間取り | 専有面積 |
|---|---|---|---|---|---|
| 28万円 | 1.5万円 | 28万円 | 28万円 | 3LDK | 77.02m2 |
入居決定でお祝い金最大100,000円
- 保証金
- -
- 償却・敷引
- -
- 築年数
- 築18年
- 所在階
- 11階
- 向き
- 西
Point
眺望良好!!★弊社仲介手数料無料対象建物■ペット可小型犬・猫二匹相談可能■大型バイク置場有り■ホテルライクなグランドロビー&内廊下タイプで女性も安心■お洒落でスタイリッシュな分譲並みの仕様設備
提供:(株)アプレム(SUUMO経由)

詳細情報 PARK AXIS 辰巳STAGE
物件紹介
PARK AXIS 辰巳STAGEは東京メトロ有楽町線辰巳駅から徒歩6分にあり、駅近で通勤通学に便利なマンションです。
このお部屋は2階以上に位置しているので、通行人や周囲の住人からの視線が気になりにくく、防犯面でも安心。建物のエントランスはオートロックがついており、インターホンにはTVモニタもついているため、相手の顔を確認してから来客対応することができます。
こちらは楽器相談が可能な物件。楽器演奏をお考えの方はぜひ相談してみてください。人気の角部屋で周囲の居住者の生活音も気になりにくく、また、フローリングのお部屋なのでお掃除もラクラク。室内にはウォークインクローゼットがありますので、たくさんの荷物も効率的に収納ができます。キッチンはシステムキッチン仕様になっていますので、お料理好きの方にもぴったり。バス・トイレは別なので、のんびりお風呂タイムも楽しめるでしょう。また、雨の日でも浴室乾燥機を使えば、お洗濯も問題ありません。
通信設備面では、インターネット接続が可能です。また、BSアンテナ・CSアンテナがありCATVにも対応しているので、おうち時間も充実するでしょう(別途工事、契約料が必要な場合あり)。
建物にはエレベーターがついているので、重い荷物があっても安心。共用部には宅配ボックスが設定されているので、不在の時にも荷物を受け取ることができます。また、ペット飼育の相談ができますので、あなたの大切な家族の一員も快適に暮らせるか、ぜひ確認してみてください。
このお部屋は2階以上に位置しているので、通行人や周囲の住人からの視線が気になりにくく、防犯面でも安心。建物のエントランスはオートロックがついており、インターホンにはTVモニタもついているため、相手の顔を確認してから来客対応することができます。
こちらは楽器相談が可能な物件。楽器演奏をお考えの方はぜひ相談してみてください。人気の角部屋で周囲の居住者の生活音も気になりにくく、また、フローリングのお部屋なのでお掃除もラクラク。室内にはウォークインクローゼットがありますので、たくさんの荷物も効率的に収納ができます。キッチンはシステムキッチン仕様になっていますので、お料理好きの方にもぴったり。バス・トイレは別なので、のんびりお風呂タイムも楽しめるでしょう。また、雨の日でも浴室乾燥機を使えば、お洗濯も問題ありません。
通信設備面では、インターネット接続が可能です。また、BSアンテナ・CSアンテナがありCATVにも対応しているので、おうち時間も充実するでしょう(別途工事、契約料が必要な場合あり)。
建物にはエレベーターがついているので、重い荷物があっても安心。共用部には宅配ボックスが設定されているので、不在の時にも荷物を受け取ることができます。また、ペット飼育の相談ができますので、あなたの大切な家族の一員も快適に暮らせるか、ぜひ確認してみてください。
お金・契約の情報
※「-」と表示されているものは、実際は料金が発生するものもございます。詳細はお問い合わせください。
| 家賃 | 28万円 | 管理費・共益費 | 1.5万円 |
|---|---|---|---|
| 敷金 | 28万円 | 礼金 | 28万円 |
| 入居決定でお祝い金最大100,000円 | |||
| 保証金 | - | 償却・敷引 | - |
| 住宅保険料 | - | 更新料 | - |
| 保証会社利用 | 必須 | 保証会社名 | - |
| 保証会社費用 | - | 保証会社備考 | 保証会社利用必 初回保証料:月額賃料等の50%相当額 |
| 契約形態 | - | 契約期間 | - |
| 入居・引渡期間 | - | 現況 | - |
| 入居可能条件 | 楽器相談、ペット相談 | ||
| 契約備考 | 通勤管理/★ペット可小型犬・猫二匹まで★ピアノ相談可★大型バイクパーキング★屋内平置きタイプ駐車場★ 3LDK 二人入居可/子供可/ペット相談/楽器相談 損保【要】 バストイレ別、エアコン、クロゼット、TVインターホン、浴室乾燥機、オートロック、室内洗濯置、陽当り良好、システムキッチン、追焚機能浴室、角住戸、温水洗浄便座、脱衣所、洗面所独立、駐輪場、宅配ボックス、CATV、光ファイバー、BS・CS、3口以上コンロ、対面式キッチン、防犯カメラ、ペット相談、全居室収納、グリル付、振分、ウォークインクロゼット、保証人不要、仲介手数料不要、バイク置場、全居室フローリング、ガスレンジ付、玄関ホール、LDK15畳以上、緑豊かな住宅地、眺望良好、ダブルロックキー、楽器相談、ペット専用設備、エレベーター2基、3駅以上利用可、3沿線以上利用可、駅徒歩5分以内、天井高2.5m以上、高層階、集会所、24時間ゴミ出し可、風除室、敷地内ごみ置き場、平面駐車場、自走式駐車場、日勤管理、洗面所にドア、三面鏡付洗面化粧台、ワイドバルコニー、天井高シューズクロゼット、玄関収納、ダウンライト、礼金1ヶ月、保証会社利用可 入居日:'26年1月下旬 | ||
部屋の情報
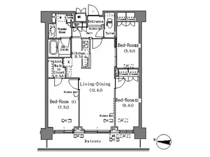
| 間取り | 3LDK | 専有面積 | 77.02m2 |
|---|---|---|---|
| 所在階 / 向き | 11階 / 西 | バルコニー面積 | - |
| 水道 / ガス | - | ||
| 設備 | バス・トイレ別、2階以上、オートロック、テレビドアホン、宅配ボックス、浴室乾燥機、ウォークインクローゼット、追い焚き、インターネット対応、システムキッチン、エアコン、エレベーター、温水洗浄便座、角部屋、バルコニー、フローリング、洗髪洗面化粧台、2口コンロ、コンロ:ガス、CATV、CSアンテナ、BSアンテナ、洗濯機:室内 | ||
| 当社物件ID | 139833353 | ||
建物の情報
| 建物名 | PARK AXIS 辰巳STAGE | ||
|---|---|---|---|
| 所在地 | 東京都江東区辰巳 | ||
| 交通 | 東京メトロ有楽町線 辰巳駅 徒歩6分 りんかい線 東雲駅(東京) 徒歩15分 東京メトロ有楽町線 新木場駅 徒歩16分 | ||
| 階数 | 地下1地上13階建 | 総戸数 | - |
| 築年月 | 2008年01月 / 築18年 | エレベーター | あり |
| 駐車場 | なし | バイク置き場 | あり |
| 駐輪場 | あり | 管理人/管理会社 | - |
| 周辺環境 | その他 辰巳第三保育園(幼稚園・保育園)まで314m その他 イオン東雲ショッピングセンター(ショッピングセンター)まで1000m その他 ワイズマート(スーパー)まで480m その他 サンクスポートストア辰巳店(コンビニ)まで110m その他 辰巳の森(公園)まで20m その他 辰巳の森海浜公園(公園)まで180m | ||
| 建物種別 | マンション | 建物構造 | RC(鉄筋コンクリート) |
この部屋の取扱い不動産会社
| 会社名 | (株)アプレム(SUUMO経由) | ||
|---|---|---|---|
| 所在地 | 東京都中央区月島1-12-12 | 交通 | - |
| 営業時間 | 10:00~19:00 | 定休日 | 水曜日 |
| 免許番号 | 東京都知事99527 | 取引態様 | 仲介 |
| 不動産会社管理番号 | 100473096490 | 当社管理番号 | 89 |
| 所属団体 | (公社)東京都宅地建物取引業協会会員 | ||
| 公正取引協議会 | (公社)首都圏不動産公正取引協議会加盟 | ||
| 取扱い物件情報 | 物件詳細へ | ||
※各種情報と現状に差異がある場合は、現状優先となります。問い合わせをすることで、より詳しい条件、情報を確認する事ができます。
提供:(株)アプレム(SUUMO経由)
この物件が気になったら掲載期限まであと10日
PARK AXIS 辰巳STAGEに条件(家賃・エリア)が近い物件一覧
| 写真 | 家賃 管理費等 | 敷金 礼金 | 間取り 専有面積 | 築年数 | 最寄り駅 所在地 | キープ | 詳細 |
|---|---|---|---|---|---|---|---|
マンション パークアクシス本所・親水公園(1LDK/8階) | |||||||
![]() | 19.4万円 1.5万円 | なし なし | 1LDK 40.52m2 | 築5年 | 東京都浅草線 本所吾妻橋駅 徒歩9分 東京地下鉄半蔵門線 押上駅 徒歩10分 総武・中央緩行線 錦糸町駅 徒歩19分 東京都墨田区本所4丁目 | 詳細を見る | |
マンション ALTERNA菊川Ⅱ(1LDK/2階) | |||||||
![]() | 20.8万円 1.5万円 | なし なし | 1LDK 41.59m2 | 築4年 | 東京都新宿線 菊川駅(東京) 徒歩5分 東京都大江戸線 森下駅(東京) 徒歩13分 総武本線 錦糸町駅 徒歩15分 東京都墨田区立川4丁目 | 詳細を見る | |
マンション ガリシア西馬込(1LDK/3階) | |||||||
![]() | 17.6万円 2万円 | なし なし | 1LDK 40.8m2 | 築3年 | 都営浅草線 西馬込駅 徒歩8分 東急池上線 池上駅 徒歩19分 東急池上線 久が原駅 徒歩20分 東京都大田区仲池上 | 詳細を見る | |
マンション ジェノヴィア両国IVスカイガーデン(1LDK/2階) | |||||||
![]() | 18.4万円 1.5万円 | なし なし | 1LDK 41.65m2 | 築6年 | 都営大江戸線 両国駅 徒歩6分 都営浅草線 蔵前駅 徒歩7分 JR総武線 両国駅 徒歩12分 東京都墨田区石原 | 詳細を見る | |
マンション KDX大伝馬レジデンス(1LDK/6階) | |||||||
![]() | 17.9万円 1.2万円 | 17.9万円 17.9万円 | 1LDK 42.28m2 | 築19年 | 東京メトロ日比谷線 小伝馬町駅 徒歩2分 JR総武線快速 新日本橋駅 徒歩5分 都営浅草線 人形町駅 徒歩8分 東京都中央区日本橋大伝馬町 | 詳細を見る | |
マンション レジディア錦糸町(1LDK/11階) | |||||||
![]() | 19.8万円 1.5万円 | 19.8万円 なし | 1LDK 40.02m2 | 築19年 | 東京地下鉄半蔵門線 錦糸町駅 徒歩5分 総武・中央緩行線 錦糸町駅 徒歩5分 東京都新宿線 住吉駅(東京) 徒歩17分 東京都墨田区錦糸1丁目 | 詳細を見る | |
マンション ASTILE日本橋浜町(1LDK/2階) | |||||||
![]() | 19.3万円 1.5万円 | なし なし | 1LDK 40.02m2 | 築3年 | 東京都新宿線 浜町駅 徒歩6分 東京地下鉄半蔵門線 水天宮前駅 徒歩8分 東京都大江戸線 森下駅(東京) 徒歩10分 東京都中央区日本橋浜町3丁目 | 詳細を見る | |
マンション ジーグランデ森下(1LDK/5階) | |||||||
![]() | 20.2万円 1万円 | なし なし | 1LDK 44.03m2 | 築1年 | 東京都新宿線 森下駅(東京) 徒歩5分 東京都大江戸線 両国駅 徒歩9分 総武・中央緩行線 両国駅 徒歩9分 東京都墨田区千歳3丁目 | 詳細を見る | |









