賃貸マンション
京都市烏丸線 丸太町駅(京都市営) 徒歩7分 3階建 築34年の賃貸物件情報(1LDK/3階)
| 家賃 | 管理費等 | 敷金 | 礼金 | 間取り | 専有面積 |
|---|---|---|---|---|---|
| 9.5万円 | 7,000円 | なし | 9.5万円 | 1LDK | 46.33m2 |
入居決定でお祝い金最大100,000円
- 保証金
- -
- 償却・敷引
- -
- 築年数
- 築34年
- 所在階
- 3階
- 向き
- 北
- 交通
- 京都市烏丸線 丸太町駅(京都市営) 徒歩7分
京都市烏丸線 烏丸御池駅 徒歩14分
- 所在地
- 京都府京都市中京区橋本町
[地図を表示]
Point
二条城&御所 好環境 地下鉄丸太町駅まで徒歩8分のデザイナーズマンションです。
提供:株式会社 京都ライフ 河原町四条店(賃貸スモッカ経由)

詳細情報 京都市烏丸線 丸太町駅(京都市営) 徒歩7分 3階建 築34年
物件紹介
京都市烏丸線丸太町駅から徒歩7分にあり、駅近で通勤通学に便利なマンションです。
このお部屋は2階以上に位置しているので通行人や周囲の住人からの視線が気になりにくく、建物のエントランスはオートロックがついているので防犯性が高くなっています。
おしゃれなデザイナーズ物件!人気の角部屋で周囲の居住者の生活音も気になりにくく、また、フローリングのお部屋なのでお掃除もラクラク。キッチンはシステムキッチン仕様になっていますので、お料理好きの方にもぴったり。また、バス・トイレは別で、のんびりお風呂タイムも楽しめるでしょう。
通信設備面では、インターネット接続が可能です。また、BSアンテナもありますので、おうち時間も充実するでしょう(別途工事、契約料が必要な場合あり)。
建物にはエレベーターがついているので、重い荷物があっても安心。
このお部屋は2階以上に位置しているので通行人や周囲の住人からの視線が気になりにくく、建物のエントランスはオートロックがついているので防犯性が高くなっています。
おしゃれなデザイナーズ物件!人気の角部屋で周囲の居住者の生活音も気になりにくく、また、フローリングのお部屋なのでお掃除もラクラク。キッチンはシステムキッチン仕様になっていますので、お料理好きの方にもぴったり。また、バス・トイレは別で、のんびりお風呂タイムも楽しめるでしょう。
通信設備面では、インターネット接続が可能です。また、BSアンテナもありますので、おうち時間も充実するでしょう(別途工事、契約料が必要な場合あり)。
建物にはエレベーターがついているので、重い荷物があっても安心。
お金・契約の情報
※「-」と表示されているものは、実際は料金が発生するものもございます。詳細はお問い合わせください。
| 家賃 | 9.5万円 | 管理費・共益費 | 7,000円 |
|---|---|---|---|
| 敷金 | なし | 礼金 | 9.5万円 |
| 入居決定でお祝い金最大100,000円 | |||
| 保証金 | - | 償却・敷引 | - |
| 住宅保険料 | 住宅保険料あり | 更新料 | - |
| 契約形態 | - | 契約期間 | 2年 |
| 入居・引渡期間 | 2026年03月下旬 | 現況 | 賃貸中 |
| 契約備考 | 嬉しい3点セパレートなど充実の設備。オートロック、TVホンでセキュリティも安心です。コンビニ、スーパーなど近くにあって便利ですよ。光ファイバー対応しています。 ゴミ処理代:330円 給湯基本料:1,527円 町会費:500円 更新料:1ヶ月 保証会社:利用必須 初回:月額賃料等の40%/2年、月額:支払い手数料880円、更新時:月額賃料等の20%/2年 その他設備/条件:最上階の物件、コンロ2口以上、TVドアホン | ||
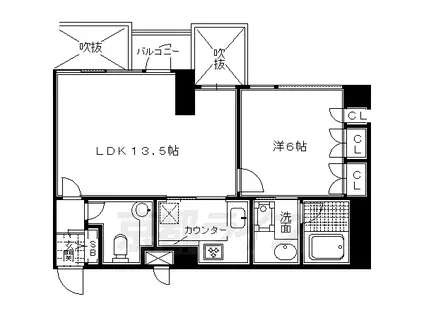
部屋の情報
| 間取り | 1LDK | 専有面積 | 46.33m2 |
|---|---|---|---|
| 間取り詳細 | 洋室(6帖)、LDK(13.5帖) | ||
| 所在階 / 向き | 3階 / 北 | バルコニー面積 | - |
| 水道 / ガス | ガス【都市】 | ||
| 設備 | バス・トイレ別、2階以上、オートロック、インターネット対応、システムキッチン、エアコン、エレベーター、角部屋、バルコニー、フローリング、コンロ:ガス、デザイナーズ、BSアンテナ、洗濯機:室内 | ||
| 当社物件ID | 160338364 | ||
建物の情報
| 建物名 | 京都市烏丸線 丸太町駅(京都市営) 徒歩7分 3階建 築34年 | ||
|---|---|---|---|
| 所在地 | 京都府京都市中京区橋本町 | ||
| 交通 | 京都市烏丸線 丸太町駅(京都市営) 徒歩7分 京都市烏丸線 烏丸御池駅 徒歩14分 | ||
| 階数 | 3階建 | 総戸数 | - |
| 築年月 | 1992年03月 / 築34年 | エレベーター | あり |
| 駐車場 | - | バイク置き場 | - |
| 駐輪場 | あり | 管理人/管理会社 | - |
| 建物種別 | マンション | 建物構造 | RC(鉄筋コンクリート) |
この部屋の取扱い不動産会社
| 会社名 | 株式会社 京都ライフ 河原町四条店(賃貸スモッカ経由) | ||
|---|---|---|---|
| 所在地 | 京都市中京区河原町通三条下る三丁目奈良屋町291-2 Wise core BLD.1階 | 交通 | - |
| 営業時間 | - | 定休日 | - |
| 免許番号 | 京都府知事(11)第6353号 | 取引態様 | 仲介 |
| 不動産会社管理番号 | kyotolife_08407-303-26 | 当社管理番号 | 463 |
| 所属団体 | 京都府宅地建物取引業協会\n公益社団法人近畿地区不動産公正取引協議会 | ||
| 公正取引協議会 | 全国宅地建物取引業保証協会 | ||
| 取扱い物件情報 | 物件詳細へ | ||
※各種情報と現状に差異がある場合は、現状優先となります。問い合わせをすることで、より詳しい条件、情報を確認する事ができます。
提供:株式会社 京都ライフ 河原町四条店(賃貸スモッカ経由)
この物件が気になったら掲載期限まであと5日
京都市烏丸線 丸太町駅(京都市営) 徒歩7分 3階建 築34年に条件(家賃・エリア)が近い物件一覧
| 写真 | 家賃 管理費等 | 敷金 礼金 | 間取り 専有面積 | 築年数 | 最寄り駅 所在地 | キープ | 詳細 |
|---|---|---|---|---|---|---|---|
アパート 京阪電気鉄道京阪線 橋本駅(京都) 徒歩2分 築11年(1LDK/1階) | |||||||
![]() | 7.9万円 8,000円 | なし 16万円 | 1LDK 42.49m2 | 築11年 | 京阪電気鉄道京阪線 橋本駅(京都) 徒歩2分 京阪電気鉄道京阪線 石清水八幡宮駅 徒歩19分 京都府八幡市橋本中ノ町 | 詳細を見る | |
マンション 京都市烏丸線 丸太町駅(京都市営) 徒歩4分 築41年(1LDK/4階) | |||||||
![]() | 10万円 7,000円 | なし 10万円 | 1LDK 37.72m2 | 築41年 | 京都市烏丸線 丸太町駅(京都市営) 徒歩4分 京都市東西線 二条城前駅 徒歩12分 京都府京都市中京区桝屋町 | 詳細を見る | |
アパート 奈良線 木幡駅(JR) 徒歩11分 築9年(1LDK/1階) | |||||||
![]() | 8.5万円 8,000円 | なし 15万円 | 1LDK 44.45m2 | 築9年 | 奈良線 木幡駅(JR) 徒歩11分 京阪電気鉄道宇治線 木幡駅(京阪) 徒歩14分 京都府宇治市木幡 | 詳細を見る | |
一戸建て 奈良線 新田駅(京都) 徒歩15分 築54年(2LDK) | |||||||
![]() | 7.5万円 なし | 15万円 7.5万円 | 2LDK 53.38m2 | 築54年 | 奈良線 新田駅(京都) 徒歩15分 近鉄京都線 大久保駅(京都) 徒歩19分 京都府宇治市神明宮東 | 詳細を見る | |
マンション 山陰本線 円町駅 徒歩2分 築1年(1DK/5階) | |||||||
![]() | 8.04万円 9,010円 | なし 9.041万円 | 1DK 28.16m2 | 築1年 | 山陰本線 円町駅 徒歩2分 京都市東西線 西大路御池駅 徒歩10分 京都府京都市中京区西ノ京南円町 | 詳細を見る | |
マンション 京都市烏丸線 丸太町駅(京都市営) 徒歩6分 築20年(1K/5階) | |||||||
![]() | 6.7万円 6,000円 | 6.7万円 なし | 1K 27.34m2 | 築20年 | 京都市烏丸線 丸太町駅(京都市営) 徒歩6分 京都市烏丸線 烏丸御池駅 徒歩13分 京都府京都市中京区竹屋町通西洞院西入東竹屋町 | 詳細を見る | |
マンション 阪急電鉄京都線 西院駅(阪急) 徒歩4分 築39年(2DK/5階) | |||||||
![]() | 8.3万円 7,000円 | なし 8.3万円 | 2DK 39.6m2 | 築39年 | 阪急電鉄京都線 西院駅(阪急) 徒歩4分 山陰本線 二条駅 徒歩12分 京都府京都市中京区壬生淵田町 | 詳細を見る | |








