賃貸アパート
サンコーポ野田IIの賃貸物件情報(2LDK/1階)
| 家賃 | 管理費等 | 敷金 | 礼金 | 間取り | 専有面積 |
|---|---|---|---|---|---|
| 6.2万円 | 3,000円 | なし | 15万円 | 2LDK | 51.66m2 |
入居決定でお祝い金最大100,000円
- 保証金
- -
- 償却・敷引
- -
- 築年数
- 築36年
- 所在階
- 1階
- 向き
- 南
Point
独立洗面台・脱衣所付き!
提供:ホームメイトFC高槻駅前店ホクセツハウス(株)(SUUMO経由)

詳細情報 サンコーポ野田II
物件紹介
サンコーポ野田IIは阪急京都線高槻市駅から徒歩22分にあるアパートです。
このお部屋のインターホンにはTVモニタがついているため、相手の顔を確認してから来客対応することができます。
人気の南向きのお部屋。バス・トイレ別の仕様で、のんびりお風呂タイムも楽しめます。
通信設備面では、インターネットが無料で使えるので、月々の出費を抑えられるのも魅力です。また、CATVにも対応しているので、おうち時間も充実するでしょう(別途工事、CATVの契約料等が必要な場合あり)。
このお部屋のインターホンにはTVモニタがついているため、相手の顔を確認してから来客対応することができます。
人気の南向きのお部屋。バス・トイレ別の仕様で、のんびりお風呂タイムも楽しめます。
通信設備面では、インターネットが無料で使えるので、月々の出費を抑えられるのも魅力です。また、CATVにも対応しているので、おうち時間も充実するでしょう(別途工事、CATVの契約料等が必要な場合あり)。
お金・契約の情報
※「-」と表示されているものは、実際は料金が発生するものもございます。詳細はお問い合わせください。
| 家賃 | 6.2万円 | 管理費・共益費 | 3,000円 |
|---|---|---|---|
| 敷金 | なし | 礼金 | 15万円 |
| 入居決定でお祝い金最大100,000円 | |||
| 保証金 | - | 償却・敷引 | - |
| 住宅保険料 | - | 更新料 | - |
| 保証会社利用 | 必須 | 保証会社名 | - |
| 保証会社費用 | - | 保証会社備考 | 保証会社利用必 ナップ賃貸保証利用必須 初回総賃料60% 更新年12000円 |
| 契約形態 | - | 契約期間 | - |
| 入居・引渡期間 | - | 現況 | - |
| 入居可能条件 | 事務所可 | ||
| 契約備考 | 短期解約違約金有1ヵ月(1年未満)ガスコンロ設置可 害虫駆除:22000円/初回 2LDK 二人入居可/事務所利用相談/ルームシェア相談 損保【2.64万円1年】 バストイレ別、バルコニー、シャワー付洗面台、TVインターホン、室内洗濯置、シューズボックス、温水洗浄便座、洗面所独立、駐輪場、CATV、保証人不要、二人入居相談、バイク置場、2沿線利用可、ネット使用料不要、事務所相談、ルームシェア相談、2駅利用可、3駅以上利用可、敷地内ごみ置き場、都市ガス、初期費用カード決済可 入居日:'26年2月下旬 | ||
部屋の情報
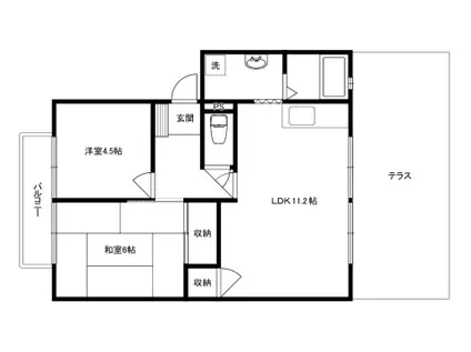
| 間取り | 2LDK | 専有面積 | 51.66m2 |
|---|---|---|---|
| 所在階 / 向き | 1階 / 南 | バルコニー面積 | 1m2 |
| 水道 / ガス | - | ||
| 設備 | バス・トイレ別、テレビドアホン、インターネット対応、温水洗浄便座、南向き、バルコニー、洗髪洗面化粧台、CATV、インターネット使用料無料、洗濯機:室内 | ||
| 当社物件ID | 29917447 | ||
建物の情報
| 建物名 | サンコーポ野田II | ||
|---|---|---|---|
| 所在地 | 大阪府高槻市野田 | ||
| 交通 | 阪急京都線 高槻市駅 徒歩22分 JR東海道本線 高槻駅 徒歩29分 阪急京都線 上牧駅(大阪) 徒歩43分 | ||
| 階数 | 2階建 | 総戸数 | 8戸 |
| 築年月 | 1990年12月 / 築36年 | エレベーター | - |
| 駐車場 | 空有 9000円 | バイク置き場 | あり |
| 駐輪場 | あり | 管理人/管理会社 | - |
| 周辺環境 | その他 高槻市立北大冠小学校(小学校)まで627m その他 高槻市立第六中学校(中学校)まで848m その他 ローソン 高槻野田二丁目店(コンビニ)まで189m その他 卸売ひろば 高槻宮野店(スーパー)まで552m その他 医療法人東和会 第一東和会病院(病院)まで375m その他 前面道路(その他)まで1m | ||
| 建物種別 | アパート | 建物構造 | 軽量鉄骨造 |
この部屋の取扱い不動産会社
| 会社名 | ホームメイトFC高槻駅前店ホクセツハウス(株)(SUUMO経由) | ||
|---|---|---|---|
| 所在地 | 大阪府高槻市城北町2-2-5 | 交通 | - |
| 営業時間 | 9:30~19:00 | 定休日 | 年末年始・盆 |
| 免許番号 | 大阪府知事32108 | 取引態様 | 仲介 |
| 不動産会社管理番号 | 100480446957 | 当社管理番号 | 89 |
| 所属団体 | (公社)全日本不動産協会大阪府本部会員 | ||
| 公正取引協議会 | (公社)近畿地区不動産公正取引協議会加盟 | ||
| 取扱い物件情報 | 物件詳細へ | ||
※各種情報と現状に差異がある場合は、現状優先となります。問い合わせをすることで、より詳しい条件、情報を確認する事ができます。
提供:ホームメイトFC高槻駅前店ホクセツハウス(株)(SUUMO経由)
この物件が気になったら掲載期限まであと10日
サンコーポ野田IIに条件(家賃・エリア)が近い物件一覧
| 写真 | 家賃 管理費等 | 敷金 礼金 | 間取り 専有面積 | 築年数 | 最寄り駅 所在地 | キープ | 詳細 |
|---|---|---|---|---|---|---|---|
マンション エスペランサ レジデンス(2LDK/1階) | |||||||
![]() | 9.5万円 8,000円 | 5万円 20万円 | 2LDK 64.45m2 | 築3年 | 片町線 星田駅 徒歩12分 片町線 寝屋川公園駅 徒歩28分 片町線 河内磐船駅 徒歩47分 大阪府寝屋川市寝屋1丁目 | 詳細を見る | |
アパート 宮之川原サンハイツ(2LDK/2階) | |||||||
| 6.8万円 2,000円 | なし 14万円 | 2LDK 45m2 | 築35年 | 東海道本線 高槻駅 徒歩34分 阪急電鉄京都線 高槻市駅 徒歩42分 東海道本線 摂津富田駅 徒歩46分 大阪府高槻市宮之川原5丁目18-2 | 詳細を見る | ||
マンション レオパレス銀河(1K/3階) | |||||||
| 6.2万円 5,000円 | なし なし | 1K 20.28m2 | 築17年 | 阪急電鉄京都線 高槻市駅 徒歩21分 東海道本線 高槻駅 徒歩23分 阪急電鉄京都線 上牧駅(大阪) 徒歩45分 大阪府高槻市安満西の町30-2 | 詳細を見る | ||
マンション パレ・ビバス(3LDK/3階) | |||||||
![]() | 9.3万円 9,000円 | なし 18.6万円 | 3LDK 66.36m2 | 築23年 | 京阪本線 香里園駅 徒歩8分 京阪本線 光善寺駅 徒歩14分 京阪本線 枚方公園駅 徒歩39分 大阪府寝屋川市香里北之町 | 詳細を見る | |
マンション アルファクラージュくずは(1LDK/2階) | |||||||
![]() | 9.5万円 5,000円 | なし 23.3万円 | 1LDK 36.63m2 | 築5年 | 京阪電気鉄道京阪線 樟葉駅 徒歩9分 京阪電気鉄道京阪線 橋本駅(京都) 徒歩29分 京阪電気鉄道京阪線 石清水八幡宮駅 徒歩55分 大阪府枚方市南楠葉1丁目 | 詳細を見る | |
マンション ピースフルハウス(3DK/1階) | |||||||
| 6.7万円 3,000円 | 3万円 15万円 | 3DK 46m2 | 築35年 | 阪急電鉄京都線 総持寺駅 徒歩26分 阪急電鉄京都線 茨木市駅 徒歩28分 阪急電鉄京都線 富田駅(大阪) 徒歩29分 大阪府茨木市鮎川4丁目25-16 | 詳細を見る | ||
アパート レオパレスノーサイド平田(1K/2階) | |||||||
| 7.1万円 5,000円 | なし 7.1万円 | 1K 22.35m2 | 築21年 | 阪急電鉄京都線 茨木市駅 徒歩23分 阪急電鉄京都線 総持寺駅 徒歩30分 大阪モノレール本線 南茨木駅 徒歩32分 大阪府茨木市平田台3-3 | 詳細を見る | ||
マンション 大阪モノレール本線 南摂津駅 徒歩5分 築24年(ワンルーム/6階) | |||||||
| 5.3万円 5,500円 | なし 5.3万円 | ワンルーム 23.84m2 | 築24年 | 大阪モノレール本線 南摂津駅 徒歩5分 大阪モノレール本線 摂津駅 徒歩21分 大阪市今里筋線 井高野駅 徒歩30分 大阪府摂津市東一津屋1-7 | 詳細を見る | ||




