賃貸マンション
レーベンハイム鎌倉マナーハウスの賃貸物件情報(3LDK/5階)
| 家賃 | 管理費等 | 敷金 | 礼金 | 間取り | 専有面積 |
|---|---|---|---|---|---|
| 18万円 | なし | 18万円 | 18万円 | 3LDK | 73.38m2 |
入居決定でお祝い金最大100,000円
- 保証金
- -
- 償却・敷引
- -
- 築年数
- 築16年
- 所在階
- 5階
- 向き
- -
Point
スタッフ一同、お客様のご来店をこころよりお待ちしております!
提供:いい部屋ネット大東建託リーシング(株)大船店(SUUMO経由)

詳細情報 レーベンハイム鎌倉マナーハウス
物件紹介
レーベンハイム鎌倉マナーハウスはJR東海道本線大船駅から徒歩18分にあるマンションです。
このお部屋は2階以上に位置しているので、通行人や周囲の住人からの視線が気になりにくく、防犯面でも安心です。
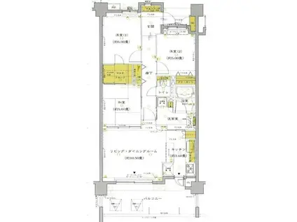
人気の南向き・フローリングのお部屋。角部屋でもあるため、周囲の居住者の生活音も気になりにくい場所です。室内にはウォークインクローゼットがありますので、たくさんの荷物も効率的に収納ができます。キッチンはシステムキッチン仕様になっていますので、お料理好きの方にもぴったり。バス・トイレは別なので、のんびりお風呂タイムも楽しめるでしょう。また、雨の日でも浴室乾燥機を使えば、お洗濯も問題ありません。
建物にはエレベーターがついているので、重い荷物があっても安心。共用部には宅配ボックスが設定されているので、不在の時にも荷物を受け取ることができます。また、ペット飼育の相談ができますので、あなたの大切な家族の一員も快適に暮らせるか、ぜひ確認してみてください。
このお部屋は2階以上に位置しているので、通行人や周囲の住人からの視線が気になりにくく、防犯面でも安心です。
人気の南向き・フローリングのお部屋。角部屋でもあるため、周囲の居住者の生活音も気になりにくい場所です。室内にはウォークインクローゼットがありますので、たくさんの荷物も効率的に収納ができます。キッチンはシステムキッチン仕様になっていますので、お料理好きの方にもぴったり。バス・トイレは別なので、のんびりお風呂タイムも楽しめるでしょう。また、雨の日でも浴室乾燥機を使えば、お洗濯も問題ありません。
建物にはエレベーターがついているので、重い荷物があっても安心。共用部には宅配ボックスが設定されているので、不在の時にも荷物を受け取ることができます。また、ペット飼育の相談ができますので、あなたの大切な家族の一員も快適に暮らせるか、ぜひ確認してみてください。
お金・契約の情報
※「-」と表示されているものは、実際は料金が発生するものもございます。詳細はお問い合わせください。
| 家賃 | 18万円 | 管理費・共益費 | なし |
|---|---|---|---|
| 敷金 | 18万円 | 礼金 | 18万円 |
| 入居決定でお祝い金最大100,000円 | |||
| 保証金 | - | 償却・敷引 | - |
| 住宅保険料 | - | 更新料 | - |
| 保証会社利用 | 必須 | 保証会社名 | - |
| 保証会社費用 | - | 保証会社備考 | 保証会社利用必 加入要 初回月額50%、800円/月 |
| 契約形態 | - | 契約期間 | - |
| 入居・引渡期間 | 相談 | 現況 | - |
| 入居可能条件 | ペット相談 | ||
| 契約備考 | 更新料 新賃料1.00ヶ月分 3LDK ペット相談 損保【要】 バストイレ別、バルコニー、エアコン、ガスコンロ対応、室内洗濯置、シューズボックス、システムキッチン、追焚機能浴室、温水洗浄便座、エレベーター、洗面所独立、ペット相談、敷金1ヶ月、保証金不要、礼金1ヶ月、IT重説対応物件 | ||
部屋の情報
| 間取り | 3LDK | 専有面積 | 73.38m2 |
|---|---|---|---|
| 所在階 / 向き | 5階 / - | バルコニー面積 | - |
| 水道 / ガス | - | ||
| 設備 | バス・トイレ別、2階以上、追い焚き、システムキッチン、エアコン、エレベーター、温水洗浄便座、バルコニー、洗髪洗面化粧台、コンロ:ガス、洗濯機:室内 | ||
| 当社物件ID | 160521889 | ||
建物の情報
| 建物名 | レーベンハイム鎌倉マナーハウス | ||
|---|---|---|---|
| 所在地 | 神奈川県鎌倉市岩瀬 | ||
| 交通 | JR東海道本線 大船駅 徒歩18分 JR京浜東北線 本郷台駅 徒歩22分 JR横須賀線 北鎌倉駅 徒歩35分 | ||
| 階数 | 地下1地上9階建 | 総戸数 | 97戸 |
| 築年月 | 2010年04月 / 築16年 | エレベーター | あり |
| 駐車場 | なし | バイク置き場 | - |
| 駐輪場 | - | 管理人/管理会社 | - |
| 周辺環境 | その他 かさまの杜保育園(幼稚園・保育園)まで1128m その他 こばとナーサリー(幼稚園・保育園)まで1222m その他 鎌倉市立大船小学校(小学校)まで1255m その他 西友大船店(その他)まで1164m その他 業務スーパー笠間店(スーパー)まで643m その他 イトーヨーカドー大船店(ショッピングセンター)まで575m | ||
| 建物種別 | マンション | 建物構造 | RC(鉄筋コンクリート) |
この部屋の取扱い不動産会社
| 会社名 | いい部屋ネット大東建託リーシング(株)小田原駅前店(SUUMO経由) | ||
|---|---|---|---|
| 所在地 | 神奈川県小田原市栄町2-8-31 プランタン岩下1階A号室 | 交通 | - |
| 営業時間 | 10:00~18:00 休憩12:30~13:30 | 定休日 | 火曜日・水曜日 |
| 免許番号 | 国土交通大臣9120 | 取引態様 | 仲介 |
| 不動産会社管理番号 | 100492609991 | 当社管理番号 | 89 |
| 所属団体 | (公財)日本賃貸住宅管理協会会員 | ||
| 公正取引協議会 | (公社)首都圏不動産公正取引協議会加盟 | ||
| 取扱い物件情報 | 物件詳細へ | ||
※各種情報と現状に差異がある場合は、現状優先となります。問い合わせをすることで、より詳しい条件、情報を確認する事ができます。
提供:いい部屋ネット大東建託リーシング(株)小田原駅前店(SUUMO経由)
この物件が気になったら掲載期限まであと11日
レーベンハイム鎌倉マナーハウスに条件(家賃・エリア)が近い物件一覧
| 写真 | 家賃 管理費等 | 敷金 礼金 | 間取り 専有面積 | 築年数 | 最寄り駅 所在地 | キープ | 詳細 |
|---|---|---|---|---|---|---|---|
マンション レジデンス花の木(2LDK/2階) | |||||||
![]() | 14.9万円 6,000円 | なし なし | 2LDK 54m2 | 築19年 | 小田急電鉄江ノ島線 藤沢本町駅 徒歩9分 神奈川県藤沢市花の木 | 詳細を見る | |
マンション コンフォリア・リヴ横浜平沼(1K/10階) | |||||||
![]() | 11.2万円 1万円 | 11.2万円 なし | 1K 21m2 | 築1年 | ブルーライン 高島町駅 徒歩5分 相鉄本線 平沼橋駅 徒歩8分 ブルーライン 横浜駅 徒歩10分 神奈川県横浜市西区平沼 | 詳細を見る | |
マンション RUSCELLIO -ルシェリオ-(2DK/3階) | |||||||
![]() | 11.4万円 6,000円 | 11.4万円 22.8万円 | 2DK 47.38m2 | 築13年 | JR横浜線 大口駅 徒歩14分 東急東横線 妙蓮寺駅 徒歩16分 京急本線 子安駅 徒歩27分 神奈川県横浜市神奈川区西寺尾 | 詳細を見る | |
マンション CASSIA横濱ガーデン山(2LDK/2階) | |||||||
![]() | 16.8万円 1.2万円 | 16.8万円 16.8万円 | 2LDK 62.14m2 | 築24年 | ブルーライン 三ツ沢下町駅 徒歩3分 東急東横線 反町駅 徒歩13分 神奈川県横浜市神奈川区三ツ沢下町 | 詳細を見る | |
アパート 小田急電鉄江ノ島線 湘南台駅 徒歩10分 築3年(1LDK/2階) | |||||||
![]() | 11.6万円 6,000円 | なし 23.2万円 | 1LDK 45.97m2 | 築3年 | 小田急電鉄江ノ島線 湘南台駅 徒歩10分 神奈川県藤沢市湘南台7丁目 | 詳細を見る | |
マンション NOBLE HILLS(1LDK/3階) | |||||||
![]() | 14万円 1.2万円 | なし 28万円 | 1LDK 48.55m2 | 築16年 | JR横浜線 新横浜駅 徒歩10分 ブルーライン 岸根公園駅 徒歩15分 JR横浜線 小机駅 徒歩20分 神奈川県横浜市港北区新横浜 | 詳細を見る | |
マンション 大倉山第2コーポラスD棟(3DK/4階) | |||||||
![]() | 11.8万円 5,000円 | 11.8万円 11.8万円 | 3DK 48m2 | 築53年 | 東急東横線 大倉山駅(神奈川) 徒歩10分 東急東横線 菊名駅 徒歩16分 ブルーライン 新横浜駅 徒歩19分 神奈川県横浜市港北区大豆戸町 | 詳細を見る | |
マンション 石井ビル(2LDK/2階) | |||||||
![]() | 11万円 なし | 11万円 11万円 | 2LDK 73.5m2 | 築36年 | 京浜東北・根岸線 鶴見駅 徒歩15分 神奈川県横浜市鶴見区下野谷町2丁目 | 詳細を見る | |








/105x80-f1-q70-wp1)