賃貸マンション
ビレッジハウス佐野米山1号棟の賃貸物件情報(2LDK/2階)
| 家賃 | 管理費等 | 敷金 | 礼金 | 間取り | 専有面積 |
|---|---|---|---|---|---|
| 4.23万円 | なし | なし | なし | 2LDK | 53.5m2 |
入居決定でお祝い金最大100,000円
- 保証金
- -
- 償却・敷引
- -
- 築年数
- 築27年
- 所在階
- 2階
- 向き
- 南
Point
まずはお問い合わせ!
不動産会社は街のプロ、あなたに合った物件がきっと見つかります。
提供:ビレッジハウス住まい相談センター

詳細情報 ビレッジハウス佐野米山1号棟
物件紹介
ビレッジハウス佐野米山1号棟は東武鉄道佐野線佐野市駅から徒歩41分にあるマンションです。
このお部屋は2階以上に位置しているので、通行人や周囲の住人からの視線が気になりにくく、防犯面でも安心です。
人気の南向きのお部屋。バス・トイレ別の仕様で、のんびりお風呂タイムも楽しめます。
このお部屋は2階以上に位置しているので、通行人や周囲の住人からの視線が気になりにくく、防犯面でも安心です。
人気の南向きのお部屋。バス・トイレ別の仕様で、のんびりお風呂タイムも楽しめます。
お金・契約の情報
※「-」と表示されているものは、実際は料金が発生するものもございます。詳細はお問い合わせください。
| 家賃 | 4.23万円 | 管理費・共益費 | なし |
|---|---|---|---|
| 敷金 | なし | 礼金 | なし |
| フリーレント | 0ヶ月 | ||
| 入居決定でお祝い金最大100,000円 | |||
| 保証金 | - | 償却・敷引 | - |
| 住宅保険料 | 1万円(2年) | 更新料 | - |
| 保証会社利用 | - | 保証会社名 | - |
| 保証会社費用 | - | 保証会社備考 | - |
| 契約形態 | - | 契約期間 | - |
| 入居・引渡期間 | - | 現況 | 空室 |
| 入居可能条件 | 2人入居可、高齢者相談、学生可 | ||
| 契約備考 | 契約種類:普通契約、24時間緊急対応、ウォシュレット、ウォームレット | ||
部屋の情報
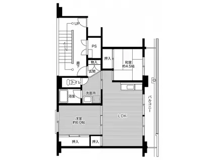
| 間取り | 2LDK | 専有面積 | 53.5m2 |
|---|---|---|---|
| 所在階 / 向き | 2階 / 南 | バルコニー面積 | - |
| 水道 / ガス | - | ||
| 設備 | バス・トイレ別、追い焚き、エアコン、バルコニー、給湯、洗濯機:室内 | ||
| 当社物件ID | 37714480 | ||
建物の情報
| 建物名 | ビレッジハウス佐野米山1号棟 | ||
|---|---|---|---|
| 所在地 | 栃木県佐野市米山南町53-3 | ||
| 交通 | 東武鉄道佐野線 佐野市駅 徒歩41分 東武鉄道佐野線 堀米駅 徒歩43分 両毛線 佐野駅 バス乗車時間:29分 米山市営住宅バス停で下車 徒歩53分 | ||
| 階数 | 5階建 | 総戸数 | - |
| 築年月 | 1999年10月 / 築27年 | エレベーター | - |
| 駐車場 | 空有 3,300円/月 円 | バイク置き場 | - |
| 駐輪場 | - | 管理人/管理会社 | 日勤 |
| 建物種別 | マンション | 建物構造 | RC(鉄筋コンクリート) |
この部屋の取扱い不動産会社
| 会社名 | ビレッジハウス住まい相談センター | ||
|---|---|---|---|
| 所在地 | 愛知県名古屋市中区大須4-10-32 上前津KDビル5階 | 交通 | 名城線「上前津駅」徒歩3分 |
| 営業時間 | 平日:9:00-18:30/土日祝:9:00-18:00 | 定休日 | 年末年始休業:2025年12月27日~2026年1月4日 |
| 免許番号 | 東京都知事(2)第100758号 | 取引態様 | 貸主 |
| 不動産会社管理番号 | 00013533562 | 当社管理番号 | 459 |
| 所属団体 | 公益社団法人東京都宅地建物取引業協会会員 日本賃貸住宅管理協会会員 | ||
| 取扱い物件情報 | 物件詳細へ | ||
※各種情報と現状に差異がある場合は、現状優先となります。問い合わせをすることで、より詳しい条件、情報を確認する事ができます。
提供:ビレッジハウス住まい相談センター
この物件が気になったら掲載期限まであと12日
ビレッジハウス佐野米山1号棟に条件(家賃・エリア)が近い物件一覧
| 写真 | 家賃 管理費等 | 敷金 礼金 | 間取り 専有面積 | 築年数 | 最寄り駅 所在地 | キープ | 詳細 |
|---|---|---|---|---|---|---|---|
アパート 広栄ハイツ(1LDK/2階) | |||||||
![]() | 4.5万円 なし | なし なし | 1LDK 47.2m2 | 築23年 | 栃木県栃木市野中町 | 詳細を見る | |
マンション クレインヒルズマンション(2LDK/1階) | |||||||
![]() | 5万円 なし | 5万円 なし | 2LDK 57.75m2 | 築20年 | JR両毛線 山前駅 徒歩11分 東武伊勢崎線 野州山辺駅 徒歩49分 東武伊勢崎線 足利市駅 徒歩59分 栃木県足利市鹿島町 | 詳細を見る | |
アパート レオパレス東山(1K/2階) | |||||||
![]() | 3.2万円 4,000円 | なし なし | 1K 23.18m2 | 築20年 | 両毛線 足利駅 徒歩29分 栃木県足利市助戸東山町 | 詳細を見る | |
アパート エアリー・カレントⅡ(1LDK/1階) | |||||||
![]() | 4.25万円 1,800円 | なし 4.25万円 | 1LDK 45.99m2 | 築16年 | 両毛線 岩舟駅 徒歩26分 栃木県栃木市岩舟町静岩舟町静 | 詳細を見る | |
アパート ハイツ・グリーンヒル(2DK/1階) | |||||||
![]() | 3.4万円 2,000円 | なし なし | 2DK 39.19m2 | 築31年 | 東武日光線 藤岡駅 徒歩11分 東武日光線 板倉東洋大前駅 徒歩52分 東武日光線 柳生駅 徒歩78分 栃木県栃木市藤岡町藤岡 | 詳細を見る | |
アパート カサベルデ(2DK/2階) | |||||||
![]() | 4.4万円 3,000円 | なし なし | 2DK 50.8m2 | 築30年 | 東武佐野線 田沼駅 徒歩5分 栃木県佐野市栃本町 | 詳細を見る | |
アパート エクセルフラット(2DK/1階) | |||||||
![]() | 4万円 なし | 4万円 なし | 2DK 39.74m2 | 築39年 | 東武日光線 新栃木駅 徒歩4分 東武宇都宮線 野州平川駅 徒歩29分 東武日光線 合戦場駅 徒歩29分 栃木県栃木市平柳町 | 詳細を見る | |
アパート プレミールESTⅡ(2DK/2階) | |||||||
![]() | 4万円 2,200円 | なし なし | 2DK 47.23m2 | 築25年 | 日光線 鹿沼駅 徒歩15分 栃木県鹿沼市東町1丁目 | 詳細を見る | |




/105x80-f1-q70-wp1)




