賃貸一戸建て
東海道本線 岡崎駅 徒歩21分 2階建 築9年の賃貸物件情報(3LDK)
| 家賃 | 管理費等 | 敷金 | 礼金 | 間取り | 専有面積 |
|---|---|---|---|---|---|
| 13万円 | なし | 26万円 | 13万円 | 3LDK | 112.72m2 |
入居決定でお祝い金最大100,000円
Point
室内設備は浴室乾燥機・洗面所独立・食器洗乾燥機などが揃っており、とても充実しています。
提供:ハウスコム東海株式会社 岡崎店

詳細情報 東海道本線 岡崎駅 徒歩21分 2階建 築9年
物件紹介
東海道本線岡崎駅から徒歩21分にある一戸建てです。
このお部屋のインターホンにはTVモニタがついているため、相手の顔を確認してから来客対応することができます。
フローリングのお部屋なのでお掃除もラクラク。室内には人気のウォークインクローゼットがありますので、たくさんの荷物も効率的に収納ができます。キッチンはシステムキッチン仕様になっていますので、お料理好きの方にもぴったり。バス・トイレは別なので、のんびりお風呂タイムも楽しめるでしょう。また、雨の日でも浴室乾燥機を使えば、お洗濯も問題ありません。
コンビニまで徒歩11分の場所にあり、日用品や食料品のお買い物にも便利です。
このお部屋のインターホンにはTVモニタがついているため、相手の顔を確認してから来客対応することができます。
フローリングのお部屋なのでお掃除もラクラク。室内には人気のウォークインクローゼットがありますので、たくさんの荷物も効率的に収納ができます。キッチンはシステムキッチン仕様になっていますので、お料理好きの方にもぴったり。バス・トイレは別なので、のんびりお風呂タイムも楽しめるでしょう。また、雨の日でも浴室乾燥機を使えば、お洗濯も問題ありません。
コンビニまで徒歩11分の場所にあり、日用品や食料品のお買い物にも便利です。
お金・契約の情報
※「-」と表示されているものは、実際は料金が発生するものもございます。詳細はお問い合わせください。
| 家賃 | 13万円 | 管理費・共益費 | なし |
|---|---|---|---|
| 敷金 | 26万円 | 礼金 | 13万円 |
| 入居決定でお祝い金最大100,000円 | |||
| 保証金 | - | 償却・敷引 | - |
| 住宅保険料 | 1円 | 更新料 | - |
| その他費用 | 駐車場登録料 1台(利用時のみ):1.1万円、19800円: | ||
| 保証会社利用 | 必須 | 保証会社名 | - |
| 保証会社費用 | - | 保証会社備考 | 初回 賃料総額100%+月額 賃料総額1%(最低1,000円) |
| 契約形態 | - | 契約期間 | 2年 |
| 入居・引渡期間 | 即時 | 現況 | - |
| 契約備考 | 月額(リロサポプラス加入必須 2500円) その他設備/条件:室内洗濯機置き場、独立洗面台、クローゼット、シューズボックス | ||
部屋の情報
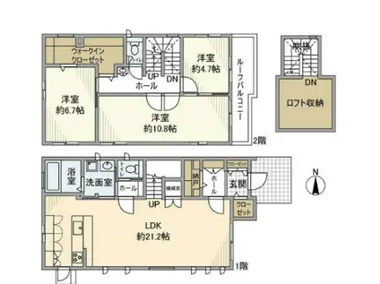
| 間取り | 3LDK | 専有面積 | 112.72m2 |
|---|---|---|---|
| 間取り詳細 | LDK(21.2帖)、洋室(10.8帖)、洋室(4.7帖)、洋室(6.7帖) | ||
| 所在階 / 向き | 1階 / 東 | バルコニー面積 | - |
| 水道 / ガス | 水道【公営】、ガス【都市】 | ||
| 設備 | バス・トイレ別、テレビドアホン、浴室乾燥機、ウォークインクローゼット、追い焚き、システムキッチン、カウンターキッチン、エアコン、温水洗浄便座、バルコニー、フローリング、洗髪洗面化粧台、3口コンロ、コンロ:ガス、シャワー、専用庭、給湯 | ||
| 当社物件ID | 160536548 | ||
建物の情報
| 建物名 | 東海道本線 岡崎駅 徒歩21分 2階建 築9年 | ||
|---|---|---|---|
| 所在地 | 愛知県岡崎市庄司田2丁目 | ||
| 交通 | 東海道本線 岡崎駅 徒歩21分 名鉄名古屋本線 男川駅 徒歩35分 | ||
| 階数 | 2階建 | 総戸数 | 1戸 |
| 築年月 | 2017年06月 / 築9年 | エレベーター | - |
| 駐車場 | 空有 | バイク置き場 | - |
| 駐輪場 | - | 管理人/管理会社 | - |
| 周辺環境 | コンビニ 徒歩11分(806m) その他 ドラッグストア その他 公園 その他 銀行 その他 * | ||
| 建物種別 | 一戸建て | 建物構造 | 軽量鉄骨造 |
この部屋の取扱い不動産会社
| 会社名 | ハウスコム東海株式会社 大樹寺店 | ||
|---|---|---|---|
| 所在地 | 愛知県岡崎市1-281階 | 交通 | - |
| 営業時間 | 10:00~18:00 | 定休日 | 水曜定休 |
| 免許番号 | 国土交通大臣(1)第10227号 | 取引態様 | 仲介 |
| 不動産会社管理番号 | HC2-4325560-1-0201 | 当社管理番号 | 468 |
| 所属団体 | 、 | ||
| 取扱い物件情報 | 物件詳細へ | ||
※各種情報と現状に差異がある場合は、現状優先となります。問い合わせをすることで、より詳しい条件、情報を確認する事ができます。
提供:ハウスコム東海株式会社 大樹寺店
この物件が気になったら掲載期限まであと12日
東海道本線 岡崎駅 徒歩21分 2階建 築9年に条件(家賃・エリア)が近い物件一覧
| 写真 | 家賃 管理費等 | 敷金 礼金 | 間取り 専有面積 | 築年数 | 最寄り駅 所在地 | キープ | 詳細 |
|---|---|---|---|---|---|---|---|
マンション カーサ・レジデンス(3LDK/1階) | |||||||
![]() | 14.9万円 8,700円 | なし 14.9万円 | 3LDK 84.25m2 | 築1年 | JR東海道本線 相見駅 徒歩33分 愛知県岡崎市下和田町大島 | 詳細を見る | |
アパート AWAZUKU TERRACE(ワンルーム/1階) | |||||||
![]() | 8.9万円 なし | なし なし | ワンルーム 29.8m2 | 築1年 | JR東海道本線 三ケ根駅 徒歩15分 JR東海道本線 三河塩津駅 徒歩24分 名鉄蒲郡線 蒲郡競艇場前駅 徒歩27分 愛知県額田郡幸田町大字深溝海谷 | 詳細を見る | |
マンション カーサジオ(3LDK/2階) | |||||||
![]() | 8.9万円 7,000円 | 8.9万円 8.9万円 | 3LDK 68.04m2 | 築32年 | 名鉄三河線 土橋駅(愛知) 徒歩20分 愛知環状鉄道 三河豊田駅 徒歩44分 愛知県豊田市美山町4丁目 | 詳細を見る | |
マンション 定期2028年1月まで ゼルクシティ安城 NC棟 (3LDK/6階) | |||||||
![]() | 15万円 なし | 30万円 15万円 | 3LDK 97.85m2 | 築20年 | JR東海道本線 安城駅 徒歩5分 名鉄西尾線 北安城駅 徒歩9分 東海道新幹線 三河安城駅 徒歩34分 愛知県安城市大東町 | 詳細を見る | |
アパート D-ROOMサンヒルズ B棟(1LDK/2階) | |||||||
![]() | 8万円 6,500円 | なし 8万円 | 1LDK 40.57m2 | 築11年 | 名鉄三河線 若林駅(愛知) 徒歩12分 愛知県豊田市若林東町上外根 | 詳細を見る | |
アパート STELLA(2LDK/2階) | |||||||
![]() | 9.8万円 4,500円 | なし 9.8万円 | 2LDK 66.13m2 | 新築 | 名鉄名古屋本線 美合駅 徒歩12分 愛知県岡崎市蓑川町 | 詳細を見る | |
アパート ガーデン フェイバー(1LDK/3階) | |||||||
![]() | 8万円 4,600円 | なし 8万円 | 1LDK 42.2m2 | 新築 | 名鉄西尾線 北安城駅 徒歩16分 名鉄名古屋本線 新安城駅 徒歩22分 愛知県安城市新田町池田上 | 詳細を見る | |
アパート しあわせ夢ハウス(1LDK/2階) | |||||||
![]() | 9.6万円 5,500円 | なし 5万円 | 1LDK 46.96m2 | 築9年 | 名鉄名古屋本線 東岡崎駅 徒歩6分 名鉄名古屋本線 岡崎公園前駅 徒歩27分 愛知県岡崎市明大寺町字馬場東 | 詳細を見る | |








