賃貸マンション
TAKANAWA GATEWAY CITY RESIDENCEの賃貸物件情報(3LDK/15階)
| 家賃 | 管理費等 | 敷金 | 礼金 | 間取り | 専有面積 |
|---|---|---|---|---|---|
| 79.8万円 | なし | 79.8万円 | 79.8万円 | 3LDK | 109.44m2 |
入居決定でお祝い金最大100,000円
- 保証金
- -
- 償却・敷引
- -
- 築年数
- 築1年
- 所在階
- 15階
- 向き
- 西
Point
TAKANAWAGATEWAYCITYRESIDENCE
提供:(株)BRISS(SUUMO経由)

詳細情報 TAKANAWA GATEWAY CITY RESIDENCE
物件紹介
TAKANAWA GATEWAY CITY RESIDENCEは京急本線泉岳寺駅から徒歩5分にあり、駅近で通勤通学に便利なマンションです。
このお部屋は2階以上に位置しているので、通行人や周囲の住人からの視線が気になりにくく、防犯面でも安心。建物のエントランスはオートロックがついており、インターホンにはTVモニタもついているため、相手の顔を確認してから来客対応することができます。
フローリングのお部屋なのでお掃除もラクラク。室内には人気のウォークインクローゼットがありますので、たくさんの荷物も効率的に収納ができます。キッチンはシステムキッチン仕様になっていますので、お料理好きの方にもぴったり。バス・トイレは別なので、のんびりお風呂タイムも楽しめるでしょう。また、雨の日でも浴室乾燥機を使えば、お洗濯も問題ありません。
通信設備面では、インターネット接続が可能です。また、BSアンテナ・CSアンテナがありCATVにも対応しているので、おうち時間も充実するでしょう(別途工事、契約料が必要な場合あり)。
床暖房があり、冬も足元から暖かく快適に過ごすことができます。建物にはエレベーターがついているので、重い荷物があっても安心。共用部には宅配ボックスが設定されているので、不在の時にも荷物を受け取ることができます。また、ペット飼育の相談ができますので、あなたの大切な家族の一員も快適に暮らせるか、ぜひ確認してみてください。
このお部屋は2階以上に位置しているので、通行人や周囲の住人からの視線が気になりにくく、防犯面でも安心。建物のエントランスはオートロックがついており、インターホンにはTVモニタもついているため、相手の顔を確認してから来客対応することができます。
フローリングのお部屋なのでお掃除もラクラク。室内には人気のウォークインクローゼットがありますので、たくさんの荷物も効率的に収納ができます。キッチンはシステムキッチン仕様になっていますので、お料理好きの方にもぴったり。バス・トイレは別なので、のんびりお風呂タイムも楽しめるでしょう。また、雨の日でも浴室乾燥機を使えば、お洗濯も問題ありません。
通信設備面では、インターネット接続が可能です。また、BSアンテナ・CSアンテナがありCATVにも対応しているので、おうち時間も充実するでしょう(別途工事、契約料が必要な場合あり)。
床暖房があり、冬も足元から暖かく快適に過ごすことができます。建物にはエレベーターがついているので、重い荷物があっても安心。共用部には宅配ボックスが設定されているので、不在の時にも荷物を受け取ることができます。また、ペット飼育の相談ができますので、あなたの大切な家族の一員も快適に暮らせるか、ぜひ確認してみてください。
お金・契約の情報
※「-」と表示されているものは、実際は料金が発生するものもございます。詳細はお問い合わせください。
| 家賃 | 79.8万円 | 管理費・共益費 | なし |
|---|---|---|---|
| 敷金 | 79.8万円 | 礼金 | 79.8万円 |
| 入居決定でお祝い金最大100,000円 | |||
| 保証金 | - | 償却・敷引 | - |
| 住宅保険料 | - | 更新料 | - |
| 保証会社利用 | 必須 | 保証会社名 | - |
| 保証会社費用 | - | 保証会社備考 | 保証会社利用必 初回保証委託料賃料総額の50% ・2年目以降:9,600円/年 |
| 契約形態 | 定期借家 | 契約期間 | 3年 |
| 入居・引渡期間 | - | 現況 | - |
| 入居可能条件 | ペット相談 | ||
| 契約備考 | JR京浜東北線高輪ゲートウェイ駅徒歩9分/常駐管理/業界歴10年以上のスタッフが揃っておりますので港区の賃貸を探すならBRISSにお任せ下さい。港区の物件は1件残さずご紹介可能。もちろん他区も対応可能。審査、初期費用、家賃など全てのご要望に全力でお答え致します。疑問、不安がございましたら遠慮なくお申し付け下さい。必ずご解決致します。是非、法人様もお問合せ下さい。各社宅代行様ご対応可能です。大手法人様、社宅代行様との社宅提携も行っております。 3LDK ペット相談 定期借家3年 バストイレ別、バルコニー、エアコン、ガスコンロ対応、クロゼット、フローリング、TVインターホン、浴室乾燥機、オートロック、室内洗濯置、シューズボックス、システムキッチン、追焚機能浴室、温水洗浄便座、脱衣所、エレベーター、洗面所独立、洗面化粧台、駐輪場、宅配ボックス、CATV、光ファイバー、BS・CS、3口以上コンロ、対面式キッチン、防犯カメラ、ペット相談、24時間有人管理、分譲賃貸、グリル付、ウォークインクロゼット、保証人不要、敷金1ヶ月、24時間緊急通報システム、CS、床暖房、エアコン全室、ディスポーザー、24時間換気システム、フロントサービス、クロゼット2ヶ所、人感照明センサー、未入居、3駅以上利用可、3沿線以上利用可、駅徒歩5分以内、タワー型マンション、ゲストルーム、24時間ゴミ出し可、クリーニングボックス、敷地内ごみ置き場、専有面積30坪以上、タンクレストイレ、2WAY洗面所、ビルトインエアコン、BS、高速ネット対応、礼金1ヶ月、初期費用カード決済可 入居日:'26年4月中旬 | ||
部屋の情報
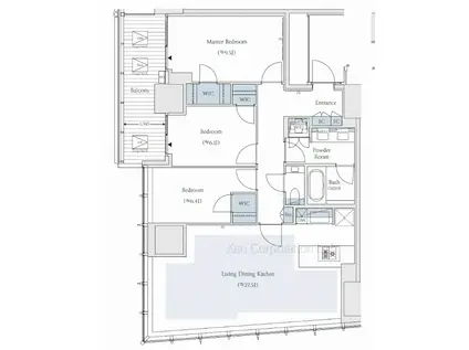
| 間取り | 3LDK | 専有面積 | 109.44m2 |
|---|---|---|---|
| 所在階 / 向き | 15階 / 西 | バルコニー面積 | - |
| 水道 / ガス | - | ||
| 設備 | バス・トイレ別、2階以上、オートロック、テレビドアホン、宅配ボックス、浴室乾燥機、ウォークインクローゼット、追い焚き、インターネット対応、システムキッチン、エアコン、エレベーター、温水洗浄便座、バルコニー、フローリング、洗髪洗面化粧台、タワーマンション、床暖房、2口コンロ、コンロ:ガス、CATV、CSアンテナ、BSアンテナ、洗濯機:室内 | ||
| 当社物件ID | 160310364 | ||
建物の情報
| 建物名 | TAKANAWA GATEWAY CITY RESIDENCE | ||
|---|---|---|---|
| 所在地 | 東京都港区三田 | ||
| 交通 | 京急本線 泉岳寺駅 徒歩5分 都営浅草線 泉岳寺駅 徒歩5分 JR山手線 高輪ゲートウェイ駅 徒歩9分 | ||
| 階数 | 地下2地上44階建 | 総戸数 | - |
| 築年月 | 2026年02月 / 築1年 | エレベーター | あり |
| 駐車場 | なし | バイク置き場 | - |
| 駐輪場 | あり | 管理人/管理会社 | - |
| 周辺環境 | その他 オーケー札の辻店(スーパー)まで650m その他 ローソン三田三丁目店(コンビニ)まで225m その他 セブンイレブン泉岳寺駅前店(コンビニ)まで167m その他 ウエルシア田町グランパーク店(ドラッグストア)まで870m その他 ドラッグセイムス芝浦4丁目店(ドラッグストア)まで1101m その他 ピーコックストア三田伊皿子店(スーパー)まで558m | ||
| 建物種別 | マンション | 建物構造 | RC(鉄筋コンクリート) |
この部屋の取扱い不動産会社
| 会社名 | (株)BRISS(SUUMO経由) | ||
|---|---|---|---|
| 所在地 | 東京都中央区築地2-10-10 GY築地ビル4階 | 交通 | - |
| 営業時間 | 10:00~18:00 | 定休日 | なし |
| 免許番号 | 東京都知事103074 | 取引態様 | 仲介 |
| 不動産会社管理番号 | 100485719963 | 当社管理番号 | 89 |
| 所属団体 | (公社)全日本不動産協会東京都本部会員 | ||
| 公正取引協議会 | (公社)首都圏不動産公正取引協議会加盟 | ||
| 取扱い物件情報 | 物件詳細へ | ||
※各種情報と現状に差異がある場合は、現状優先となります。問い合わせをすることで、より詳しい条件、情報を確認する事ができます。
提供:(株)BRISS(SUUMO経由)
この物件が気になったら掲載期限まであと10日
TAKANAWA GATEWAY CITY RESIDENCEに条件(家賃・エリア)が近い物件一覧
| 写真 | 家賃 管理費等 | 敷金 礼金 | 間取り 専有面積 | 築年数 | 最寄り駅 所在地 | キープ | 詳細 |
|---|---|---|---|---|---|---|---|
マンション 白金ザ・スカイ E棟(3LDK/41階) | |||||||
![]() | 85万円 なし | 170万円 85万円 | 3LDK 81.22m2 | 築4年 | 東京メトロ南北線 白金高輪駅 徒歩3分 都営三田線 白金高輪駅 徒歩4分 都営大江戸線 麻布十番駅 徒歩13分 東京都港区白金 | 詳細を見る | |
マンション 三田ガーデンヒルズ ノースヒル(2SLDK/13階) | |||||||
![]() | 117.5万円 なし | 117.5万円 117.5万円 | 2SLDK 95.25m2 | 築1年 | 東京メトロ南北線 麻布十番駅 徒歩5分 都営大江戸線 赤羽橋駅 徒歩6分 都営三田線 芝公園駅 徒歩10分 東京都港区三田 | 詳細を見る | |
マンション HARUMI FLAG SUN VILLAGE T棟(2LDK/50階) | |||||||
![]() | 100万円 なし | 200万円 100万円 | 2LDK 103.01m2 | 築1年 | 都営大江戸線 勝どき駅 徒歩14分 新交通ゆりかもめ 新豊洲駅 徒歩24分 新交通ゆりかもめ 市場前駅 徒歩28分 東京都中央区晴海 | 詳細を見る | |
マンション 麻布台ヒルズレジデンスB(1LDK/7階) | |||||||
![]() | 72万円 なし | 144万円 なし | 1LDK 55.36m2 | 築1年 | 東京メトロ南北線 六本木一丁目駅 徒歩1分 東京都港区麻布台 | 詳細を見る | |
マンション ホワイトタワー浜松町(2LDK/23階) | |||||||
![]() | 48.5万円 2万円 | 48.5万円 24.25万円 | 2LDK 68.22m2 | 築19年 | JR山手線 浜松町駅 徒歩3分 都営浅草線 大門駅(東京) 徒歩3分 JR山手線 新橋駅 徒歩12分 東京都港区浜松町 | 詳細を見る | |
マンション パークハウス広尾(3LDK/5階) | |||||||
![]() | 79万円 なし | 158万円 79万円 | 3LDK 102.43m2 | 築24年 | JR山手線 恵比寿駅 徒歩12分 東京メトロ銀座線 渋谷駅 徒歩17分 東京メトロ日比谷線 広尾駅 徒歩18分 東京都渋谷区東 | 詳細を見る | |
マンション パークコート浜離宮ザタワー(4LDK/12階) | |||||||
![]() | 82万円 なし | 82万円 164万円 | 4LDK 97.33m2 | 築8年 | 都営大江戸線 汐留駅 徒歩7分 都営大江戸線 大門駅(東京) 徒歩9分 JR山手線 浜松町駅 徒歩9分 東京都港区浜松町 | 詳細を見る | |
マンション パークハウス六本木麻布三河台(2LDK/3階) | |||||||
![]() | 53.92万円 4.58万円 | 53.92万円 53.92万円 | 2LDK 91.65m2 | 築30年 | 東京メトロ南北線 六本木一丁目駅 徒歩6分 東京メトロ日比谷線 六本木駅 徒歩7分 東京メトロ銀座線 溜池山王駅 徒歩7分 東京都港区六本木 | 詳細を見る | |









