賃貸マンション
ロッツォ横浜南の賃貸物件情報(ワンルーム/2階)
| 家賃 | 管理費等 | 敷金 | 礼金 | 間取り | 専有面積 |
|---|---|---|---|---|---|
| 6.7万円 | 8,000円 | なし | なし | ワンルーム | 20.38m2 |
入居決定でお祝い金最大100,000円
- 保証金
- -
- 償却・敷引
- -
- 築年数
- 築1年
- 所在階
- 2階
- 向き
- 北東
Point
お電話でのお問い合わせは8時30分から20時まで可能です!お気軽にフリーダイヤルまでご連絡ください♪◇webでのお申し込みも対応可能です◇
提供:(株)ネクストライフ八王子店(SUUMO経由)

詳細情報 ロッツォ横浜南
物件紹介
ロッツォ横浜南は京急本線南太田駅から徒歩9分にあり、駅近で通勤通学に便利なマンションです。
このお部屋は2階以上に位置しているので、通行人や周囲の住人からの視線が気になりにくく、防犯面でも安心。建物のエントランスはオートロックがついており、インターホンにはTVモニタもついているため、相手の顔を確認してから来客対応することができます。
バス・トイレ別の仕様で、のんびりお風呂タイムも楽しめます。また、浴室乾燥機を使えば、雨の日でもお洗濯は問題ありません。
通信設備面では、インターネットが無料で使えるので、月々の出費を抑えられるのも魅力です(別途工事等が必要な場合あり)。
共用部には宅配ボックスが設定されているので、不在の時にも荷物を受け取ることができます。また、ペット飼育の相談ができますので、あなたの大切な家族の一員も快適に暮らせるか、ぜひ確認してみてください。
このお部屋は2階以上に位置しているので、通行人や周囲の住人からの視線が気になりにくく、防犯面でも安心。建物のエントランスはオートロックがついており、インターホンにはTVモニタもついているため、相手の顔を確認してから来客対応することができます。
バス・トイレ別の仕様で、のんびりお風呂タイムも楽しめます。また、浴室乾燥機を使えば、雨の日でもお洗濯は問題ありません。
通信設備面では、インターネットが無料で使えるので、月々の出費を抑えられるのも魅力です(別途工事等が必要な場合あり)。
共用部には宅配ボックスが設定されているので、不在の時にも荷物を受け取ることができます。また、ペット飼育の相談ができますので、あなたの大切な家族の一員も快適に暮らせるか、ぜひ確認してみてください。
お金・契約の情報
※「-」と表示されているものは、実際は料金が発生するものもございます。詳細はお問い合わせください。
| 家賃 | 6.7万円 | 管理費・共益費 | 8,000円 |
|---|---|---|---|
| 敷金 | なし | 礼金 | なし |
| 入居決定でお祝い金最大100,000円 | |||
| 保証金 | - | 償却・敷引 | - |
| 住宅保険料 | - | 更新料 | - |
| 保証会社利用 | 必須 | 保証会社名 | - |
| 保証会社費用 | - | 保証会社備考 | 保証会社利用必 初回保証料:月額総賃料の30%、月額保証料:1700円 |
| 契約形態 | - | 契約期間 | - |
| 入居・引渡期間 | - | 現況 | - |
| 入居可能条件 | ペット相談 | ||
| 契約備考 | 更新事務手数料:11000円ペット相談可:敷金1ヶ月積み増し(償却) 小型犬または猫1匹まで退去時クリーニング費用:38500円退去時エアコンクリーニング費用:16500円/台違約金:1年未満の解約で賃料1ヶ月分◆お持ちのクレジットカードで初期費用の決済が可能です◆初期費用のお見積り等、お気軽にお問い合わせくださいませ◆◆ 更新料 新賃料1.00ヶ月分 ワンルーム ペット相談 普通借家2年 損保【1.8万円2年】 バストイレ別、エアコン、クロゼット、TVインターホン、浴室乾燥機、オートロック、室内洗濯置、シューズボックス、温水洗浄便座、洗面所独立、洗面化粧台、宅配ボックス、礼金不要、敷金不要、ペット相談、IHクッキングヒーター、保証人不要、2沿線利用可、ディンプルキー、ネット使用料不要、ダブルロックキー、築2年以内、24時間換気システム、2駅利用可、3駅以上利用可、駅徒歩10分以内、敷地内ごみ置き場、都市ガス、敷金・礼金不要、初期費用カード決済可 入居日:'26年2月上旬 | ||
部屋の情報
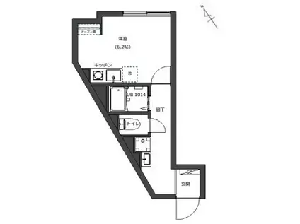
| 間取り | ワンルーム | 専有面積 | 20.38m2 |
|---|---|---|---|
| 所在階 / 向き | 2階 / 北東 | バルコニー面積 | - |
| 水道 / ガス | - | ||
| 設備 | バス・トイレ別、2階以上、オートロック、テレビドアホン、宅配ボックス、浴室乾燥機、インターネット対応、エアコン、温水洗浄便座、洗髪洗面化粧台、コンロ:IH、インターネット使用料無料、洗濯機:室内 | ||
| 当社物件ID | 160296766 | ||
建物の情報
| 建物名 | ロッツォ横浜南 | ||
|---|---|---|---|
| 所在地 | 神奈川県横浜市南区清水ケ丘 | ||
| 交通 | 京急本線 南太田駅 徒歩9分 ブルーライン 吉野町駅 徒歩13分 ブルーライン 蒔田駅 徒歩23分 | ||
| 階数 | 3階建 | 総戸数 | - |
| 築年月 | 2026年01月 / 築1年 | エレベーター | - |
| 駐車場 | なし | バイク置き場 | - |
| 駐輪場 | - | 管理人/管理会社 | - |
| 周辺環境 | その他 まいばすけっと 南太田1丁目店(スーパー)まで314m その他 南太田駅(その他)まで729m その他 まいばすけっと 南太田駅前店(スーパー)まで593m その他 セブンイレブン 横浜南太田店(コンビニ)まで418m その他 セブンイレブン 横浜南太田駅前店(コンビニ)まで692m その他 ドラッグストア マツモトキヨシ 横浜前里町店(ドラッグストア)まで585m | ||
| 建物種別 | マンション | 建物構造 | 鉄骨造 |
この部屋の取扱い不動産会社
| 会社名 | (株)ネクストライフ新横浜店(SUUMO経由) | ||
|---|---|---|---|
| 所在地 | 神奈川県横浜市港北区新横浜2-5-19 AXIS SHINYOKOHAMA6階 | 交通 | - |
| 営業時間 | 10:00~18:30(電話8:30~21:00) | 定休日 | 年末年始 |
| 免許番号 | 国土交通大臣8175 | 取引態様 | 仲介 |
| 不動産会社管理番号 | 100485324270 | 当社管理番号 | 89 |
| 所属団体 | (公社)神奈川県宅地建物取引業協会会員 | ||
| 公正取引協議会 | (公社)首都圏不動産公正取引協議会加盟 | ||
| 取扱い物件情報 | 物件詳細へ | ||
※各種情報と現状に差異がある場合は、現状優先となります。問い合わせをすることで、より詳しい条件、情報を確認する事ができます。
提供:(株)ネクストライフ新横浜店(SUUMO経由)
この物件が気になったら掲載期限まであと10日
ロッツォ横浜南に条件(家賃・エリア)が近い物件一覧
| 写真 | 家賃 管理費等 | 敷金 礼金 | 間取り 専有面積 | 築年数 | 最寄り駅 所在地 | キープ | 詳細 |
|---|---|---|---|---|---|---|---|
マンション メイクスデザイン川崎III(1DK/8階) | |||||||
![]() | 10.2万円 1.2万円 | 10.2万円 10.2万円 | 1DK 25.37m2 | 築6年 | 京浜東北・根岸線 川崎駅 徒歩7分 南武線 川崎駅 徒歩7分 神奈川県川崎市川崎区小川町 | 詳細を見る | |
アパート ユナイト大岡ギルバート・グレイプ(ワンルーム/2階) | |||||||
![]() | 5.5万円 3,500円 | なし なし | ワンルーム 13.5m2 | 築7年 | ブルーライン 弘明寺駅(横浜市営) 徒歩10分 京急本線 上大岡駅 徒歩15分 JR京浜東北線 磯子駅 徒歩38分 神奈川県横浜市南区大岡 | 詳細を見る | |
マンション 第二和同マンション(2DK/2階) | |||||||
![]() | 7.8万円 2,000円 | 7.8万円 7.8万円 | 2DK 44.17m2 | 築48年 | 京急本線 上大岡駅 徒歩10分 ブルーライン 弘明寺駅(横浜市営) 徒歩10分 京急本線 弘明寺駅(京急) 徒歩18分 神奈川県横浜市南区大岡 | 詳細を見る | |
マンション レオパレス新百合(1K/1階) | |||||||
![]() | 6.1万円 5,500円 | なし なし | 1K 19.87m2 | 築23年 | 小田急電鉄小田原線 柿生駅 徒歩12分 神奈川県川崎市麻生区上麻生4丁目 | 詳細を見る | |
アパート メゾン・ド・ベリーⅡ(1LDK/2階) | |||||||
![]() | 5万円 なし | 5万円 なし | 1LDK 32.72m2 | 築43年 | 横須賀線 衣笠駅 徒歩12分 神奈川県横須賀市佐野町6丁目 | 詳細を見る | |
マンション レオパレスKTⅡ(1K/3階) | |||||||
![]() | 6.1万円 5,500円 | なし 6.1万円 | 1K 19.87m2 | 築22年 | 小田急電鉄小田原線 生田駅(神奈川) 徒歩16分 神奈川県川崎市多摩区生田3丁目 | 詳細を見る | |
アパート ベイサイドヒルT&T(2DK/1階) | |||||||
![]() | 5.8万円 2,000円 | 5.8万円 なし | 2DK 43.87m2 | 築35年 | 神奈川県横須賀市鴨居2丁目 | 詳細を見る | |
アパート ユナイト野川ラヴィアンローゼ(ワンルーム/1階) | |||||||
![]() | 5.85万円 4,500円 | なし なし | ワンルーム 12.86m2 | 築8年 | JR南武線 武蔵新城駅 徒歩33分 JR南武線 武蔵中原駅 徒歩35分 JR南武線 武蔵小杉駅 徒歩57分 神奈川県川崎市高津区東野川 | 詳細を見る | |






/105x80-f1-q70-wp1)

