賃貸マンション
耕和マンションの賃貸物件情報(1LDK/4階)
| 家賃 | 管理費等 | 敷金 | 礼金 | 間取り | 専有面積 |
|---|---|---|---|---|---|
| 7.6万円 | 2,000円 | 7.6万円 | 7.6万円 | 1LDK | 38.83m2 |
入居決定でお祝い金最大100,000円
Point
まずはお問い合わせ!
不動産会社は街のプロ、あなたに合った物件がきっと見つかります。
提供:(株)サンハウス(SUUMO経由)

詳細情報 耕和マンション
物件紹介
耕和マンションはJR青梅線東中神駅から徒歩7分にあり、駅近で通勤通学に便利なマンションです。
このお部屋は2階以上に位置しているので、通行人や周囲の住人からの視線が気になりにくく、防犯面でも安心。インターホンにはTVモニタもついているため、相手の顔を確認してから来客対応することができます。
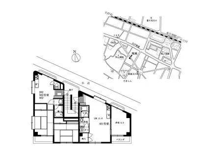
こちらは楽器相談が可能な物件。楽器演奏をお考えの方はぜひ相談してみてください。人気の南向き・フローリングのお部屋。角部屋でもあるため、周囲の居住者の生活音も気になりにくい場所です。キッチンはシステムキッチン仕様になっていますので、お料理好きの方にもぴったり。また、バス・トイレは別で、のんびりお風呂タイムも楽しめるでしょう。
ペット飼育の相談ができますので、あなたの大切な家族の一員も快適に暮らせるか、ぜひ確認してみてください。
このお部屋は2階以上に位置しているので、通行人や周囲の住人からの視線が気になりにくく、防犯面でも安心。インターホンにはTVモニタもついているため、相手の顔を確認してから来客対応することができます。
こちらは楽器相談が可能な物件。楽器演奏をお考えの方はぜひ相談してみてください。人気の南向き・フローリングのお部屋。角部屋でもあるため、周囲の居住者の生活音も気になりにくい場所です。キッチンはシステムキッチン仕様になっていますので、お料理好きの方にもぴったり。また、バス・トイレは別で、のんびりお風呂タイムも楽しめるでしょう。
ペット飼育の相談ができますので、あなたの大切な家族の一員も快適に暮らせるか、ぜひ確認してみてください。
お金・契約の情報
※「-」と表示されているものは、実際は料金が発生するものもございます。詳細はお問い合わせください。
| 家賃 | 7.6万円 | 管理費・共益費 | 2,000円 |
|---|---|---|---|
| 敷金 | 7.6万円 | 礼金 | 7.6万円 |
| 入居決定でお祝い金最大100,000円 | |||
| 保証金 | - | 償却・敷引 | - |
| 住宅保険料 | - | 更新料 | - |
| 保証会社利用 | 必須 | 保証会社名 | - |
| 保証会社費用 | - | 保証会社備考 | 保証会社利用必 新日本信用保証 50700円 |
| 契約形態 | - | 契約期間 | - |
| 入居・引渡期間 | 即時 | 現況 | - |
| 入居可能条件 | 楽器相談、ペット相談 | ||
| 契約備考 | 1LDK ペット相談/楽器相談/ルームシェア相談 普通借家2年 損保【1.5万円2年】 バルコニー、即入居可、ペット相談、楽器相談、ルームシェア相談 | ||
部屋の情報
| 間取り | 1LDK | 専有面積 | 38.83m2 |
|---|---|---|---|
| 所在階 / 向き | 4階 / - | バルコニー面積 | 2m2 |
| 水道 / ガス | - | ||
| 設備 | 2階以上、バルコニー | ||
| 当社物件ID | 121469218 | ||
建物の情報
| 建物名 | 耕和マンション | ||
|---|---|---|---|
| 所在地 | 東京都昭島市玉川町 | ||
| 交通 | JR青梅線 東中神駅 徒歩7分 | ||
| 階数 | 4階建 | 総戸数 | - |
| 築年月 | 1986年01月 / 築40年 | エレベーター | - |
| 駐車場 | なし | バイク置き場 | - |
| 駐輪場 | - | 管理人/管理会社 | - |
| 周辺環境 | その他 マルフジ東中神店(スーパー)まで203m その他 ローソンストア100東中神店(コンビニ)まで152m その他 多摩信用金庫昭島支店(銀行)まで405m その他 昭和公園(公園)まで711m | ||
| 建物種別 | マンション | 建物構造 | RC(鉄筋コンクリート) |
この部屋の取扱い不動産会社
| 会社名 | (株)サンハウス(SUUMO経由) | ||
|---|---|---|---|
| 所在地 | 東京都昭島市朝日町1-5-12 | 交通 | - |
| 営業時間 | - | 定休日 | - |
| 免許番号 | 東京都知事54601 | 取引態様 | 代理 |
| 不動産会社管理番号 | 100477605604 | 当社管理番号 | 89 |
| 所属団体 | (公社)全日本不動産協会東京都本部会員 | ||
| 公正取引協議会 | (公社)首都圏不動産公正取引協議会加盟 | ||
| 取扱い物件情報 | 物件詳細へ | ||
※各種情報と現状に差異がある場合は、現状優先となります。問い合わせをすることで、より詳しい条件、情報を確認する事ができます。
提供:(株)サンハウス(SUUMO経由)
この物件が気になったら掲載期限まであと9日
耕和マンションに条件(家賃・エリア)が近い物件一覧
| 写真 | 家賃 管理費等 | 敷金 礼金 | 間取り 専有面積 | 築年数 | 最寄り駅 所在地 | キープ | 詳細 |
|---|---|---|---|---|---|---|---|
マンション ダイナシティ八王子(1LDK/7階) | |||||||
![]() | 11万円 2万円 | 11万円 22万円 | 1LDK 38.82m2 | 築20年 | 中央本線 八王子駅 徒歩5分 京王電鉄京王線 京王八王子駅 徒歩8分 京王電鉄高尾線 京王片倉駅 徒歩26分 東京都八王子市中町 | 詳細を見る | |
アパート シティ・ライム(1K/1階) | |||||||
![]() | 5.95万円 4,100円 | なし 5.95万円 | 1K 27.29m2 | 築10年 | JR青梅線 拝島駅 徒歩7分 JR五日市線 熊川駅 徒歩12分 JR青梅線 牛浜駅 徒歩21分 東京都福生市大字熊川 | 詳細を見る | |
アパート プリムローズS.K(2LDK/1階) | |||||||
![]() | 6.6万円 3,500円 | なし 6.6万円 | 2LDK 60.86m2 | 築19年 | 東京都八王子市川口町 | 詳細を見る | |
アパート シードパレス(1LDK/1階) | |||||||
![]() | 7.4万円 3,500円 | なし なし | 1LDK 46.49m2 | 築21年 | 京王電鉄相模原線 南大沢駅 徒歩17分 京王電鉄相模原線 京王堀之内駅 徒歩20分 小田急電鉄多摩線 唐木田駅 徒歩41分 東京都八王子市松木 | 詳細を見る | |
アパート レントハウスフッサ860(ワンルーム/2階) | |||||||
![]() | 6.7万円 3,000円 | なし なし | ワンルーム 21.84m2 | 築1年 | JR青梅線 福生駅 徒歩8分 JR青梅線 牛浜駅 徒歩11分 JR八高線 東福生駅 徒歩13分 東京都福生市大字福生 | 詳細を見る | |
マンション シャルムベルシー(2LDK/2階) | |||||||
![]() | 9.2万円 3,000円 | 9.2万円 なし | 2LDK 64.8m2 | 築36年 | 中央本線 高尾駅(東京) 徒歩14分 京王電鉄高尾線 狭間駅 徒歩16分 東京都八王子市狭間町 | 詳細を見る | |
アパート ラ・シエスト(1K/1階) | |||||||
![]() | 5.3万円 6,000円 | なし 5.3万円 | 1K 28m2 | 築17年 | 東京都八王子市左入町 | 詳細を見る | |
アパート メゾンモンペール(2K/2階) | |||||||
![]() | 5.5万円 5,000円 | なし なし | 2K 36.24m2 | 築41年 | 中央本線 豊田駅 徒歩14分 中央本線 日野駅(東京) 徒歩26分 八高線 北八王子駅 徒歩35分 東京都日野市多摩平2丁目 | 詳細を見る | |









