賃貸マンション
エステムコート神戸元町IIリザーブの賃貸物件情報(2K/3階)
| 家賃 | 管理費等 | 敷金 | 礼金 | 間取り | 専有面積 |
|---|---|---|---|---|---|
| 10.39万円 | 1.219万円 | なし | なし | 2K | 35.88m2 |
入居決定でお祝い金最大100,000円
- 保証金
- -
- 償却・敷引
- -
- 築年数
- 築6年
- 所在階
- 3階
- 向き
- 北西
Point
保証会社加入要 短期解約違約金あり 消毒費(ペット飼育時)退去時22000円(税込)エアコンクリーニング代(一台につき)退去時13200円(税込)
提供:(有)ハウジングセンター兵庫(SUUMO経由)

詳細情報 エステムコート神戸元町IIリザーブ
物件紹介
エステムコート神戸元町IIリザーブは地下鉄西神・山手線大倉山駅から徒歩3分にあり、駅近で通勤通学に便利なマンションです。
このお部屋は2階以上に位置しているので、通行人や周囲の住人からの視線が気になりにくく、防犯面でも安心。建物のエントランスはオートロックがついており、インターホンにはTVモニタもついているため、相手の顔を確認してから来客対応することができます。
フローリングのお部屋なのでお掃除もラクラク。室内には人気のウォークインクローゼットがありますので、たくさんの荷物も効率的に収納ができます。キッチンはシステムキッチン仕様になっていますので、お料理好きの方にもぴったり。また、バス・トイレは別で、のんびりお風呂タイムも楽しめるでしょう。
通信設備面では、インターネットが無料で使えるので、月々の出費を抑えられるのも魅力です。また、BSアンテナ・CSアンテナがありCATVにも対応しているので、おうち時間も充実するでしょう(別途工事、BS・CS・CATVの契約料等が必要な場合あり)。
床暖房があり、冬も足元から暖かく快適に過ごすことができます。建物にはエレベーターがついているので、重い荷物があっても安心。共用部には宅配ボックスが設定されているので、不在の時にも荷物を受け取ることができます。また、ペット飼育の相談ができますので、あなたの大切な家族の一員も快適に暮らせるか、ぜひ確認してみてください。
このお部屋は2階以上に位置しているので、通行人や周囲の住人からの視線が気になりにくく、防犯面でも安心。建物のエントランスはオートロックがついており、インターホンにはTVモニタもついているため、相手の顔を確認してから来客対応することができます。
フローリングのお部屋なのでお掃除もラクラク。室内には人気のウォークインクローゼットがありますので、たくさんの荷物も効率的に収納ができます。キッチンはシステムキッチン仕様になっていますので、お料理好きの方にもぴったり。また、バス・トイレは別で、のんびりお風呂タイムも楽しめるでしょう。
通信設備面では、インターネットが無料で使えるので、月々の出費を抑えられるのも魅力です。また、BSアンテナ・CSアンテナがありCATVにも対応しているので、おうち時間も充実するでしょう(別途工事、BS・CS・CATVの契約料等が必要な場合あり)。
床暖房があり、冬も足元から暖かく快適に過ごすことができます。建物にはエレベーターがついているので、重い荷物があっても安心。共用部には宅配ボックスが設定されているので、不在の時にも荷物を受け取ることができます。また、ペット飼育の相談ができますので、あなたの大切な家族の一員も快適に暮らせるか、ぜひ確認してみてください。
お金・契約の情報
※「-」と表示されているものは、実際は料金が発生するものもございます。詳細はお問い合わせください。
| 家賃 | 10.39万円 | 管理費・共益費 | 1.219万円 |
|---|---|---|---|
| 敷金 | なし | 礼金 | なし |
| 入居決定でお祝い金最大100,000円 | |||
| 保証金 | - | 償却・敷引 | - |
| 住宅保険料 | - | 更新料 | - |
| 契約形態 | - | 契約期間 | - |
| 入居・引渡期間 | - | 現況 | - |
| 入居可能条件 | ペット相談 | ||
| 契約備考 | 巡回管理 合計3.85万円(内訳:エステム安心クラブ入会金0.55万円鍵交換代3.3万円) 室内清掃費用 53900円 エステム安心クラブ 月額990円 2K 二人入居可/ペット相談 普通借家1年 損保【2万円2年】 バストイレ別、バルコニー、エアコン、ガスコンロ対応、フローリング、TVインターホン、オートロック、室内洗濯置、シューズボックス、システムキッチン、温水洗浄便座、脱衣所、エレベーター、洗面所独立、2口コンロ、駐輪場、宅配ボックス、CATV、光ファイバー、外壁タイル張り、礼金不要、防犯カメラ、ペット相談、分譲賃貸、ウォークインクロゼット、保証人不要、二人入居相談、バイク置場、2沿線利用可、CS、ネット使用料不要、床暖房、バリアフリー、2駅利用可、3駅以上利用可、駅徒歩5分以内、都市ガス、玄関収納、BS、敷金・礼金不要 入居日:'26年4月下旬 | ||
部屋の情報
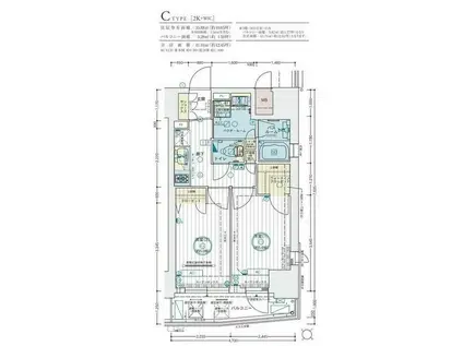
| 間取り | 2K | 専有面積 | 35.88m2 |
|---|---|---|---|
| 所在階 / 向き | 3階 / 北西 | バルコニー面積 | 5m2 |
| 水道 / ガス | - | ||
| 設備 | バス・トイレ別、2階以上、オートロック、テレビドアホン、宅配ボックス、ウォークインクローゼット、インターネット対応、システムキッチン、エアコン、エレベーター、温水洗浄便座、バルコニー、フローリング、洗髪洗面化粧台、床暖房、2口コンロ、コンロ:ガス、CATV、CSアンテナ、BSアンテナ、インターネット使用料無料、洗濯機:室内 | ||
| 当社物件ID | 54757751 | ||
建物の情報
| 建物名 | エステムコート神戸元町IIリザーブ | ||
|---|---|---|---|
| 所在地 | 兵庫県神戸市中央区下山手通 | ||
| 交通 | 神戸高速鉄道東西線 西元町駅 徒歩5分 神戸高速鉄道東西線 高速神戸駅 徒歩8分 JR東海道本線 神戸駅(兵庫) 徒歩9分 | ||
| 階数 | 15階建 | 総戸数 | 61戸 |
| 築年月 | 2021年01月 / 築6年 | エレベーター | あり |
| 駐車場 | なし | バイク置き場 | あり |
| 駐輪場 | あり | 管理人/管理会社 | - |
| 周辺環境 | その他 神戸市立山の手小学校(小学校)まで751m その他 神戸市立湊翔楠中学校(中学校)まで525m その他 神戸大学医学部(大学・短大)まで598m その他 ライフ 下山手店(スーパー)まで427m その他 セブンイレブン 神戸相生町1丁目北店(コンビニ)まで458m その他 神戸博愛病院(病院)まで320m | ||
| 建物種別 | マンション | 建物構造 | RC(鉄筋コンクリート) |
この部屋の取扱い不動産会社
| 会社名 | ホームメイトFC三宮店(有)アパマン住宅(SUUMO経由) | ||
|---|---|---|---|
| 所在地 | 兵庫県神戸市中央区三宮町1-8-1 さんプラザ112 | 交通 | - |
| 営業時間 | 10:00~19:00 | 定休日 | なし |
| 免許番号 | 兵庫県知事9090 | 取引態様 | 仲介 |
| 不動産会社管理番号 | 100500071314 | 当社管理番号 | 89 |
| 所属団体 | (一社)兵庫県宅地建物取引業協会会員 | ||
| 公正取引協議会 | (公社)近畿地区不動産公正取引協議会加盟 | ||
| 取扱い物件情報 | 物件詳細へ | ||
※各種情報と現状に差異がある場合は、現状優先となります。問い合わせをすることで、より詳しい条件、情報を確認する事ができます。
提供:ホームメイトFC三宮店(有)アパマン住宅(SUUMO経由)
この物件が気になったら掲載期限まであと11日
エステムコート神戸元町IIリザーブに条件(家賃・エリア)が近い物件一覧
| 写真 | 家賃 管理費等 | 敷金 礼金 | 間取り 専有面積 | 築年数 | 最寄り駅 所在地 | キープ | 詳細 |
|---|---|---|---|---|---|---|---|
アパート ラメゾンドゥアミー(3LDK/2階) | |||||||
![]() | 7.8万円 6,000円 | 2万円 なし | 3LDK 71.48m2 | 築14年 | JR山陽本線 土山駅 徒歩55分 JR山陽本線 東加古川駅 徒歩59分 JR加古川線 厄神駅 徒歩69分 兵庫県加古郡稲美町国岡 | 詳細を見る | |
アパート D-ROOM明石オーシャンビューハイツA(1LDK/1階) | |||||||
![]() | 8.9万円 6,500円 | 2万円 18万円 | 1LDK 40.9m2 | 築4年 | 山陽電気鉄道本線 藤江駅 徒歩12分 兵庫県明石市東藤江2丁目 | 詳細を見る | |
マンション GRANDE甲子園口(1K/3階) | |||||||
![]() | 7.6万円 4,000円 | なし 15.2万円 | 1K 28.9m2 | 築19年 | 東海道本線 甲子園口駅 徒歩8分 阪神電鉄本線 甲子園駅 徒歩19分 兵庫県西宮市甲子園口3丁目 | 詳細を見る | |
アパート セレッソハイツ(2LDK/1階) | |||||||
![]() | 7万円 2,000円 | 2万円 なし | 2LDK 52.5m2 | 築29年 | 山陽電鉄本線 中八木駅 徒歩7分 JR山陽本線 大久保駅(兵庫) 徒歩16分 山陽電鉄本線 江井ケ島駅 徒歩20分 兵庫県明石市大久保町八木 | 詳細を見る | |
マンション アヴァンティ三宮(1LDK/2階) | |||||||
![]() | 11万円 4,000円 | 11万円 11万円 | 1LDK 40m2 | 築11年 | 東海道本線 三ノ宮駅(JR) 徒歩10分 阪急電鉄神戸線 神戸三宮駅(阪急) 徒歩10分 兵庫県神戸市中央区二宮町2丁目 | 詳細を見る | |
マンション 朝日プラザ三木自由が丘(1LDK/4階) | |||||||
![]() | 6.6万円 4,000円 | なし 6.6万円 | 1LDK 79.57m2 | 築36年 | 神戸電鉄粟生線 志染駅 徒歩9分 神戸電鉄粟生線 恵比須駅 徒歩23分 神戸電鉄粟生線 三木上の丸駅 徒歩35分 兵庫県三木市自由が丘本町 | 詳細を見る | |
マンション リノスタイル西明石(2LDK/4階) | |||||||
![]() | 8.2万円 3,000円 | なし 8.2万円 | 2LDK 50m2 | 築50年 | 山陽本線 西明石駅 徒歩5分 山陽電気鉄道本線 藤江駅 徒歩23分 山陽本線 大久保駅(兵庫) 徒歩37分 兵庫県明石市松の内2丁目 | 詳細を見る | |
マンション 阪神電鉄本線 元町駅(阪神) 徒歩4分 築30年(ワンルーム/8階) | |||||||
![]() | 6.7万円 5,000円 | なし なし | ワンルーム 37.1m2 | 築30年 | 阪神電鉄本線 元町駅(阪神) 徒歩4分 山陽本線 神戸駅(兵庫) 徒歩7分 神戸高速鉄道東西線 花隈駅 徒歩10分 兵庫県神戸市中央区元町通6丁目 | 詳細を見る | |








