賃貸マンション
ブロッサムテラス滝野川の賃貸物件情報(1K/4階)
| 家賃 | 管理費等 | 敷金 | 礼金 | 間取り | 専有面積 |
|---|---|---|---|---|---|
| 8.9万円 | 5,000円 | 8.9万円 | 8.9万円 | 1K | 18m2 |
入居決定でお祝い金最大100,000円
- 保証金
- -
- 償却・敷引
- -
- 築年数
- 築8年
- 所在階
- 4階
- 向き
- 北東
- 交通
- 所在地
- 東京都北区滝野川6丁目
ブロッサムテラス滝野川
[地図を表示]
Point
初期費用立替・分割対応可!アパマンショップ新宿東南口店まで♪
提供:アパマンショップ池袋東口店

詳細情報 ブロッサムテラス滝野川
物件紹介
ブロッサムテラス滝野川はJR埼京線板橋駅から徒歩6分にあり、駅近で通勤通学に便利なマンションです。
このお部屋は2階以上に位置しているので、通行人や周囲の住人からの視線が気になりにくく、防犯面でも安心。建物のエントランスはオートロックがついており、インターホンにはTVモニタもついているため、相手の顔を確認してから来客対応することができます。
人気の角部屋で周囲の居住者の生活音も気になりにくく、また、フローリングのお部屋なのでお掃除もラクラク。キッチンはシステムキッチン仕様になっていますので、お料理好きの方にもぴったり。バス・トイレは別なので、のんびりお風呂タイムも楽しめるでしょう。また、雨の日でも浴室乾燥機を使えば、お洗濯も問題ありません。
通信設備面では、インターネットが無料で使えるので、月々の出費を抑えられるのも魅力です(別途工事等が必要な場合あり)。
共用部には宅配ボックスが設定されているので、不在の時にも荷物を受け取ることができます。
コンビニまで徒歩6分の場所にあり、日用品や食料品のお買い物にも便利です。
このお部屋は2階以上に位置しているので、通行人や周囲の住人からの視線が気になりにくく、防犯面でも安心。建物のエントランスはオートロックがついており、インターホンにはTVモニタもついているため、相手の顔を確認してから来客対応することができます。
人気の角部屋で周囲の居住者の生活音も気になりにくく、また、フローリングのお部屋なのでお掃除もラクラク。キッチンはシステムキッチン仕様になっていますので、お料理好きの方にもぴったり。バス・トイレは別なので、のんびりお風呂タイムも楽しめるでしょう。また、雨の日でも浴室乾燥機を使えば、お洗濯も問題ありません。
通信設備面では、インターネットが無料で使えるので、月々の出費を抑えられるのも魅力です(別途工事等が必要な場合あり)。
共用部には宅配ボックスが設定されているので、不在の時にも荷物を受け取ることができます。
コンビニまで徒歩6分の場所にあり、日用品や食料品のお買い物にも便利です。
お金・契約の情報
※「-」と表示されているものは、実際は料金が発生するものもございます。詳細はお問い合わせください。
| 家賃 | 8.9万円 | 管理費・共益費 | 5,000円 |
|---|---|---|---|
| 敷金 | 8.9万円 | 礼金 | 8.9万円 |
| 入居決定でお祝い金最大100,000円 | |||
| 保証金 | - | 償却・敷引 | - |
| 住宅保険料 | 2万円(2年) | 更新料 | - |
| 保証会社利用 | 必須 | 保証会社名 | ①シノケン②ルームID |
| 保証会社費用 | - | 保証会社備考 | ①初回:月額総賃料の50%〜(最低保証料5万円、連保付3万円)、次年度以降1万円〜※引落とし手数料660円②初回:月額総賃料の50%/月次保証料:月額総賃料の1.5% |
| 契約形態 | - | 契約期間 | 2年 |
| 入居・引渡期間 | 相談 | 現況 | - |
| 契約備考 | 解約予告2ヶ月前※短期解約違約金有(1年未満/1ヶ月) プレミアデスク(税込/2年) 22000円/鍵交換費用 38500円 | ||
部屋の情報
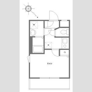
| 間取り | 1K | 専有面積 | 18m2 |
|---|---|---|---|
| 間取り詳細 | 洋室(4.9帖) | ||
| 所在階 / 向き | 4階 / 北東 | バルコニー面積 | - |
| 水道 / ガス | ガス【都市】 | ||
| 設備 | バス・トイレ別、オートロック、テレビドアホン、宅配ボックス、光ファイバー対応、温水洗浄便座、角部屋、バルコニー、フローリング、コンロ:IH、インターネット使用料無料、シャワー、洗濯機:室内 | ||
| 当社物件ID | 29344910 | ||
建物の情報
| 建物名 | ブロッサムテラス滝野川 | ||
|---|---|---|---|
| 所在地 | 東京都北区滝野川6丁目 | ||
| 交通 | - | ||
| 階数 | 5階建 | 総戸数 | 13戸 |
| 築年月 | 2019年01月 / 築8年 | エレベーター | - |
| 駐車場 | - | バイク置き場 | - |
| 駐輪場 | - | 管理人/管理会社 | - |
| 周辺環境 | 病院 帝京大付属病院 徒歩28分(2222m) その他 西巣鴨駅 徒歩9分(651m) その他 大塚駅 徒歩22分(1707m) その他 板橋区役所前駅 徒歩21分(1648m) その他 王子駅 徒歩26分(2017m) その他 駅 徒歩29分(2284m) その他 巣鴨駅 徒歩27分(2083m) その他 ローソン 徒歩30分(2362m) | ||
| 建物種別 | マンション | 建物構造 | RC(鉄筋コンクリート) |
この部屋の取扱い不動産会社
| 会社名 | アパマンショップ新宿東南口店 | ||
|---|---|---|---|
| 所在地 | 東京都新宿区新宿3丁目 36-18国土三協ビル4階 | 交通 | 湘南新宿ライン宇須新宿から徒歩1分 |
| 営業時間 | 10:00〜19:00(時間外もご相談ください!) | 定休日 | 水曜日 |
| 免許番号 | 国土交通大臣(5)6971 | 取引態様 | 仲介 |
| 不動産会社管理番号 | 104529332 | 当社管理番号 | 4 |
| 所属団体 | (公社)埼玉県宅地建物取引業協会 | ||
| 公正取引協議会 | (公社) 首都圏不動産公正取引協議会加盟 | ||
| 取扱い物件情報 | 物件詳細へ | ||
※各種情報と現状に差異がある場合は、現状優先となります。問い合わせをすることで、より詳しい条件、情報を確認する事ができます。
提供:アパマンショップ新宿東南口店
この物件が気になったら掲載期限まであと8日
ブロッサムテラス滝野川に条件(家賃・エリア)が近い物件一覧
| 写真 | 家賃 管理費等 | 敷金 礼金 | 間取り 専有面積 | 築年数 | 最寄り駅 所在地 | キープ | 詳細 |
|---|---|---|---|---|---|---|---|
マンション ウィンレックス赤羽二丁目(1K/2階) | |||||||
![]() | 7.4万円 5,000円 | なし 7.4万円 | 1K 16m2 | 築9年 | 東京メトロ南北線 赤羽岩淵駅 徒歩3分 JR埼京線 赤羽駅 徒歩7分 JR京浜東北線 赤羽駅 徒歩7分 東京都北区赤羽 | 詳細を見る | |
マンション アーバンステーション成増(1K/1階) | |||||||
![]() | 8.5万円 1万円 | なし 8.5万円 | 1K 25.52m2 | 築10年 | 東京メトロ有楽町線 地下鉄成増駅 徒歩3分 東京メトロ副都心線 地下鉄成増駅 徒歩3分 東武東上線 成増駅 徒歩5分 東京都板橋区成増 | 詳細を見る | |
アパート レオパレスフラッツイン(1K/2階) | |||||||
![]() | 8.4万円 5,500円 | なし 8.4万円 | 1K 26.08m2 | 築19年 | 東武伊勢崎線 西新井駅 徒歩10分 東武伊勢崎線 梅島駅 徒歩17分 東武大師線 大師前駅 徒歩22分 東京都足立区島根 | 詳細を見る | |
アパート ライフピア大塚(ワンルーム/2階) | |||||||
![]() | 6万円 3,000円 | 6万円 6万円 | ワンルーム 11.63m2 | 築20年 | JR山手線 大塚駅(東京) 徒歩7分 東京メトロ丸ノ内線 新大塚駅 徒歩15分 東京メトロ有楽町線 東池袋駅 徒歩15分 東京都豊島区北大塚 | 詳細を見る | |
マンション オークノワール綾瀬(ワンルーム/3階) | |||||||
![]() | 9.2万円 4,000円 | なし 9.2万円 | ワンルーム 20.01m2 | 築1年 | 東京メトロ千代田線 綾瀬駅 徒歩2分 東武伊勢崎線 小菅駅 徒歩14分 つくばエクスプレス 青井駅 徒歩21分 東京都足立区綾瀬 | 詳細を見る | |
アパート セレスティア青井Ⅱ(1LDK/3階) | |||||||
![]() | 11.8万円 6,000円 | なし 23.6万円 | 1LDK 30.22m2 | 新築 | つくばエクスプレス 青井駅 徒歩4分 東京都足立区青井3丁目 | 詳細を見る | |
マンション メゾン森2(2DK/3階) | |||||||
![]() | 9万円 なし | 9万円 9万円 | 2DK 40m2 | 築38年 | 日暮里舎人ライナー 西新井大師西駅 徒歩21分 東京都足立区鹿浜3丁目 | 詳細を見る | |
アパート 関アパート2号棟(1K/1階) | |||||||
![]() | 6.5万円 1,000円 | 6.5万円 6.5万円 | 1K 20m2 | 築51年 | 東京都三田線 新板橋駅 徒歩10分 埼京線 板橋駅 徒歩13分 東京都北区滝野川4丁目 | 詳細を見る | |








