賃貸一戸建て
西武鉄道拝島線 武蔵砂川駅 徒歩21分 3階建 築3年の賃貸物件情報(1SLDK)
| 家賃 | 管理費等 | 敷金 | 礼金 | 間取り | 専有面積 |
|---|---|---|---|---|---|
| 17.8万円 | なし | 17.8万円 | なし | 1SLDK | 75.45m2 |
入居決定でお祝い金最大100,000円
Point
こちらはTVインターフォン付きの一戸建てです。お風呂には追い焚き機能が付いています。
提供:ハウスコム西東京株式会社 立川南口店

詳細情報 西武鉄道拝島線 武蔵砂川駅 徒歩21分 3階建 築3年
物件紹介
西武鉄道拝島線武蔵砂川駅から徒歩21分にある一戸建てです。
このお部屋のインターホンにはTVモニタがついているため、相手の顔を確認してから来客対応することができます。
こちらは楽器相談が可能な物件。楽器演奏をお考えの方はぜひ相談してみてください。フローリングのお部屋なのでお掃除もラクラク。キッチンはシステムキッチン仕様になっていますので、お料理好きの方にもぴったり。また、バス・トイレは別で、のんびりお風呂タイムも楽しめるでしょう。
共用部には宅配ボックスが設定されているので、不在の時にも荷物を受け取ることができます。また、ペット飼育の相談ができますので、あなたの大切な家族の一員も快適に暮らせるか、ぜひ確認してみてください。
コンビニまで徒歩7分の場所にあり、日用品や食料品のお買い物にも便利です。
このお部屋のインターホンにはTVモニタがついているため、相手の顔を確認してから来客対応することができます。
こちらは楽器相談が可能な物件。楽器演奏をお考えの方はぜひ相談してみてください。フローリングのお部屋なのでお掃除もラクラク。キッチンはシステムキッチン仕様になっていますので、お料理好きの方にもぴったり。また、バス・トイレは別で、のんびりお風呂タイムも楽しめるでしょう。
共用部には宅配ボックスが設定されているので、不在の時にも荷物を受け取ることができます。また、ペット飼育の相談ができますので、あなたの大切な家族の一員も快適に暮らせるか、ぜひ確認してみてください。
コンビニまで徒歩7分の場所にあり、日用品や食料品のお買い物にも便利です。
お金・契約の情報
※「-」と表示されているものは、実際は料金が発生するものもございます。詳細はお問い合わせください。
| 家賃 | 17.8万円 | 管理費・共益費 | なし |
|---|---|---|---|
| 敷金 | 17.8万円 | 礼金 | なし |
| フリーレント | 1ヶ月 | ||
| 入居決定でお祝い金最大100,000円 | |||
| 保証金 | - | 償却・敷引 | - |
| 住宅保険料 | 1円 | 更新料 | - |
| 保証会社利用 | 必須 | 保証会社名 | エポスカード |
| 保証会社費用 | - | 保証会社備考 | 保証料:賃料等の50%(最低2万)、月額保証料:賃料等の1%(更新料無) |
| 契約形態 | - | 契約期間 | 2年 |
| 入居・引渡期間 | 即時 | 現況 | - |
| 入居可能条件 | 事務所不可、楽器可、ペット相談 | ||
| 契約備考 | (退去時)清掃費:99594円 ・(退去時)エアコン清掃費:44000円 ペット相談:小型犬可 大型犬可 猫可 小型犬・猫計1匹/敷金計2ヶ月 2年未満解約時賃料1カ月分違約金有、解約予告2ヶ月前(一部法人:礼金1ヵ月積増で1ヵ月前に変更可) その他設備/条件:室内洗濯機置き場、独立洗面台、クローゼット、シューズボックス、メゾネット | ||
部屋の情報
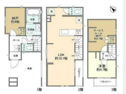
| 間取り | 1SLDK | 専有面積 | 75.45m2 |
|---|---|---|---|
| 間取り詳細 | LDK(18.1帖)、洋室(4.7帖)、S(6.1帖)、S(4帖) | ||
| 所在階 / 向き | 1階 / 南東 | バルコニー面積 | - |
| 水道 / ガス | 水道【公営】 | ||
| 設備 | バス・トイレ別、テレビドアホン、宅配ボックス、追い焚き、システムキッチン、エアコン、温水洗浄便座、バルコニー、フローリング、洗髪洗面化粧台、3口コンロ、コンロ:IH、シャワー | ||
| 当社物件ID | 159133371 | ||
建物の情報
| 建物名 | 西武鉄道拝島線 武蔵砂川駅 徒歩21分 3階建 築3年 | ||
|---|---|---|---|
| 所在地 | 東京都昭島市中神町 | ||
| 交通 | 西武鉄道拝島線 武蔵砂川駅 徒歩21分 | ||
| 階数 | 3階建 | 総戸数 | - |
| 築年月 | 2023年07月 / 築3年 | エレベーター | - |
| 駐車場 | 空有 | バイク置き場 | - |
| 駐輪場 | - | 管理人/管理会社 | - |
| 周辺環境 | コンビニ 徒歩7分(505m) 販売店 徒歩3分(184m) 小学校 立川市立大山小学校 徒歩7分(519m) その他 ドラッグストア その他 公園 その他 銀行 その他 * | ||
| 建物種別 | 一戸建て | 建物構造 | 木造 |
この部屋の取扱い不動産会社
| 会社名 | ハウスコム西東京株式会社 八王子駅前店 | ||
|---|---|---|---|
| 所在地 | 東京都八王子市2-12サンドラッグ八王子駅前ビル6階 | 交通 | - |
| 営業時間 | 10:00~18:00 | 定休日 | - |
| 免許番号 | 東京都知事(1)第108225号 | 取引態様 | 仲介 |
| 不動産会社管理番号 | HC2-4565530-1-0078 | 当社管理番号 | 468 |
| 所属団体 | 、 | ||
| 取扱い物件情報 | 物件詳細へ | ||
※各種情報と現状に差異がある場合は、現状優先となります。問い合わせをすることで、より詳しい条件、情報を確認する事ができます。
提供:ハウスコム西東京株式会社 八王子駅前店
この物件が気になったら掲載期限まであと4日
西武鉄道拝島線 武蔵砂川駅 徒歩21分 3階建 築3年に条件(家賃・エリア)が近い物件一覧
| 写真 | 家賃 管理費等 | 敷金 礼金 | 間取り 専有面積 | 築年数 | 最寄り駅 所在地 | キープ | 詳細 |
|---|---|---|---|---|---|---|---|
アパート ラ・プランタン北野(1LDK/3階) | |||||||
![]() | 11.3万円 6,000円 | なし 10万円 | 1LDK 37.26m2 | 築12年 | 京王線 北野駅(東京) 徒歩8分 JR中央線 八王子駅 徒歩20分 JR横浜線 片倉駅 徒歩23分 東京都八王子市北野町 | 詳細を見る | |
アパート ザ・フォレスト立川(1LDK/3階) | |||||||
![]() | 14万円 5,000円 | 14万円 14万円 | 1LDK 40.16m2 | 新築 | 中央本線 立川駅 徒歩11分 東京都立川市錦町3丁目 | 詳細を見る | |
アパート ドルチェヴィータ(1LDK/2階) | |||||||
![]() | 11.5万円 6,000円 | なし 20万円 | 1LDK 45.54m2 | 築12年 | 中央本線 豊田駅 徒歩10分 東京都日野市豊田2丁目 | 詳細を見る | |
アパート ドミール壱番館(1LDK/1階) | |||||||
![]() | 11.5万円 3,000円 | なし 11.5万円 | 1LDK 41.19m2 | 築19年 | 中央本線 立川駅 徒歩15分 多摩モノレール 高松駅(東京) 徒歩15分 多摩モノレール 立川北駅 徒歩15分 東京都立川市高松町2丁目 | 詳細を見る | |
マンション プレシス八王子(3LDK/2階) | |||||||
![]() | 19万円 1万円 | 19万円 19万円 | 3LDK 67.8m2 | 築12年 | 中央本線 八王子駅 徒歩5分 京王電鉄京王線 京王八王子駅 徒歩10分 京王電鉄高尾線 京王片倉駅 徒歩18分 東京都八王子市寺町 | 詳細を見る | |
アパート D-ROOM散田町(1LDK/1階) | |||||||
![]() | 10.8万円 5,000円 | なし 20万円 | 1LDK 41.3m2 | 築1年 | JR中央線 西八王子駅 徒歩5分 京王高尾線 めじろ台駅 徒歩24分 京王高尾線 山田駅(東京) 徒歩27分 東京都八王子市散田町 | 詳細を見る | |
アパート プラムハウス(3LDK/1階) | |||||||
![]() | 18万円 7,000円 | 18万円 18万円 | 3LDK 71.1m2 | 築1年 | 中央本線 豊田駅 徒歩11分 八高線 北八王子駅 徒歩22分 京王電鉄京王線 平山城址公園駅 徒歩31分 東京都日野市多摩平3丁目 | 詳細を見る | |








