賃貸アパート
ケイアイレジデンス清瀬2の賃貸物件情報(1LDK/2階)
| 家賃 | 管理費等 | 敷金 | 礼金 | 間取り | 専有面積 |
|---|---|---|---|---|---|
| 7.9万円 | 3,500円 | なし | なし | 1LDK | 28.2m2 |
入居決定でお祝い金最大100,000円
- 保証金
- -
- 償却・敷引
- -
- 築年数
- 築1年
- 所在階
- 2階
- 向き
- 北東
Point
当店掲載物件以外の物件もエリア・沿線問わず契約受付を承ります!内見不要のお客様は仲介手数料が家賃の33%(税込)!当店は初期費用の全額(または一部)の分割払いも可能です。
提供:(株)新井産業シンビアホーム(SUUMO経由)

詳細情報 ケイアイレジデンス清瀬2
物件紹介
ケイアイレジデンス清瀬2は西武池袋線清瀬駅から徒歩10分にあり、駅近で通勤通学に便利なアパートです。
このお部屋は2階以上に位置しているので、通行人や周囲の住人からの視線が気になりにくく、防犯面でも安心。建物のエントランスはオートロックがついており、インターホンにはTVモニタもついているため、相手の顔を確認してから来客対応することができます。
人気の角部屋で周囲の居住者の生活音も気になりにくく、また、フローリングのお部屋なのでお掃除もラクラク。室内にはウォークインクローゼットがありますので、たくさんの荷物も効率的に収納ができます。キッチンはシステムキッチン仕様になっていますので、お料理好きの方にもぴったり。バス・トイレは別なので、のんびりお風呂タイムも楽しめるでしょう。また、雨の日でも浴室乾燥機を使えば、お洗濯も問題ありません。
通信設備面では、インターネットが無料で使えるので、月々の出費を抑えられるのも魅力です。また、CATVにも対応しているので、おうち時間も充実するでしょう(別途工事、CATVの契約料等が必要な場合あり)。
共用部には宅配ボックスが設定されているので、不在の時にも荷物を受け取ることができます。
このお部屋は2階以上に位置しているので、通行人や周囲の住人からの視線が気になりにくく、防犯面でも安心。建物のエントランスはオートロックがついており、インターホンにはTVモニタもついているため、相手の顔を確認してから来客対応することができます。
人気の角部屋で周囲の居住者の生活音も気になりにくく、また、フローリングのお部屋なのでお掃除もラクラク。室内にはウォークインクローゼットがありますので、たくさんの荷物も効率的に収納ができます。キッチンはシステムキッチン仕様になっていますので、お料理好きの方にもぴったり。バス・トイレは別なので、のんびりお風呂タイムも楽しめるでしょう。また、雨の日でも浴室乾燥機を使えば、お洗濯も問題ありません。
通信設備面では、インターネットが無料で使えるので、月々の出費を抑えられるのも魅力です。また、CATVにも対応しているので、おうち時間も充実するでしょう(別途工事、CATVの契約料等が必要な場合あり)。
共用部には宅配ボックスが設定されているので、不在の時にも荷物を受け取ることができます。
お金・契約の情報
※「-」と表示されているものは、実際は料金が発生するものもございます。詳細はお問い合わせください。
| 家賃 | 7.9万円 | 管理費・共益費 | 3,500円 |
|---|---|---|---|
| 敷金 | なし | 礼金 | なし |
| 入居決定でお祝い金最大100,000円 | |||
| 保証金 | - | 償却・敷引 | - |
| 住宅保険料 | - | 更新料 | - |
| 保証会社利用 | 必須 | 保証会社名 | - |
| 保証会社費用 | - | 保証会社備考 | 保証会社利用必 初回保証料:総賃料の50%/月額保証料:900円 |
| 契約形態 | - | 契約期間 | - |
| 入居・引渡期間 | 即時 | 現況 | - |
| 契約備考 | 巡回管理/半年未満の解約は違約金として賃料2ヶ月分、半年以上1年未満の解約は違約金として賃料1ヶ月分 ※内見を行っての契約の場合、仲介手数料は家賃の55%(消費税込)となります。 合計9.9万円(内訳:クリーニング費5.5万円事務手数料1.65万円鍵交換代2.75万円) 更新料 新賃料1.00ヶ月分 火災保険+24時間サポート+インターネット(月額) 月額2750円 1LDK 二人入居可 普通借家2年 損保【要】 バストイレ別、エアコン、ガスコンロ対応、クロゼット、フローリング、TVインターホン、浴室乾燥機、オートロック、室内洗濯置、シューズボックス、システムキッチン、角住戸、温水洗浄便座、脱衣所、洗面所独立、洗面化粧台、2口コンロ、宅配ボックス、CATV、光ファイバー、即入居可、礼金不要、敷金不要、全居室収納、全居室洋室、ウォークインクロゼット、保証人不要、CATVインターネット、二人入居相談、全居室フローリング、玄関ホール、2沿線利用可、ネット使用料不要、1フロア2住戸、築2年以内、24時間換気システム、築3年以内、未入居、始発駅、2駅利用可、3駅以上利用可、3沿線以上利用可、駅徒歩10分以内、敷地内ごみ置き場、築5年以内、洗面所にドア、玄関収納、敷金・礼金不要、保証会社利用可 | ||
部屋の情報
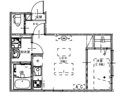
| 間取り | 1LDK | 専有面積 | 28.2m2 |
|---|---|---|---|
| 所在階 / 向き | 2階 / 北東 | バルコニー面積 | - |
| 水道 / ガス | - | ||
| 設備 | バス・トイレ別、2階以上、オートロック、テレビドアホン、宅配ボックス、浴室乾燥機、ウォークインクローゼット、インターネット対応、システムキッチン、エアコン、温水洗浄便座、角部屋、フローリング、洗髪洗面化粧台、2口コンロ、コンロ:ガス、CATV、インターネット使用料無料、洗濯機:室内 | ||
| 当社物件ID | 159594432 | ||
建物の情報
| 建物名 | ケイアイレジデンス清瀬2 | ||
|---|---|---|---|
| 所在地 | 東京都清瀬市元町 | ||
| 交通 | 西武池袋線 清瀬駅 徒歩10分 西武新宿線 花小金井駅 バス乗車時間:23分 最寄りバス停で下車 徒歩6分 JR中央線 武蔵小金井駅 バス乗車時間:43分 最寄りバス停で下車 徒歩6分 | ||
| 階数 | 3階建 | 総戸数 | 6戸 |
| 築年月 | 2025年10月 / 築1年 | エレベーター | - |
| 駐車場 | なし | バイク置き場 | - |
| 駐輪場 | - | 管理人/管理会社 | - |
| 周辺環境 | その他 セブンイレブン清瀬元町1丁目店(コンビニ)まで258m その他 清瀬診療所(病院)まで339m その他 三井住友銀行清瀬支店(銀行)まで402m その他 ウェルパーク清瀬北口店(ドラッグストア)まで462m その他 エスビィ清瀬店(スーパー)まで464m その他 清瀬けやきホール(その他)まで497m | ||
| 建物種別 | アパート | 建物構造 | 木造 |
この部屋の取扱い不動産会社
| 会社名 | (株)新井産業シンビアホーム(SUUMO経由) | ||
|---|---|---|---|
| 所在地 | 東京都西東京市ひばりが丘北3-3-20 石田ビル201 | 交通 | - |
| 営業時間 | 9:30~17:30 | 定休日 | 水曜日・日曜日 |
| 免許番号 | 国土交通大臣9412 | 取引態様 | 仲介 |
| 不動産会社管理番号 | 100480565323 | 当社管理番号 | 89 |
| 所属団体 | (公社)全日本不動産協会東京都本部会員 | ||
| 公正取引協議会 | (公社)首都圏不動産公正取引協議会加盟 | ||
| 取扱い物件情報 | 物件詳細へ | ||
※各種情報と現状に差異がある場合は、現状優先となります。問い合わせをすることで、より詳しい条件、情報を確認する事ができます。
提供:(株)新井産業シンビアホーム(SUUMO経由)
この物件が気になったら掲載期限まであと10日
ケイアイレジデンス清瀬2に条件(家賃・エリア)が近い物件一覧
| 写真 | 家賃 管理費等 | 敷金 礼金 | 間取り 専有面積 | 築年数 | 最寄り駅 所在地 | キープ | 詳細 |
|---|---|---|---|---|---|---|---|
マンション リブリ・ロコロ(1K/4階) | |||||||
![]() | 7.9万円 4,000円 | なし 11.85万円 | 1K 26.08m2 | 築8年 | 西武池袋・豊島線 清瀬駅 徒歩4分 西武池袋・豊島線 秋津駅 徒歩29分 武蔵野線 東所沢駅 徒歩35分 東京都清瀬市元町1丁目 | 詳細を見る | |
アパート ROBOT HOME 東所沢(1LDK/3階) | |||||||
![]() | 7.9万円 3,000円 | なし 7.9万円 | 1LDK 28m2 | 新築 | JR武蔵野線 東所沢駅 徒歩10分 西武池袋線 清瀬駅 徒歩43分 埼玉県所沢市東所沢 | 詳細を見る | |
アパート プロニティ・キャトル(2LDK/1階) | |||||||
![]() | 8.5万円 2,000円 | 8.5万円 8.5万円 | 2LDK 51.14m2 | 築9年 | 武蔵野線 東所沢駅 徒歩36分 武蔵野線 新座駅 徒歩39分 東京都清瀬市下清戸2丁目 | 詳細を見る | |
マンション リブリ・ACEⅡ(1K/3階) | |||||||
![]() | 6.9万円 4,000円 | なし 6.9万円 | 1K 26.49m2 | 築9年 | 西武鉄道新宿線 所沢駅 徒歩16分 武蔵野線 新秋津駅 徒歩20分 西武池袋・豊島線 秋津駅 徒歩24分 東京都東村山市秋津町3丁目 | 詳細を見る | |
アパート クレール秋津Ⅱ(2DK/2階) | |||||||
![]() | 5.4万円 1,000円 | 5.4万円 5.4万円 | 2DK 41.6m2 | 築29年 | 武蔵野線 新秋津駅 徒歩19分 西武池袋・豊島線 秋津駅 徒歩22分 西武鉄道新宿線 所沢駅 徒歩25分 東京都東村山市秋津町3丁目 | 詳細を見る | |
アパート アジュール清瀬(1K/2階) | |||||||
![]() | 6.9万円 5,000円 | なし 6.9万円 | 1K 20.76m2 | 築1年 | 西武池袋線 清瀬駅 徒歩9分 西武池袋線 東久留米駅 徒歩28分 東京都清瀬市松山 | 詳細を見る | |
アパート サンライズ(1LDK/1階) | |||||||
![]() | 7.8万円 3,000円 | 7.8万円 7.8万円 | 1LDK 40.35m2 | 築7年 | 武蔵野線 東所沢駅 徒歩18分 西武池袋・豊島線 清瀬駅 徒歩26分 西武池袋・豊島線 秋津駅 徒歩32分 東京都清瀬市中里4丁目 | 詳細を見る | |
マンション ブライトンパーク(4K/3階) | |||||||
![]() | 9.9万円 6,000円 | なし 12万円 | 4K 74.07m2 | 築33年 | 西武鉄道多摩湖線 武蔵大和駅 徒歩14分 西武鉄道新宿線 西武園駅 徒歩22分 西武鉄道新宿線 東村山駅 徒歩24分 東京都東村山市廻田町1丁目 | 詳細を見る | |









