賃貸マンション
阪急電鉄京都線 桂駅 徒歩5分 4階建 築46年の賃貸物件情報(3DK/4階)
| 家賃 | 管理費等 | 敷金 | 礼金 | 間取り | 専有面積 |
|---|---|---|---|---|---|
| 7.5万円 | 8,500円 | なし | 7.5万円 | 3DK | 53.46m2 |
入居決定でお祝い金最大100,000円
Point
これぞ駅近 西京区の賃貸は京都ライフへお任せ下さい
提供:株式会社 京都ライフ 長岡店(賃貸スモッカ経由)

詳細情報 阪急電鉄京都線 桂駅 徒歩5分 4階建 築46年
物件紹介
阪急電鉄京都線桂駅から徒歩5分にあり、駅近で通勤通学に便利なマンションです。
このお部屋は2階以上に位置しているので、通行人や周囲の住人からの視線が気になりにくく、防犯面でも安心です。
フローリングのお部屋なのでお掃除もラクラク。バス・トイレ別の仕様で、のんびりお風呂タイムも楽しめます。
通信設備面では、インターネット接続が可能です(別途工事、契約料が必要な場合あり)。
このお部屋は2階以上に位置しているので、通行人や周囲の住人からの視線が気になりにくく、防犯面でも安心です。
フローリングのお部屋なのでお掃除もラクラク。バス・トイレ別の仕様で、のんびりお風呂タイムも楽しめます。
通信設備面では、インターネット接続が可能です(別途工事、契約料が必要な場合あり)。
お金・契約の情報
※「-」と表示されているものは、実際は料金が発生するものもございます。詳細はお問い合わせください。
| 家賃 | 7.5万円 | 管理費・共益費 | 8,500円 |
|---|---|---|---|
| 敷金 | なし | 礼金 | 7.5万円 |
| 入居決定でお祝い金最大100,000円 | |||
| 保証金 | - | 償却・敷引 | - |
| 住宅保険料 | 住宅保険料あり | 更新料 | - |
| 契約形態 | - | 契約期間 | 2年 |
| 入居・引渡期間 | 即時 | 現況 | 空室 |
| 契約備考 | 阪急桂駅まで徒歩5分の3LDKマンションです。嬉しい3点セパレートなど充実の設備。コンビニ、スーパーなど近くにあって便利ですよ。 くらしーど24:16,500円 更新料:1ヶ月 その他設備/条件:最上階の物件、即入居可 | ||
部屋の情報
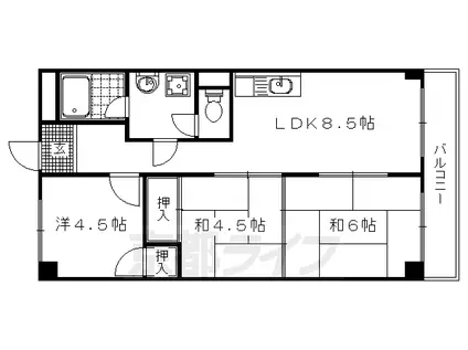
| 間取り | 3DK | 専有面積 | 53.46m2 |
|---|---|---|---|
| 間取り詳細 | 洋室(4.5帖)、和室(4.5帖)、和室(6帖)、DK(8.5帖) | ||
| 所在階 / 向き | 4階 / 東 | バルコニー面積 | - |
| 水道 / ガス | ガス【都市】 | ||
| 設備 | バス・トイレ別、2階以上、インターネット対応、バルコニー、フローリング、洗濯機:室内 | ||
| 当社物件ID | 160822890 | ||
建物の情報
| 建物名 | 阪急電鉄京都線 桂駅 徒歩5分 4階建 築46年 | ||
|---|---|---|---|
| 所在地 | 京都府京都市西京区川島滑樋町 | ||
| 交通 | 阪急電鉄京都線 桂駅 徒歩5分 阪急電鉄京都線 洛西口駅 徒歩13分 | ||
| 階数 | 4階建 | 総戸数 | - |
| 築年月 | 1981年04月 / 築46年 | エレベーター | - |
| 駐車場 | - | バイク置き場 | あり |
| 駐輪場 | あり | 管理人/管理会社 | - |
| 建物種別 | マンション | 建物構造 | RC(鉄筋コンクリート) |
この部屋の取扱い不動産会社
| 会社名 | 株式会社 京都ライフ 長岡店(賃貸スモッカ経由) | ||
|---|---|---|---|
| 所在地 | 長岡京市開田3丁目1番地24 | 交通 | - |
| 営業時間 | - | 定休日 | - |
| 免許番号 | 京都府知事(11)第6353号 | 取引態様 | 仲介 |
| 不動産会社管理番号 | kyotolife_42076-4D-08 | 当社管理番号 | 463 |
| 所属団体 | 京都府宅地建物取引業協会\n公益社団法人近畿地区不動産公正取引協議会 | ||
| 公正取引協議会 | 全国宅地建物取引業保証協会 | ||
| 取扱い物件情報 | 物件詳細へ | ||
※各種情報と現状に差異がある場合は、現状優先となります。問い合わせをすることで、より詳しい条件、情報を確認する事ができます。
提供:株式会社 京都ライフ 長岡店(賃貸スモッカ経由)
この物件が気になったら掲載期限まであと6日
阪急電鉄京都線 桂駅 徒歩5分 4階建 築46年に条件(家賃・エリア)が近い物件一覧
| 写真 | 家賃 管理費等 | 敷金 礼金 | 間取り 専有面積 | 築年数 | 最寄り駅 所在地 | キープ | 詳細 |
|---|---|---|---|---|---|---|---|
アパート レオパレス西京(1K/1階) | |||||||
![]() | 6.1万円 7,000円 | なし なし | 1K 19.87m2 | 築19年 | 阪急京都線 洛西口駅 徒歩41分 阪急京都線 桂駅 徒歩44分 JR東海道本線 桂川駅(京都) 徒歩49分 京都府京都市西京区大枝塚原町 | 詳細を見る | |
アパート 奈良線 宇治駅(JR) 徒歩10分 新築(1LDK/2階) | |||||||
![]() | 8.7万円 5,200円 | なし 13万円 | 1LDK 42.59m2 | 新築 | 奈良線 宇治駅(JR) 徒歩10分 京阪電気鉄道宇治線 宇治駅(京阪) 徒歩17分 京都府宇治市宇治善法 | 詳細を見る | |
マンション ロアールハイツ(2LDK/4階) | |||||||
![]() | 6.5万円 なし | なし なし | 2LDK 40m2 | 築44年 | 阪急京都線 桂駅 徒歩15分 JR東海道本線 桂川駅(京都) 徒歩20分 京都府京都市西京区下津林大般若町 | 詳細を見る | |
マンション 阪急電鉄京都線 洛西口駅 徒歩52分 築9年(2LDK/3階) | |||||||
![]() | 9.5万円 7,000円 | 9.5万円 9.5万円 | 2LDK 56m2 | 築9年 | 阪急電鉄京都線 洛西口駅 徒歩52分 阪急電鉄京都線 桂駅 徒歩54分 京都府京都市西京区大枝沓掛町 | 詳細を見る | |
マンション ユニ宇治マンション5号館(2LDK/2階) | |||||||
![]() | 7.5万円 4,000円 | 7.5万円 7.5万円 | 2LDK 60.98m2 | 築48年 | 京阪宇治線 木幡駅(京阪) 徒歩4分 JR奈良線 木幡駅(JR) 徒歩7分 地下鉄東西線 六地蔵駅(京都市営) 徒歩16分 京都府宇治市木幡 | 詳細を見る | |
マンション チート安井(1K/3階) | |||||||
![]() | 4.8万円 3,000円 | なし なし | 1K 20.62m2 | 築38年 | 阪急京都線 西京極駅 徒歩7分 地下鉄東西線 太秦天神川駅 徒歩22分 JR東海道本線 西大路駅 徒歩23分 京都府京都市右京区西京極西川町 | 詳細を見る | |
マンション 阪急電鉄京都線 桂駅 徒歩15分 築38年(1LDK/3階) | |||||||
![]() | 7.1万円 6,000円 | 7.1万円 7.1万円 | 1LDK 46.75m2 | 築38年 | 阪急電鉄京都線 桂駅 徒歩15分 東海道本線 桂川駅(京都) 徒歩44分 京都府京都市西京区山田大吉見町 | 詳細を見る | |
アパート GREEN GARDEN(1DK/3階) | |||||||
![]() | 7.6万円 6,000円 | なし なし | 1DK 27.5m2 | 築1年 | 奈良線 新田駅(京都) 徒歩3分 近鉄京都線 大久保駅(京都) 徒歩10分 京都府宇治市広野町 | 詳細を見る | |









