賃貸マンション
シャーメゾンサワ・ヴィラージュの賃貸物件情報(ワンルーム/1階)
| 家賃 | 管理費等 | 敷金 | 礼金 | 間取り | 専有面積 |
|---|---|---|---|---|---|
| 6万円 | 8,700円 | 3万円 | 6万円 | ワンルーム | 40.58m2 |
入居決定でお祝い金最大100,000円
- 保証金
- -
- 償却・敷引
- -
- 築年数
- 築19年
- 所在階
- 1階
- 向き
- 西
Point
弊社専任物件です!お部屋探しはツインホーム本店にお任せください!
提供:ツインホーム(株)本店(SUUMO経由)

詳細情報 シャーメゾンサワ・ヴィラージュ
物件紹介
シャーメゾンサワ・ヴィラージュは近鉄南大阪線北田辺駅から徒歩9分にあり、駅近で通勤通学に便利なマンションです。
建物のエントランスはオートロックがついており、インターホンにはTVモニタもついているため、相手の顔を確認してから来客対応することができます。
キッチンはシステムキッチン仕様になっていますので、お料理好きの方にもぴったり。バス・トイレは別なので、のんびりお風呂タイムも楽しめるでしょう。また、雨の日でも浴室乾燥機を使えば、お洗濯も問題ありません。
通信設備面では、インターネットが無料で使えるので、月々の出費を抑えられるのも魅力です。また、BSアンテナがありCATVにも対応しているので、おうち時間も充実するでしょう(別途工事、BS・CATVの契約料等が必要な場合あり)。
建物にはエレベーターがついているので、重い荷物があっても安心。また、ペット飼育の相談ができますので、あなたの大切な家族の一員も快適に暮らせるか、ぜひ確認してみてください。
建物のエントランスはオートロックがついており、インターホンにはTVモニタもついているため、相手の顔を確認してから来客対応することができます。
キッチンはシステムキッチン仕様になっていますので、お料理好きの方にもぴったり。バス・トイレは別なので、のんびりお風呂タイムも楽しめるでしょう。また、雨の日でも浴室乾燥機を使えば、お洗濯も問題ありません。
通信設備面では、インターネットが無料で使えるので、月々の出費を抑えられるのも魅力です。また、BSアンテナがありCATVにも対応しているので、おうち時間も充実するでしょう(別途工事、BS・CATVの契約料等が必要な場合あり)。
建物にはエレベーターがついているので、重い荷物があっても安心。また、ペット飼育の相談ができますので、あなたの大切な家族の一員も快適に暮らせるか、ぜひ確認してみてください。
お金・契約の情報
※「-」と表示されているものは、実際は料金が発生するものもございます。詳細はお問い合わせください。
| 家賃 | 6万円 | 管理費・共益費 | 8,700円 |
|---|---|---|---|
| 敷金 | 3万円 | 礼金 | 6万円 |
| 入居決定でお祝い金最大100,000円 | |||
| 保証金 | - | 償却・敷引 | - |
| 住宅保険料 | - | 更新料 | - |
| 契約形態 | - | 契約期間 | - |
| 入居・引渡期間 | 即時 | 現況 | - |
| 入居可能条件 | ペット相談 | ||
| 契約備考 | ワンルーム 二人入居可/ペット相談/事務所利用不可 損保【要】 バストイレ別、バルコニー、エアコン、クロゼット、シャワー付洗面台、TVインターホン、浴室乾燥機、オートロック、室内洗濯置、シューズボックス、システムキッチン、追焚機能浴室、温水洗浄便座、脱衣所、エレベーター、洗面化粧台、駐輪場、CATV、3口以上コンロ、防犯カメラ、ペット相談、IHクッキングヒーター、保証人不要、二人入居相談、2沿線利用可、ディンプルキー、ネット使用料不要、ダブルロックキー、保証金不要、複層ガラス、ペット専用設備、2駅利用可、3駅以上利用可、3沿線以上利用可、駅徒歩10分以内、敷地内ごみ置き場、平面駐車場、都市ガス、BS、年内入居可、年度内入居可 | ||
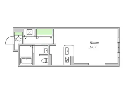
部屋の情報
| 間取り | ワンルーム | 専有面積 | 40.58m2 |
|---|---|---|---|
| 所在階 / 向き | 1階 / 西 | バルコニー面積 | - |
| 水道 / ガス | - | ||
| 設備 | バス・トイレ別、オートロック、テレビドアホン、浴室乾燥機、追い焚き、インターネット対応、システムキッチン、エアコン、エレベーター、温水洗浄便座、バルコニー、2口コンロ、コンロ:IH、CATV、BSアンテナ、インターネット使用料無料、洗濯機:室内 | ||
| 当社物件ID | 159452346 | ||
建物の情報
| 建物名 | シャーメゾンサワ・ヴィラージュ | ||
|---|---|---|---|
| 所在地 | 大阪府大阪市東住吉区桑津 | ||
| 交通 | 近鉄南大阪線 北田辺駅 徒歩9分 JR阪和線 美章園駅 徒歩10分 JR関西本線 東部市場前駅 徒歩11分 | ||
| 階数 | 4階建 | 総戸数 | - |
| 築年月 | 2008年01月 / 築19年 | エレベーター | あり |
| 駐車場 | 空有 15400円 | バイク置き場 | - |
| 駐輪場 | あり | 管理人/管理会社 | - |
| 周辺環境 | その他 駅前薬局(ドラッグストア)まで718m その他 阿倍野美章園郵便局(郵便局)まで936m その他 セブンイレブン 大阪桑津5丁目店(コンビニ)まで216m その他 ライフ杭全店(スーパー)まで904m その他 ファミリーマート 北田辺駅前店(コンビニ)まで689m その他 業務スーパー 今川店(スーパー)まで1528m | ||
| 建物種別 | マンション | 建物構造 | 鉄骨造 |
この部屋の取扱い不動産会社
| 会社名 | ツインホーム(株)本店(SUUMO経由) | ||
|---|---|---|---|
| 所在地 | 大阪府大阪市阿倍野区松崎町4-1-13 | 交通 | - |
| 営業時間 | 10:00~20:00 | 定休日 | なし |
| 免許番号 | 大阪府知事46704 | 取引態様 | 仲介 |
| 不動産会社管理番号 | 100458159773 | 当社管理番号 | 89 |
| 所属団体 | (公社)全日本不動産協会大阪府本部会員 | ||
| 公正取引協議会 | (公社)近畿地区不動産公正取引協議会加盟 | ||
| 取扱い物件情報 | 物件詳細へ | ||
※各種情報と現状に差異がある場合は、現状優先となります。問い合わせをすることで、より詳しい条件、情報を確認する事ができます。
提供:ツインホーム(株)本店(SUUMO経由)
この物件が気になったら掲載期限まであと10日
シャーメゾンサワ・ヴィラージュに条件(家賃・エリア)が近い物件一覧
| 写真 | 家賃 管理費等 | 敷金 礼金 | 間取り 専有面積 | 築年数 | 最寄り駅 所在地 | キープ | 詳細 |
|---|---|---|---|---|---|---|---|
マンション 南海電鉄泉北線 泉ケ丘駅 徒歩26分 築30年(3LDK/3階) | |||||||
![]() | 6.8万円 5,000円 | なし 15万円 | 3LDK 52.8m2 | 築30年 | 南海電鉄泉北線 泉ケ丘駅 徒歩26分 南海電鉄泉北線 深井駅 徒歩32分 南海電鉄泉北線 栂・美木多駅 徒歩57分 大阪府堺市中区深阪4丁 | 詳細を見る | |
アパート ジーメゾン吹田岸部(1K/2階) | |||||||
![]() | 6.9万円 5,000円 | なし なし | 1K 25m2 | 新築 | 東海道本線 岸辺駅 徒歩8分 阪急電鉄京都線 正雀駅 徒歩12分 東海道本線 吹田駅(JR) 徒歩24分 大阪府吹田市岸部南3丁目115 | 詳細を見る | |
マンション ARCA正雀(1K/4階) | |||||||
| 7万円 6,000円 | なし 7万円 | 1K 23.67m2 | 築1年 | 阪急電鉄京都線 正雀駅 徒歩4分 東海道本線 岸辺駅 徒歩12分 大阪モノレール本線 摂津駅 徒歩22分 大阪府摂津市正雀本町1丁目20-9 | 詳細を見る | ||
マンション 元町ハイツ2(1DK/1階) | |||||||
![]() | 5.1万円 5,000円 | なし 5.1万円 | 1DK 28m2 | 築38年 | 京阪電気鉄道京阪線 滝井駅 徒歩3分 京阪電気鉄道京阪線 千林駅 徒歩6分 京阪電気鉄道京阪線 土居駅 徒歩8分 大阪府守口市滝井元町2丁目 | 詳細を見る | |
マンション スタンドアップ松原(3LDK/5階) | |||||||
![]() | 7.8万円 7,000円 | なし 7.8万円 | 3LDK 72.25m2 | 築37年 | 近鉄南大阪線 布忍駅 徒歩5分 近鉄南大阪線 高見ノ里駅 徒歩7分 近鉄南大阪線 河内松原駅 徒歩15分 大阪府松原市東新町4丁目 | 詳細を見る | |
マンション ピュール絆(1K/4階) | |||||||
![]() | 4.5万円 6,400円 | なし なし | 1K 24.3m2 | 築22年 | 南海電鉄南海本線 諏訪ノ森駅 徒歩2分 阪堺電気軌道阪堺線 船尾駅(大阪) 徒歩4分 阪堺電気軌道阪堺線 石津駅(大阪) 徒歩12分 大阪府堺市西区浜寺諏訪森町西1丁 | 詳細を見る | |
アパート 阪和線 上野芝駅 徒歩17分 築12年(2LDK/3階) | |||||||
![]() | 9万円 7,000円 | なし 13.5万円 | 2LDK 54.23m2 | 築12年 | 阪和線 上野芝駅 徒歩17分 阪和線 津久野駅 徒歩23分 南海電鉄泉北線 深井駅 徒歩25分 大阪府堺市中区深井北町 | 詳細を見る | |





