賃貸アパート
スプリングエンジェルIIの賃貸物件情報(1LDK/2階)
| 家賃 | 管理費等 | 敷金 | 礼金 | 間取り | 専有面積 |
|---|---|---|---|---|---|
| 3.8万円 | なし | 3.8万円 | なし | 1LDK | 32.59m2 |
入居決定でお祝い金最大100,000円
Point
灯油メーターに変更済み。物件周辺には商業施設が充実。
提供:ベストルーム旭川店M&A住環境パ-トナ-ズ(株)(SUUMO経由)

詳細情報 スプリングエンジェルII
物件紹介
このお部屋は2階以上に位置しているので、通行人や周囲の住人からの視線が気になりにくく、防犯面でも安心。インターホンにはTVモニタもついているため、相手の顔を確認してから来客対応することができます。
バス・トイレ別の仕様で、のんびりお風呂タイムも楽しめます。
通信設備面では、インターネットが無料で使えるので、月々の出費を抑えられるのも魅力です。また、BSアンテナもありますので、おうち時間も充実するでしょう(別途工事、BSの契約料等が必要な場合あり)。
バス・トイレ別の仕様で、のんびりお風呂タイムも楽しめます。
通信設備面では、インターネットが無料で使えるので、月々の出費を抑えられるのも魅力です。また、BSアンテナもありますので、おうち時間も充実するでしょう(別途工事、BSの契約料等が必要な場合あり)。
お金・契約の情報
※「-」と表示されているものは、実際は料金が発生するものもございます。詳細はお問い合わせください。
| 家賃 | 3.8万円 | 管理費・共益費 | なし |
|---|---|---|---|
| 敷金 | 3.8万円 | 礼金 | なし |
| 入居決定でお祝い金最大100,000円 | |||
| 保証金 | - | 償却・敷引 | - |
| 住宅保険料 | - | 更新料 | - |
| 契約形態 | - | 契約期間 | - |
| 入居・引渡期間 | - | 現況 | - |
| 契約備考 | インターネット無料・都市ガス・買物便良い立地で旭川医大近く。 合計2.2万円(内訳:退去時水廻清掃料:22000円) 1LDK 損保【1.5万円2年】 バストイレ別、クロゼット、シャワー付洗面台、TVインターホン、室内洗濯置、シューズボックス、脱衣所、洗面所独立、礼金不要、最上階、灯油暖房、敷金1ヶ月、物置、ネット使用料不要、バス停徒歩3分以内、上階無し、都市ガス、BS、全室照明付 入居日:'26年4月上旬 | ||
部屋の情報
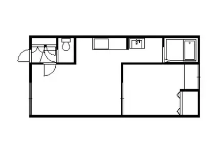
| 間取り | 1LDK | 専有面積 | 32.59m2 |
|---|---|---|---|
| 所在階 / 向き | 2階 / - | バルコニー面積 | - |
| 水道 / ガス | - | ||
| 設備 | バス・トイレ別、2階以上、テレビドアホン、インターネット対応、洗髪洗面化粧台、BSアンテナ、インターネット使用料無料、洗濯機:室内 | ||
| 当社物件ID | 37716326 | ||
建物の情報
| 建物名 | スプリングエンジェルII | ||
|---|---|---|---|
| 所在地 | 北海道旭川市旭神二条 | ||
| 交通 | JR函館本線 旭川駅 バス乗車時間:30分 最寄りバス停で下車 徒歩1分 | ||
| 階数 | 2階建 | 総戸数 | 10戸 |
| 築年月 | 1997年03月 / 築29年 | エレベーター | - |
| 駐車場 | なし | バイク置き場 | - |
| 駐輪場 | - | 管理人/管理会社 | - |
| 周辺環境 | その他 緑が丘中学校(中学校)まで1000m その他 緑が丘小学校(小学校)まで1300m | ||
| 建物種別 | アパート | 建物構造 | 木造 |
この部屋の取扱い不動産会社
| 会社名 | ベストルーム旭川店M&A住環境パ-トナ-ズ(株)(SUUMO経由) | ||
|---|---|---|---|
| 所在地 | 北海道旭川市東一条3-2-16 | 交通 | - |
| 営業時間 | 10:00~18:00 | 定休日 | 水曜日 |
| 免許番号 | 北海道知事上川1165 | 取引態様 | 仲介 |
| 不動産会社管理番号 | 100489815683 | 当社管理番号 | 89 |
| 所属団体 | (公社)北海道宅地建物取引業協会会員 | ||
| 公正取引協議会 | (一社)北海道不動産公正取引協議会加盟 | ||
| 取扱い物件情報 | 物件詳細へ | ||
※各種情報と現状に差異がある場合は、現状優先となります。問い合わせをすることで、より詳しい条件、情報を確認する事ができます。
提供:ベストルーム旭川店M&A住環境パ-トナ-ズ(株)(SUUMO経由)
この物件が気になったら掲載期限まであと9日
スプリングエンジェルIIに条件(家賃・エリア)が近い物件一覧
| 写真 | 家賃 管理費等 | 敷金 礼金 | 間取り 専有面積 | 築年数 | 最寄り駅 所在地 | キープ | 詳細 |
|---|---|---|---|---|---|---|---|
アパート グランピア37(1LDK/1階) | |||||||
![]() | 4.5万円 3,000円 | 4.5万円 なし | 1LDK 42.12m2 | 築15年 | 石北本線 新旭川駅 徒歩41分 北海道旭川市春光三条7丁目 | 詳細を見る | |
アパート ゼフィール(2LDK/1階) | |||||||
![]() | 5.5万円 なし | 5.5万円 なし | 2LDK 60.61m2 | 築22年 | 函館本線 近文駅 徒歩22分 北海道旭川市錦町15丁目 | 詳細を見る | |
アパート MINAJU(1LDK/1階) | |||||||
![]() | 4.8万円 なし | 4.8万円 なし | 1LDK 35.24m2 | 築12年 | 函館本線 近文駅 徒歩38分 北海道旭川市川端町三条8丁目 | 詳細を見る | |
マンション センチュリー旭川(2LDK/2階) | |||||||
![]() | 5.5万円 2,000円 | なし なし | 2LDK 54.63m2 | 築34年 | 石北本線 旭川四条駅 徒歩7分 北海道旭川市六条通16丁目 | 詳細を見る | |
アパート オリーブハウス(2DK/2階) | |||||||
![]() | 3万円 2,000円 | 3万円 なし | 2DK 45.04m2 | 築31年 | JR宗谷本線 永山駅 徒歩15分 北海道旭川市永山二条 | 詳細を見る | |
アパート MSビーブラッド(1LDK/2階) | |||||||
![]() | 3.8万円 2,000円 | なし なし | 1LDK 40.5m2 | 築24年 | JR富良野線 神楽岡駅 徒歩8分 北海道旭川市神楽四条 | 詳細を見る | |
アパート 南永コーポ1(2LDK/1階) | |||||||
![]() | 3.8万円 なし | なし なし | 2LDK 51.32m2 | 築45年 | JR石北本線 南永山駅 徒歩3分 JR石北本線 新旭川駅 徒歩41分 JR石北本線 旭川四条駅 徒歩47分 北海道旭川市永山十条 | 詳細を見る | |
アパート グラディアⅡ(1LDK/1階) | |||||||
![]() | 4.75万円 なし | なし なし | 1LDK 35.28m2 | 築23年 | 石北本線 旭川四条駅 徒歩45分 北海道旭川市東光九条4丁目 | 詳細を見る | |









