賃貸アパート
アムール和の賃貸物件情報(1K/1階)
| 家賃 | 管理費等 | 敷金 | 礼金 | 間取り | 専有面積 |
|---|---|---|---|---|---|
| 4.2万円 | 3,000円 | なし | なし | 1K | 23.2m2 |
入居決定でお祝い金最大100,000円
- 保証金
- -
- 償却・敷引
- -
- 築年数
- 築19年
- 所在階
- 1階
- 向き
- 東
Point
【リモート内見・オンライン相談可】【初期費用カード決済可】お問い合わせや内見希望はお気軽にご連絡下さい。詳細なお問合せやご相談はお電話の方がスムーズです☆先行申込も受付中☆
提供:アルプスの賃貸関内南口支店(株)アルプス建設(SUUMO経由)

詳細情報 アムール和
物件紹介
アムール和は京急本線弘明寺駅から徒歩20分にあるアパートです。
このお部屋のインターホンにはTVモニタがついているため、相手の顔を確認してから来客対応することができます。
人気の角部屋で周囲の居住者の生活音も気になりにくく、また、フローリングのお部屋なのでお掃除もラクラク。バス・トイレ別の仕様で、のんびりお風呂タイムも楽しめます。また、浴室乾燥機を使えば、雨の日でもお洗濯は問題ありません。
通信設備面では、インターネットが無料で使えるので、月々の出費を抑えられるのも魅力です。また、CATVにも対応しているので、おうち時間も充実するでしょう(別途工事、CATVの契約料等が必要な場合あり)。
このお部屋のインターホンにはTVモニタがついているため、相手の顔を確認してから来客対応することができます。
人気の角部屋で周囲の居住者の生活音も気になりにくく、また、フローリングのお部屋なのでお掃除もラクラク。バス・トイレ別の仕様で、のんびりお風呂タイムも楽しめます。また、浴室乾燥機を使えば、雨の日でもお洗濯は問題ありません。
通信設備面では、インターネットが無料で使えるので、月々の出費を抑えられるのも魅力です。また、CATVにも対応しているので、おうち時間も充実するでしょう(別途工事、CATVの契約料等が必要な場合あり)。
お金・契約の情報
※「-」と表示されているものは、実際は料金が発生するものもございます。詳細はお問い合わせください。
| 家賃 | 4.2万円 | 管理費・共益費 | 3,000円 |
|---|---|---|---|
| 敷金 | なし | 礼金 | なし |
| 入居決定でお祝い金最大100,000円 | |||
| 保証金 | - | 償却・敷引 | - |
| 住宅保険料 | - | 更新料 | - |
| 保証会社利用 | 必須 | 保証会社名 | - |
| 保証会社費用 | - | 保証会社備考 | 保証会社利用必 初回保証料総賃料の80%、月額保証料550円/月、継続保証料20000円/2年 |
| 契約形態 | - | 契約期間 | - |
| 入居・引渡期間 | - | 現況 | - |
| 契約備考 | 【春からの新入生・新社会人様大歓迎!入居日ご相談ください】友の会費:2.530円/月 短期解約時違約金あり 初期費用を分割可能です!(スムーズ・クレジット決済) 合計5.39万円(内訳:除菌消毒代2.64万円鍵交換代2.75万円) 更新料 新賃料1.25ヶ月分 1K 普通借家2年 損保【要】 バストイレ別、バルコニー、エアコン、ガスコンロ対応、クロゼット、フローリング、TVインターホン、浴室乾燥機、室内洗濯置、角住戸、脱衣所、洗面所独立、洗面化粧台、2口コンロ、CATV、閑静な住宅地、2面採光、照明付、保証人不要、24時間緊急通報システム、2沿線利用可、ネット使用料不要、24時間換気システム、2駅利用可、3駅以上利用可、3沿線以上利用可、敷金・礼金不要、保証会社利用可、初期費用30万円以下、IT重説対応物件、初期費用カード決済可 入居日:'26年1月中旬 | ||
部屋の情報
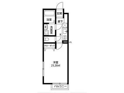
| 間取り | 1K | 専有面積 | 23.2m2 |
|---|---|---|---|
| 所在階 / 向き | 1階 / 東 | バルコニー面積 | - |
| 水道 / ガス | - | ||
| 設備 | バス・トイレ別、テレビドアホン、浴室乾燥機、インターネット対応、エアコン、角部屋、バルコニー、フローリング、洗髪洗面化粧台、2口コンロ、コンロ:ガス、CATV、インターネット使用料無料、洗濯機:室内 | ||
| 当社物件ID | 6707044 | ||
建物の情報
| 建物名 | アムール和 | ||
|---|---|---|---|
| 所在地 | 神奈川県横浜市磯子区岡村 | ||
| 交通 | 京急本線 弘明寺駅(京急) 徒歩20分 ブルーライン 蒔田駅 徒歩21分 JR京浜東北線 根岸駅(神奈川) 徒歩29分 | ||
| 階数 | 2階建 | 総戸数 | - |
| 築年月 | 2007年08月 / 築19年 | エレベーター | - |
| 駐車場 | 近隣 150m20000円 | バイク置き場 | - |
| 駐輪場 | - | 管理人/管理会社 | - |
| 周辺環境 | その他 セブンイレブン 横浜岡村4丁目店(コンビニ)まで234m その他 ファミリーマート 岡村店(コンビニ)まで739m その他 京急ストア 磯子岡村店(スーパー)まで825m その他 ヨコサン磯子岡村店(スーパー)まで870m その他 クリエイトS・D 磯子滝頭店(ドラッグストア)まで1204m その他 根岸橋商店街(その他)まで1114m | ||
| 建物種別 | アパート | 建物構造 | 木造 |
この部屋の取扱い不動産会社
| 会社名 | アルプスの賃貸関内南口支店(株)アルプス建設(SUUMO経由) | ||
|---|---|---|---|
| 所在地 | 神奈川県横浜市中区翁町1-1-6 産友パークビル2F | 交通 | - |
| 営業時間 | 10:00~18:30(事前予約で時間外も対応可) | 定休日 | 年末年始 |
| 免許番号 | 神奈川県知事14677 | 取引態様 | 仲介 |
| 不動産会社管理番号 | 100480636211 | 当社管理番号 | 89 |
| 所属団体 | (公社)神奈川県宅地建物取引業協会会員 | ||
| 公正取引協議会 | (公社)首都圏不動産公正取引協議会加盟 | ||
| 取扱い物件情報 | 物件詳細へ | ||
※各種情報と現状に差異がある場合は、現状優先となります。問い合わせをすることで、より詳しい条件、情報を確認する事ができます。
提供:アルプスの賃貸関内南口支店(株)アルプス建設(SUUMO経由)
この物件が気になったら掲載期限まであと10日
アムール和に条件(家賃・エリア)が近い物件一覧
| 写真 | 家賃 管理費等 | 敷金 礼金 | 間取り 専有面積 | 築年数 | 最寄り駅 所在地 | キープ | 詳細 |
|---|---|---|---|---|---|---|---|
マンション クリスタルハイムII(1K/2階) | |||||||
![]() | 5万円 3,000円 | なし なし | 1K 18m2 | 築32年 | 小田急線 向ケ丘遊園駅 徒歩9分 小田急線 登戸駅 徒歩11分 JR南武線 中野島駅 徒歩19分 神奈川県川崎市多摩区登戸 | 詳細を見る | |
アパート フラワーハイツⅡ(2DK/2階) | |||||||
![]() | 6万円 2,000円 | なし なし | 2DK 39.8m2 | 築41年 | 小田急電鉄江ノ島線 鶴間駅 徒歩4分 神奈川県大和市鶴間2丁目 | 詳細を見る | |
アパート シャルマンハイム(ワンルーム/1階) | |||||||
![]() | 6.5万円 3,000円 | なし なし | ワンルーム 24.84m2 | 築24年 | JR南武線 平間駅 徒歩8分 東急多摩川線 下丸子駅 徒歩18分 JR南武線 向河原駅 徒歩20分 神奈川県川崎市中原区上平間 | 詳細を見る | |
マンション レオパレスヴィレッジ(1K/3階) | |||||||
![]() | 6万円 5,500円 | なし なし | 1K 19.87m2 | 築20年 | JR南武線 中野島駅 徒歩13分 小田急線 向ケ丘遊園駅 徒歩19分 小田急線 登戸駅 徒歩21分 神奈川県川崎市多摩区登戸 | 詳細を見る | |
アパート ウェリナ湘南(1K/1階) | |||||||
![]() | 6.3万円 5,000円 | なし なし | 1K 18m2 | 築1年 | 小田急江ノ島線 本鵠沼駅 徒歩8分 江ノ島電鉄線 石上駅 徒歩11分 JR東海道本線 藤沢駅 徒歩13分 神奈川県藤沢市鵠沼橘 | 詳細を見る | |
マンション グルワール中原(1K/4階) | |||||||
![]() | 6.7万円 3,000円 | 6.7万円 6.7万円 | 1K 19.58m2 | 築21年 | JR南武線 武蔵中原駅 徒歩3分 JR南武線 武蔵新城駅 徒歩20分 東急東横線 武蔵小杉駅 徒歩23分 神奈川県川崎市中原区上小田中 | 詳細を見る | |
マンション キャンパスヴィレッジ生田(ワンルーム/5階) | |||||||
![]() | 6.8万円 2.3万円 | 7万円 12万円 | ワンルーム 15.87m2 | 築2年 | 小田急線 生田駅(神奈川) 徒歩9分 小田急線 読売ランド前駅 徒歩26分 小田急線 向ケ丘遊園駅 徒歩34分 神奈川県川崎市多摩区三田 | 詳細を見る | |
アパート レオパレストゥインクル(1K/2階) | |||||||
![]() | 5.6万円 5,500円 | なし なし | 1K 19.87m2 | 築20年 | 小田急電鉄小田原線 読売ランド前駅 徒歩16分 小田急電鉄小田原線 百合ケ丘駅 徒歩19分 神奈川県川崎市麻生区細山1丁目 | 詳細を見る | |








