賃貸マンション
エルセレーノ吹田の賃貸物件情報(ワンルーム/1階)
| 家賃 | 管理費等 | 敷金 | 礼金 | 間取り | 専有面積 |
|---|---|---|---|---|---|
| 6万円 | 7,000円 | なし | 6万円 | ワンルーム | 28.08m2 |
入居決定でお祝い金最大100,000円
- 保証金
- -
- 償却・敷引
- -
- 築年数
- 築20年
- 所在階
- 1階
- 向き
- 南
Point
【ネット無料×南向き】ひとり暮らしに嬉しい10.4帖の広々ワンルーム!IH2口キッチンや浴室乾燥機など、便利な設備がそろっています。阪急吹田・JR南吹田の2路線利用OKで通勤もお出かけもスムーズです♪
提供:ピタットハウス岡本店(株)ライブデザイン(SUUMO経由)

詳細情報 エルセレーノ吹田
物件紹介
エルセレーノ吹田は阪急千里線下新庄駅から徒歩10分にあり、駅近で通勤通学に便利なマンションです。
建物のエントランスはオートロックがついており、インターホンにはTVモニタもついているため、相手の顔を確認してから来客対応することができます。
おしゃれなデザイナーズ物件!人気の南向きのお部屋。また、フローリングなのでお掃除もラクラク。キッチンはシステムキッチン仕様になっていますので、お料理好きの方にもぴったり。バス・トイレは別なので、のんびりお風呂タイムも楽しめるでしょう。また、雨の日でも浴室乾燥機を使えば、お洗濯も問題ありません。
通信設備面では、インターネットが無料で使えるので、月々の出費を抑えられるのも魅力です。また、BSアンテナ・CSアンテナがありCATVにも対応しているので、おうち時間も充実するでしょう(別途工事、BS・CS・CATVの契約料等が必要な場合あり)。
建物にはエレベーターがついているので、重い荷物があっても安心。共用部には宅配ボックスが設定されているので、不在の時にも荷物を受け取ることができます。
建物のエントランスはオートロックがついており、インターホンにはTVモニタもついているため、相手の顔を確認してから来客対応することができます。
おしゃれなデザイナーズ物件!人気の南向きのお部屋。また、フローリングなのでお掃除もラクラク。キッチンはシステムキッチン仕様になっていますので、お料理好きの方にもぴったり。バス・トイレは別なので、のんびりお風呂タイムも楽しめるでしょう。また、雨の日でも浴室乾燥機を使えば、お洗濯も問題ありません。
通信設備面では、インターネットが無料で使えるので、月々の出費を抑えられるのも魅力です。また、BSアンテナ・CSアンテナがありCATVにも対応しているので、おうち時間も充実するでしょう(別途工事、BS・CS・CATVの契約料等が必要な場合あり)。
建物にはエレベーターがついているので、重い荷物があっても安心。共用部には宅配ボックスが設定されているので、不在の時にも荷物を受け取ることができます。
お金・契約の情報
※「-」と表示されているものは、実際は料金が発生するものもございます。詳細はお問い合わせください。
| 家賃 | 6万円 | 管理費・共益費 | 7,000円 |
|---|---|---|---|
| 敷金 | なし | 礼金 | 6万円 |
| 入居決定でお祝い金最大100,000円 | |||
| 保証金 | - | 償却・敷引 | - |
| 住宅保険料 | - | 更新料 | - |
| 保証会社利用 | 必須 | 保証会社名 | - |
| 保証会社費用 | - | 保証会社備考 | 保証会社利用必 初回保証料 15 000円(税込)、月額保証料 支払賃料の1.3%(税込)+振替手数料220円(税込) |
| 契約形態 | - | 契約期間 | - |
| 入居・引渡期間 | 相談 | 現況 | - |
| 契約備考 | 掲載写真:同建物別部屋含家具家電レンタルプラン:3300円/月短期解約違約金:1年未満の解約は賃料等の1ヶ月▼「初期費用がちょっと気になる…」そんな方も安心です♪弊社では【3回最大48回】まで【分割払い】でご対応させて頂いております!掲載物件を問わず対応可能ですので一度ご相談ください!▼来店不要のオンライン案内や契約等、ご対応可能でございます◎ 合計2.75万円(内訳:24時間管理サポート1.1万円鍵交換代1.65万円) ワンルーム 普通借家1年 損保【要】 バストイレ別、バルコニー、エアコン、クロゼット、フローリング、シャワー付洗面台、浴室乾燥機、オートロック、室内洗濯置、陽当り良好、シューズボックス、システムキッチン、南向き、温水洗浄便座、脱衣所、洗面所独立、洗面化粧台、2口コンロ、駐輪場、宅配ボックス、CATV、光ファイバー、敷金不要、防犯カメラ、IHクッキングヒーター、全居室洋室、CATVインターネット、オール電化、全居室フローリング、玄関ホール、2沿線利用可、ネット専用回線、ネット使用料不要、2駅利用可、3駅以上利用可、3沿線以上利用可、駅徒歩10分以内、寝室8畳以上、寝室10畳以上、全居室6畳以上、全居室8畳以上、洗面所にドア、南面バルコニー、天井高シューズクロゼット、玄関収納、LAN、初期費用カード決済可、通風良好 | ||
部屋の情報
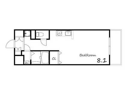
| 間取り | ワンルーム | 専有面積 | 28.08m2 |
|---|---|---|---|
| 所在階 / 向き | 1階 / 南 | バルコニー面積 | - |
| 水道 / ガス | - | ||
| 設備 | バス・トイレ別、オートロック、宅配ボックス、浴室乾燥機、インターネット対応、システムキッチン、エアコン、温水洗浄便座、南向き、バルコニー、フローリング、洗髪洗面化粧台、オール電化、2口コンロ、コンロ:IH、CATV、インターネット使用料無料、洗濯機:室内 | ||
| 当社物件ID | 4255295 | ||
建物の情報
| 建物名 | エルセレーノ吹田 | ||
|---|---|---|---|
| 所在地 | 大阪府吹田市寿町 | ||
| 交通 | 阪急千里線 吹田駅(阪急) 徒歩10分 JRおおさか東線 南吹田駅 徒歩12分 JR東海道本線 吹田駅(JR) 徒歩17分 | ||
| 階数 | 7階建 | 総戸数 | - |
| 築年月 | 2006年03月 / 築20年 | エレベーター | - |
| 駐車場 | 近隣 100m22000円 | バイク置き場 | - |
| 駐輪場 | あり | 管理人/管理会社 | - |
| 周辺環境 | その他 阪急千里線吹田駅(その他)まで1077m その他 業務スーパーTAKENOKO吹田(スーパー)まで663m その他 ローソン(コンビニ)まで306m その他 スギ薬局 吹田金田店(その他)まで1544m その他 ジャパン吹田穂波店(ホームセンター)まで1283m その他 ザ・ダイソー(その他)まで1024m | ||
| 建物種別 | マンション | 建物構造 | RC(鉄筋コンクリート) |
この部屋の取扱い不動産会社
| 会社名 | (株)ユーエルネット江坂店(SUUMO経由) | ||
|---|---|---|---|
| 所在地 | 大阪府吹田市江坂町1-23-34 | 交通 | - |
| 営業時間 | 9:30~19:00 | 定休日 | なし(年末年始除く) |
| 免許番号 | 国土交通大臣8131 | 取引態様 | 仲介 |
| 不動産会社管理番号 | 100475813790 | 当社管理番号 | 89 |
| 所属団体 | (公社)全日本不動産協会大阪府本部会員 | ||
| 公正取引協議会 | (公社)近畿地区不動産公正取引協議会加盟 | ||
| 取扱い物件情報 | 物件詳細へ | ||
※各種情報と現状に差異がある場合は、現状優先となります。問い合わせをすることで、より詳しい条件、情報を確認する事ができます。
提供:(株)ユーエルネット江坂店(SUUMO経由)
この物件が気になったら掲載期限まであと10日
エルセレーノ吹田に条件(家賃・エリア)が近い物件一覧
| 写真 | 家賃 管理費等 | 敷金 礼金 | 間取り 専有面積 | 築年数 | 最寄り駅 所在地 | キープ | 詳細 |
|---|---|---|---|---|---|---|---|
マンション グリーンハイツ豊川I(1K/3階) | |||||||
| 5.1万円 3,000円 | なし 5.1万円 | 1K 25m2 | 築24年 | 大阪モノレール彩都 豊川駅(大阪) 徒歩12分 大阪モノレール彩都 阪大病院前駅 徒歩25分 阪急電鉄千里線 北千里駅 徒歩50分 大阪府茨木市豊川5丁目6-7 | 詳細を見る | ||
アパート ビスタ岸部ハイツA(2DK/2階) | |||||||
| 4.2万円 なし | なし なし | 2DK 30m2 | 築53年 | 東海道本線 岸辺駅 徒歩15分 阪急電鉄京都線 正雀駅 徒歩23分 阪急電鉄京都線 摂津市駅 徒歩33分 大阪府吹田市岸部北3丁目33-5 | 詳細を見る | ||
アパート エルムマンション(2LDK/1階) | |||||||
| 5.8万円 3,000円 | なし なし | 2LDK 50m2 | 築41年 | 東海道本線 千里丘駅 徒歩10分 阪急電鉄京都線 摂津市駅 徒歩16分 阪急電鉄京都線 正雀駅 徒歩34分 大阪府茨木市丑寅2丁目22-25 | 詳細を見る | ||
マンション 瀬川ハイツ(2DK/1階) | |||||||
| 4.9万円 なし | なし なし | 2DK 38m2 | 築56年 | 阪急電鉄箕面線 石橋阪大前駅 徒歩15分 阪急電鉄箕面線 桜井駅(大阪) 徒歩18分 大阪モノレール本線 柴原阪大前駅 徒歩24分 大阪府箕面市瀬川5丁目14-30 | 詳細を見る | ||
マンション セレニテ福島プリエ(1K/5階) | |||||||
| 6.9万円 7,200円 | なし 8.5万円 | 1K 21.31m2 | 築5年 | 阪神電鉄阪神なんば 西九条駅 徒歩8分 大阪環状線 野田駅(JR) 徒歩11分 阪神電鉄阪神なんば 千鳥橋駅 徒歩13分 大阪府大阪市福島区吉野5丁目5-29 | 詳細を見る | ||
アパート パセオ寿(1K/1階) | |||||||
| 6.3万円 3,000円 | なし なし | 1K 30.27m2 | 築22年 | 阪急電鉄千里線 吹田駅(阪急) 徒歩7分 東海道本線 吹田駅(JR) 徒歩14分 阪急電鉄千里線 下新庄駅 徒歩15分 大阪府吹田市寿町2丁目13-25 | 詳細を見る | ||
マンション ヴァイセスシュロス南茨木(2DK/3階) | |||||||
| 5.8万円 4,000円 | なし 2万円 | 2DK 40m2 | 築38年 | 大阪モノレール本線 沢良宜駅 徒歩8分 大阪モノレール本線 南茨木駅 徒歩9分 東海道本線 千里丘駅 徒歩21分 大阪府茨木市沢良宜西2丁目2-5 | 詳細を見る | ||
吹田市の町名から探す
吹田市の部屋を間取りから探す
吹田市の駅から探す
吹田市と隣接している市区町村から探す
- 吹田市(6,553)
- 大阪市都島区(1,844)
- 大阪市福島区(2,477)
- 大阪市此花区(427)
- 大阪市西区(4,822)
- 大阪市港区(1,231)
- 大阪市大正区(1,089)
- 大阪市天王寺区(1,325)
- 大阪市浪速区(3,921)
- 大阪市西淀川区(1,915)
- 大阪市東淀川区(4,574)
- 大阪市東成区(2,854)
- 大阪市生野区(1,746)
- 大阪市旭区(2,177)
- 大阪市城東区(2,025)
- 大阪市阿倍野区(1,457)
- 大阪市住吉区(1,890)
- 大阪市東住吉区(2,081)
- 大阪市西成区(770)
- 大阪市淀川区(5,351)
- 大阪市鶴見区(1,088)
- 大阪市住之江区(983)
- 大阪市平野区(1,888)
- 大阪市北区(5,526)
- 大阪市中央区(5,636)
- 豊中市(4,976)
- 茨木市(3,052)
- 箕面市(1,643)
- 摂津市(1,101)
