賃貸マンション
アーク諏訪の森の賃貸物件情報(2K/2階)
| 家賃 | 管理費等 | 敷金 | 礼金 | 間取り | 専有面積 |
|---|---|---|---|---|---|
| 6.5万円 | なし | 6.5万円 | 6.5万円 | 2K | 40m2 |
入居決定でお祝い金最大100,000円
- 保証金
- -
- 償却・敷引
- 6.5万円
- 築年数
- 築37年
- 所在階
- 2階
- 向き
- 南東
Point
諏訪神社前駅徒歩3分の駅近物件、駐車場有、駐車場近隣、オートロック、角部屋、デザイナーズ、フローリング、火災報知器、温水洗浄便座
提供:(株)創和リビング(SUUMO経由)

詳細情報 アーク諏訪の森
物件紹介
アーク諏訪の森は長崎電軌蛍茶屋支線諏訪神社駅から徒歩5分にあり、駅近で通勤通学に便利なマンションです。
このお部屋は2階以上に位置しているので通行人や周囲の住人からの視線が気になりにくく、建物のエントランスはオートロックがついているので防犯性が高くなっています。
おしゃれなデザイナーズ物件!人気の南向き・フローリングのお部屋。角部屋でもあるため、周囲の居住者の生活音も気になりにくい場所です。キッチンはシステムキッチン仕様になっていますので、お料理好きの方にもぴったり。
このお部屋は2階以上に位置しているので通行人や周囲の住人からの視線が気になりにくく、建物のエントランスはオートロックがついているので防犯性が高くなっています。
おしゃれなデザイナーズ物件!人気の南向き・フローリングのお部屋。角部屋でもあるため、周囲の居住者の生活音も気になりにくい場所です。キッチンはシステムキッチン仕様になっていますので、お料理好きの方にもぴったり。
お金・契約の情報
※「-」と表示されているものは、実際は料金が発生するものもございます。詳細はお問い合わせください。
| 家賃 | 6.5万円 | 管理費・共益費 | なし |
|---|---|---|---|
| 敷金 | 6.5万円 | 礼金 | 6.5万円 |
| 入居決定でお祝い金最大100,000円 | |||
| 保証金 | - | 償却・敷引 | 6.5万円 |
| 住宅保険料 | - | 更新料 | - |
| 保証会社利用 | 必須 | 保証会社名 | - |
| 保証会社費用 | - | 保証会社備考 | 保証会社利用必 アルファー 初回契約時:50%(税込み)、更新時:0円、月額:0円 |
| 契約形態 | - | 契約期間 | - |
| 入居・引渡期間 | 即時 | 現況 | - |
| 契約備考 | 合計1.98万円(内訳:鍵交換代16500円(税込み)ポート開閉手数料3300円(税込み)) インターネット代2000円/月額ケーブルテレビ代600円/月額 2K 二人入居可/子供可 普通借家2年 損保【2万円2年】 バルコニー、クロゼット、フローリング、オートロック、シューズボックス、システムキッチン、角住戸、温水洗浄便座、2口コンロ、即入居可、閑静な住宅地、東南角住戸、敷金1ヶ月、二人入居相談、全居室フローリング、ガスレンジ付、デザイナーズ、2沿線利用可、エアコン2台、平坦地、アイランドキッチン、バス停徒歩3分以内、東南向き、都市ガス、南面バルコニー、間接照明、礼金1ヶ月、IT重説対応物件 | ||
部屋の情報
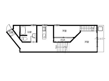
| 間取り | 2K | 専有面積 | 40m2 |
|---|---|---|---|
| 所在階 / 向き | 2階 / 南東 | バルコニー面積 | - |
| 水道 / ガス | - | ||
| 設備 | 2階以上、オートロック、システムキッチン、エアコン、温水洗浄便座、南向き、角部屋、バルコニー、フローリング、2口コンロ、コンロ:ガス、デザイナーズ | ||
| 当社物件ID | 24572478 | ||
建物の情報
| 建物名 | アーク諏訪の森 | ||
|---|---|---|---|
| 所在地 | 長崎県長崎市上西山町 | ||
| 交通 | 長崎電軌蛍茶屋支線 諏訪神社駅 徒歩5分 長崎電軌蛍茶屋支線 新大工町駅 徒歩7分 長崎電軌桜町支線 市役所駅 徒歩10分 | ||
| 階数 | 4階建 | 総戸数 | - |
| 築年月 | 1989年12月 / 築37年 | エレベーター | - |
| 駐車場 | 近隣 70m16500円 | バイク置き場 | - |
| 駐輪場 | - | 管理人/管理会社 | - |
| 周辺環境 | その他 新大工町ファンスクエア(ショッピングセンター)まで455m その他 アミュプラザ長崎(ショッピングセンター)まで1330m その他 ココウォークながさき(ショッピングセンター)まで2639m その他 済生会長崎病院(病院)まで534m その他 長崎新大工町郵便局(郵便局)まで331m その他 長崎市役所(役所)まで729m | ||
| 建物種別 | マンション | 建物構造 | RC(鉄筋コンクリート) |
この部屋の取扱い不動産会社
| 会社名 | (株)創和リビング(SUUMO経由) | ||
|---|---|---|---|
| 所在地 | 長崎県長崎市大橋町 19-5 | 交通 | - |
| 営業時間 | 9:30~18:30 | 定休日 | 年末年始・GW・盆 |
| 免許番号 | 長崎県知事3819 | 取引態様 | 仲介 |
| 不動産会社管理番号 | 100480125150 | 当社管理番号 | 89 |
| 取扱い物件情報 | 物件詳細へ | ||
※各種情報と現状に差異がある場合は、現状優先となります。問い合わせをすることで、より詳しい条件、情報を確認する事ができます。
提供:(株)創和リビング(SUUMO経由)
この物件が気になったら掲載期限まであと1日
アーク諏訪の森に条件(家賃・エリア)が近い物件一覧
| 写真 | 家賃 管理費等 | 敷金 礼金 | 間取り 専有面積 | 築年数 | 最寄り駅 所在地 | キープ | 詳細 |
|---|---|---|---|---|---|---|---|
マンション グレイス平和公園(ワンルーム/4階) | |||||||
![]() | 4万円 なし | なし なし | ワンルーム 18.63m2 | 築35年 | 長崎電軌本線 原爆資料館駅 徒歩7分 JR長崎本線 浦上駅 徒歩15分 JR長崎本線 長崎駅(長崎) 徒歩33分 長崎県長崎市平和町 | 詳細を見る | |
マンション 梅屋敷壱号館(3LDK/4階) | |||||||
![]() | 8万円 なし | 24万円 なし | 3LDK 61.02m2 | 築32年 | 長崎電軌蛍茶屋支線 諏訪神社駅 徒歩11分 長崎電軌蛍茶屋支線 新大工町駅 徒歩13分 長崎電軌蛍茶屋支線 新中川町駅 徒歩16分 長崎県長崎市西山 | 詳細を見る | |
マンション 伊藤ハイム(4SLDK/6階) | |||||||
![]() | 10.5万円 5,000円 | 31.5万円 なし | 4SLDK 160.78m2 | 築47年 | JR長崎本線 浦上駅 徒歩3分 長崎電軌本線 浦上駅前駅 徒歩3分 長崎電軌本線 茂里町駅 徒歩5分 長崎県長崎市岩川町 | 詳細を見る | |
アパート エスポワール尾上C(2DK/1階) | |||||||
![]() | 5.9万円 3,500円 | なし 5.9万円 | 2DK 54.88m2 | 築33年 | JR長崎本線 高田駅(長崎) 徒歩15分 JR長崎本線 長与駅 徒歩15分 長崎県西彼杵郡長与町高田郷 | 詳細を見る | |
一戸建て 長崎県長崎市 築10年(3LDK) | |||||||
![]() | 8万円 なし | なし なし | 3LDK 74.08m2 | 築10年 | 長崎県長崎市多以良町 | 詳細を見る | |
マンション VEGA愛宕(1LDK/3階) | |||||||
![]() | 4.9万円 なし | なし 9.8万円 | 1LDK 41.48m2 | 築60年 | 長崎電軌本線 崇福寺駅 徒歩20分 長崎県長崎市愛宕 | 詳細を見る | |
アパート デ・クメール長崎駅前(1K/3階) | |||||||
![]() | 5.6万円 3,000円 | なし なし | 1K 19.17m2 | 築1年 | 長崎電軌本線 八千代町駅 徒歩4分 長崎電軌本線 スタジアムシティサウス駅 徒歩4分 長崎電軌本線 長崎駅前駅 徒歩9分 長崎県長崎市御船蔵町 | 詳細を見る | |
マンション せんだんコート(2LDK/4階) | |||||||
![]() | 6.7万円 なし | 20.1万円 なし | 2LDK 57m2 | 築25年 | JR長崎本線 長与駅 徒歩11分 JR長崎本線 高田駅(長崎) 徒歩14分 長崎県西彼杵郡長与町嬉里郷 | 詳細を見る | |









