賃貸マンション
親和ハイツの賃貸物件情報(1K/2階)
| 家賃 | 管理費等 | 敷金 | 礼金 | 間取り | 専有面積 |
|---|---|---|---|---|---|
| 5.7万円 | なし | 5.7万円 | なし | 1K | 31.5m2 |
入居決定でお祝い金最大100,000円
- 保証金
- -
- 償却・敷引
- -
- 築年数
- 築57年
- 所在階
- 2階
- 向き
- -
Point
【浜町アーケード・長崎駅徒歩圏内の便利地にあるリフォーム物件!】ゆったり間取りで収納も充実♪内装だけでなくエレベーターホールなどの共用部分もオシャレ☆普通のワンルームじゃ狭い!という方には是非どうぞ♪
提供:(株)創和ハウジング浜町支店(SUUMO経由)

詳細情報 親和ハイツ
物件紹介
親和ハイツは長崎電軌蛍茶屋支線めがね橋駅から徒歩3分にあり、駅近で通勤通学に便利なマンションです。
このお部屋は2階以上に位置しているので、通行人や周囲の住人からの視線が気になりにくく、防犯面でも安心です。
フローリングのお部屋なのでお掃除もラクラク。キッチンはシステムキッチン仕様になっていますので、お料理好きの方にもぴったり。また、バス・トイレは別で、のんびりお風呂タイムも楽しめるでしょう。
建物にはエレベーターがついているので、重い荷物があっても安心。共用部には宅配ボックスが設定されているので、不在の時にも荷物を受け取ることができます。
このお部屋は2階以上に位置しているので、通行人や周囲の住人からの視線が気になりにくく、防犯面でも安心です。
フローリングのお部屋なのでお掃除もラクラク。キッチンはシステムキッチン仕様になっていますので、お料理好きの方にもぴったり。また、バス・トイレは別で、のんびりお風呂タイムも楽しめるでしょう。
建物にはエレベーターがついているので、重い荷物があっても安心。共用部には宅配ボックスが設定されているので、不在の時にも荷物を受け取ることができます。
お金・契約の情報
※「-」と表示されているものは、実際は料金が発生するものもございます。詳細はお問い合わせください。
| 家賃 | 5.7万円 | 管理費・共益費 | なし |
|---|---|---|---|
| 敷金 | 5.7万円 | 礼金 | なし |
| 入居決定でお祝い金最大100,000円 | |||
| 保証金 | - | 償却・敷引 | - |
| 住宅保険料 | - | 更新料 | - |
| 保証会社利用 | 必須 | 保証会社名 | - |
| 保証会社費用 | - | 保証会社備考 | 保証会社利用必 初回契約時:50%、更新時:0円、月額:0円 |
| 契約形態 | - | 契約期間 | - |
| 入居・引渡期間 | 即時 | 現況 | - |
| 契約備考 | 巡回管理 合計1.76万円(内訳:鍵交換代 17600円税込) 1K 普通借家2年 損保【1.7万円2年】 バストイレ別、バルコニー、エアコン、ガスコンロ対応、クロゼット、フローリング、室内洗濯置、陽当り良好、シューズボックス、システムキッチン、温水洗浄便座、脱衣所、エレベーター、洗面所独立、洗面化粧台、2口コンロ、宅配ボックス、即入居可、礼金不要、2面採光、全居室洋室、敷金1ヶ月、駅まで平坦、平坦地、3駅以上利用可、3沿線以上利用可、駅徒歩5分以内、都市ガス、IT重説対応物件、通風良好 | ||
部屋の情報
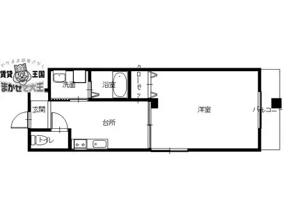
| 間取り | 1K | 専有面積 | 31.5m2 |
|---|---|---|---|
| 所在階 / 向き | 2階 / - | バルコニー面積 | - |
| 水道 / ガス | - | ||
| 設備 | バス・トイレ別、2階以上、宅配ボックス、システムキッチン、エアコン、エレベーター、温水洗浄便座、バルコニー、フローリング、洗髪洗面化粧台、2口コンロ、コンロ:ガス、洗濯機:室内 | ||
| 当社物件ID | 18694749 | ||
建物の情報
| 建物名 | 親和ハイツ | ||
|---|---|---|---|
| 所在地 | 長崎県長崎市栄町 | ||
| 交通 | 長崎電軌蛍茶屋支線 めがね橋駅 徒歩3分 長崎電軌桜町支線 桜町駅(長崎) 徒歩5分 JR長崎本線 長崎駅(長崎) 徒歩11分 | ||
| 階数 | 6階建 | 総戸数 | - |
| 築年月 | 1969年11月 / 築57年 | エレベーター | あり |
| 駐車場 | なし | バイク置き場 | - |
| 駐輪場 | - | 管理人/管理会社 | - |
| 周辺環境 | その他 アミュプラザ長崎(ショッピングセンター)まで1091m その他 新大工町ファンスクエア(ショッピングセンター)まで1122m その他 みらい長崎ココウォーク(ショッピングセンター)まで2243m その他 西友長崎駅店(スーパー)まで944m その他 ローソン長崎賑町店(コンビニ)まで269m その他 済生会長崎病院(病院)まで1359m | ||
| 建物種別 | マンション | 建物構造 | RC(鉄筋コンクリート) |
この部屋の取扱い不動産会社
| 会社名 | (株)創和ハウジング浜町支店(SUUMO経由) | ||
|---|---|---|---|
| 所在地 | 長崎県長崎市銅座町 6-6 | 交通 | - |
| 営業時間 | 9:30~18:30 木曜日のみ18:00まで | 定休日 | 火曜日 |
| 免許番号 | 長崎県知事2679 | 取引態様 | 仲介 |
| 不動産会社管理番号 | 100416317353 | 当社管理番号 | 89 |
| 所属団体 | (公社)長崎県宅地建物取引業協会会員 | ||
| 公正取引協議会 | (一社)九州不動産公正取引協議会加盟 | ||
| 取扱い物件情報 | 物件詳細へ | ||
※各種情報と現状に差異がある場合は、現状優先となります。問い合わせをすることで、より詳しい条件、情報を確認する事ができます。
提供:(株)創和ハウジング浜町支店(SUUMO経由)
この物件が気になったら掲載期限まであと10日
親和ハイツに条件(家賃・エリア)が近い物件一覧
| 写真 | 家賃 管理費等 | 敷金 礼金 | 間取り 専有面積 | 築年数 | 最寄り駅 所在地 | キープ | 詳細 |
|---|---|---|---|---|---|---|---|
一戸建て 長崎電軌本線 原爆資料館駅 徒歩12分 築47年(3LDK) | |||||||
![]() | 3.6万円 なし | なし なし | 3LDK 59.61m2 | 築47年 | 長崎電軌本線 原爆資料館駅 徒歩12分 長崎本線 浦上駅 徒歩20分 長崎本線 長崎駅(長崎) 徒歩35分 長崎県長崎市坂本3丁目 | 詳細を見る | |
マンション 鳥辺ビル(1DK/2階) | |||||||
![]() | 4万円 2,000円 | なし なし | 1DK 30m2 | 築46年 | 長崎電軌本線 赤迫駅 徒歩2分 JR長崎本線 西浦上駅 徒歩8分 JR長崎本線 長崎駅(長崎) 徒歩63分 長崎県長崎市赤迫 | 詳細を見る | |
マンション アクシス21(1DK/2階) | |||||||
![]() | 6.3万円 2,000円 | 18.9万円 なし | 1DK 37.1m2 | 築30年 | 長崎電軌桜町支線 桜町駅(長崎) 徒歩3分 長崎本線 長崎駅(長崎) 徒歩9分 長崎本線 浦上駅 徒歩32分 長崎県長崎市上町 | 詳細を見る | |
マンション CON TE PARTIRO(1LDK/1階) | |||||||
![]() | 6.9万円 3,000円 | なし 6.9万円 | 1LDK 41.43m2 | 築7年 | 長崎電軌大浦支線 大浦海岸通駅 徒歩14分 JR長崎本線 長崎駅(長崎) 徒歩36分 JR長崎本線 浦上駅 徒歩58分 長崎県長崎市浪の平町 | 詳細を見る | |
アパート 長崎本線 長与駅 徒歩10分 築25年(2LDK/1階) | |||||||
![]() | 6.7万円 3,500円 | なし 10万円 | 2LDK 55.44m2 | 築25年 | 長崎本線 長与駅 徒歩10分 長崎本線 高田駅(長崎) 徒歩23分 長崎本線 長崎駅(長崎) 徒歩99分 長崎県西彼杵郡長与町まなび野3丁目 | 詳細を見る | |
アパート オレンジガーデンI(3DK/2階) | |||||||
![]() | 5.8万円 なし | 17.4万円 なし | 3DK 48m2 | 築37年 | JR長崎本線 高田駅(長崎) 徒歩17分 JR長崎本線 長与駅 徒歩17分 JR長崎本線 本川内駅 徒歩52分 長崎県西彼杵郡長与町嬉里郷 | 詳細を見る | |
アパート 南高石神ハウス(4DK/1階) | |||||||
![]() | 6.5万円 なし | 6.5万円 なし | 4DK 57.2m2 | 築46年 | 長崎電軌本線 長崎大学駅 徒歩17分 長崎本線 西浦上駅 徒歩22分 長崎本線 長崎駅(長崎) 徒歩51分 長崎県長崎市石神町 | 詳細を見る | |
アパート 長崎本線 長与駅 徒歩20分 築8年(1LDK/1階) | |||||||
![]() | 5.8万円 2,900円 | なし 5.8万円 | 1LDK 47.31m2 | 築8年 | 長崎本線 長与駅 徒歩20分 長崎本線 高田駅(長崎) 徒歩21分 長崎県西彼杵郡長与町嬉里郷 | 詳細を見る | |









