賃貸マンション
RESTOの賃貸物件情報(2LDK/1階)
| 家賃 | 管理費等 | 敷金 | 礼金 | 間取り | 専有面積 |
|---|---|---|---|---|---|
| 12万円 | 5,000円 | 12万円 | 24万円 | 2LDK | 59.02m2 |
入居決定でお祝い金最大100,000円
Point
オートロックつき/ウォークインクロゼット、他収納あり/システムキッチン
提供:(有)鍵屋不動産(SUUMO経由)

詳細情報 RESTO
物件紹介
RESTOはJR埼京線北戸田駅から徒歩5分にあり、駅近で通勤通学に便利なマンションです。
建物のエントランスはオートロックがついており、インターホンにはTVモニタもついているため、相手の顔を確認してから来客対応することができます。
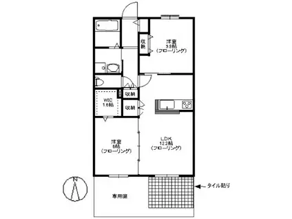
人気の南向き・フローリングのお部屋。室内にはウォークインクローゼットがありますので、たくさんの荷物も効率的に収納ができます。キッチンはシステムキッチン仕様になっていますので、お料理好きの方にもぴったり。バス・トイレは別なので、のんびりお風呂タイムも楽しめるでしょう。また、雨の日でも浴室乾燥機を使えば、お洗濯も問題ありません。
建物のエントランスはオートロックがついており、インターホンにはTVモニタもついているため、相手の顔を確認してから来客対応することができます。
人気の南向き・フローリングのお部屋。室内にはウォークインクローゼットがありますので、たくさんの荷物も効率的に収納ができます。キッチンはシステムキッチン仕様になっていますので、お料理好きの方にもぴったり。バス・トイレは別なので、のんびりお風呂タイムも楽しめるでしょう。また、雨の日でも浴室乾燥機を使えば、お洗濯も問題ありません。
お金・契約の情報
※「-」と表示されているものは、実際は料金が発生するものもございます。詳細はお問い合わせください。
| 家賃 | 12万円 | 管理費・共益費 | 5,000円 |
|---|---|---|---|
| 敷金 | 12万円 | 礼金 | 24万円 |
| 入居決定でお祝い金最大100,000円 | |||
| 保証金 | - | 償却・敷引 | - |
| 住宅保険料 | - | 更新料 | - |
| 保証会社利用 | 必須 | 保証会社名 | - |
| 保証会社費用 | - | 保証会社備考 | 保証会社利用必 旭化成不動産サポート 初回保証委託料:賃料等の50% 継続保証委託料:2年毎に2万円 |
| 契約形態 | - | 契約期間 | - |
| 入居・引渡期間 | - | 現況 | - |
| 契約備考 | 巡回管理/インターネット指定あり 合計5.21万円(内訳:MyConcierClub/鍵交換費用/ポストダイヤル交換費用) 退去時クリーニング費用8.58万円 2LDK 二人入居可 損保【1.84万円2年】 バストイレ別、エアコン、フローリング、TVインターホン、浴室乾燥機、オートロック、室内洗濯置、システムキッチン、南向き、追焚機能浴室、温水洗浄便座、洗面所独立、駐輪場、グリル付、ウォークインクロゼット、保証人不要、防犯シャッター、テラス、駅徒歩5分以内、敷地内ごみ置き場、初期費用カード決済可 入居日:'26年6月中旬 | ||
部屋の情報
| 間取り | 2LDK | 専有面積 | 59.02m2 |
|---|---|---|---|
| 所在階 / 向き | 1階 / 南 | バルコニー面積 | - |
| 水道 / ガス | - | ||
| 設備 | バス・トイレ別、オートロック、テレビドアホン、浴室乾燥機、ウォークインクローゼット、追い焚き、システムキッチン、エアコン、温水洗浄便座、南向き、フローリング、洗髪洗面化粧台、洗濯機:室内 | ||
| 当社物件ID | 34166521 | ||
建物の情報
| 建物名 | RESTO | ||
|---|---|---|---|
| 所在地 | 埼玉県戸田市大字新曽 | ||
| 交通 | JR埼京線 北戸田駅 徒歩5分 | ||
| 階数 | 2階建 | 総戸数 | - |
| 築年月 | 2011年05月 / 築15年 | エレベーター | - |
| 駐車場 | なし | バイク置き場 | - |
| 駐輪場 | あり | 管理人/管理会社 | - |
| 周辺環境 | その他 ジョイフーズ北戸田駅前店(スーパー)まで436m その他 まいばすけっと北戸田駅前店(スーパー)まで418m その他 ファミリーマート戸田全農通り店(コンビニ)まで393m その他 セブンイレブン北戸田駅東口店(コンビニ)まで316m その他 ドラッグセイムス戸田新曽店(ドラッグストア)まで587m その他 蕨錦町郵便局(郵便局)まで915m | ||
| 建物種別 | マンション | 建物構造 | 鉄骨造 |
この部屋の取扱い不動産会社
| 会社名 | (有)鍵屋不動産(SUUMO経由) | ||
|---|---|---|---|
| 所在地 | 東京都豊島区要町2-30-5 | 交通 | - |
| 営業時間 | 10時~19時 | 定休日 | 水曜日 |
| 免許番号 | 東京都知事70439 | 取引態様 | 仲介 |
| 不動産会社管理番号 | 100501823545 | 当社管理番号 | 89 |
| 所属団体 | (公社)全日本不動産協会東京都本部会員 | ||
| 公正取引協議会 | (公社)首都圏不動産公正取引協議会加盟 | ||
| 取扱い物件情報 | 物件詳細へ | ||
※各種情報と現状に差異がある場合は、現状優先となります。問い合わせをすることで、より詳しい条件、情報を確認する事ができます。
提供:(有)鍵屋不動産(SUUMO経由)
この物件が気になったら掲載期限まであと11日
RESTOに条件(家賃・エリア)が近い物件一覧
| 写真 | 家賃 管理費等 | 敷金 礼金 | 間取り 専有面積 | 築年数 | 最寄り駅 所在地 | キープ | 詳細 |
|---|---|---|---|---|---|---|---|
アパート メルヴェーユV(1DK/1階) | |||||||
![]() | 7.8万円 4,000円 | 7.8万円 7.8万円 | 1DK 34.14m2 | 築3年 | 埼玉高速鉄道 南鳩ケ谷駅 徒歩13分 埼玉高速鉄道 川口元郷駅 徒歩25分 JR京浜東北線 川口駅 徒歩30分 埼玉県川口市青木 | 詳細を見る | |
マンション スカイルーチェ南浦和(1LDK/1階) | |||||||
![]() | 13.05万円 9,000円 | 13.05万円 13.05万円 | 1LDK 41.53m2 | 築1年 | JR京浜東北線 南浦和駅 徒歩9分 JR宇都宮線 浦和駅 徒歩17分 JR武蔵野線 武蔵浦和駅 徒歩31分 埼玉県さいたま市南区南浦和 | 詳細を見る | |
アパート ルミアン中里(3K/2階) | |||||||
![]() | 7.5万円 3,000円 | 7.5万円 なし | 3K 48.77m2 | 築38年 | JR埼京線 南与野駅 徒歩12分 JR京浜東北線 北浦和駅 徒歩16分 JR埼京線 与野本町駅 徒歩19分 埼玉県さいたま市中央区新中里 | 詳細を見る | |
アパート アンプルールフェールTAKEDA(1K/2階) | |||||||
![]() | 7.7万円 1.1万円 | なし 7.7万円 | 1K 23.09m2 | 築22年 | JR京浜東北線 与野駅 徒歩4分 JR埼京線 与野本町駅 徒歩16分 JR京浜東北線 北浦和駅 徒歩17分 埼玉県さいたま市中央区 | 詳細を見る | |
マンション グランドール(1LDK/3階) | |||||||
![]() | 10.4万円 4,000円 | なし なし | 1LDK 38.29m2 | 築1年 | 埼玉高速鉄道 川口元郷駅 徒歩17分 埼玉県川口市末広3丁目 | 詳細を見る | |
アパート マーサ Ⅰ(3DK/3階) | |||||||
![]() | 9.9万円 3,000円 | 9.9万円 9.9万円 | 3DK 52.8m2 | 築13年 | 埼玉県さいたま市中央区桜丘茅ケ崎市十間坂2丁目 | 詳細を見る | |
アパート NOBLE PALACE戸塚東 B(2LDK/3階) | |||||||
![]() | 14.9万円 6,000円 | なし 29.8万円 | 2LDK 62.97m2 | 新築 | JR武蔵野線 東川口駅 徒歩10分 埼玉高速鉄道 戸塚安行駅 徒歩22分 埼玉県川口市戸塚東 | 詳細を見る | |
マンション ヴィラ・ボヌール(2LDK/2階) | |||||||
![]() | 14.3万円 1.2万円 | なし 21.45万円 | 2LDK 61.4m2 | 築7年 | 埼玉県戸田市大字新曽 | 詳細を見る | |









/105x80-f1-q70-wp1)