賃貸アパート
リラ長崎の賃貸物件情報(ワンルーム/2階)
| 家賃 | 管理費等 | 敷金 | 礼金 | 間取り | 専有面積 |
|---|---|---|---|---|---|
| 5.7万円 | 6,000円 | なし | 5.7万円 | ワンルーム | 20.85m2 |
入居決定でお祝い金最大100,000円
Point
室内設備はエアコン・洗面台など豊富に揃っており、過ごしやすいお部屋になっております。ぜひご覧いただきたい賃貸物件です。リーズナブルな価格で敷金不要という魅力的なアパートです。
提供:ハウス・トゥ・ハウス・ネットサービス(株)板橋東口店(SUUMO経由)

詳細情報 リラ長崎
物件紹介
リラ長崎は西武池袋線椎名町駅から徒歩7分にあり、駅近で通勤通学に便利なアパートです。
このお部屋は2階以上に位置しているので、通行人や周囲の住人からの視線が気になりにくく、防犯面でも安心。インターホンにはTVモニタもついているため、相手の顔を確認してから来客対応することができます。
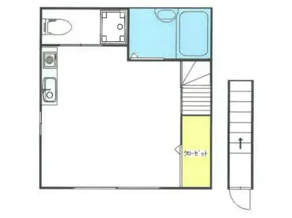
人気の角部屋で周囲の居住者の生活音も気になりにくく、また、フローリングのお部屋なのでお掃除もラクラク。キッチンはシステムキッチン仕様になっていますので、お料理好きの方にもぴったり。また、バス・トイレは別で、のんびりお風呂タイムも楽しめるでしょう。
通信設備面では、インターネット接続が可能です。また、CATVにも対応しているので、おうち時間も充実するでしょう(別途工事、契約料が必要な場合あり)。
このお部屋は2階以上に位置しているので、通行人や周囲の住人からの視線が気になりにくく、防犯面でも安心。インターホンにはTVモニタもついているため、相手の顔を確認してから来客対応することができます。
人気の角部屋で周囲の居住者の生活音も気になりにくく、また、フローリングのお部屋なのでお掃除もラクラク。キッチンはシステムキッチン仕様になっていますので、お料理好きの方にもぴったり。また、バス・トイレは別で、のんびりお風呂タイムも楽しめるでしょう。
通信設備面では、インターネット接続が可能です。また、CATVにも対応しているので、おうち時間も充実するでしょう(別途工事、契約料が必要な場合あり)。
お金・契約の情報
※「-」と表示されているものは、実際は料金が発生するものもございます。詳細はお問い合わせください。
| 家賃 | 5.7万円 | 管理費・共益費 | 6,000円 |
|---|---|---|---|
| 敷金 | なし | 礼金 | 5.7万円 |
| 入居決定でお祝い金最大100,000円 | |||
| 保証金 | - | 償却・敷引 | - |
| 住宅保険料 | - | 更新料 | - |
| 保証会社利用 | 必須 | 保証会社名 | - |
| 保証会社費用 | - | 保証会社備考 | 保証会社利用必 初回保証料:総賃料の60% |
| 契約形態 | - | 契約期間 | - |
| 入居・引渡期間 | - | 現況 | - |
| 契約備考 | お車でご案内致します。お気軽にお問い合わせください。 合計10.45万円(内訳:ホームマイスター24 1.65万円預かりクリーニング代6.05万円鍵交換代2.75万円) 更新料 新賃料1.50ヶ月分 ワンルーム 二人入居可/事務所利用不可 普通借家2年 損保【2.2万円2年】 バストイレ別、エアコン、クロゼット、室内洗濯置、角住戸、2面採光、最上階、敷金不要、保証人不要、2沿線利用可、2駅利用可、3駅以上利用可、3沿線以上利用可、都市ガス、IT重説対応物件 入居日:'26年1月中旬 | ||
部屋の情報
| 間取り | ワンルーム | 専有面積 | 20.85m2 |
|---|---|---|---|
| 所在階 / 向き | 2階 / - | バルコニー面積 | - |
| 水道 / ガス | - | ||
| 設備 | バス・トイレ別、2階以上、エアコン、角部屋、洗濯機:室内 | ||
| 当社物件ID | 8943929 | ||
建物の情報
| 建物名 | リラ長崎 | ||
|---|---|---|---|
| 所在地 | 東京都豊島区長崎 | ||
| 交通 | 西武池袋線 椎名町駅 徒歩7分 都営大江戸線 落合南長崎駅 徒歩13分 西武新宿線 中井駅 徒歩24分 | ||
| 階数 | 2階建 | 総戸数 | - |
| 築年月 | 2013年03月 / 築13年 | エレベーター | - |
| 駐車場 | なし | バイク置き場 | - |
| 駐輪場 | - | 管理人/管理会社 | - |
| 周辺環境 | その他 南長崎三丁目第2児童遊園(公園)まで257m その他 まいばすけっと 豊島長崎4丁目店(スーパー)まで374m その他 椎名町駅前すずらん通り商店会(ショッピングセンター)まで574m その他 豊島長崎クリニック(病院)まで403m その他 ファミリーマート 豊島長崎三丁目店(コンビニ)まで136m その他 池袋マルイ(その他)まで1991m | ||
| 建物種別 | アパート | 建物構造 | 木造 |
この部屋の取扱い不動産会社
| 会社名 | ハウス・トゥ・ハウス・ネットサービス(株)板橋東口店(SUUMO経由) | ||
|---|---|---|---|
| 所在地 | 東京都北区滝野川6-84-8-1階 | 交通 | - |
| 営業時間 | 10:00~18:30(1月~3月は9:30~) | 定休日 | 水曜日 (1月~3月無休) |
| 免許番号 | 国土交通大臣7400 | 取引態様 | 仲介 |
| 不動産会社管理番号 | 100476558092 | 当社管理番号 | 89 |
| 所属団体 | (公社)全日本不動産協会東京都本部会員 | ||
| 公正取引協議会 | (公社)首都圏不動産公正取引協議会加盟 | ||
| 取扱い物件情報 | 物件詳細へ | ||
※各種情報と現状に差異がある場合は、現状優先となります。問い合わせをすることで、より詳しい条件、情報を確認する事ができます。
提供:ハウス・トゥ・ハウス・ネットサービス(株)板橋東口店(SUUMO経由)
この物件が気になったら掲載期限まであと12日
リラ長崎に条件(家賃・エリア)が近い物件一覧
| 写真 | 家賃 管理費等 | 敷金 礼金 | 間取り 専有面積 | 築年数 | 最寄り駅 所在地 | キープ | 詳細 |
|---|---|---|---|---|---|---|---|
マンション スカイコートお茶の水女子大前(ワンルーム/11階) | |||||||
![]() | 7.4万円 7,000円 | 7.4万円 7.4万円 | ワンルーム 17.2m2 | 築29年 | 東京地下鉄丸ノ内線 茗荷谷駅 徒歩5分 東京地下鉄有楽町線 護国寺駅 徒歩7分 東京地下鉄丸ノ内線 新大塚駅 徒歩10分 東京都文京区大塚3丁目 | 詳細を見る | |
マンション サンフォレスタ文京大塚(ワンルーム/4階) | |||||||
![]() | 9万円 6,000円 | なし 9万円 | ワンルーム 21.6m2 | 築4年 | 東京地下鉄丸ノ内線 新大塚駅 徒歩7分 東京地下鉄丸ノ内線 茗荷谷駅 徒歩7分 東京地下鉄有楽町線 護国寺駅 徒歩9分 東京都文京区大塚4丁目 | 詳細を見る | |
マンション 菱和パレス御茶ノ水湯島天神町(1K/8階) | |||||||
![]() | 9万円 5,000円 | なし 9万円 | 1K 19.57m2 | 築27年 | 東京地下鉄千代田線 湯島駅 徒歩2分 東京地下鉄銀座線 上野広小路駅 徒歩6分 山手線 御徒町駅 徒歩8分 東京都文京区湯島3丁目 | 詳細を見る | |
マンション メインステージ御茶ノ水(1K/2階) | |||||||
![]() | 9.2万円 8,000円 | 9.2万円 9.2万円 | 1K 18.44m2 | 築25年 | 東京地下鉄千代田線 湯島駅 徒歩5分 東京地下鉄銀座線 上野広小路駅 徒歩9分 山手線 御徒町駅 徒歩9分 東京都文京区湯島2丁目 | 詳細を見る | |
マンション ガラ・シティ茗荷谷(1K/10階) | |||||||
![]() | 8.8万円 9,000円 | 8.8万円 17.6万円 | 1K 22.41m2 | 築25年 | 東京地下鉄丸ノ内線 茗荷谷駅 徒歩6分 東京地下鉄丸ノ内線 新大塚駅 徒歩9分 東京地下鉄有楽町線 護国寺駅 徒歩9分 東京都文京区大塚3丁目 | 詳細を見る | |
マンション 日神パレステージ御茶ノ水(ワンルーム/6階) | |||||||
![]() | 7.9万円 9,000円 | 7.9万円 7.9万円 | ワンルーム 20.93m2 | 築31年 | 東京地下鉄千代田線 湯島駅 徒歩6分 中央本線 御茶ノ水駅 徒歩8分 東京地下鉄銀座線 末広町駅(東京) 徒歩8分 東京都文京区湯島2丁目 | 詳細を見る | |
マンション アドリーム千駄木(1K/5階) | |||||||
![]() | 7.3万円 6,000円 | 7.3万円 7.3万円 | 1K 16.35m2 | 築32年 | 山手線 西日暮里駅 徒歩10分 東京地下鉄千代田線 千駄木駅 徒歩10分 東京地下鉄南北線 本駒込駅 徒歩13分 東京都文京区千駄木4丁目 | 詳細を見る | |
マンション 日神パレステージ護国寺(1K/7階) | |||||||
![]() | 6.9万円 9,000円 | 6.9万円 6.9万円 | 1K 18.02m2 | 築31年 | 東京地下鉄有楽町線 護国寺駅 徒歩5分 東京地下鉄丸ノ内線 新大塚駅 徒歩7分 東京地下鉄丸ノ内線 茗荷谷駅 徒歩11分 東京都文京区大塚5丁目 | 詳細を見る | |









