賃貸アパート
レオパレススカイヒルの賃貸物件情報(1K/2階)
| 家賃 | 管理費等 | 敷金 | 礼金 | 間取り | 専有面積 |
|---|---|---|---|---|---|
| 5.7万円 | 5,000円 | なし | 5.7万円 | 1K | 26.08m2 |
入居決定でお祝い金最大100,000円
Point
まずはお問い合わせ!
不動産会社は街のプロ、あなたに合った物件がきっと見つかります。
提供:ハウスコム東海株式会社 豊橋店

詳細情報 レオパレススカイヒル
物件紹介
レオパレススカイヒルは飯田線茶臼山駅から徒歩5分にあり、駅近で通勤通学に便利なアパートです。
このお部屋は2階以上に位置しているので、通行人や周囲の住人からの視線が気になりにくく、防犯面でも安心。インターホンにはTVモニタもついているため、相手の顔を確認してから来客対応することができます。
バス・トイレ別の仕様で、のんびりお風呂タイムも楽しめます。
通信設備面では、インターネット接続が可能です(別途工事、契約料が必要な場合あり)。
共用部には宅配ボックスが設定されているので、不在の時にも荷物を受け取ることができます。
コンビニまで徒歩45分の場所にあり、日用品や食料品のお買い物にも便利です。
このお部屋は2階以上に位置しているので、通行人や周囲の住人からの視線が気になりにくく、防犯面でも安心。インターホンにはTVモニタもついているため、相手の顔を確認してから来客対応することができます。
バス・トイレ別の仕様で、のんびりお風呂タイムも楽しめます。
通信設備面では、インターネット接続が可能です(別途工事、契約料が必要な場合あり)。
共用部には宅配ボックスが設定されているので、不在の時にも荷物を受け取ることができます。
コンビニまで徒歩45分の場所にあり、日用品や食料品のお買い物にも便利です。
お金・契約の情報
※「-」と表示されているものは、実際は料金が発生するものもございます。詳細はお問い合わせください。
| 家賃 | 5.7万円 | 管理費・共益費 | 5,000円 |
|---|---|---|---|
| 敷金 | なし | 礼金 | 5.7万円 |
| 入居決定でお祝い金最大100,000円 | |||
| 保証金 | - | 償却・敷引 | - |
| 住宅保険料 | 1円 | 更新料 | - |
| その他費用 | 抗菌施工(任意):2.376万円 | ||
| 保証会社利用 | 必須 | 保証会社名 | - |
| 保証会社費用 | - | 保証会社備考 | 保証料:51590円(契約内容により100〜120%で変動有)※記載金額は120%の場合 |
| 契約形態 | - | 契約期間 | - |
| 入居・引渡期間 | 即時 | 現況 | - |
| 契約備考 | 鍵交換費10450円、抗菌施工(任意)18040円から23760円(税込)/環境維持費550円/月、更新手数料16500円/2年(税込)/基本清掃料:34100円(税込) 月額(環境維持費 550円) 鍵交換費用:16500 室内清掃費用:41800 その他設備/条件:室内洗濯機置き場 | ||
部屋の情報
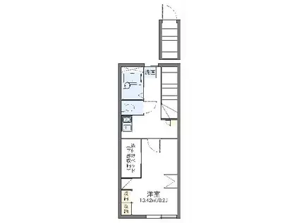
| 間取り | 1K | 専有面積 | 26.08m2 |
|---|---|---|---|
| 所在階 / 向き | 2階 / - | バルコニー面積 | - |
| 水道 / ガス | - | ||
| 設備 | バス・トイレ別、テレビドアホン、宅配ボックス、光ファイバー対応、エアコン、家具家電付き | ||
| 当社物件ID | 2323973 | ||
建物の情報
| 建物名 | レオパレススカイヒル | ||
|---|---|---|---|
| 所在地 | 愛知県新城市富沢字半田 | ||
| 交通 | 飯田線 茶臼山駅 徒歩5分 飯田線 三河東郷駅 徒歩12分 | ||
| 階数 | 2階建 | 総戸数 | 16戸 |
| 築年月 | 2005年10月 / 築21年 | エレベーター | - |
| 駐車場 | なし | バイク置き場 | - |
| 駐輪場 | - | 管理人/管理会社 | - |
| 周辺環境 | コンビニ 徒歩45分(3568m) 小学校 新城市立千郷小学校 徒歩47分(3732m) その他 ドラッグストア その他 公園 その他 銀行 その他 * | ||
| 建物種別 | アパート | 建物構造 | 木造 |
この部屋の取扱い不動産会社
| 会社名 | ハウスコム東海株式会社 豊川店 | ||
|---|---|---|---|
| 所在地 | 愛知県豊川市27-1 | 交通 | - |
| 営業時間 | 10:00~18:00 | 定休日 | - |
| 免許番号 | 国土交通大臣(1)第10227号 | 取引態様 | 仲介 |
| 不動産会社管理番号 | HC5-1006039-203-0216 | 当社管理番号 | 468 |
| 所属団体 | 、 | ||
| 取扱い物件情報 | 物件詳細へ | ||
※各種情報と現状に差異がある場合は、現状優先となります。問い合わせをすることで、より詳しい条件、情報を確認する事ができます。
提供:ハウスコム東海株式会社 豊川店
この物件が気になったら掲載期限まであと4日
レオパレススカイヒルに条件(家賃・エリア)が近い物件一覧
| 写真 | 家賃 管理費等 | 敷金 礼金 | 間取り 専有面積 | 築年数 | 最寄り駅 所在地 | キープ | 詳細 |
|---|---|---|---|---|---|---|---|
マンション アーバンライフ7TH(2LDK/6階) | |||||||
![]() | 5.2万円 4,000円 | 10.4万円 なし | 2LDK 56.04m2 | 築42年 | JR飯田線 船町駅 徒歩19分 JR飯田線 下地駅 徒歩24分 JR東海道本線 豊橋駅 徒歩33分 愛知県豊橋市吉川町 | 詳細を見る | |
アパート グランパス B(1LDK/2階) | |||||||
![]() | 5万円 2,380円 | 9万円 なし | 1LDK 38m2 | 築27年 | 愛知環状鉄道 北野桝塚駅 徒歩18分 愛知環状鉄道 大門駅(愛知) 徒歩19分 愛知環状鉄道 北岡崎駅 徒歩32分 愛知県岡崎市北野町西河原 | 詳細を見る | |
アパート サンライズ(2LDK/2階) | |||||||
![]() | 6.9万円 2,300円 | なし 7.9万円 | 2LDK 63.86m2 | 築17年 | 名鉄名古屋本線 矢作橋駅 徒歩16分 愛知県岡崎市渡町能光前 | 詳細を見る | |
アパート ヴィラ柿田(2LDK/1階) | |||||||
![]() | 9.2万円 3,300円 | なし 9.2万円 | 2LDK 50.47m2 | 新築 | 愛知環状鉄道 北岡崎駅 徒歩9分 愛知環状鉄道 中岡崎駅 徒歩23分 愛知環状鉄道 大門駅(愛知) 徒歩26分 愛知県岡崎市柿田町 | 詳細を見る | |
マンション 近藤第二ビル(2LDK/2階) | |||||||
![]() | 5.6万円 3,000円 | なし なし | 2LDK 53.36m2 | 築45年 | 名鉄名古屋本線 東岡崎駅 徒歩5分 名鉄名古屋本線 岡崎公園前駅 徒歩27分 愛知県岡崎市明大寺町字宮ノ圦 | 詳細を見る | |
マンション カーサフォルトゥーナ(1K/3階) | |||||||
![]() | 3.7万円 3,000円 | なし なし | 1K 21m2 | 築18年 | 豊橋鉄道東田本線 東田坂上駅 徒歩7分 豊橋鉄道東田本線 前畑駅 徒歩7分 豊橋鉄道東田本線 東田駅 徒歩11分 愛知県豊橋市東田中郷町 | 詳細を見る | |
アパート ハイカムール野田(2LDK/1階) | |||||||
![]() | 5.8万円 3,000円 | なし 5.8万円 | 2LDK 55.43m2 | 築30年 | JR飯田線 野田城駅 徒歩5分 JR飯田線 新城駅 徒歩26分 JR飯田線 東新町駅 徒歩39分 愛知県新城市字屋敷野田東町屋敷 | 詳細を見る | |
アパート サンモールII(1LDK/1階) | |||||||
![]() | 8.25万円 4,600円 | なし 8.25万円 | 1LDK 44.7m2 | 新築 | 愛知環状鉄道 大門駅(愛知) 徒歩18分 愛知県岡崎市上里 | 詳細を見る | |









