賃貸マンション
トーシンフェニックス桜上水弐番館の賃貸物件情報(1K/3階)
| 家賃 | 管理費等 | 敷金 | 礼金 | 間取り | 専有面積 |
|---|---|---|---|---|---|
| 7.8万円 | 7,000円 | なし | なし | 1K | 18.56m2 |
入居決定でお祝い金最大100,000円
Point
■内見は現地待ち合わせでのご案内が可能です(要予約制)■契約金はクレジット決済が可能、分割払いも可能です
提供:(株)FINDERS ROPPONGI(SUUMO経由)

詳細情報 トーシンフェニックス桜上水弐番館
物件紹介
トーシンフェニックス桜上水弐番館は京王線桜上水駅から徒歩5分にあり、駅近で通勤通学に便利なマンションです。
このお部屋は2階以上に位置しているので、通行人や周囲の住人からの視線が気になりにくく、防犯面でも安心。建物のエントランスはオートロックがついており、インターホンにはTVモニタもついているため、相手の顔を確認してから来客対応することができます。
人気の角部屋で周囲の居住者の生活音も気になりにくく、また、フローリングのお部屋なのでお掃除もラクラク。キッチンはシステムキッチン仕様になっていますので、お料理好きの方にもぴったり。バス・トイレは別なので、のんびりお風呂タイムも楽しめるでしょう。また、雨の日でも浴室乾燥機を使えば、お洗濯も問題ありません。
通信設備面では、インターネットが無料で使えるので、月々の出費を抑えられるのも魅力です。また、CATVにも対応しているので、おうち時間も充実するでしょう(別途工事、CATVの契約料等が必要な場合あり)。
建物にはエレベーターがついているので、重い荷物があっても安心。共用部には宅配ボックスが設定されているので、不在の時にも荷物を受け取ることができます。
このお部屋は2階以上に位置しているので、通行人や周囲の住人からの視線が気になりにくく、防犯面でも安心。建物のエントランスはオートロックがついており、インターホンにはTVモニタもついているため、相手の顔を確認してから来客対応することができます。
人気の角部屋で周囲の居住者の生活音も気になりにくく、また、フローリングのお部屋なのでお掃除もラクラク。キッチンはシステムキッチン仕様になっていますので、お料理好きの方にもぴったり。バス・トイレは別なので、のんびりお風呂タイムも楽しめるでしょう。また、雨の日でも浴室乾燥機を使えば、お洗濯も問題ありません。
通信設備面では、インターネットが無料で使えるので、月々の出費を抑えられるのも魅力です。また、CATVにも対応しているので、おうち時間も充実するでしょう(別途工事、CATVの契約料等が必要な場合あり)。
建物にはエレベーターがついているので、重い荷物があっても安心。共用部には宅配ボックスが設定されているので、不在の時にも荷物を受け取ることができます。
お金・契約の情報
※「-」と表示されているものは、実際は料金が発生するものもございます。詳細はお問い合わせください。
| 家賃 | 7.8万円 | 管理費・共益費 | 7,000円 |
|---|---|---|---|
| 敷金 | なし | 礼金 | なし |
| 入居決定でお祝い金最大100,000円 | |||
| 保証金 | - | 償却・敷引 | - |
| 住宅保険料 | - | 更新料 | - |
| 保証会社利用 | 必須 | 保証会社名 | - |
| 保証会社費用 | - | 保証会社備考 | 保証会社利用必 トーシンライフ、オリコフォレントインシュア、全保連/保証料:初回=賃料等×50%、月額=賃料等×1% |
| 契約形態 | - | 契約期間 | - |
| 入居・引渡期間 | - | 現況 | - |
| 契約備考 | 合計2.75万円(内訳:鍵交換費用(税込)27500円) ■契約時:当月分+翌月分の賃料・管理費をお支払い頂きます ■解約時:ルームクリーニング費用及び借主負担分の原状回復費用をお支払い頂きます、家財保険+付帯サービス(税込)1735円/月 1K 普通借家2年 バストイレ別、バルコニー、エアコン、ガスコンロ対応、クロゼット、フローリング、TVインターホン、浴室乾燥機、オートロック、室内洗濯置、シューズボックス、システムキッチン、角住戸、脱衣所、エレベーター、2口コンロ、駐輪場、宅配ボックス、CATV、外壁タイル張り、2面採光、防犯カメラ、照明付、分譲賃貸、グリル付、バイク置場、2面バルコニー、ネット使用料不要、人感照明センサー、耐震構造、2駅利用可、駅徒歩5分以内、24時間ゴミ出し可、クリーニングボックス、風除室、敷地内ごみ置き場、都市ガス、LAN、マルチメディアコンセント、敷金・礼金不要 入居日:'26年5月上旬 | ||
部屋の情報
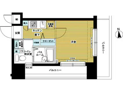
| 間取り | 1K | 専有面積 | 18.56m2 |
|---|---|---|---|
| 所在階 / 向き | 3階 / 東 | バルコニー面積 | 8m2 |
| 水道 / ガス | - | ||
| 設備 | バス・トイレ別、2階以上、オートロック、テレビドアホン、宅配ボックス、浴室乾燥機、インターネット対応、システムキッチン、エアコン、エレベーター、角部屋、バルコニー、フローリング、2口コンロ、コンロ:ガス、CATV、インターネット使用料無料、洗濯機:室内 | ||
| 当社物件ID | 1525956 | ||
建物の情報
| 建物名 | トーシンフェニックス桜上水弐番館 | ||
|---|---|---|---|
| 所在地 | 東京都杉並区下高井戸 | ||
| 交通 | 京王線 桜上水駅 徒歩5分 京王線 上北沢駅 徒歩8分 | ||
| 階数 | 9階建 | 総戸数 | 49戸 |
| 築年月 | 2002年09月 / 築24年 | エレベーター | あり |
| 駐車場 | なし | バイク置き場 | あり |
| 駐輪場 | あり | 管理人/管理会社 | - |
| 建物種別 | マンション | 建物構造 | RC(鉄筋コンクリート) |
この部屋の取扱い不動産会社
| 会社名 | (株)FINDERS KICHIJOJI(SUUMO経由) | ||
|---|---|---|---|
| 所在地 | 東京都武蔵野市吉祥寺本町1-33-5 | 交通 | - |
| 営業時間 | 10:00~18:00 | 定休日 | 日曜日 |
| 免許番号 | 東京都知事105698 | 取引態様 | 仲介 |
| 不動産会社管理番号 | 100491498723 | 当社管理番号 | 89 |
| 所属団体 | (公社)東京都宅地建物取引業協会会員 | ||
| 公正取引協議会 | (公社)首都圏不動産公正取引協議会加盟 | ||
| 取扱い物件情報 | 物件詳細へ | ||
※各種情報と現状に差異がある場合は、現状優先となります。問い合わせをすることで、より詳しい条件、情報を確認する事ができます。
提供:(株)FINDERS KICHIJOJI(SUUMO経由)
この物件が気になったら掲載期限まであと10日
トーシンフェニックス桜上水弐番館に条件(家賃・エリア)が近い物件一覧
| 写真 | 家賃 管理費等 | 敷金 礼金 | 間取り 専有面積 | 築年数 | 最寄り駅 所在地 | キープ | 詳細 |
|---|---|---|---|---|---|---|---|
アパート MOK-TERRACE DIMORA 練馬(1LDK/1階) | |||||||
![]() | 11.7万円 4,000円 | 11.7万円 11.7万円 | 1LDK 34.27m2 | 築1年 | 西武池袋線 練馬高野台駅 徒歩11分 西武池袋線 富士見台駅 徒歩16分 西武新宿線 井荻駅 徒歩18分 東京都練馬区南田中 | 詳細を見る | |
アパート レオネクストUBUKATA(1K/2階) | |||||||
![]() | 10.1万円 5,500円 | なし 10.1万円 | 1K 20.18m2 | 築11年 | 東京地下鉄丸ノ内線 新高円寺駅 徒歩17分 東京都杉並区松ノ木2丁目 | 詳細を見る | |
アパート ルミエール B(2LDK/1階) | |||||||
![]() | 9.7万円 2,000円 | 9.7万円 なし | 2LDK 51.37m2 | 築34年 | 小田急電鉄小田原線 成城学園前駅 徒歩18分 東京都世田谷区喜多見5丁目 | 詳細を見る | |
アパート ソフィアマリン(ワンルーム/2階) | |||||||
![]() | 7.2万円 5,000円 | なし なし | ワンルーム 15.45m2 | 築7年 | 東京メトロ丸ノ内線 新中野駅 徒歩7分 JR中央線 中野駅(東京) 徒歩8分 東京メトロ東西線 中野駅(東京) 徒歩8分 東京都中野区中央 | 詳細を見る | |
アパート 吉祥寺ヴィレッジ(1K/2階) | |||||||
![]() | 9.9万円 1万円 | なし なし | 1K 19.79m2 | 新築 | JR中央線 吉祥寺駅 徒歩10分 京王井の頭線 井の頭公園駅 徒歩23分 JR総武線 三鷹駅 徒歩23分 東京都武蔵野市吉祥寺本町 | 詳細を見る | |
マンション ウィンコート吉祥寺(1K/2階) | |||||||
![]() | 10.3万円 2,000円 | 10.3万円 10.3万円 | 1K 22.37m2 | 築24年 | JR中央線 吉祥寺駅 徒歩7分 京王井の頭線 井の頭公園駅 徒歩17分 JR中央線 三鷹駅 徒歩18分 東京都武蔵野市吉祥寺本町 | 詳細を見る | |
マンション プラティーク高円寺(1K/1階) | |||||||
![]() | 10.9万円 1万円 | 10.9万円 なし | 1K 24.78m2 | 築5年 | 中央本線 高円寺駅 徒歩6分 東京都杉並区高円寺南2丁目 | 詳細を見る | |







/105x80-f1-q70-wp1)