賃貸アパート
COCOLON COCOROの賃貸物件情報(1K/1階)
| 家賃 | 管理費等 | 敷金 | 礼金 | 間取り | 専有面積 |
|---|---|---|---|---|---|
| 5万円 | 2,000円 | なし | なし | 1K | 30.55m2 |
入居決定でお祝い金最大100,000円
- 保証金
- -
- 償却・敷引
- -
- 築年数
- 築2年
- 所在階
- 1階
- 向き
- 南
Point
騒音問題が少なく、通気性のいい角部屋の物件です。閑静な住宅地にあるアパートです。5万円のお住まいで、新しい生活を始めてみるのはいかがでしょうか。段階的に明るさを変えられる便利な照明が付いているアパートです。キッチンが快適な物件なので料理好きな方にオススメです。来客時にはTVインターホンで訪問者の顔を
提供:株式会社後楽不動産 ホームメイトFC門田屋敷店(賃貸スモッカ経由)

詳細情報 COCOLON COCORO
物件紹介
COCOLON COCOROは山陽本線東岡山駅から徒歩29分にあるアパートです。
人気の南向きのお部屋。また、フローリングなのでお掃除もラクラク。キッチンはシステムキッチン仕様になっていますので、お料理好きの方にもぴったり。また、バス・トイレは別で、のんびりお風呂タイムも楽しめるでしょう。
通信設備面では、インターネット接続が可能です(別途工事、契約料が必要な場合あり)。
人気の南向きのお部屋。また、フローリングなのでお掃除もラクラク。キッチンはシステムキッチン仕様になっていますので、お料理好きの方にもぴったり。また、バス・トイレは別で、のんびりお風呂タイムも楽しめるでしょう。
通信設備面では、インターネット接続が可能です(別途工事、契約料が必要な場合あり)。
お金・契約の情報
※「-」と表示されているものは、実際は料金が発生するものもございます。詳細はお問い合わせください。
| 家賃 | 5万円 | 管理費・共益費 | 2,000円 |
|---|---|---|---|
| 敷金 | なし | 礼金 | なし |
| フリーレント | あり | ||
| 入居決定でお祝い金最大100,000円 | |||
| 保証金 | - | 償却・敷引 | - |
| 住宅保険料 | 住宅保険料あり | 更新料 | - |
| 契約形態 | - | 契約期間 | 2年 |
| 入居・引渡期間 | 2026年02月中旬 | 現況 | 空室 |
| 契約備考 | どこの不動産会社にお願いしようか迷っている方☆お部屋探しはホームメイト後楽不動産へ♪当社スタッフはお客様に寄り添った提案を心がけております♪女性スタッフ対応の要望や、初めてのお引越し時のアドバイス、初期費用についてや、保証人について、などなど何でもお気軽にご相談いただけたらと思います!お客様の条件に合う物件を納得いくまで一生懸命お探します♪ 利便性の高い設備も充実の、快適に暮らすことのできる令和6年築の物件です。2口コンロが付いているので複数の料理を作る時でも同時にサッと料理出来ます。ご好評の物件なので入居日は令和8年2月の期日指定とさせて頂きます。床のお手入れがしやすい全居室フローリング仕様の物件です。設備も充実していて住みやすい、魅力が詰まったアパートです。玄関先まで覗き穴を覗きに行かなくてもインターホン越しに誰が来たのかを確認できます。洗面所は浴室から独立しており、お風呂の湿気で曇りにくくなっています。収納はクロゼット・シューズボックス・全居室収納などが備え付けられているので、衣類や日用品の収納に重宝します。令和6年3月完成、まだまだ新しい築浅物件。ぜひ一度見ていただきたい、「Cocolon Cocoro 」です。 保証会社:利用必須 ※保証料は加入会社により異なります。 その他設備/条件:IT重説 対応物件、免震・耐震・制震、1階の物件、コンロ2口以上、独立洗面台、TVドアホン、エアコン複数 | ||
部屋の情報
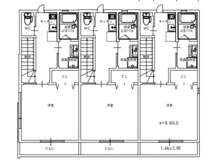
| 間取り | 1K | 専有面積 | 30.55m2 |
|---|---|---|---|
| 間取り詳細 | K(3帖)、洋室(7帖) | ||
| 所在階 / 向き | 1階 / 南 | バルコニー面積 | - |
| 水道 / ガス | ガス【プロパン】 | ||
| 設備 | バス・トイレ別、追い焚き、インターネット対応、システムキッチン、エアコン、温水洗浄便座、南向き、バルコニー、フローリング、コンロ:ガス、洗濯機:室内 | ||
| 当社物件ID | 160017514 | ||
建物の情報
| 建物名 | COCOLON COCORO | ||
|---|---|---|---|
| 所在地 | 岡山県岡山市中区四御神 | ||
| 交通 | 山陽本線 東岡山駅 徒歩29分 津山線 玉柏駅 徒歩45分 山陽本線 高島駅(岡山) 徒歩69分 | ||
| 階数 | 2階建 | 総戸数 | - |
| 築年月 | 2024年03月 / 築2年 | エレベーター | - |
| 駐車場 | 空有 | バイク置き場 | - |
| 駐輪場 | あり | 管理人/管理会社 | - |
| 建物種別 | アパート | 建物構造 | 木造 |
この部屋の取扱い不動産会社
| 会社名 | 株式会社後楽不動産 ホームメイトFC門田屋敷店(賃貸スモッカ経由) | ||
|---|---|---|---|
| 所在地 | 岡山県岡山市中区門田屋敷1-7-38 | 交通 | - |
| 営業時間 | - | 定休日 | - |
| 免許番号 | 岡山県知事免許(1)第6267号 | 取引態様 | 仲介 |
| 不動産会社管理番号 | kouraku-fudousan3_330730000451512 | 当社管理番号 | 463 |
| 所属団体 | (公社)全国宅地建物取引業協会連合会\n(一社)岡山県宅地建物取引業協会\n四国地区不動産公正取引協議会 | ||
| 公正取引協議会 | (公社)全国宅地建物取引業保証協会 | ||
| 取扱い物件情報 | 物件詳細へ | ||
※各種情報と現状に差異がある場合は、現状優先となります。問い合わせをすることで、より詳しい条件、情報を確認する事ができます。
提供:株式会社後楽不動産 ホームメイトFC門田屋敷店(賃貸スモッカ経由)
この物件が気になったら掲載期限まであと5日
COCOLON COCOROに条件(家賃・エリア)が近い物件一覧
| 写真 | 家賃 管理費等 | 敷金 礼金 | 間取り 専有面積 | 築年数 | 最寄り駅 所在地 | キープ | 詳細 |
|---|---|---|---|---|---|---|---|
マンション プレアール西川原(1K/2階) | |||||||
![]() | 3万円 3,000円 | なし なし | 1K 21.75m2 | 築30年 | 山陽本線 西川原駅 徒歩14分 岡山電軌東山本線 城下駅(岡山) 徒歩23分 岡山電軌東山本線 県庁通り駅 徒歩26分 岡山県岡山市中区西川原1丁目 | 詳細を見る | |
アパート ペニーA・B(2DK/2階) | |||||||
![]() | 3.7万円 なし | 3.7万円 3.7万円 | 2DK 35m2 | 築38年 | 岡山電軌東山本線 門田屋敷駅 徒歩39分 岡山電軌東山本線 中納言駅 徒歩42分 岡山県岡山市中区湊 | 詳細を見る | |
アパート REVE中島(ワンルーム/1階) | |||||||
![]() | 4.7万円 3,000円 | なし 4.7万円 | ワンルーム 25.76m2 | 築9年 | 山陽本線 高島駅(岡山) 徒歩15分 山陽本線 西川原駅 徒歩15分 岡山県岡山市中区中島 | 詳細を見る | |
アパート フォブールはまなすⅠ・Ⅱ・Ⅲ(2LDK/2階) | |||||||
![]() | 4万円 3,000円 | なし なし | 2LDK 51.76m2 | 築30年 | 赤穂線 大多羅駅 徒歩10分 山陽本線 東岡山駅 徒歩33分 赤穂線 西大寺駅 徒歩60分 岡山県岡山市東区目黒町 | 詳細を見る | |
アパート RIVER CITY 西川原(1LDK/3階) | |||||||
![]() | 5.95万円 4,000円 | 5.95万円 5.95万円 | 1LDK 31.78m2 | 築1年 | 山陽本線 西川原駅 徒歩6分 津山線 法界院駅 徒歩26分 山陽本線 高島駅(岡山) 徒歩29分 岡山県岡山市中区西川原 | 詳細を見る | |
アパート ビューバレー原田(2LDK/1階) | |||||||
![]() | 4.85万円 4,000円 | なし なし | 2LDK 53.54m2 | 築32年 | 山陽本線 西川原駅 徒歩17分 山陽本線 高島駅(岡山) 徒歩18分 岡山県岡山市中区さい | 詳細を見る | |
マンション リバーサイド ハナ(1LDK/1階) | |||||||
![]() | 7.6万円 8,000円 | なし 10万円 | 1LDK 42.95m2 | 築3年 | 山陽本線 西川原駅 徒歩10分 津山線 法界院駅 徒歩21分 山陽本線 高島駅(岡山) 徒歩28分 岡山県岡山市中区竹田 | 詳細を見る | |
アパート ハピネスA(3DK/2階) | |||||||
![]() | 6.5万円 なし | なし なし | 3DK 68.73m2 | 築27年 | 山陽本線 高島駅(岡山) 徒歩10分 山陽本線 東岡山駅 徒歩31分 山陽本線 西川原駅 徒歩40分 岡山県岡山市中区清水 | 詳細を見る | |









