賃貸マンション
コーシャハイツ相生の賃貸物件情報(2DK/4階)
| 家賃 | 管理費等 | 敷金 | 礼金 | 間取り | 専有面積 |
|---|---|---|---|---|---|
| 8.6199万円 | 7,300円 | なし | なし | 2DK | 50.4m2 |
入居決定でお祝い金最大100,000円
Point
大阪市住まい公社賃貸住宅 敷金0円礼金0円仲介手数料0円!
提供:住まい探しのSumuSumu 九条店(株)cocoSumu不動産(SUUMO経由)

詳細情報 コーシャハイツ相生
物件紹介
コーシャハイツ相生は阪堺電気軌道上町線北畠駅から徒歩5分にあり、駅近で通勤通学に便利なマンションです。
このお部屋は2階以上に位置しているので通行人や周囲の住人からの視線が気になりにくく、建物のエントランスはオートロックがついているので防犯性が高くなっています。
人気の南向きのお部屋。バス・トイレ別の仕様で、のんびりお風呂タイムも楽しめます。
通信設備面では、インターネット接続が可能です。また、CATVにも対応しているので、おうち時間も充実するでしょう(別途工事、契約料が必要な場合あり)。
建物にはエレベーターがついているので、重い荷物があっても安心。共用部には宅配ボックスが設定されているので、不在の時にも荷物を受け取ることができます。
このお部屋は2階以上に位置しているので通行人や周囲の住人からの視線が気になりにくく、建物のエントランスはオートロックがついているので防犯性が高くなっています。
人気の南向きのお部屋。バス・トイレ別の仕様で、のんびりお風呂タイムも楽しめます。
通信設備面では、インターネット接続が可能です。また、CATVにも対応しているので、おうち時間も充実するでしょう(別途工事、契約料が必要な場合あり)。
建物にはエレベーターがついているので、重い荷物があっても安心。共用部には宅配ボックスが設定されているので、不在の時にも荷物を受け取ることができます。
お金・契約の情報
※「-」と表示されているものは、実際は料金が発生するものもございます。詳細はお問い合わせください。
| 家賃 | 8.6199万円 | 管理費・共益費 | 7,300円 |
|---|---|---|---|
| 敷金 | なし | 礼金 | なし |
| 入居決定でお祝い金最大100,000円 | |||
| 保証金 | - | 償却・敷引 | - |
| 住宅保険料 | - | 更新料 | - |
| 保証会社利用 | 必須 | 保証会社名 | リクルートフォレントインシュア |
| 保証会社費用 | - | 保証会社備考 | オリコフォレントインシュア利用必 初回賃料総額20% 月次保証料賃料総額0.8%要/月 |
| 契約形態 | - | 契約期間 | - |
| 入居・引渡期間 | 相談 | 現況 | - |
| 契約備考 | 2DK 単身者可/二人入居可/子供可/事務所利用不可/ルームシェア不可 普通借家1年 バストイレ別、ガスコンロ対応、クロゼット、オートロック、陽当り良好、南向き、脱衣所、エレベーター、洗面化粧台、宅配ボックス、CATV、閑静な住宅地、敷金不要、保証人不要、2沿線利用可、保証金不要、高温差湯式、2駅利用可、駅徒歩5分以内、24時間ゴミ出し可、敷地内ごみ置き場、和室、畳コーナー、玄関収納、高速ネット対応 | ||
部屋の情報
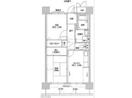
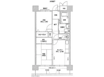
| 間取り | 2DK | 専有面積 | 50.4m2 |
|---|---|---|---|
| 所在階 / 向き | 4階 / 南 | バルコニー面積 | - |
| 水道 / ガス | - | ||
| 設備 | バス・トイレ別、2階以上、オートロック、宅配ボックス、インターネット対応、エレベーター、南向き、コンロ:ガス、CATV | ||
| 当社物件ID | 22552567 | ||
建物の情報
| 建物名 | コーシャハイツ相生 | ||
|---|---|---|---|
| 所在地 | 大阪府大阪市阿倍野区相生通 | ||
| 交通 | 阪堺電気軌道上町線 北畠駅 徒歩5分 地下鉄御堂筋線 昭和町駅(大阪) 徒歩15分 | ||
| 階数 | 8階建 | 総戸数 | 148戸 |
| 築年月 | 2002年10月 / 築24年 | エレベーター | あり |
| 駐車場 | なし | バイク置き場 | - |
| 駐輪場 | - | 管理人/管理会社 | - |
| 周辺環境 | その他 ファミリーマート 聖天下二丁目店(コンビニ)まで1202m その他 大阪市立丸山小学校(小学校)まで1058m その他 大阪市立松虫中学校(中学校)まで1008m その他 聖天山公園(公園)まで1141m | ||
| 建物種別 | マンション | 建物構造 | RC(鉄筋コンクリート) |
この部屋の取扱い不動産会社
| 会社名 | 住まい探しのSumuSumu 九条店(株)cocoSumu不動産(SUUMO経由) | ||
|---|---|---|---|
| 所在地 | 大阪府大阪市西区九条1-6-18 | 交通 | - |
| 営業時間 | 10:00~18:00 | 定休日 | 毎週水曜日 年末年始 |
| 免許番号 | 大阪府知事57822 | 取引態様 | 仲介 |
| 不動産会社管理番号 | 100408610461 | 当社管理番号 | 89 |
| 所属団体 | (公社)全日本不動産協会大阪府本部会員 | ||
| 公正取引協議会 | (公社)近畿地区不動産公正取引協議会加盟 | ||
| 取扱い物件情報 | 物件詳細へ | ||
※各種情報と現状に差異がある場合は、現状優先となります。問い合わせをすることで、より詳しい条件、情報を確認する事ができます。
提供:住まい探しのSumuSumu 九条店(株)cocoSumu不動産(SUUMO経由)
この物件が気になったら掲載期限まであと11日
コーシャハイツ相生に条件(家賃・エリア)が近い物件一覧
| 写真 | 家賃 管理費等 | 敷金 礼金 | 間取り 専有面積 | 築年数 | 最寄り駅 所在地 | キープ | 詳細 |
|---|---|---|---|---|---|---|---|
アパート パークサイドヒロツグA棟(ワンルーム/2階) | |||||||
| 6万円 5,000円 | なし 5万円 | ワンルーム 33.39m2 | 築25年 | 大阪モノレール本線 南摂津駅 徒歩23分 大阪府摂津市鳥飼野々1丁目8-4 | 詳細を見る | ||
アパート SHAMAISON NOIX ESPOIR(1K/3階) | |||||||
![]() | 5.8万円 5,500円 | 1万円 10万円 | 1K 29.62m2 | 築9年 | 近鉄大阪線 長瀬駅 徒歩4分 おおさか東線 JR長瀬駅 徒歩5分 近鉄難波・奈良線 河内小阪駅 徒歩22分 大阪府東大阪市菱屋西1丁目 | 詳細を見る | |
マンション レジディア千里藤白台(1LDK/5階) | |||||||
| 10万円 1万円 | なし 20万円 | 1LDK 37.42m2 | 築10年 | 阪急電鉄千里線 北千里駅 徒歩15分 大阪モノレール本線 山田駅(大阪) 徒歩16分 大阪モノレール彩都 阪大病院前駅 徒歩30分 大阪府吹田市藤白台1丁目1-15 | 詳細を見る | ||
アパート ウイングヒルズ(1LDK/1階) | |||||||
| 12.7万円 7,500円 | なし 30万円 | 1LDK 53.28m2 | 築13年 | 東海道本線 岸辺駅 徒歩4分 阪急電鉄京都線 正雀駅 徒歩14分 阪急電鉄京都線 摂津市駅 徒歩26分 大阪府吹田市岸部中3丁目13-5 | 詳細を見る | ||
マンション レオパレス南金田(1K/2階) | |||||||
![]() | 8.1万円 5,000円 | なし 8.1万円 | 1K 19.87m2 | 築16年 | 大阪メトロ御堂筋線 江坂駅 徒歩13分 大阪府吹田市南金田2丁目 | 詳細を見る | |
マンション WORVE吹田江坂(2K/8階) | |||||||
| 11.6万円 1.2万円 | なし なし | 2K 31.28m2 | 築1年 | 北大阪急行南北線 江坂駅 徒歩9分 阪急電鉄千里線 豊津駅(大阪) 徒歩19分 おおさか東線 南吹田駅 徒歩20分 大阪府吹田市広芝町17-18 | 詳細を見る | ||
マンション センターポイント吉志部(2K/2階) | |||||||
| 8.7万円 1万円 | なし 8.7万円 | 2K 35.1m2 | 築24年 | 東海道本線 岸辺駅 徒歩10分 阪急電鉄京都線 正雀駅 徒歩19分 大阪市今里筋線 井高野駅 徒歩45分 大阪府吹田市岸部中3丁目21-3 | 詳細を見る | ||
マンション ワールドハイツ(2DK/3階) | |||||||
![]() | 5.4万円 6,000円 | なし 5.4万円 | 2DK 45m2 | 築36年 | 近鉄けいはんな線 吉田駅(大阪) 徒歩10分 近鉄難波・奈良線 東花園駅 徒歩20分 近鉄けいはんな線 新石切駅 徒歩25分 大阪府東大阪市吉田本町2丁目 | 詳細を見る | |




