賃貸マンション
ACPレジデンス西巣鴨の賃貸物件情報(2K/6階)
| 家賃 | 管理費等 | 敷金 | 礼金 | 間取り | 専有面積 |
|---|---|---|---|---|---|
| 12.9万円 | 1.5万円 | なし | なし | 2K | 25.52m2 |
入居決定でお祝い金最大100,000円
- 保証金
- -
- 償却・敷引
- -
- 築年数
- 築2年
- 所在階
- 6階
- 向き
- 南西
Point
お部屋探しはタウンハウジングへ!
提供:(株)タウンハウジング東京 板橋店(SUUMO経由)

詳細情報 ACPレジデンス西巣鴨
物件紹介
ACPレジデンス西巣鴨は都電荒川線新庚申塚駅から徒歩2分にあり、駅近で通勤通学に便利なマンションです。
このお部屋は2階以上に位置しているので、通行人や周囲の住人からの視線が気になりにくく、防犯面でも安心。建物のエントランスはオートロックがついており、インターホンにはTVモニタもついているため、相手の顔を確認してから来客対応することができます。
人気の南向きのお部屋。また、フローリングなのでお掃除もラクラク。キッチンはシステムキッチン仕様になっていますので、お料理好きの方にもぴったり。バス・トイレは別なので、のんびりお風呂タイムも楽しめるでしょう。また、雨の日でも浴室乾燥機を使えば、お洗濯も問題ありません。
通信設備面では、インターネットが無料で使えるので、月々の出費を抑えられるのも魅力です。また、BSアンテナ・CSアンテナもありますので、おうち時間も充実するでしょう(別途工事、BS・CSの契約料等が必要な場合あり)。
建物にはエレベーターがついているので、重い荷物があっても安心。共用部には宅配ボックスが設定されているので、不在の時にも荷物を受け取ることができます。
このお部屋は2階以上に位置しているので、通行人や周囲の住人からの視線が気になりにくく、防犯面でも安心。建物のエントランスはオートロックがついており、インターホンにはTVモニタもついているため、相手の顔を確認してから来客対応することができます。
人気の南向きのお部屋。また、フローリングなのでお掃除もラクラク。キッチンはシステムキッチン仕様になっていますので、お料理好きの方にもぴったり。バス・トイレは別なので、のんびりお風呂タイムも楽しめるでしょう。また、雨の日でも浴室乾燥機を使えば、お洗濯も問題ありません。
通信設備面では、インターネットが無料で使えるので、月々の出費を抑えられるのも魅力です。また、BSアンテナ・CSアンテナもありますので、おうち時間も充実するでしょう(別途工事、BS・CSの契約料等が必要な場合あり)。
建物にはエレベーターがついているので、重い荷物があっても安心。共用部には宅配ボックスが設定されているので、不在の時にも荷物を受け取ることができます。
お金・契約の情報
※「-」と表示されているものは、実際は料金が発生するものもございます。詳細はお問い合わせください。
| 家賃 | 12.9万円 | 管理費・共益費 | 1.5万円 |
|---|---|---|---|
| 敷金 | なし | 礼金 | なし |
| フリーレント | あり | ||
| 入居決定でお祝い金最大100,000円 | |||
| 保証金 | - | 償却・敷引 | - |
| 住宅保険料 | - | 更新料 | - |
| 保証会社利用 | 必須 | 保証会社名 | - |
| 保証会社費用 | - | 保証会社備考 | 保証会社利用必 賃貸保証料:0.40ヶ月 加入要■第一保証会社:エポス(初回料:40%、月次:無、更新料:10000円/1年or14000円/1年)■第二保証会社:JRAG(初回料:70%、月次:無、更新料:10000円/1年) |
| 契約形態 | - | 契約期間 | - |
| 入居・引渡期間 | - | 現況 | - |
| 契約備考 | 都電荒川線庚申塚駅徒歩6分/お部屋探しはタウンハウジングへ!短期解約違約金あり。 更新料新賃料(ヶ月):1.00ヶ月 2K 二人入居可/フリーレント1ヶ月フリーレント1ヶ月 普通借家2年 損保【2万円2年】 バストイレ別、バルコニー、エアコン、ガスコンロ対応、クロゼット、フローリング、シャワー付洗面台、TVインターホン、浴室乾燥機、オートロック、室内洗濯置、シューズボックス、システムキッチン、温水洗浄便座、エレベーター、洗面所独立、洗面化粧台、2口コンロ、駐輪場、宅配ボックス、礼金不要、BS・CS、敷金不要、防犯カメラ、独立型キッチン、照明付、保証人不要、二人入居相談、全居室フローリング、2沿線利用可、ネット専用回線、ネット使用料不要、フリーレント、ダブルロックキー、保証金不要、築2年以内、築3年以内、2駅利用可、駅徒歩5分以内、築5年以内、南西向き、都市ガス、玄関収納、敷金・礼金不要、IT重説対応物件 入居日:'26年4月下旬 | ||
部屋の情報
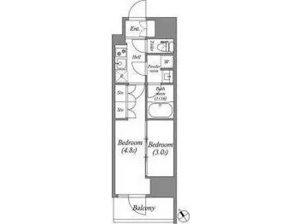
| 間取り | 2K | 専有面積 | 25.52m2 |
|---|---|---|---|
| 所在階 / 向き | 6階 / 南西 | バルコニー面積 | - |
| 水道 / ガス | - | ||
| 設備 | バス・トイレ別、2階以上、オートロック、テレビドアホン、宅配ボックス、浴室乾燥機、インターネット対応、システムキッチン、エアコン、エレベーター、温水洗浄便座、南向き、バルコニー、フローリング、洗髪洗面化粧台、2口コンロ、コンロ:ガス、CSアンテナ、BSアンテナ、インターネット使用料無料、洗濯機:室内 | ||
| 当社物件ID | 157962711 | ||
建物の情報
| 建物名 | ACPレジデンス西巣鴨 | ||
|---|---|---|---|
| 所在地 | 東京都豊島区西巣鴨 | ||
| 交通 | 都電荒川線 新庚申塚駅 徒歩2分 都営三田線 西巣鴨駅 徒歩3分 JR埼京線 板橋駅 徒歩12分 | ||
| 階数 | 11階建 | 総戸数 | - |
| 築年月 | 2024年11月 / 築2年 | エレベーター | あり |
| 駐車場 | なし | バイク置き場 | - |
| 駐輪場 | あり | 管理人/管理会社 | - |
| 周辺環境 | その他 アトレヴィ大塚(ショッピングセンター)まで1270m その他 ドン・キホーテ北池袋店(ショッピングセンター)まで2370m その他 コモディイイダ西巣鴨店(スーパー)まで320m その他 まいばすけっと巣鴨5丁目店(スーパー)まで260m その他 スーパーみらべる西巣鴨店(スーパー)まで410m その他 ミニコープ巣鴨店(スーパー)まで360m | ||
| 建物種別 | マンション | 建物構造 | RC(鉄筋コンクリート) |
この部屋の取扱い不動産会社
| 会社名 | (株)タウンハウジング東京 巣鴨店(SUUMO経由) | ||
|---|---|---|---|
| 所在地 | 東京都豊島区巣鴨1-18-9 石川ビル2階 | 交通 | - |
| 営業時間 | AM10:00~PM7:00 | 定休日 | 水曜日 |
| 免許番号 | 国土交通大臣9926 | 取引態様 | 仲介 |
| 不動産会社管理番号 | 100485554654 | 当社管理番号 | 89 |
| 所属団体 | (公社)東京都宅地建物取引業協会会員 | ||
| 公正取引協議会 | (公社)首都圏不動産公正取引協議会加盟 | ||
| 取扱い物件情報 | 物件詳細へ | ||
※各種情報と現状に差異がある場合は、現状優先となります。問い合わせをすることで、より詳しい条件、情報を確認する事ができます。
提供:(株)タウンハウジング東京 巣鴨店(SUUMO経由)
この物件が気になったら掲載期限まであと11日
ACPレジデンス西巣鴨に条件(家賃・エリア)が近い物件一覧
| 写真 | 家賃 管理費等 | 敷金 礼金 | 間取り 専有面積 | 築年数 | 最寄り駅 所在地 | キープ | 詳細 |
|---|---|---|---|---|---|---|---|
マンション レジディア文京本郷Ⅱ(1K/11階) | |||||||
![]() | 12.9万円 1.5万円 | なし なし | 1K 21.2m2 | 築21年 | 東京地下鉄丸ノ内線 本郷三丁目駅 徒歩3分 東京都大江戸線 本郷三丁目駅 徒歩3分 東京都三田線 水道橋駅 徒歩10分 東京都文京区本郷3丁目 | 詳細を見る | |
マンション SYFORME江戸川橋(1DK/5階) | |||||||
![]() | 14.1万円 1万円 | なし なし | 1DK 25.05m2 | 築4年 | 東京地下鉄有楽町線 江戸川橋駅 徒歩1分 東京都文京区関口1丁目 | 詳細を見る | |
マンション リビオメゾン御茶ノ水イースト(1DK/9階) | |||||||
![]() | 17万円 1万円 | 17万円 なし | 1DK 25.41m2 | 築1年 | 中央本線 御茶ノ水駅 徒歩5分 東京地下鉄銀座線 末広町駅(東京) 徒歩6分 東京地下鉄丸ノ内線 御茶ノ水駅 徒歩6分 東京都文京区湯島1丁目 | 詳細を見る | |
マンション レニール本駒込(ワンルーム/4階) | |||||||
![]() | 11.6万円 1万円 | なし なし | ワンルーム 26.04m2 | 築20年 | 東京都三田線 千石駅 徒歩2分 山手線 巣鴨駅 徒歩9分 東京地下鉄南北線 駒込駅 徒歩12分 東京都文京区本駒込2丁目 | 詳細を見る | |
マンション クラリティア文京湯島(1DK/4階) | |||||||
![]() | 16.3万円 1.5万円 | 16.3万円 なし | 1DK 25.13m2 | 築1年 | 東京地下鉄千代田線 湯島駅 徒歩5分 東京地下鉄銀座線 末広町駅(東京) 徒歩7分 中央本線 御茶ノ水駅 徒歩9分 東京都文京区湯島3丁目 | 詳細を見る | |
マンション レピュア早稲田レジデンス2(ワンルーム/3階) | |||||||
![]() | 14.3万円 1.2万円 | なし なし | ワンルーム 20m2 | 築2年 | 東京地下鉄東西線 早稲田駅(メトロ) 徒歩10分 東京地下鉄有楽町線 江戸川橋駅 徒歩11分 東京地下鉄副都心線 雑司が谷駅(東京メトロ) 徒歩17分 東京都文京区関口1丁目 | 詳細を見る | |
マンション エスコート音羽(1K/4階) | |||||||
![]() | 9万円 1.5万円 | なし なし | 1K 20.2m2 | 築25年 | 東京地下鉄有楽町線 護国寺駅 徒歩2分 東京都文京区音羽2丁目 | 詳細を見る | |
マンション びらしんび(ワンルーム/3階) | |||||||
![]() | 13.5万円 8,000円 | 13.5万円 13.5万円 | ワンルーム 37.77m2 | 築47年 | 東京地下鉄丸ノ内線 茗荷谷駅 徒歩6分 東京都三田線 千石駅 徒歩13分 東京地下鉄有楽町線 護国寺駅 徒歩17分 東京都文京区小石川5丁目 | 詳細を見る | |








